
Framing Contract for Contractor Nevada Form


What is the Framing Contract For Contractor Nevada
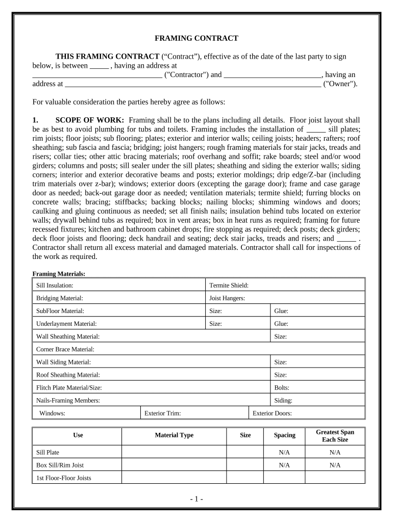
The Framing Contract for Contractor in Nevada is a legal document that outlines the terms and conditions under which a contractor will perform framing work on a construction project. This contract serves to protect both the contractor and the client by clearly defining the scope of work, payment terms, and responsibilities of each party. It typically includes details such as project timelines, materials to be used, and any specific requirements unique to the project. Understanding this contract is essential for ensuring compliance with Nevada construction laws and regulations.
Key Elements of the Framing Contract For Contractor Nevada
Several key elements are vital for a comprehensive Framing Contract for Contractor in Nevada. These include:
- Scope of Work: A detailed description of the framing tasks to be completed.
- Payment Terms: Clear stipulations regarding the total cost, payment schedule, and any deposits required.
- Timeline: Specific deadlines for project milestones and completion.
- Materials: A list of materials to be used, including specifications and quality standards.
- Liability and Insurance: Requirements for liability insurance and indemnification clauses.
- Termination Clause: Conditions under which either party may terminate the contract.
Steps to Complete the Framing Contract For Contractor Nevada
Completing the Framing Contract for Contractor in Nevada involves several important steps:
- Gather Information: Collect all necessary details about the project, including specifications and client requirements.
- Draft the Contract: Use a template or create a custom contract that includes all essential elements.
- Review with Legal Counsel: Have the contract reviewed by a legal professional to ensure compliance with Nevada laws.
- Obtain Signatures: Ensure that both parties sign the contract, either in person or electronically using a secure eSignature platform.
- Distribute Copies: Provide signed copies to all parties involved for their records.
Legal Use of the Framing Contract For Contractor Nevada
The Framing Contract for Contractor in Nevada must comply with state laws to be legally binding. This includes adherence to the Nevada Revised Statutes governing contracts and construction practices. The contract should be clear, concise, and free of ambiguous language. It is also important to ensure that all parties involved have the legal capacity to enter into the agreement. Utilizing electronic signatures through a compliant platform can enhance the legal standing of the contract.
How to Use the Framing Contract For Contractor Nevada
Using the Framing Contract for Contractor in Nevada involves several practical steps. First, ensure that the contract is tailored to the specific project and includes all necessary details. Once the contract is drafted, review it with the client to confirm mutual understanding and agreement on terms. After both parties sign the contract, it becomes a binding agreement that governs the relationship throughout the project. Keep a copy for your records and refer to it as needed to ensure compliance with the agreed-upon terms.
State-Specific Rules for the Framing Contract For Contractor Nevada
In Nevada, specific rules govern the use of contracts in the construction industry. The Framing Contract must comply with state regulations, including licensing requirements for contractors and adherence to local building codes. Additionally, the contract should include provisions for dispute resolution, often recommending mediation or arbitration as a first step. Understanding these state-specific rules is crucial for ensuring that the contract is enforceable and protects the interests of both parties involved.
Quick guide on how to complete framing contract for contractor nevada
Prepare [SKS] effortlessly on any device
Digital document management has become increasingly popular among businesses and individuals. It offers an ideal eco-friendly alternative to conventional printed and signed documents, enabling you to access the correct form and securely store it online. airSlate SignNow equips you with all the necessary tools to create, edit, and eSign your documents swiftly without delays. Handle [SKS] on any platform with the airSlate SignNow Android or iOS applications and enhance any document-based workflow today.
The easiest way to modify and eSign [SKS] seamlessly
- Find [SKS] and click on Get Form to begin.
- Use the tools available to complete your form.
- Highlight pertinent sections of your documents or obscure sensitive information with tools specifically designed by airSlate SignNow for that purpose.
- Create your eSignature using the Sign feature, which takes only seconds and carries the same legal validity as a traditional wet ink signature.
- Verify all the details and click on the Done button to save your modifications.
- Choose how you'd like to send your form, via email, SMS, or invitation link, or download it to your computer.
Say goodbye to lost or misplaced files, tedious form searches, or mistakes that require printing new document copies. airSlate SignNow addresses your document management needs in just a few clicks from any device you prefer. Edit and eSign [SKS] and ensure excellent communication at every stage of your form preparation process with airSlate SignNow.
Create this form in 5 minutes or less
Create this form in 5 minutes!
People also ask
-
What is a Framing Contract For Contractor Nevada?
A Framing Contract For Contractor Nevada is a legal document that outlines the terms and conditions between a contractor and a client concerning framing services in Nevada. It typically includes project scope, timelines, payment terms, and responsibilities. Utilizing airSlate SignNow can streamline this process with eSigning capabilities, making it easier for both parties to execute contracts efficiently.
-
How can airSlate SignNow help with my Framing Contract For Contractor Nevada?
airSlate SignNow provides an efficient platform for managing your Framing Contract For Contractor Nevada by allowing you to create, send, and eSign documents securely. The tool simplifies the contract management process, ensuring that you can focus on the job rather than paperwork. With automated workflows, you can ensure timely approvals and minimize delays.
-
What features should I look for in a Framing Contract For Contractor Nevada?
When evaluating a Framing Contract For Contractor Nevada, look for features such as clear clauses for payment schedules, project timelines, and liability protections. Integrations with project management and accounting software can also enhance efficiency. airSlate SignNow offers customizable templates that cater to these needs, ensuring that your contracts are comprehensive and aligned with local laws.
-
Can I use airSlate SignNow for multiple contracts, including my Framing Contract For Contractor Nevada?
Yes, airSlate SignNow allows you to manage multiple contracts, including your Framing Contract For Contractor Nevada, seamlessly. You can create templates for different types of contracts, save them for future use, and personalize each one for different projects or clients. This flexibility ensures you can adapt to various contracting needs without starting from scratch each time.
-
What are the benefits of using airSlate SignNow for my Framing Contract For Contractor Nevada?
Using airSlate SignNow for your Framing Contract For Contractor Nevada offers numerous benefits, including faster contract execution and improved accuracy. The eSigning feature eliminates the need for in-person meetings, speeding up the approval process. Additionally, the platform provides a secure audit trail that helps you keep track of all contract changes and signatures.
-
Is there a cost associated with using airSlate SignNow for a Framing Contract For Contractor Nevada?
Yes, there is a cost associated with using airSlate SignNow, but it offers flexible pricing plans that cater to various business needs. Depending on your usage, you can choose a subscription that best fits your requirements. The cost-effectiveness of airSlate SignNow makes it an attractive option for managing your Framing Contract For Contractor Nevada without breaking the bank.
-
How does airSlate SignNow ensure the security of my Framing Contract For Contractor Nevada?
airSlate SignNow employs advanced security measures, including encryption and multi-factor authentication to protect your Framing Contract For Contractor Nevada. Additionally, all documents are stored securely in the cloud, allowing you to access them safely from anywhere. This focus on security ensures that sensitive information remains confidential throughout the eSigning process.
Get more for Framing Contract For Contractor Nevada
- Bir 1600 form download
- Lariat drillingcom form
- Mississippi contractoramp39s application for material purchase certificate dor ms form
- Dss 5228 form
- Superior court of california county of riverside form
- Sample payment plan contract pikes form
- Seller of travel affidavit form 750
- Infectious waste generator registration form department of scdhec
Find out other Framing Contract For Contractor Nevada
- How To Integrate Sign in Banking
- How Do I Integrate Sign in Banking
- Help Me With Integrate Sign in Banking
- How Can I Integrate Sign in Banking
- Can I Integrate Sign in Banking
- How To Use Sign in Banking
- How Do I Use Sign in Banking
- Help Me With Use Sign in Banking
- How Can I Use Sign in Banking
- Can I Use Sign in Banking
- How To Install Sign in Banking
- How Do I Install Sign in Banking
- Help Me With Install Sign in Banking
- How Can I Install Sign in Banking
- Can I Install Sign in Banking
- How To Add Sign in Banking
- How Do I Add Sign in Banking
- Help Me With Add Sign in Banking
- How Can I Add Sign in Banking
- Can I Add Sign in Banking