
Property Transfer Affidavit Form


What is the Property Transfer Affidavit
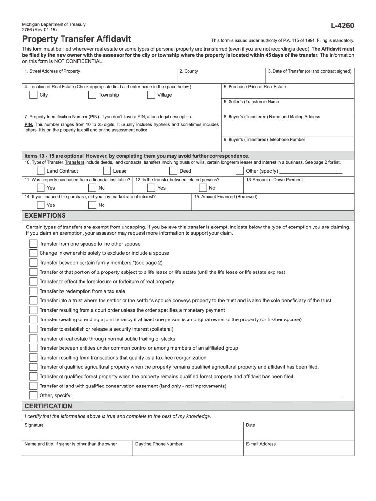
The property transfer affidavit is a legal document used to declare the transfer of ownership of real property from one party to another. This affidavit serves as a formal declaration that provides essential details regarding the property, including its legal description, the names of the parties involved, and the terms of the transfer. It is often required by state or local authorities to ensure that the transfer is documented and recognized legally. The affidavit plays a crucial role in maintaining accurate property records and can be essential in disputes regarding property ownership.
Steps to Complete the Property Transfer Affidavit
Completing a property transfer affidavit involves several key steps to ensure accuracy and compliance with legal requirements. Follow these steps for a successful completion:
- Gather necessary information: Collect details about the property, including its address, legal description, and parcel number.
- Identify the parties: Clearly state the names and contact information of both the transferor (current owner) and the transferee (new owner).
- Detail the transfer terms: Specify the nature of the transfer, whether it is a sale, gift, or other arrangements.
- Complete the affidavit form: Fill out the property transfer affidavit accurately, ensuring all required fields are completed.
- Sign and date: Both parties must sign the affidavit in the presence of a notary public to validate the document.
- Submit the affidavit: File the completed affidavit with the appropriate local government office to finalize the property transfer.
Legal Use of the Property Transfer Affidavit
The legal use of a property transfer affidavit is significant in establishing and documenting the transfer of property ownership. It is often required in various legal contexts, such as when applying for title insurance, resolving disputes, or during estate settlements. The affidavit serves as evidence of the transfer, protecting the rights of the new owner and ensuring that the transfer complies with state laws. Failure to properly execute and file the affidavit can lead to complications in ownership claims and may result in legal disputes.
Key Elements of the Property Transfer Affidavit
Understanding the key elements of the property transfer affidavit is essential for its effective use. The following components are typically included:
- Property description: A detailed legal description of the property being transferred.
- Transferor and transferee information: Names, addresses, and contact details of both parties involved in the transfer.
- Transfer details: The nature of the transfer, including any conditions or stipulations that apply.
- Signatures: Signatures of both parties, along with a notary's acknowledgment to validate the document.
- Date of transfer: The date on which the transfer is effective.
How to Obtain the Property Transfer Affidavit
Obtaining a property transfer affidavit is a straightforward process. Typically, you can acquire the form from the following sources:
- Local government offices: Many counties or municipalities provide the affidavit form on their official websites or at their offices.
- Real estate attorneys: Consulting with a real estate attorney can help ensure that you receive the correct form and understand its implications.
- Online resources: Various legal document websites may offer templates for property transfer affidavits that comply with state regulations.
State-Specific Rules for the Property Transfer Affidavit
Each state in the U.S. may have specific rules and regulations governing the use of property transfer affidavits. It is important to be aware of these variations, as they can affect the completion and submission of the affidavit. Some states may require additional documentation, specific wording, or particular filing procedures. Always check with your local county clerk or property records office to ensure compliance with state-specific requirements and to avoid potential legal issues.
Quick guide on how to complete property transfer affidavit pdf
Complete property transfer affidavit pdf with ease on any device
Digital document management has become increasingly favored by businesses and individuals alike. It offers a superb eco-friendly substitute to traditional printed and signed documents, allowing you to obtain the necessary form and securely save it online. airSlate SignNow equips you with all the tools required to create, adjust, and eSign your files promptly without any holdups. Handle property transfer affidavit on any device using airSlate SignNow's Android or iOS applications and streamline any document-related task today.
How to edit and eSign property transfer affidavit michigan effortlessly
- Obtain online property transfer and click on Get Form to begin.
- Utilize the tools we provide to complete your document.
- Emphasize important sections of the documents or obscure sensitive information with tools specifically designed for that purpose by airSlate SignNow.
- Generate your eSignature using the Sign tool, which takes just seconds and carries the same legal validity as a conventional wet ink signature.
- Review all the details and click the Done button to save your changes.
- Select your preferred method to share your form, whether by email, SMS, invite link, or download it to your computer.
Say goodbye to lost or mislaid documents, cumbersome form navigation, or errors that require reprinting new document copies. airSlate SignNow meets your document management needs in just a few clicks from your chosen device. Edit and eSign property transfer affidavit detroit to ensure excellent communication at any stage of the form preparation process with airSlate SignNow.
Create this form in 5 minutes or less
Related searches to property transfer affidavit detroit
Create this form in 5 minutes!
How to create an eSignature for the property transfer affidavit pdf
How to create an electronic signature for a PDF online
How to create an electronic signature for a PDF in Google Chrome
How to create an e-signature for signing PDFs in Gmail
How to create an e-signature right from your smartphone
How to create an e-signature for a PDF on iOS
How to create an e-signature for a PDF on Android
People also ask property transfer affidavit michigan
-
What is a property transfer affidavit?
A property transfer affidavit is a legal document that certifies the details of a property transfer between parties. It often highlights the names of the buyers and sellers, property details, and the terms of the transfer. This affidavit is crucial for ensuring that transactions are legally binding and accurately captured.
-
How can airSlate SignNow assist with a property transfer affidavit?
airSlate SignNow provides a user-friendly platform for creating, sending, and eSigning property transfer affidavits. With its intuitive interface, you can ensure that all parties involved can easily access and complete necessary documents without hassle. This streamlines the property transaction process signNowly.
-
What are the costs associated with using airSlate SignNow for property transfer affidavits?
The pricing for using airSlate SignNow varies depending on the selected plan, which includes different features tailored to your needs. Starting with a cost-effective solution, users can benefit from unlimited signing and document storage options. This makes it a budget-friendly choice for managing property transfer affidavits.
-
What features does airSlate SignNow offer for property transfer affidavit management?
airSlate SignNow offers features such as templates for property transfer affidavits, automated workflows, and comprehensive tracking. These tools help ensure that all documents are signed on time and that no important steps are missed during the transfer process. Additionally, you can integrate this solution with other software for enhanced efficiency.
-
Can I create a property transfer affidavit from scratch using airSlate SignNow?
Yes, you can create a property transfer affidavit from scratch using airSlate SignNow’s document editor. The platform allows you to customize your affidavit based on specific needs, including the addition of necessary fields and clauses. This customization ensures that your document meets all legal requirements.
-
How does eSigning a property transfer affidavit work in airSlate SignNow?
eSigning a property transfer affidavit in airSlate SignNow is straightforward. Once the document is ready, you can send it to all relevant parties for their electronic signatures. The platform ensures that you can track who has signed and if there are any pending signatories, all while maintaining legal compliance.
-
Is it safe to use airSlate SignNow for property transfer affidavits?
Absolutely, airSlate SignNow prioritizes security with robust encryption and compliance with legal standards. Your property transfer affidavits will be securely stored, ensuring that sensitive information remains confidential. This security feature provides peace of mind while conducting property transactions.
Get more for online property transfer
- Trauma assessment referral process tarp screening instrument form
- Baptist md anderson cancer center patient intake form
- Disclosure to surplus line insured form sl 3
- Utrgv diploma form
- Act student identification form fill in
- How to complete an act student id form
- Learn about the irs form 656 take action now
- Release indemnity and assumption of risk young engineers form
Find out other property transfer affidavit detroit
- How To Sign Idaho Life Sciences Document
- How Do I Sign Idaho Life Sciences Document
- How Can I Sign Idaho Life Sciences Presentation
- Help Me With Sign Idaho Life Sciences Document
- Help Me With Sign Idaho Life Sciences Presentation
- How Can I Sign Idaho Life Sciences Document
- Can I Sign Idaho Life Sciences Presentation
- Can I Sign Idaho Life Sciences Document
- How Can I Sign Idaho Life Sciences Presentation
- How To Sign Idaho Life Sciences Form
- How Do I Sign Idaho Life Sciences Form
- Can I Sign Idaho Life Sciences Presentation
- Help Me With Sign Idaho Life Sciences Form
- How Can I Sign Idaho Life Sciences Form
- How To Sign Idaho Life Sciences Presentation
- Can I Sign Idaho Life Sciences Form
- How Do I Sign Idaho Life Sciences Presentation
- How To Sign Idaho Life Sciences Form
- How Do I Sign Idaho Life Sciences Form
- Help Me With Sign Idaho Life Sciences Form