
Roane County Building Department Kingston, TN Address Form


What is the Roane County Building Department Kingston, TN Address
The Roane County Building Department is located at 200 East Race Street, Kingston, TN 37763. This department plays a crucial role in overseeing building permits, inspections, and compliance with local construction regulations. It serves as the primary point of contact for residents and contractors seeking to obtain necessary permits for construction projects in Roane County.
How to Obtain the Roane County Building Department Kingston, TN Address
To obtain the address of the Roane County Building Department, you can visit the official Roane County government website or contact the department directly via phone. The staff can provide you with the most current information regarding their location and hours of operation. It is advisable to verify the address before planning a visit, as municipal offices may relocate or change their contact information.
Required Documents for Roane County Building Permits
When applying for a building permit in Roane County, several documents are typically required. These may include:
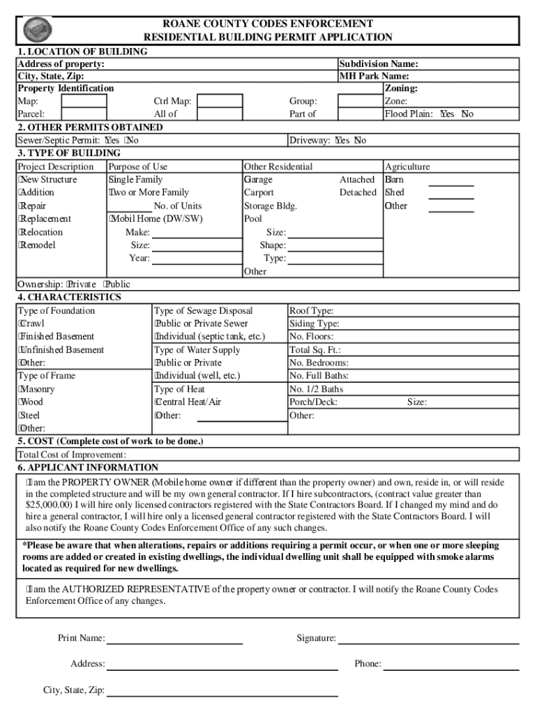
- A completed building permit application form.
- Detailed construction plans or blueprints.
- Proof of ownership or authorization from the property owner.
- Site plans showing the proposed construction location.
- Any additional documentation specific to the project type.
Ensuring that all required documents are submitted can help streamline the approval process and reduce delays.
Application Process & Approval Time for Roane County Building Permits
The application process for obtaining a building permit in Roane County involves several steps. First, applicants must gather all necessary documentation and complete the application form. Once submitted, the application will be reviewed by the building department staff. This review process typically takes anywhere from a few days to several weeks, depending on the complexity of the project and the current workload of the department. After approval, applicants will receive their building permit, allowing them to commence construction.
Legal Use of Roane County Building Permits
Building permits in Roane County are legally required for most construction projects to ensure compliance with local building codes and safety regulations. Failure to obtain the necessary permits can result in penalties, including fines or orders to cease construction. It is essential for homeowners and contractors to understand the legal implications of working without a permit, as it can lead to significant complications down the line.
State-Specific Rules for Roane County Building Permits
In addition to local regulations, building permits in Roane County must adhere to state-specific rules outlined by the Tennessee Department of Commerce and Insurance. These rules may cover a variety of topics, including zoning laws, safety standards, and environmental considerations. Familiarizing yourself with both local and state regulations is crucial for ensuring compliance and avoiding potential legal issues during construction.
Quick guide on how to complete tn residential building permit
Effortlessly Prepare tn residential building permit on Any Device
Digital document management has gained popularity among businesses and individuals. It offers a superb eco-friendly option to conventional printed and signed materials, allowing you to locate the appropriate form and securely store it online. airSlate SignNow equips you with all the tools necessary to create, modify, and electronically sign your documents promptly without any delays. Manage roane county building permits on any platform using the airSlate SignNow Android or iOS applications and enhance any document-based workflow today.
How to Alter and Electronically Sign tn residential building permit with Ease
- Obtain tennessee residential building permit and click on Get Form to begin.
- Utilize the tools we provide to fill out your form.
- Emphasize applicable sections of the documents or conceal sensitive details with the tools that airSlate SignNow specifically offers for that purpose.
- Generate your electronic signature with the Sign tool, which takes mere seconds and carries the same legal validity as a traditional handwritten signature.
- Review all the details and click on the Done button to save your modifications.
- Choose how you wish to distribute your form, whether by email, text message (SMS), invite link, or download it to your computer.
Eliminate concerns about lost or misplaced documents, tedious form searching, or errors that necessitate printing new copies. airSlate SignNow fulfills all your document management needs in just a few clicks from any device you prefer. Modify and electronically sign roane county building permits to ensure seamless communication at every stage of your document preparation process with airSlate SignNow.
Create this form in 5 minutes or less
Related searches to tennessee residential building permit
Create this form in 5 minutes!
How to create an eSignature for the roane county building permits
How to create an electronic signature for a PDF online
How to create an electronic signature for a PDF in Google Chrome
How to create an e-signature for signing PDFs in Gmail
How to create an e-signature right from your smartphone
How to create an e-signature for a PDF on iOS
How to create an e-signature for a PDF on Android
People also ask tennessee residential building permit
-
What are Roane County building permits?
Roane County building permits are official approvals required for construction, renovation, or alteration of buildings within Roane County. These permits ensure that all projects comply with local building codes and regulations, promoting safety and quality in construction.
-
How can airSlate SignNow help with Roane County building permits?
airSlate SignNow streamlines the process of applying for Roane County building permits by allowing users to easily fill out and eSign necessary documents online. This reduces paperwork and speeds up the approval process, making it easier for contractors and homeowners to manage their projects.
-
What is the cost of obtaining Roane County building permits?
The cost of Roane County building permits varies based on the type and scope of the project. Typically, fees are determined by the size of the construction and the specific requirements set by the county. It's advisable to check with the Roane County building department for the most accurate fee structure.
-
What features does airSlate SignNow offer for managing building permits?
airSlate SignNow offers features such as document templates, eSignature capabilities, and secure cloud storage, all of which are essential for managing Roane County building permits. These tools help users efficiently create, send, and track their permit applications, ensuring a smooth workflow.
-
Are there any benefits to using airSlate SignNow for building permits?
Using airSlate SignNow for Roane County building permits provides numerous benefits, including time savings, reduced errors, and enhanced collaboration. The platform allows multiple stakeholders to review and sign documents quickly, which accelerates the permit approval process.
-
Can airSlate SignNow integrate with other software for building permit management?
Yes, airSlate SignNow can integrate with various software solutions, enhancing the management of Roane County building permits. This includes project management tools and accounting software, allowing users to streamline their workflows and maintain better organization throughout the permitting process.
-
How secure is airSlate SignNow for handling building permit documents?
airSlate SignNow prioritizes security, employing advanced encryption and compliance measures to protect documents related to Roane County building permits. Users can trust that their sensitive information is safeguarded throughout the entire eSigning process.
Get more for roane county building permits
- Divorce financial agreement template form
- Divorce financial settlement draft consent order agreement template form
- Divorce mediation agreement template form
- Divorce property settlement agreement template form
- Divorce separation agreement template form
- Divorce settlement divorce agreement template form
- Divorce settlement agreement template form
- Divorce written agreement template form
Find out other tn residential building permit
- Sign Virginia Charity Lease Termination Letter Simple
- Sign Virginia Charity Lease Termination Letter Fast
- Sign Virginia Charity Lease Termination Letter Easy
- Sign West Virginia Charity Affidavit Of Heirship Safe
- How To Sign Virginia Charity Lease Termination Letter
- Sign Virginia Charity Lease Termination Letter Safe
- How Do I Sign Virginia Charity Lease Termination Letter
- Sign Washington Charity Last Will And Testament Online
- Sign Washington Charity Last Will And Testament Computer
- Sign Washington Charity Last Will And Testament Mobile
- Help Me With Sign Virginia Charity Lease Termination Letter
- How To Sign Washington Charity Last Will And Testament
- Sign Washington Charity Last Will And Testament Later
- Sign Washington Charity Last Will And Testament Now
- Sign Washington Charity Last Will And Testament Myself
- How Do I Sign Washington Charity Last Will And Testament
- How Can I Sign Virginia Charity Lease Termination Letter
- Sign Washington Charity Last Will And Testament Free
- Sign Washington Charity Last Will And Testament Secure
- Help Me With Sign Washington Charity Last Will And Testament