 
                DETERMINATION of SURPLUS Excess Real Property GSA Form
 
                             
                            What is the determination of surplus excess real property GSA
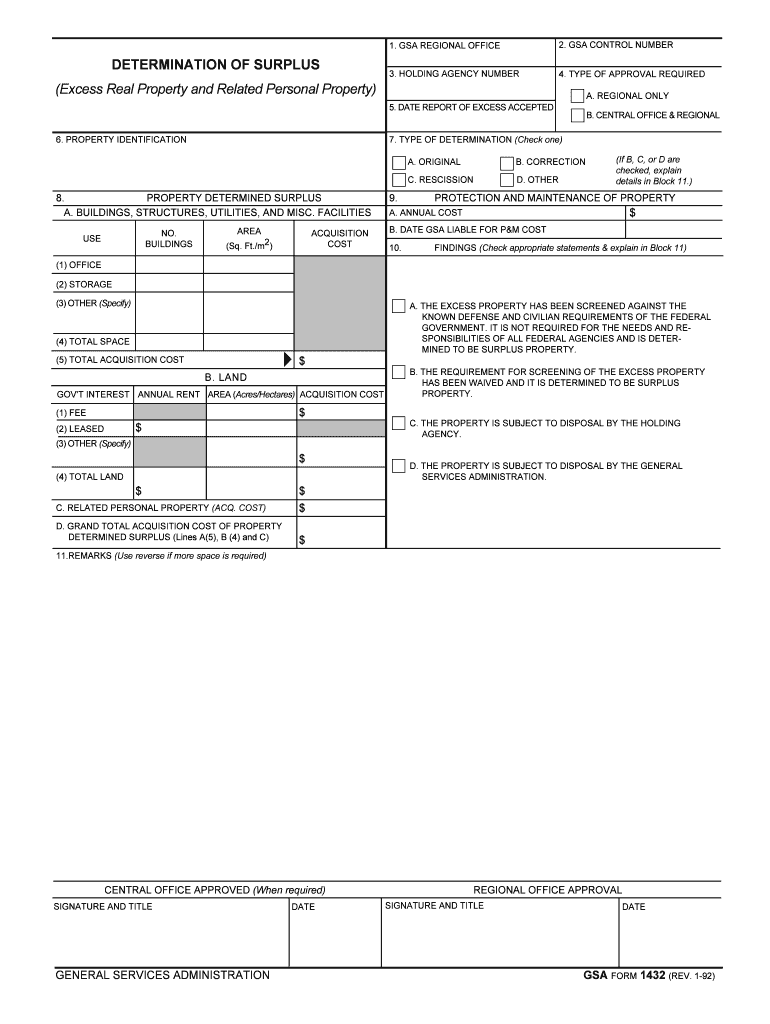
The determination of surplus excess real property GSA refers to the process by which the General Services Administration identifies and manages properties that are no longer needed for federal use. This process ensures that federal properties are efficiently utilized or disposed of, allowing for better allocation of resources. Surplus properties can include land, buildings, and other real estate assets that the government has deemed excess to its requirements.
How to use the determination of surplus excess real property GSA
Using the determination of surplus excess real property GSA involves several steps. First, an agency must assess its real property holdings to identify any that are no longer necessary. Once identified, the agency submits a request to the GSA for a determination of surplus status. The GSA then evaluates the request and determines whether the property can be declared surplus. If approved, the property may be made available for transfer to other federal agencies, state and local governments, or the public.
Steps to complete the determination of surplus excess real property GSA
Completing the determination of surplus excess real property GSA involves a series of structured steps:
- Conduct a thorough inventory of real property holdings.
- Identify properties that are underutilized or no longer needed.
- Prepare a formal request for surplus determination, including necessary documentation.
- Submit the request to the GSA for review.
- Await the GSA's evaluation and determination.
- If approved, follow the guidelines for property transfer or disposal.
Key elements of the determination of surplus excess real property GSA
Several key elements are essential for the determination of surplus excess real property GSA. These include:
- Property Assessment: A comprehensive evaluation of the property’s condition and utility.
- Documentation: Required forms and supporting documents that justify the surplus status.
- GSA Review: The GSA's process for evaluating the request and its criteria for approval.
- Transfer Guidelines: Regulations governing how surplus properties can be disposed of or transferred.
Legal use of the determination of surplus excess real property GSA
The legal use of the determination of surplus excess real property GSA is governed by federal laws and regulations. These laws ensure that the process is transparent and fair, providing a framework for the identification, evaluation, and disposal of surplus properties. Compliance with these legal requirements is crucial for ensuring that the process meets public interest and adheres to ethical standards.
Form submission methods for the determination of surplus excess real property GSA
Submitting the determination of surplus excess real property GSA can be done through various methods. Agencies typically submit requests electronically through designated government portals. Alternatively, forms may be mailed directly to the GSA or submitted in person at local GSA offices. Each submission method has specific requirements, so it is important to follow the guidelines provided by the GSA to ensure proper processing.
Quick guide on how to complete determination of surplus excess real property gsa
Complete [SKS] effortlessly on any gadget
Web-based document management has gained traction among businesses and individuals alike. It offers an excellent environmentally friendly substitute for conventional printed and signed documents, as you can access the correct template and securely archive it online. airSlate SignNow equips you with all the tools necessary to create, edit, and electronically sign your documents swiftly without interruptions. Manage [SKS] on any device using airSlate SignNow Android or iOS applications and streamline any document-related process today.
How to edit and electronically sign [SKS] with ease
- Locate [SKS] and click on Get Form to initiate the process.
- Utilize the tools we offer to complete your form.
- Highlight important sections of your documents or redact sensitive information with tools specifically provided by airSlate SignNow for that purpose.
- Generate your electronic signature using the Sign tool, which takes mere seconds and holds the same legal validity as a traditional handwritten signature.
- Review the details and click on the Done button to save your changes.
- Choose how you wish to send your form, via email, SMS, or an invitation link, or download it to your computer.
Say goodbye to lost or misplaced documents, tedious form searching, or errors that necessitate generating new document copies. airSlate SignNow meets your document management needs in just a few clicks from any device you prefer. Edit and electronically sign [SKS] to maintain exceptional communication throughout your form preparation process with airSlate SignNow.
Create this form in 5 minutes or less
Related searches to DETERMINATION OF SURPLUS Excess Real Property GSA
Create this form in 5 minutes!
How to create an eSignature for the determination of surplus excess real property gsa
How to make an electronic signature for the Determination Of Surplus Excess Real Property Gsa in the online mode
How to create an electronic signature for your Determination Of Surplus Excess Real Property Gsa in Chrome
How to make an eSignature for signing the Determination Of Surplus Excess Real Property Gsa in Gmail
How to create an electronic signature for the Determination Of Surplus Excess Real Property Gsa straight from your smartphone
How to make an electronic signature for the Determination Of Surplus Excess Real Property Gsa on iOS devices
How to generate an eSignature for the Determination Of Surplus Excess Real Property Gsa on Android
People also ask
- 
                                
                                    
                                    
                                    What is the DETERMINATION OF SURPLUS Excess Real Property GSA process?
                                
                                The DETERMINATION OF SURPLUS Excess Real Property GSA process involves evaluating properties that the government no longer needs. This process ensures efficient management of federal assets by making these properties available for other uses or for sale. Understanding this process can help businesses identify potential opportunities.
- 
                                
                                    
                                    
                                    How can airSlate SignNow assist with DETERMINATION OF SURPLUS Excess Real Property GSA documentation?
                                
                                airSlate SignNow streamlines the DETERMINATION OF SURPLUS Excess Real Property GSA documentation process by enabling users to easily create, send, and eSign necessary documents. Our platform simplifies workflows, ensuring compliance and accuracy throughout the process. This saves businesses valuable time and ensures that all records are properly managed.
- 
                                
                                    
                                    
                                    What are the key benefits of using airSlate SignNow for the DETERMINATION OF SURPLUS Excess Real Property GSA?
                                
                                Using airSlate SignNow for the DETERMINATION OF SURPLUS Excess Real Property GSA provides numerous benefits, including enhanced efficiency, legality in document management, and improved collaboration. The platform’s user-friendly interface allows for quick eSigning and sharing, which accelerates the approval process. Additionally, our solutions are cost-effective, making them accessible for all businesses.
- 
                                
                                    
                                    
                                    Is there a cost associated with using airSlate SignNow for DETERMINATION OF SURPLUS Excess Real Property GSA?
                                
                                Yes, airSlate SignNow offers several pricing plans designed to fit different business needs, including those dealing with DETERMINATION OF SURPLUS Excess Real Property GSA. We provide flexible monthly and annual subscriptions, ensuring businesses can choose the best option for their budget. Additionally, potential savings can be realized through efficiency improvements.
- 
                                
                                    
                                    
                                    What features does airSlate SignNow offer for managing DETERMINATION OF SURPLUS Excess Real Property GSA?
                                
                                airSlate SignNow includes a range of features tailored for managing the DETERMINATION OF SURPLUS Excess Real Property GSA process, such as electronic signatures, templates for repetitive tasks, and secure cloud storage. Our API integrations allow seamless connection with existing systems, ensuring a smooth transition to digital document management. These features enhance operational efficiency and compliance.
- 
                                
                                    
                                    
                                    Can airSlate SignNow integrate with other software for DETERMINATION OF SURPLUS Excess Real Property GSA?
                                
                                Absolutely! airSlate SignNow supports various integrations, allowing you to connect with widely-used platforms, which can be particularly beneficial during the DETERMINATION OF SURPLUS Excess Real Property GSA process. This flexibility enables businesses to customize their workflow seamlessly, resulting in improved productivity and reduced manual entry errors.
- 
                                
                                    
                                    
                                    How does airSlate SignNow ensure data security for DETERMINATION OF SURPLUS Excess Real Property GSA documents?
                                
                                We prioritize data security at airSlate SignNow by using advanced encryption protocols and secure cloud storage for all documents related to the DETERMINATION OF SURPLUS Excess Real Property GSA. Our platform complies with relevant data protection regulations, ensuring that sensitive information is adequately protected. You can confidently manage your documents without worrying about bsignNowes.
Get more for DETERMINATION OF SURPLUS Excess Real Property GSA
Find out other DETERMINATION OF SURPLUS Excess Real Property GSA
- eSignature New Jersey Insurance Job Description Template Free
- eSignature New Jersey Insurance Job Description Template Secure
- eSignature New Mexico Insurance Executive Summary Template Computer
- eSignature New Jersey Insurance Job Description Template Fast
- eSignature Nevada Insurance Permission Slip Computer
- eSignature New Jersey Insurance Job Description Template Simple
- eSignature New Mexico Insurance Executive Summary Template Mobile
- eSignature New Jersey Insurance Job Description Template Easy
- eSignature New Jersey Insurance Job Description Template Safe
- eSignature New Mexico Insurance Executive Summary Template Now
- eSignature Nevada Insurance Permission Slip Mobile
- eSignature New Mexico Insurance Executive Summary Template Later
- How To eSignature New Jersey Insurance Job Description Template
- How Do I eSignature New Jersey Insurance Job Description Template
- eSignature Nevada Insurance Permission Slip Now
- eSignature New Mexico Insurance Executive Summary Template Myself
- Help Me With eSignature New Jersey Insurance Job Description Template
- How Can I eSignature New Jersey Insurance Job Description Template
- eSignature New Mexico Insurance Executive Summary Template Free
- Can I eSignature New Jersey Insurance Job Description Template