
Wb 6 Form


What is the Wb 6?
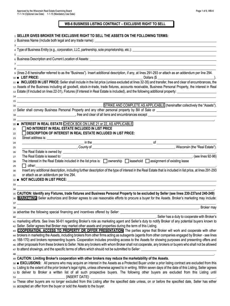
The Wb 6 form, also known as the Wisconsin Exclusive Right to Sell Listing Contract, is a legal document used in real estate transactions. It grants a real estate agent the exclusive right to sell a property for a specified period. This means that the agent is the only one authorized to market and sell the property during the contract term. The Wb 6 outlines the terms of the agreement, including the commission structure, the duration of the contract, and the responsibilities of both the seller and the agent.
How to use the Wb 6
Using the Wb 6 involves several steps to ensure that both parties understand their obligations. First, the seller must fill out the form with accurate property details, including the address, legal description, and any relevant disclosures. Next, the seller and the agent should review the terms of the contract, including the commission rate and the length of the agreement. Once both parties agree, they sign the document, making it legally binding. It is advisable to keep a copy of the signed Wb 6 for future reference.
Steps to complete the Wb 6
Completing the Wb 6 requires careful attention to detail. Follow these steps:
- Provide property information: Fill in the property address and legal description.
- Specify the listing price: Indicate the price at which the property will be listed for sale.
- Outline commission terms: Clearly state the commission percentage that the agent will receive upon the sale of the property.
- Set the contract duration: Define the length of time the exclusive right to sell will be in effect.
- Review and sign: Both the seller and the agent should review the completed form and sign it to finalize the agreement.
Legal use of the Wb 6
The Wb 6 is legally binding once signed by both the seller and the real estate agent. It is important for both parties to understand their rights and responsibilities under this contract. The agreement must comply with Wisconsin state laws governing real estate transactions. This includes ensuring that all disclosures are made and that the agent's commission is clearly outlined. Failure to adhere to these legal requirements may result in disputes or penalties.
Key elements of the Wb 6
Several key elements are essential to the Wb 6 form:
- Property details: Accurate information about the property being sold.
- Listing price: The agreed-upon price at which the property will be marketed.
- Commission structure: The percentage of the sale price that will be paid to the agent.
- Duration of the agreement: The time frame for which the agent has exclusive rights to sell the property.
- Signatures: Both parties must sign the document to make it legally binding.
State-specific rules for the Wb 6
Wisconsin has specific regulations that govern the use of the Wb 6 form. These rules ensure that the rights of both sellers and agents are protected. For instance, the form must include certain disclosures about the property, such as any known defects or issues. Additionally, the commission structure must be compliant with state laws. It is crucial for both parties to familiarize themselves with these regulations to avoid potential legal issues.
Quick guide on how to complete wisconsin form wb6
Effortlessly Prepare wisconsin form wb6 on Any Device
Digital document management has gained signNow traction among businesses and individuals alike. It serves as an ideal environmentally friendly substitute for conventional printed and signed documents, allowing you to retrieve the necessary form and securely store it online. airSlate SignNow offers all the resources you require to create, modify, and electronically sign your documents swiftly without setbacks. Oversee contract exclusive right on any device using the airSlate SignNow apps for Android or iOS and simplify any document-related task today.
Steps to Alter and eSign wb 6 with Ease
- Find wi contract sell and click on Get Form to begin.
- Make use of the tools available to finalize your document.
- Emphasize pertinent sections of the documents or obscure sensitive information with specialized tools that airSlate SignNow provides for this purpose.
- Formulate your eSignature using the Sign feature, which takes mere seconds and carries the same legal validity as a conventional handwritten signature.
- Review all details and click on the Done button to save your modifications.
- Choose your preferred method to deliver your form, whether by email, SMS, invitation link, or download it onto your computer.
Eliminate the worries of lost or misplaced documents, tedious form searches, or mistakes that necessitate reprinting new copies. airSlate SignNow addresses your document management needs in just a few clicks from any device you choose. Modify and electronically sign what is a wb 6 pertaing to real estate and guarantee exceptional communication at every stage of your form preparation process with airSlate SignNow.
Create this form in 5 minutes or less
Create this form in 5 minutes!
How to create an eSignature for the form wb 6
How to create an electronic signature for a PDF file online
How to create an electronic signature for a PDF file in Google Chrome
How to create an electronic signature for signing PDFs in Gmail
How to create an eSignature right from your mobile device
How to create an eSignature for a PDF file on iOS
How to create an eSignature for a PDF on Android devices
People also ask contract exclusive right
-
What is a contract exclusive right in the context of eSigning?
A contract exclusive right refers to a legal agreement that grants one party exclusive privileges regarding an obligation or property. In the context of eSigning with airSlate SignNow, it ensures that the designated signer has the sole authority to execute the contract, reducing the risk of unauthorized access.
-
How does airSlate SignNow facilitate the creation of a contract exclusive right?
airSlate SignNow simplifies the creation of a contract exclusive right by providing customizable templates that ensure all necessary legal elements are included. Users can incorporate tailored clauses that specify the exclusivity terms, streamlining the drafting process while maintaining legal compliance.
-
Is airSlate SignNow pricing competitive for businesses needing a contract exclusive right?
Yes, airSlate SignNow offers competitive pricing for businesses seeking a solution to manage their contract exclusive right needs. With flexible plans designed for organizations of all sizes, you can find an option that fits your budget without sacrificing features or support.
-
What features does airSlate SignNow offer for managing contract exclusive rights?
airSlate SignNow features an intuitive interface, secure storage, and advanced collaboration tools for managing contract exclusive rights. Users can track document status, receive notifications, and utilize templates to ensure their contracts are not only signed efficiently but also securely.
-
What benefits can I expect from using airSlate SignNow for a contract exclusive right?
Using airSlate SignNow for a contract exclusive right enhances efficiency and legal compliance. Automatically generated audit trails ensure transparency, while eSigning reduces turnaround time, allowing businesses to close deals faster and with greater confidence.
-
Does airSlate SignNow integrate with other applications for managing contract exclusive rights?
Yes, airSlate SignNow integrates with various applications to support managing your contract exclusive rights. Popular integrations include CRM systems and cloud storage solutions, allowing seamless workflows and enhanced productivity across your business operations.
-
How secure is airSlate SignNow when handling contract exclusive rights?
airSlate SignNow prioritizes security, implementing industry-standard encryption protocols to protect your contract exclusive right documents. Additionally, features like two-factor authentication and secure user access ensure that your sensitive agreements are safeguarded against unauthorized access.
Get more for wb 6
- Measuring motivation in the workplace form
- Employee workplace form
- General market survey form
- Checklist collection form
- Application for a declaration of eligibility for instruction in english form
- Peer navigator program referral form
- Medical and psychosocial reassessment medical report form
- Biopsy request form 240646861
Find out other wi contract sell
- Help Me With eSignature West Virginia Finance & Tax Accounting Word
- Help Me With eSignature West Virginia Finance & Tax Accounting Document
- How To eSignature West Virginia Finance & Tax Accounting Word
- How Do I eSignature West Virginia Finance & Tax Accounting Word
- How Can I eSignature West Virginia Finance & Tax Accounting Word
- Help Me With eSignature West Virginia Finance & Tax Accounting Word
- How Can I eSignature West Virginia Finance & Tax Accounting Document
- How Can I eSignature West Virginia Finance & Tax Accounting Word
- Can I eSignature West Virginia Finance & Tax Accounting Word
- Can I eSignature West Virginia Finance & Tax Accounting Document
- Can I eSignature West Virginia Finance & Tax Accounting Word
- How To eSignature West Virginia Finance & Tax Accounting Document
- How Do I eSignature West Virginia Finance & Tax Accounting Document
- Help Me With eSignature West Virginia Finance & Tax Accounting Document
- How Can I eSignature West Virginia Finance & Tax Accounting Document
- How To eSignature West Virginia Finance & Tax Accounting Document
- Can I eSignature West Virginia Finance & Tax Accounting Document
- How Do I eSignature West Virginia Finance & Tax Accounting Document
- How To eSignature West Virginia Finance & Tax Accounting Document
- How To eSignature West Virginia Finance & Tax Accounting Word