
Nebraska Commission Property 2012-2025 Form


What is the Nebraska Real Estate Commission Seller Property Condition Disclosure Statement
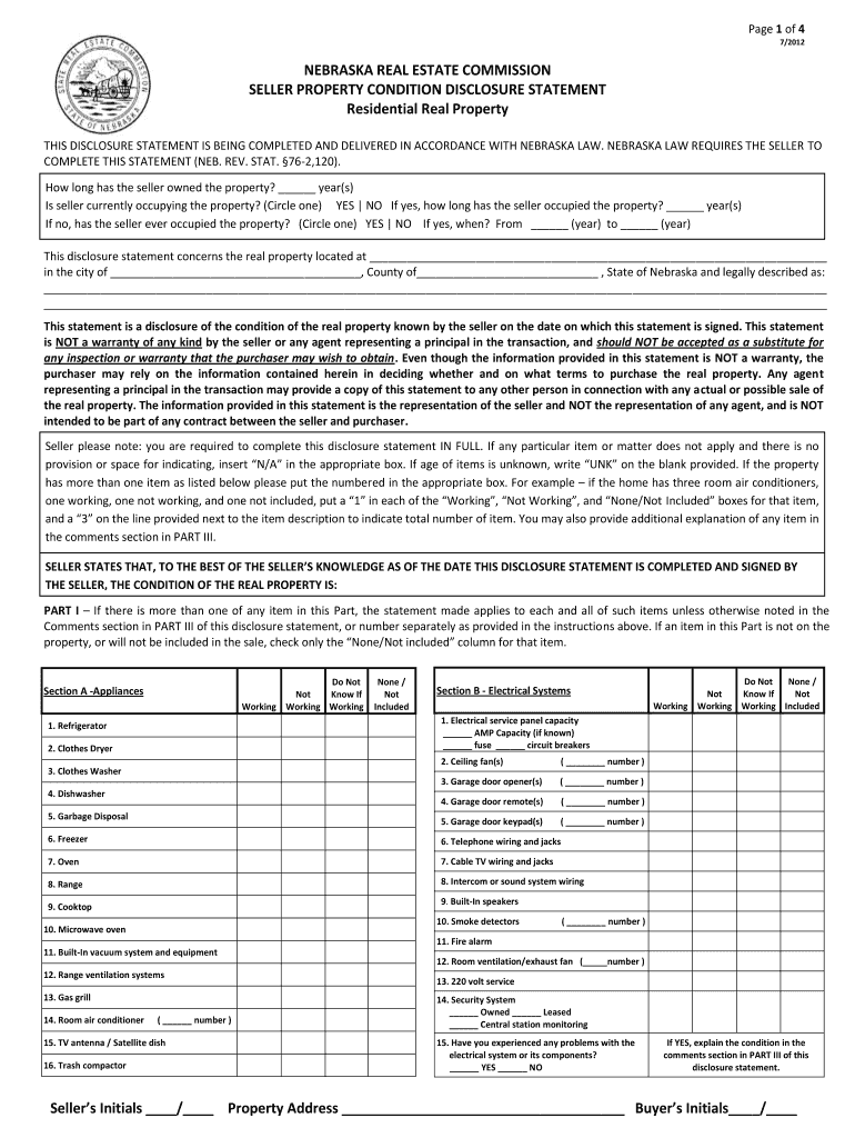
The Nebraska Real Estate Commission Seller Property Condition Disclosure Statement is a legal document that sellers of residential real estate in Nebraska are required to complete. This form provides potential buyers with essential information about the property's condition, including any known defects or issues. It covers various aspects, such as the structural integrity, plumbing, electrical systems, and any history of pest infestations. By disclosing this information, sellers can help buyers make informed decisions and reduce the risk of future disputes related to property conditions.
Key elements of the Nebraska Real Estate Commission Seller Property Condition Disclosure Statement
Several key elements must be included in the Nebraska Seller Property Condition Disclosure Statement to ensure its validity. These elements typically encompass:
- Property Description: A clear identification of the property, including its address and legal description.
- Seller Information: Details about the seller, including their name and contact information.
- Disclosure of Known Issues: A comprehensive list of any known defects or conditions affecting the property, such as water damage, mold, or structural problems.
- Signature of Seller: The document must be signed by the seller to confirm that the information provided is accurate and complete.
- Date of Completion: The date when the disclosure statement is completed and signed, which is crucial for legal purposes.
Steps to complete the Nebraska Real Estate Commission Seller Property Condition Disclosure Statement
Completing the Nebraska Seller Property Condition Disclosure Statement involves several steps to ensure accuracy and compliance with state regulations. Follow these steps:
- Gather Information: Collect all relevant details about the property, including any repairs or issues that have been addressed.
- Fill Out the Form: Complete the disclosure statement by accurately detailing the property's condition and any known problems.
- Review the Document: Double-check the information for accuracy and completeness before signing.
- Sign and Date: The seller must sign and date the document to validate it.
- Provide to Buyer: Ensure that the completed disclosure statement is provided to the buyer as part of the transaction process.
Legal use of the Nebraska Real Estate Commission Seller Property Condition Disclosure Statement
The Nebraska Seller Property Condition Disclosure Statement serves a critical legal function in real estate transactions. By completing and providing this document, sellers fulfill their legal obligation to disclose known property issues to potential buyers. This transparency helps to protect sellers from future claims or disputes regarding undisclosed defects. Additionally, it provides buyers with the necessary information to make informed decisions about their purchase, fostering trust in the transaction.
How to obtain the Nebraska Real Estate Commission Seller Property Condition Disclosure Statement
The Nebraska Seller Property Condition Disclosure Statement can be obtained through various channels. Sellers can access the form directly from the Nebraska Real Estate Commission's official website or through licensed real estate agents who typically have the form readily available. It is essential to ensure that the most current version of the form is used, as regulations and requirements may change over time. Additionally, many real estate offices provide templates that can be customized for individual property disclosures.
Disclosure Requirements
Disclosure requirements for the Nebraska Seller Property Condition Disclosure Statement are established by state law to ensure transparency in real estate transactions. Sellers are required to disclose any known material defects that could affect the value or desirability of the property. This includes information about the condition of major systems, such as heating, cooling, plumbing, and electrical systems, as well as any environmental hazards. Failure to provide accurate disclosures can lead to legal repercussions, including potential lawsuits from buyers who feel misled.
Quick guide on how to complete seller property disclosure nebraska
Complete Your T's and I's on Nebraska Real Estate Commission Seller Property Condition Disclosure Statement
Negotiating agreements, managing listings, coordinating meetings, and property showings—real estate agents and professionals navigate a wide range of duties daily. Numerous tasks involve various documents, such as seller property disclosure nebraska, that need to be filled out promptly and accurately.
airSlate SignNow is a comprehensive solution that assists experts in the real estate field in alleviating the document workload, allowing them to concentrate more on their clients’ goals throughout the entire negotiation process and helping them secure the most favorable terms for the transaction.
How to complete nebraska commission property with airSlate SignNow:
- Navigate to the nebraska disclosure property page or use our library's search features to find the document you require.
- Click Get form—you’ll be instantly directed to the editor.
- Begin filling out the form by selecting fillable fields and inputting your information.
- Add additional text and modify its properties if needed.
- Utilize the Sign option in the upper toolbar to create your eSignature.
- Explore other tools available for annotating and enhancing your document, such as drawing, highlighting, adding shapes, etc.
- Select the notes tab and include remarks regarding your document.
- Conclude the process by downloading, sharing, or sending your document to the relevant parties or organizations.
Eliminate paper permanently and streamline the homebuying experience with our user-friendly and robust solution. Experience greater convenience when completing nebraska real disclosure form and other real estate documents online. Give our solution a try!
Create this form in 5 minutes or less
FAQs nebraska seller disclosure statement
-
I'm trying to fill out a free fillable tax form. It won't let me click "done with this form" or "efile" which?
From https://www.irs.gov/pub/irs-utl/... (emphasis mine):DONE WITH THIS FORM — Select this button to save and close the form you are currently viewing and return to your 1040 form. This button is disabled when you are in your 1040 formSo, it appears, and without them mentioning it while you're working on it, that button is for all forms except 1040. Thank you to the other response to this question. I would never have thought of just clicking the Step 2 tab.
-
Is there a service that will allow me to create a fillable form on a webpage, and then email a PDF copy of each form filled out?
You can use Fill which is has a free forever plan.You can use Fill to turn your PDF document into an online document which can be completed, signed and saved as a PDF, online.You will end up with a online fillable PDF like this:w9 || FillWhich can be embedded in your website should you wish.InstructionsStep 1: Open an account at Fill and clickStep 2: Check that all the form fields are mapped correctly, if not drag on the text fields.Step 3: Save it as a templateStep 4: Goto your templates and find the correct form. Then click on the embed settings to grab your form URL.
-
How do I create a fillable HTML form online that can be downloaded as a PDF? I have made a framework for problem solving and would like to give people access to an online unfilled form that can be filled out and downloaded filled out.
Create PDF Form that will be used for download and convert it to HTML Form for viewing on your website.However there’s a lot of PDF to HTML converters not many can properly convert PDF Form including form fields. If you plan to use some calculations or validations it’s even harder to find one. Try PDFix Form Converter which works fine to me.
-
Is my real estate agent being honest? He said he has to pay $100 to Zillow each time someone fills out the contact listing agent form on my house. True?
Not to my knowledge. In my area, the way Zillow works is it pulls listings from the MLS (multiple listing service) unless I check a box that says the seller prohibits this. So it’s no more work for me to list your property on Zillow than in the MLS. Zillow sells real estate agents “leads” (queries about specific properties) or (in a new program) takes a % of the brokerage fee after a property has closed. Contacting agents online is free to both parties.
-
How can I fill out Google's intern host matching form to optimize my chances of receiving a match?
I was selected for a summer internship 2016.I tried to be very open while filling the preference form: I choose many products as my favorite products and I said I'm open about the team I want to join.I even was very open in the location and start date to get host matching interviews (I negotiated the start date in the interview until both me and my host were happy.) You could ask your recruiter to review your form (there are very cool and could help you a lot since they have a bigger experience).Do a search on the potential team.Before the interviews, try to find smart question that you are going to ask for the potential host (do a search on the team to find nice and deep questions to impress your host). Prepare well your resume.You are very likely not going to get algorithm/data structure questions like in the first round. It's going to be just some friendly chat if you are lucky. If your potential team is working on something like machine learning, expect that they are going to ask you questions about machine learning, courses related to machine learning you have and relevant experience (projects, internship). Of course you have to study that before the interview. Take as long time as you need if you feel rusty. It takes some time to get ready for the host matching (it's less than the technical interview) but it's worth it of course.
-
How do I fill out the form of DU CIC? I couldn't find the link to fill out the form.
Just register on the admission portal and during registration you will get an option for the entrance based course. Just register there. There is no separate form for DU CIC.
-
How do I form a real estate investor group to invest into commercial properties?
Commercial real estate of you create new apartments in the sun belt.. It's basically, location, location, location and also cost, quality, and timing to the customer. I moved into a new. Apt complex. The owner cut allot of corners and built the development with allot of cheap labor. He built a website so the tenants could pay automatically. He has. A clubhouse with pool and fitness center. He just sold it after losing it up, for 55 million dollars. He had a good property manager, and loaded the buildings while he was finishing the others. I hear they're dividing up the Waldorf Asteria into condos. Astoria was named after John David Astor ergo had a fur trading company and built the New York Library. Blank Stone it's the largest property owner in the country. Simon Properties tried to by Taubman but Michigan would not let them. Read Rich Dad / Poor Dad. They have their own commercial real estate group. The author can give you advice. Commercial real estate id's chancey if you don't know what you are doing. I would invest with that rich dad poor dad group..Kawasaki sounds honest. He's also a former Vietnam Pilot.
Related searches to nebraska property statement
Create this form in 5 minutes!
How to create an eSignature for the commission property neb
How to generate an eSignature for your Nebraska Real Estate Disclosure Form Fillable online
How to make an electronic signature for the Nebraska Real Estate Disclosure Form Fillable in Chrome
How to create an eSignature for putting it on the Nebraska Real Estate Disclosure Form Fillable in Gmail
How to generate an electronic signature for the Nebraska Real Estate Disclosure Form Fillable straight from your mobile device
How to generate an eSignature for the Nebraska Real Estate Disclosure Form Fillable on iOS devices
How to make an eSignature for the Nebraska Real Estate Disclosure Form Fillable on Android devices
People also ask nebraska disclosure form
-
What is Nebraska commission property?
Nebraska commission property refers to real estate transactions within the state of Nebraska that involve commissions paid to real estate agents. Understanding this term is crucial for both buyers and sellers who engage with professionals in the Nebraska real estate market.
-
How can airSlate SignNow help with Nebraska commission property transactions?
airSlate SignNow streamlines the documentation process for Nebraska commission property transactions by allowing users to eSign and send essential documents quickly and securely. This efficiency improves communication and reduces the time taken to close deals in the competitive Nebraska real estate market.
-
What are the pricing options for airSlate SignNow related to Nebraska commission property?
airSlate SignNow offers various pricing plans tailored for professionals dealing with Nebraska commission property. These plans are designed to fit different business needs and sizes, providing excellent value for effective document management and eSigning.
-
What features does airSlate SignNow offer for managing Nebraska commission property documents?
Key features of airSlate SignNow for managing Nebraska commission property documents include customizable templates, advanced eSigning capabilities, and real-time tracking of document status. These features enhance productivity and ensure compliance during property transactions.
-
Can airSlate SignNow integrate with other tools for Nebraska commission property management?
Yes, airSlate SignNow integrates seamlessly with various platforms and tools commonly used in Nebraska commission property management, such as CRM systems and cloud storage solutions. This integration enables a more cohesive workflow and better management of real estate documents.
-
What benefits does eSigning provide for Nebraska commission property agreements?
eSigning provides numerous benefits for Nebraska commission property agreements, including faster transaction speeds and reduced paperwork. This convenience allows real estate professionals to focus more on client relationships rather than administrative tasks, improving overall efficiency.
-
Is airSlate SignNow secure for handling Nebraska commission property documents?
Absolutely, airSlate SignNow prioritizes security by employing advanced encryption protocols and data protection measures. Users can confidently manage sensitive Nebraska commission property documents knowing their information is kept secure throughout the eSigning process.
Get more for nebraska seller property condition disclosure
- This excavation backfill grading and hauling contract form
- This renovation contract contract effective as of the date of the last form
- Australian contract law wikipedia form
- Master drilling agreement secgov form
- This framing contract contract effective as of the date of the last party to form
- This security contract contract effective as of the date of the last party form
- Quotcontr form
- Scope of work paving is the creation of a site wearing surface generally form
Find out other nebraska home disclosure form
- Sign Illinois Email Agreements Free
- Sign Illinois Email Agreements Secure
- Sign Kansas Confidentiality agreement sample Mobile
- Sign Illinois Email Agreements Fast
- Sign Illinois Email Agreements Simple
- Sign Illinois Email Agreements Easy
- Help Me With Sign Illinois Email Agreements
- Sign Kansas Confidentiality agreement sample Now
- Sign Illinois Email Agreements Safe
- Sign Kansas Confidentiality agreement sample Later
- How Can I Sign Illinois Email Agreements
- Sign Kansas Confidentiality agreement sample Myself
- How To Sign Kansas Confidentiality agreement sample
- Can I Sign Illinois Email Agreements
- How Do I Sign Kansas Confidentiality agreement sample
- Sign Kansas Confidentiality agreement sample Free
- Help Me With Sign Kansas Confidentiality agreement sample
- Can I Sign Kansas Confidentiality agreement sample
- How Can I Sign Kansas Confidentiality agreement sample
- Sign Kansas Confidentiality agreement sample Secure