
Plumbing Contract for Contractor Kentucky Form


What is the Plumbing Contract For Contractor Kentucky
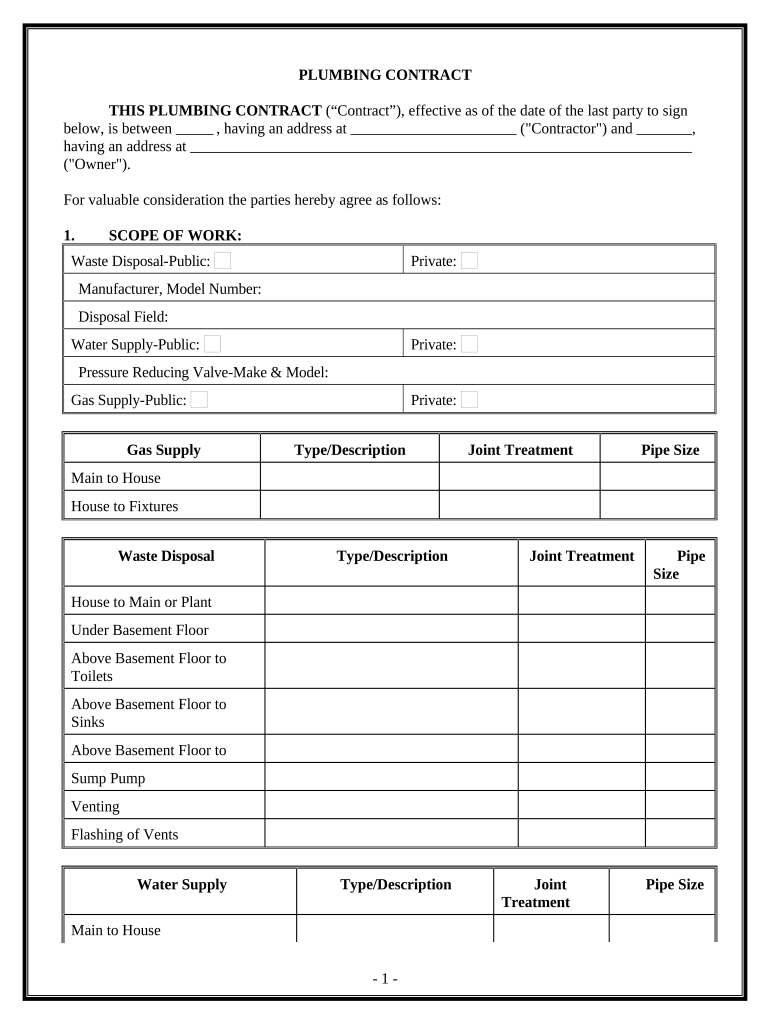
The Plumbing Contract for Contractor Kentucky is a legal document that outlines the terms and conditions between a plumbing contractor and a client. This contract serves to protect both parties by detailing the scope of work, payment terms, timelines, and responsibilities. It is essential for ensuring clarity and mutual understanding in plumbing projects, which can range from minor repairs to extensive installations.
Key Elements of the Plumbing Contract For Contractor Kentucky
Several critical components must be included in the Plumbing Contract for Contractor Kentucky to ensure its effectiveness and legality:
- Scope of Work: A detailed description of the plumbing services to be provided.
- Payment Terms: Information on how and when payments will be made, including deposits and final payments.
- Timeline: Deadlines for project completion and any milestones along the way.
- Liability and Insurance: Requirements for insurance coverage and liability clauses to protect both parties.
- Termination Clause: Conditions under which the contract may be terminated by either party.
Steps to Complete the Plumbing Contract For Contractor Kentucky
Completing the Plumbing Contract for Contractor Kentucky involves several straightforward steps:
- Gather Information: Collect all necessary details about the project, including client information and project specifications.
- Draft the Contract: Use a template or create a new document that includes all key elements outlined above.
- Review the Contract: Both parties should review the contract to ensure all terms are understood and agreed upon.
- Sign the Document: Utilize an electronic signature solution to sign the contract securely and efficiently.
- Distribute Copies: Ensure both parties receive a signed copy of the contract for their records.
Legal Use of the Plumbing Contract For Contractor Kentucky
The Plumbing Contract for Contractor Kentucky is legally binding when all parties agree to its terms and it complies with relevant state laws. It is crucial to ensure that the contract adheres to the legal requirements set forth by Kentucky law, including any specific regulations related to plumbing work. Utilizing electronic signatures can enhance the legality of the contract, provided that it meets the standards of the ESIGN Act and UETA.
How to Obtain the Plumbing Contract For Contractor Kentucky
Obtaining the Plumbing Contract for Contractor Kentucky can be accomplished through various methods. Contractors can access templates online, consult legal professionals for customized contracts, or use document management software that provides ready-made forms. It is advisable to ensure that any template used is up-to-date and compliant with current Kentucky regulations.
State-Specific Rules for the Plumbing Contract For Contractor Kentucky
In Kentucky, specific rules govern plumbing contracts to ensure consumer protection and industry standards. These may include licensing requirements for contractors, adherence to local building codes, and regulations regarding warranties and guarantees. Familiarizing oneself with these state-specific rules is essential for both contractors and clients to avoid legal complications.
Quick guide on how to complete plumbing contract for contractor kentucky
Complete [SKS] seamlessly on any device
Online document management has become increasingly popular with businesses and individuals. It offers an ideal eco-friendly substitute for traditional printed and signed documents, as you can obtain the correct form and securely store it online. airSlate SignNow equips you with all the resources necessary to create, edit, and eSign your documents swiftly without interruptions. Manage [SKS] on any platform using the airSlate SignNow Android or iOS applications and enhance any document-centric operation today.
The easiest way to modify and eSign [SKS] effortlessly
- Obtain [SKS] and then click Get Form to begin.
- Make use of the tools we offer to complete your form.
- Emphasize important sections of your documents or redact sensitive information with tools that airSlate SignNow specifically provides for that purpose.
- Create your signature using the Sign tool, which takes mere seconds and carries the same legal validity as a traditional wet ink signature.
- Review all the details and then click on the Done button to confirm your changes.
- Select how you wish to share your form, via email, text message (SMS), invite link, or download it to your computer.
Say goodbye to lost or misplaced documents, tedious form searches, or mistakes that necessitate printing new document copies. airSlate SignNow fulfills all your needs in document management in just a few clicks from any device of your choice. Modify and eSign [SKS] and ensure outstanding communication at every stage of the form preparation process with airSlate SignNow.
Create this form in 5 minutes or less
Related searches to Plumbing Contract For Contractor Kentucky
Create this form in 5 minutes!
People also ask
-
What is a Plumbing Contract For Contractor Kentucky?
A Plumbing Contract For Contractor Kentucky is a legally binding agreement between a plumber and a contractor in Kentucky. This document outlines the scope of work, payment terms, and responsibilities of each party, ensuring clarity and compliance with state regulations.
-
How can airSlate SignNow assist with creating a Plumbing Contract For Contractor Kentucky?
airSlate SignNow provides easy-to-use templates and tools that simplify the process of creating a Plumbing Contract For Contractor Kentucky. With customizable options, users can quickly fill in necessary details and ensure all legal requirements are met.
-
What are the costs associated with using airSlate SignNow for a Plumbing Contract For Contractor Kentucky?
Using airSlate SignNow is cost-effective, with various pricing plans to suit different business needs. Depending on your plan, you can generate limitless Plumbing Contracts For Contractor Kentucky at an affordable rate, making it a budget-friendly solution.
-
Can I integrate airSlate SignNow with other software for managing Plumbing Contracts For Contractor Kentucky?
Yes, airSlate SignNow offers integrations with popular business software such as CRM and project management tools. This feature allows users to easily manage their Plumbing Contracts For Contractor Kentucky alongside their other business operations.
-
What are the key benefits of using airSlate SignNow for Plumbing Contracts For Contractor Kentucky?
The key benefits of using airSlate SignNow for Plumbing Contracts For Contractor Kentucky include streamlined document management, electronic signatures for faster processing, and increased security. These features help ensure that agreements are legally binding and provide peace of mind for both parties.
-
Is it easy to obtain signatures on a Plumbing Contract For Contractor Kentucky using airSlate SignNow?
Absolutely! airSlate SignNow makes it simple to obtain signatures on your Plumbing Contract For Contractor Kentucky with its intuitive eSigning feature. You can send documents for signature via email, and recipients can sign on any device in just a few clicks.
-
Are there templates available for a Plumbing Contract For Contractor Kentucky in airSlate SignNow?
Yes, airSlate SignNow offers a variety of customizable templates specifically designed for Plumbing Contracts For Contractor Kentucky. These templates help you get started quickly and ensure that you include all necessary clauses and legal requirements.
Get more for Plumbing Contract For Contractor Kentucky
- 4a 214 community property and liabilities schedule for use with form
- Dmv 41 tr 2014 2019 form
- Questionnaire b form
- Dh sc6096a certificaci n de deuda de hacienda prgov form
- Sample application narrative research arts form
- Application for property tax exemption county board of equalization uca 59 2 1101 and 1102 form pt 020 pt 020 propertytax utah
- Camp bow wow employment application form
- D4gxd4g3rxd4g form
Find out other Plumbing Contract For Contractor Kentucky
- How Can I eSignature South Dakota Police Form
- How To eSignature South Dakota Police Form
- How To eSignature South Dakota Police Form
- Can I eSignature South Dakota Police Form
- How Do I eSignature South Dakota Police Form
- Help Me With eSignature South Dakota Police Form
- How Can I eSignature South Dakota Police Form
- How Do I eSignature South Dakota Police Form
- Can I eSignature South Dakota Police Form
- Help Me With eSignature South Dakota Police Form
- How To eSignature South Dakota Police Form
- How Do I eSignature South Dakota Police Form
- How To eSignature South Dakota Police Form
- Help Me With eSignature South Dakota Police Form
- How Can I eSignature South Dakota Police Form
- How Can I eSignature South Dakota Police Form
- How Do I eSignature South Dakota Police Form
- Can I eSignature South Dakota Police Form
- Help Me With eSignature South Dakota Police Form
- Can I eSignature South Dakota Police Form