 
                Plumbing Contract for Contractor Washington Form
 
                             
                            What is the Plumbing Contract For Contractor Washington
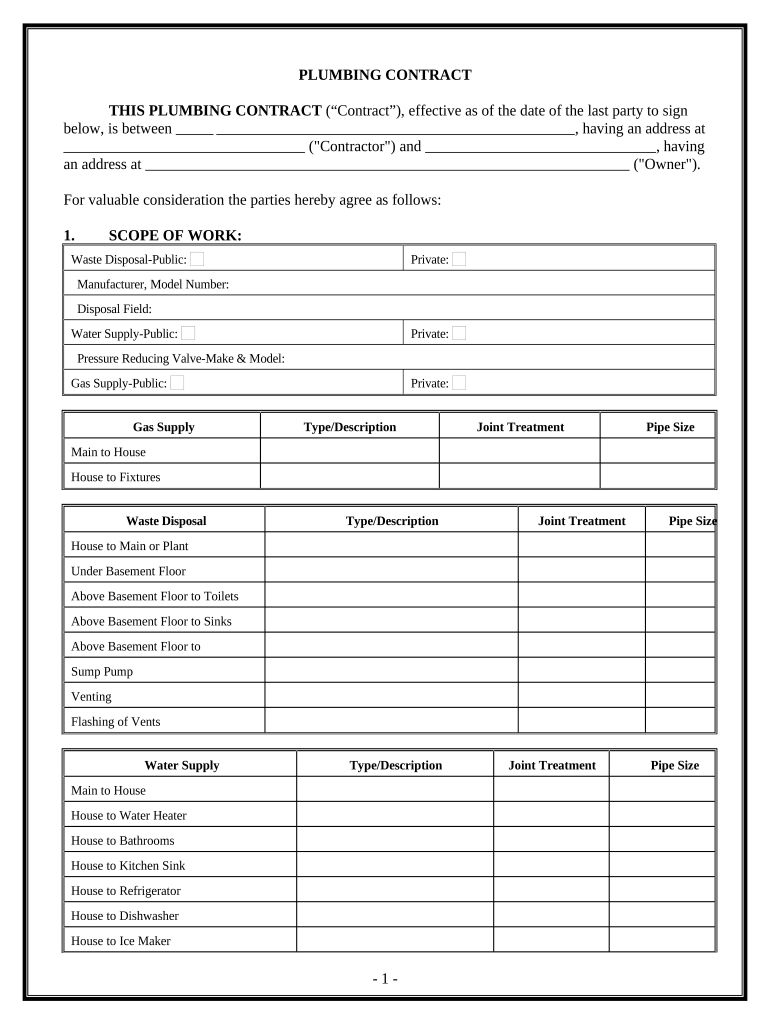
The Plumbing Contract for Contractor Washington is a legal document that outlines the terms and conditions between a contractor and a client for plumbing services in Washington State. This contract serves to protect both parties by clearly defining the scope of work, payment terms, and responsibilities. It is essential for ensuring that all aspects of the plumbing project are agreed upon before work begins, minimizing the potential for disputes.
How to use the Plumbing Contract For Contractor Washington
To effectively use the Plumbing Contract for Contractor Washington, both parties should carefully review the document to ensure all necessary details are included. This includes the project timeline, payment schedule, and specific plumbing tasks to be performed. Once both parties agree on the terms, they can proceed to sign the contract electronically, ensuring a legally binding agreement. Utilizing a reliable eSignature platform can streamline this process, making it efficient and secure.
Steps to complete the Plumbing Contract For Contractor Washington
Completing the Plumbing Contract for Contractor Washington involves several key steps:
- Gather necessary information, including contractor and client details.
- Outline the scope of work, including specific plumbing tasks and materials to be used.
- Establish payment terms, including total cost, deposit requirements, and payment schedule.
- Include any relevant state-specific regulations and compliance requirements.
- Review the contract with all parties involved to ensure clarity and agreement.
- Sign the contract electronically using a secure platform to finalize the agreement.
Legal use of the Plumbing Contract For Contractor Washington
The legal use of the Plumbing Contract for Contractor Washington hinges on its compliance with state laws and regulations governing construction contracts. It must include essential elements such as the names of the parties, a detailed description of the work to be performed, and the agreed-upon compensation. Additionally, electronic signatures are legally recognized in Washington, provided they meet specific criteria outlined in the ESIGN and UETA acts. This ensures that the contract is enforceable in a court of law.
Key elements of the Plumbing Contract For Contractor Washington
Several key elements must be included in the Plumbing Contract for Contractor Washington to ensure its effectiveness:
- Parties involved: Clearly identify the contractor and the client.
- Scope of work: Detail the plumbing services to be provided.
- Payment terms: Specify the total cost, deposit, and payment schedule.
- Timeline: Outline the expected start and completion dates for the project.
- Compliance: Include any relevant state laws and regulations.
- Signatures: Ensure both parties sign the document to validate the agreement.
State-specific rules for the Plumbing Contract For Contractor Washington
In Washington, plumbing contracts must adhere to specific state regulations to be legally binding. This includes compliance with the Washington State Department of Labor & Industries guidelines, which govern contractor licensing and bonding requirements. Additionally, the contract should reflect any local ordinances that may impact plumbing work, such as permit requirements and safety standards. Understanding these regulations is crucial for both contractors and clients to avoid legal issues and ensure a smooth project execution.
Quick guide on how to complete plumbing contract for contractor washington
Effortlessly Manage [SKS] on Any Device
Digital document management has gained traction among businesses and individuals alike. It offers a superb eco-friendly alternative to traditional printed and signed documents, allowing you to find the right template and securely keep it online. airSlate SignNow equips you with all the necessary tools to create, adjust, and electronically sign your documents quickly and without delays. Handle [SKS] on any device using the airSlate SignNow applications for Android or iOS and enhance any document-related process today.
How to Edit and Electronically Sign [SKS] with Ease
- Find [SKS] and click Get Form to begin.
- Utilize the tools we offer to complete your document.
- Emphasize important sections of the documents or obscure sensitive information using tools that airSlate SignNow provides specifically for that purpose.
- Generate your signature with the Sign tool, which takes mere seconds and carries the same legal validity as a conventional wet ink signature.
- Review the information and then click the Done button to save your changes.
- Select your preferred method to send your form, whether via email, text message (SMS), or invitation link, or download it to your computer.
No more concerns about lost or misplaced files, cumbersome form navigation, or errors that require printing new document copies. airSlate SignNow meets your document management needs in just a few clicks from any device of your choice. Edit and electronically sign [SKS] and ensure effective communication at every stage of your form preparation process with airSlate SignNow.
Create this form in 5 minutes or less
Related searches to Plumbing Contract For Contractor Washington
Create this form in 5 minutes!
People also ask
- 
                                
                                    
                                    
                                    What is a Plumbing Contract For Contractor Washington?
                                
                                A Plumbing Contract For Contractor Washington is a legally binding document that outlines the terms of service between a plumber and the client in Washington state. It typically includes details about project scope, payment terms, and timelines, ensuring both parties are aligned on expectations.
- 
                                
                                    
                                    
                                    How can I create a Plumbing Contract For Contractor Washington easily?
                                
                                You can easily create a Plumbing Contract For Contractor Washington using airSlate SignNow's user-friendly platform. With customizable templates and intuitive tools, you can design a contract that meets your specific needs without any hassle.
- 
                                
                                    
                                    
                                    What features are included in the Plumbing Contract For Contractor Washington template?
                                
                                The Plumbing Contract For Contractor Washington template from airSlate SignNow includes essential features like editable fields for project details, automated signature requests, and compliance with Washington state regulations. These features streamline the contract process, allowing for quick and easy execution.
- 
                                
                                    
                                    
                                    Is airSlate SignNow cost-effective for managing Plumbing Contracts For Contractor Washington?
                                
                                Yes, airSlate SignNow offers a cost-effective solution for managing Plumbing Contracts For Contractor Washington. With competitive pricing plans, you can benefit from an efficient document management system tailored to contractors' needs without breaking the bank.
- 
                                
                                    
                                    
                                    What are the benefits of using airSlate SignNow for Plumbing Contracts For Contractor Washington?
                                
                                Using airSlate SignNow for Plumbing Contracts For Contractor Washington enhances efficiency and reduces turnaround time. The platform allows for secure electronic signatures, easy tracking of contract status, and seamless collaboration between contractors and clients.
- 
                                
                                    
                                    
                                    Can I integrate airSlate SignNow with other software for managing Plumbing Contracts For Contractor Washington?
                                
                                Yes, airSlate SignNow enables integration with various software applications, making it easy to manage Plumbing Contracts For Contractor Washington alongside your existing tools. These integrations facilitate streamlined workflows, improving overall productivity and organization.
- 
                                
                                    
                                    
                                    How does eSigning a Plumbing Contract For Contractor Washington work?
                                
                                eSigning a Plumbing Contract For Contractor Washington with airSlate SignNow is straightforward. After drafting your contract, you can send it to clients via email, and they can review and sign it electronically, ensuring a quick and secure contract execution process.
Get more for Plumbing Contract For Contractor Washington
- Vacant land real estate sale agreement form
- Independent contractor questionnaire illinois unemployment insurance act ibis ides illinois form
- Ssa gov pubs en 05 10069 pdf form
- Buildable lot research request form seminole county government seminolecountyfl
- Application for tc from college form
- Permission letter for ncc camp from parents form
- Metlife 401k terms of withdrawal form
- School bus pass form
Find out other Plumbing Contract For Contractor Washington
- How Can I Sign Georgia Orthodontists Purchase Order Template
- Sign Georgia Orthodontists Work Order Online
- Can I Sign Georgia Orthodontists Purchase Order Template
- Sign Georgia Orthodontists Work Order Computer
- Sign Florida Orthodontists Notice To Quit Secure
- Sign Georgia Orthodontists Affidavit Of Heirship Online
- Sign Georgia Orthodontists Work Order Mobile
- Sign Georgia Orthodontists Affidavit Of Heirship Computer
- Sign Florida Orthodontists Notice To Quit Fast
- Sign Georgia Orthodontists Affidavit Of Heirship Mobile
- Sign Georgia Orthodontists Affidavit Of Heirship Now
- Sign Georgia Orthodontists Work Order Now
- Sign Georgia Orthodontists Affidavit Of Heirship Later
- Sign Georgia Orthodontists Affidavit Of Heirship Myself
- Sign Georgia Orthodontists Work Order Later
- Sign Georgia Orthodontists Affidavit Of Heirship Free
- Sign Florida Orthodontists Notice To Quit Simple
- Sign Georgia Orthodontists Affidavit Of Heirship Secure
- Sign Georgia Orthodontists Work Order Myself
- Sign Georgia Orthodontists Affidavit Of Heirship Fast