
Mobile Home Purchase Agreement Printable Form


What is the mobile home purchase agreement printable
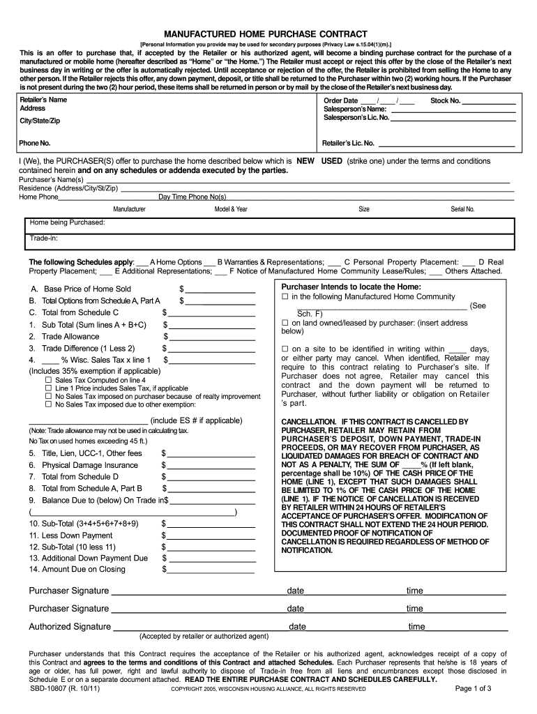
The mobile home purchase agreement printable is a legal document used to outline the terms and conditions of buying a mobile home. This agreement serves as a binding contract between the buyer and the seller, detailing essential aspects such as the purchase price, financing terms, and any contingencies. It is crucial for both parties to understand their rights and obligations as stipulated in this document.
How to use the mobile home purchase agreement printable
Using the mobile home purchase agreement printable involves several steps. First, both the buyer and seller should review the document carefully to ensure all necessary information is included. This includes details like the property description, purchase price, and payment terms. Once both parties agree on the terms, they can proceed to sign the agreement. It is advisable to keep a copy for personal records and provide one to each party involved.
Steps to complete the mobile home purchase agreement printable
Completing the mobile home purchase agreement printable requires attention to detail. Here are the steps to follow:
- Download the printable mobile home purchase agreement from a trusted source.
- Fill in the buyer's and seller's names and contact information.
- Provide a detailed description of the mobile home, including its location and any included fixtures.
- Specify the purchase price and any deposit amounts required.
- Outline the financing terms, including loan details if applicable.
- Include any contingencies, such as inspections or financing approval.
- Both parties should sign and date the agreement.
Legal use of the mobile home purchase agreement printable
The mobile home purchase agreement printable is legally binding when executed correctly. For it to hold legal weight, it must be signed by both parties, and each party should receive a copy. Compliance with state laws regarding mobile home transactions is also essential. This ensures that the agreement adheres to local regulations, protecting the interests of both the buyer and seller.
Key elements of the mobile home purchase agreement printable
Several key elements must be included in the mobile home purchase agreement printable to ensure it is comprehensive and legally sound. These elements include:
- Buyer and Seller Information: Names, addresses, and contact details.
- Property Description: Detailed information about the mobile home and its location.
- Purchase Price: The total amount agreed upon for the sale.
- Payment Terms: Information on deposits, financing, and payment schedules.
- Contingencies: Conditions that must be met for the sale to proceed.
- Signatures: Signatures of both parties and the date of signing.
State-specific rules for the mobile home purchase agreement printable
State-specific rules may influence the mobile home purchase agreement printable. Each state has its own regulations regarding mobile home sales, including disclosure requirements and title transfer processes. It is important for both buyers and sellers to familiarize themselves with their state's laws to ensure compliance. Consulting with a real estate attorney or local housing authority can provide clarity on these regulations.
Quick guide on how to complete mobile home purchase agreement printable
Complete mobile home purchase agreement printable seamlessly on any device
Digital document management has become increasingly favored by companies and individuals alike. It offers an ideal eco-friendly option to traditional printed and signed papers, as you can access the necessary forms and securely store them online. airSlate SignNow equips you with all the resources required to create, modify, and eSign your documents quickly and efficiently. Manage printable mobile home purchase agreement on any platform using the airSlate SignNow apps for Android or iOS and enhance any document-oriented workflow today.
The easiest way to alter and eSign mobile home purchase contract effortlessly
- Find home purchase agreement and click Get Form to begin.
- Use the tools we offer to complete your form.
- Highlight essential sections of the documents or obscure sensitive information with the tools provided by airSlate SignNow specifically for this purpose.
- Create your electronic signature with the Sign tool, which takes moments and carries the same legal validity as a conventional ink signature.
- Review all the details and then click on the Done button to save your updates.
- Select your preferred method to submit your form, whether by email, text message (SMS), or invitation link, or download it to your computer.
Say goodbye to lost or misplaced documents, tedious form hunting, or errors that necessitate reprinting new copies. airSlate SignNow meets your document management needs in just a few clicks from your chosen device. Modify and eSign mobile home purchase agreement and ensure outstanding communication at every step of your form preparation process with airSlate SignNow.
Create this form in 5 minutes or less
Create this form in 5 minutes!
How to create an eSignature for the home purchase agreement
How to create an electronic signature for a PDF online
How to create an electronic signature for a PDF in Google Chrome
How to create an e-signature for signing PDFs in Gmail
How to create an e-signature right from your smartphone
How to create an e-signature for a PDF on iOS
How to create an e-signature for a PDF on Android
People also ask mobile home purchase agreement printable
-
What is a printable mobile home purchase agreement?
A printable mobile home purchase agreement is a legal document that outlines the terms and conditions of a mobile home sale. It typically includes details such as buyer and seller information, sale price, and signatures. This agreement serves to protect both parties during the transaction.
-
How can I create a printable mobile home purchase agreement using airSlate SignNow?
You can easily create a printable mobile home purchase agreement using airSlate SignNow by selecting a customizable template. Our platform allows you to edit fields as needed, ensuring the document meets your specific requirements. Once completed, you can download it as a PDF or print it directly.
-
Is the printable mobile home purchase agreement legally binding?
Yes, a printable mobile home purchase agreement is legally binding once both parties sign it. airSlate SignNow ensures that all signatures are securely captured and verified, providing both parties with a legally enforceable document. It's essential to comply with local laws regarding real estate agreements.
-
What are the benefits of using airSlate SignNow for my mobile home purchase agreement?
Using airSlate SignNow for your mobile home purchase agreement offers numerous benefits, including ease of use and efficient document management. With features like eSigning and real-time tracking, you can streamline the entire process. Additionally, you get access to professional templates that save you time and effort.
-
Are there any costs associated with using airSlate SignNow for a printable mobile home purchase agreement?
AirSlate SignNow offers several pricing plans tailored to different business needs. You can access a free trial to explore the platform, after which a subscription will grant you unlimited access to features, including the creation of printable mobile home purchase agreements. It's a cost-effective solution for document management.
-
Can I integrate airSlate SignNow with other software for my mobile home purchase agreement?
Yes, airSlate SignNow integrates seamlessly with various software applications, including CRM systems and cloud storage solutions. This capability allows you to manage your printable mobile home purchase agreements more efficiently and enhance workflow processes. Our integrations help consolidate your documentation needs in one place.
-
What features should I look for in a printable mobile home purchase agreement?
When choosing a printable mobile home purchase agreement, ensure it includes essential features like editable fields, a clear layout, and eSignature capabilities. Additional functionalities, such as document tracking and secure cloud storage, can enhance your experience. AirSlate SignNow provides all these features and more.
Get more for home purchase agreement pdf
- Std 678 application form pdf 6c86b9e76c8bc169e6fea8300870bc11 std 678 application form jyet
- Appprospectiveauthorquestionnaire worddoc appi form
- Retail sales employee evaluation form pdf retail sales employee evaluation form pdf kudaponi 96
- Rental agreement dailymanagementresortscom form
- Get 405832387 form
- Incident commander alaska intrastate mutual aid system state of mutualaid alaska form
- Mazerunner warranty for public release december 6 form
- My medications list uc davis health ucdmc ucdavis form
Find out other ct mobile home purchase agreement
- eSign Kansas Orthodontists Stock Certificate Computer
- eSign Kansas Orthodontists Stock Certificate Mobile
- eSign Kansas Orthodontists Stock Certificate Later
- eSign Kansas Orthodontists Stock Certificate Now
- eSign Kansas Orthodontists Permission Slip Mobile
- eSign Kansas Orthodontists Stock Certificate Myself
- eSign Kansas Orthodontists Stock Certificate Free
- eSign Kansas Orthodontists Stock Certificate Secure
- How To eSign Kansas Orthodontists Permission Slip
- eSign Kansas Orthodontists Permission Slip Now
- eSign Kansas Orthodontists Stock Certificate Fast
- eSign Kansas Orthodontists Stock Certificate Simple
- How Do I eSign Kansas Orthodontists Permission Slip
- eSign Kansas Orthodontists Stock Certificate Easy
- eSign Kansas Orthodontists Permission Slip Later
- eSign Kansas Orthodontists Stock Certificate Safe
- Help Me With eSign Kansas Orthodontists Permission Slip
- eSign Arizona Plumbing Work Order Online
- How Can I eSign Kansas Orthodontists Permission Slip
- eSign Kansas Orthodontists Permission Slip Myself