
Trap Grease Hauling Service Agreement Clean Form


What is the Trap Grease Hauling Service Agreement Clean
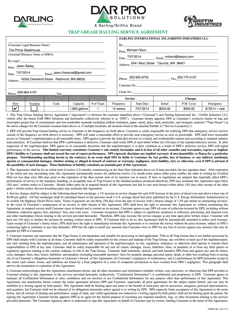
The Trap Grease Hauling Service Agreement Clean is a legal document that outlines the terms and conditions under which grease hauling services are provided. This agreement typically includes details about the responsibilities of both the service provider and the client, ensuring clarity and mutual understanding. It is essential for maintaining compliance with local regulations concerning waste disposal and environmental protection. The agreement serves to protect both parties by specifying the scope of services, payment terms, and liability clauses.
Key elements of the Trap Grease Hauling Service Agreement Clean
Several key elements are crucial in the Trap Grease Hauling Service Agreement Clean. These include:
- Parties Involved: Identification of the service provider and the client.
- Scope of Services: Detailed description of the grease hauling services to be performed.
- Payment Terms: Information on fees, payment schedules, and acceptable payment methods.
- Compliance: Assurance that all services will adhere to local, state, and federal regulations.
- Termination Clause: Conditions under which either party may terminate the agreement.
- Liability and Indemnification: Provisions that outline liability limits and indemnification responsibilities.
Steps to complete the Trap Grease Hauling Service Agreement Clean
Completing the Trap Grease Hauling Service Agreement Clean involves several straightforward steps:
- Gather Information: Collect necessary details about the service provider and the client.
- Fill Out the Agreement: Input relevant information in the designated sections of the form.
- Review Terms: Ensure all terms and conditions are clearly stated and understood by both parties.
- Sign the Document: Both parties should sign the agreement electronically or in person, as preferred.
- Distribute Copies: Provide copies of the signed agreement to all parties involved for their records.
Legal use of the Trap Grease Hauling Service Agreement Clean
The legal use of the Trap Grease Hauling Service Agreement Clean is vital for ensuring that both parties are protected under the law. This agreement must comply with applicable local and state regulations regarding waste management and environmental standards. When properly executed, the agreement is enforceable in a court of law, providing a legal framework for resolving disputes that may arise between the service provider and the client. It is advisable to consult legal counsel to ensure that the agreement meets all necessary legal requirements.
How to obtain the Trap Grease Hauling Service Agreement Clean
Obtaining the Trap Grease Hauling Service Agreement Clean can be done through various means. Many service providers offer their own templates, which can be customized to fit specific needs. Additionally, online legal resources may provide downloadable versions of the agreement. It is essential to ensure that any version used complies with local regulations and includes all necessary elements to be legally binding. Consulting with a legal professional can also help in acquiring a tailored agreement that meets specific business requirements.
Examples of using the Trap Grease Hauling Service Agreement Clean
Examples of using the Trap Grease Hauling Service Agreement Clean can vary widely among different businesses. For instance:
- A restaurant may use the agreement to formalize a contract with a local grease hauling service to ensure proper disposal of cooking oils.
- A commercial kitchen could implement the agreement to outline the frequency of service and specific waste management practices.
- A food processing plant might require a detailed agreement to comply with environmental regulations while managing large volumes of waste.
Quick guide on how to complete trap grease hauling service agreement clean
Finish [SKS] effortlessly on any device
Digital document management has gained traction among organizations and individuals. It offers an ideal eco-friendly substitute for conventional printed and signed documents, allowing you to obtain the necessary form and securely store it online. airSlate SignNow equips you with all the tools needed to create, modify, and eSign your documents swiftly without any holdups. Manage [SKS] on any platform using airSlate SignNow's Android or iOS applications and enhance any document-driven process today.
The simplest way to modify and eSign [SKS] with ease
- Locate [SKS] and click on Get Form to begin.
- Utilize the tools we offer to complete your form.
- Emphasize pertinent sections of your documents or conceal sensitive information using tools that airSlate SignNow provides specifically for this purpose.
- Craft your signature with the Sign tool, which takes mere seconds and holds the same legal standing as a traditional wet ink signature.
- Verify all the information and click on the Done button to save your changes.
- Choose how you wish to send your form, whether by email, text message (SMS), invitation link, or download it to your computer.
Say goodbye to lost or misfiled documents, lengthy form searching, or mistakes that necessitate printing new document copies. airSlate SignNow fulfills your document management needs in several clicks from any device of your choice. Alter and eSign [SKS] and ensure seamless communication at any stage of the form preparation journey with airSlate SignNow.
Create this form in 5 minutes or less
Related searches to Trap Grease Hauling Service Agreement Clean
Create this form in 5 minutes!
How to create an eSignature for the trap grease hauling service agreement clean
How to create an electronic signature for a PDF online
How to create an electronic signature for a PDF in Google Chrome
How to create an e-signature for signing PDFs in Gmail
How to create an e-signature right from your smartphone
How to create an e-signature for a PDF on iOS
How to create an e-signature for a PDF on Android
People also ask
-
What is a Trap Grease Hauling Service Agreement Clean?
A Trap Grease Hauling Service Agreement Clean is a formal document that outlines the terms and conditions for the collection and disposal of grease trap waste. This agreement ensures that service providers operate in compliance with local regulations, maintaining a clean environment. By signing this agreement, businesses can streamline their waste management processes.
-
How does the Trap Grease Hauling Service Agreement Clean benefit my business?
The Trap Grease Hauling Service Agreement Clean offers numerous benefits, such as enhanced compliance with health and safety regulations. It also prevents costly fines and service interruptions by ensuring regular grease disposal. Furthermore, it protects your business’s reputation by ensuring a clean and hygienic operation.
-
What features are included in the Trap Grease Hauling Service Agreement Clean?
The Trap Grease Hauling Service Agreement Clean typically includes details on service frequency, pricing, and the responsibilities of both parties. It may also outline emergency response procedures and maintenance schedules. These features ensure a comprehensive understanding and management of grease trap services.
-
Is the Trap Grease Hauling Service Agreement Clean cost-effective?
Yes, the Trap Grease Hauling Service Agreement Clean is designed to be cost-effective, helping businesses save money on potential fines and emergency clean-up services. By establishing a regular service schedule, companies can also plan their budgets more efficiently. Overall, investing in a clean service agreement ultimately protects your bottom line.
-
Can I customize the Trap Grease Hauling Service Agreement Clean for my business's needs?
Absolutely! The Trap Grease Hauling Service Agreement Clean can be tailored to meet the unique needs of your business. Customizable elements may include service frequency, types of waste handled, and additional clauses that address specific operational requirements. This flexibility ensures you have a service agreement that works for you.
-
How can I ensure compliance with my Trap Grease Hauling Service Agreement Clean?
To ensure compliance with your Trap Grease Hauling Service Agreement Clean, regularly review and adhere to the terms outlined in the document. Maintaining clear communication with your service provider and staying informed about local regulations is also critical. Documentation and timely waste disposal are essential for smooth operations.
-
What integrations are available with the Trap Grease Hauling Service Agreement Clean?
Integrations available for the Trap Grease Hauling Service Agreement Clean may include various management and scheduling software. These integrations streamline service scheduling, tracking, and payment processes. By incorporating these technologies, businesses can ensure a more efficient operation and accountability throughout the service agreement.
Get more for Trap Grease Hauling Service Agreement Clean
Find out other Trap Grease Hauling Service Agreement Clean
- eSign South Carolina Orthodontists Lease Agreement Template Now
- eSign South Carolina Orthodontists Lease Agreement Template Later
- eSign Plumbing PPT New Hampshire Safe
- eSign South Carolina Orthodontists Lease Agreement Template Myself
- eSign Nebraska Plumbing Business Letter Template Secure
- eSign South Carolina Orthodontists Lease Agreement Template Free
- eSign South Carolina Orthodontists Lease Agreement Template Secure
- eSign Nebraska Plumbing Business Letter Template Fast
- eSign South Carolina Orthodontists Lease Agreement Template Fast
- eSign South Carolina Orthodontists Lease Agreement Template Simple
- eSign South Carolina Orthodontists Lease Agreement Template Easy
- eSign South Carolina Orthodontists Lease Agreement Template Safe
- eSign Nebraska Plumbing Business Letter Template Simple
- eSign Nebraska Plumbing Confidentiality Agreement Online
- eSign Nevada Plumbing Resignation Letter Online
- eSign Nevada Plumbing Resignation Letter Computer
- eSign Nebraska Plumbing Confidentiality Agreement Computer
- eSign Nebraska Plumbing Business Letter Template Easy
- eSign Nevada Plumbing Resignation Letter Mobile
- eSign Nevada Plumbing Resignation Letter Now