
Untitled Standard Form Apartment Lease Simplified Self Extending


What is the standard form apartment lease?
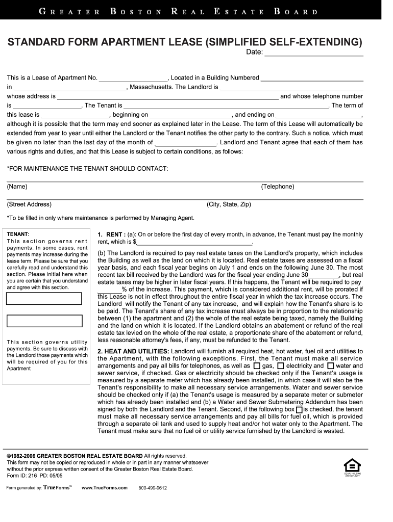
The standard form apartment lease is a legally binding document that outlines the terms and conditions under which a tenant agrees to rent an apartment from a landlord. This lease typically includes essential information such as the rental amount, duration of the lease, security deposit requirements, and rules regarding the use of the property. It serves to protect both parties by clearly defining their rights and responsibilities throughout the rental period.
Key elements of the standard form apartment lease
Understanding the key elements of a standard form apartment lease is crucial for both tenants and landlords. Important components include:
- Lease duration: Specifies the length of time the lease is valid, often ranging from six months to one year.
- Rent amount: Details the monthly rent and any additional fees, such as utilities or maintenance costs.
- Security deposit: Outlines the amount required to cover potential damages or unpaid rent.
- Maintenance responsibilities: Clarifies who is responsible for repairs and upkeep of the property.
- Termination conditions: Defines the process for ending the lease, including notice periods and penalties for early termination.
Steps to complete the standard form apartment lease
Completing the standard form apartment lease involves several important steps:
- Review the lease: Carefully read through the entire document to understand all terms and conditions.
- Negotiate terms: Discuss any terms that may need adjustment with the landlord before finalizing the lease.
- Provide necessary information: Fill in personal details, including names, addresses, and contact information.
- Sign the lease: Both parties should sign the document, either physically or electronically, to make it legally binding.
- Keep a copy: Ensure that both the tenant and landlord retain a signed copy for their records.
Legal use of the standard form apartment lease
The legal use of the standard form apartment lease is governed by state and federal laws. It is essential for the lease to comply with local regulations regarding tenant rights, eviction processes, and fair housing practices. Both parties should be aware of their legal obligations and rights as outlined in the lease, ensuring that the document adheres to relevant laws to avoid disputes.
State-specific rules for the standard form apartment lease
State-specific rules can significantly affect the terms of a standard form apartment lease. Each state has its own regulations regarding:
- Security deposits: Limits on the amount that can be charged and the timeline for returning deposits.
- Notice requirements: Laws governing how much notice must be given before terminating a lease.
- Rent control: Regulations that may limit how much rent can be increased each year.
It is important for both tenants and landlords to familiarize themselves with these rules to ensure compliance and protect their rights.
Quick guide on how to complete standard form apartment lease
Effortlessly Prepare standard form apartment lease on Any Device
Digital document management has become increasingly popular among businesses and individuals. It serves as an ideal eco-friendly alternative to traditional printed and signed paperwork, allowing you to access the necessary form and securely store it online. airSlate SignNow equips you with all the essential tools to create, edit, and electronically sign your documents swiftly and without interruptions. Manage standard form apartment lease on any device using the airSlate SignNow Android or iOS applications and enhance your document-centric processes today.
How to Modify and Electronically Sign standard form apartment lease with Ease
- Find standard form apartment lease and select Get Form to begin.
- Utilize the tools we provide to complete your document.
- Mark important sections of the documents or redact sensitive details with tools that airSlate SignNow specifically provides for that purpose.
- Generate your signature using the Sign tool, which takes mere seconds and holds the same legal authority as a conventional wet ink signature.
- Review the details and click on the Done button to save your modifications.
- Choose your preferred method for submitting your form—via email, text message (SMS), invitation link, or download it to your computer.
Eliminate the worry of lost or misplaced documents, tedious form searches, or mistakes that require printing new document copies. airSlate SignNow addresses all your document management needs in just a few clicks from any device you select. Edit and eSign standard form apartment lease to ensure effective communication at every step of your form preparation journey with airSlate SignNow.
Create this form in 5 minutes or less
Related searches to standard form apartment lease
Create this form in 5 minutes!
How to create an eSignature for the standard form apartment lease
How to create an electronic signature for a PDF online
How to create an electronic signature for a PDF in Google Chrome
How to create an e-signature for signing PDFs in Gmail
How to create an e-signature right from your smartphone
How to create an e-signature for a PDF on iOS
How to create an e-signature for a PDF on Android
People also ask standard form apartment lease
-
What is a standard form apartment lease?
A standard form apartment lease is a legal document that outlines the terms and conditions between a landlord and tenant for renting an apartment. It typically includes details on rent amounts, lease duration, and responsibilities of both parties. Using airSlate SignNow, you can easily create and send this document for electronic signature.
-
How does airSlate SignNow simplify the standard form apartment lease process?
airSlate SignNow streamlines the standard form apartment lease process by allowing you to create, fill out, and eSign the document online. This eliminates the need for physical paperwork and speeds up the leasing process. You can send the lease directly to tenants for their signatures, ensuring a seamless transaction.
-
What features does airSlate SignNow offer for managing standard form apartment leases?
airSlate SignNow offers features such as customizable templates, real-time tracking, and secure cloud storage for your standard form apartment lease. You can also set reminders for lease renewals and automatically generate reports. These features enhance efficiency and organization in managing rental agreements.
-
Is airSlate SignNow cost-effective for managing standard form apartment leases?
Yes, airSlate SignNow provides a cost-effective solution for managing standard form apartment leases. With competitive pricing plans that cater to businesses of all sizes, you can save on printing and mailing costs. The ability to eSign documents also reduces delays, helping you manage leases more efficiently.
-
Can I integrate airSlate SignNow with other software for my apartment leasing processes?
Absolutely! airSlate SignNow integrates with various CRM and property management software to enhance your apartment leasing processes. This allows you to synchronize tenant information and streamline document management, making it easier to handle standard form apartment leases alongside other operations.
-
What are the benefits of using airSlate SignNow for a standard form apartment lease?
Using airSlate SignNow for your standard form apartment lease offers numerous benefits, including faster transactions and improved security. Digital signatures are legally binding, and you can track who signed the lease in real-time. Additionally, having an online system reduces physical paperwork and storage needs.
-
How secure is my data when using airSlate SignNow for standard form apartment leases?
Security is a top priority at airSlate SignNow. All documents, including standard form apartment leases, are encrypted and stored securely in compliance with industry standards. This ensures that your data remains protected from unauthorized access throughout the signing process.
Get more for standard form apartment lease
- Dept of agriculture dept of commerce rutgers university libraries libraries rutgers form
- Application supplement for transfers admissions university of enrollment rochester form
- Application for employment complete 4 12 chism brothers painting form
- Effective strategies for aggressive memory optimization eng umd form
- A budget for all californians cbp form
- Legislative district california budget project cbp form
- Instructions for florida famil y la v able legal forms
- Data definitions table cals uidaho form
Find out other standard form apartment lease
- eSignature Oklahoma Construction Affidavit Of Heirship Computer
- How To eSignature Rhode Island Construction Arbitration Agreement
- eSignature Rhode Island Construction Arbitration Agreement Safe
- eSignature Oklahoma Construction Affidavit Of Heirship Mobile
- How Do I eSignature Rhode Island Construction Arbitration Agreement
- How To eSignature Oklahoma Construction Affidavit Of Heirship
- How Do I eSignature Oklahoma Construction Affidavit Of Heirship
- Help Me With eSignature Rhode Island Construction Arbitration Agreement
- Help Me With eSignature Oklahoma Construction Affidavit Of Heirship
- How Can I eSignature Oklahoma Construction Affidavit Of Heirship
- eSignature Oklahoma Construction Affidavit Of Heirship Now
- How Can I eSignature Rhode Island Construction Arbitration Agreement
- Can I eSignature Oklahoma Construction Affidavit Of Heirship
- Can I eSignature Rhode Island Construction Arbitration Agreement
- eSignature Oklahoma Construction Affidavit Of Heirship Later
- eSignature Oregon Construction Profit And Loss Statement Online
- eSignature Oregon Construction Profit And Loss Statement Computer
- eSignature Oregon Construction Profit And Loss Statement Mobile
- eSignature Oklahoma Construction Affidavit Of Heirship Myself
- eSignature Oregon Construction Profit And Loss Statement Now