
NewJerseyOfficeofEmergencyManagementNJOEMPRELIMINARYDAMAGEASSESSMENTPDAFORM


What is the New Jersey Office of Emergency Management Preliminary Damage Assessment (PDA) Form?
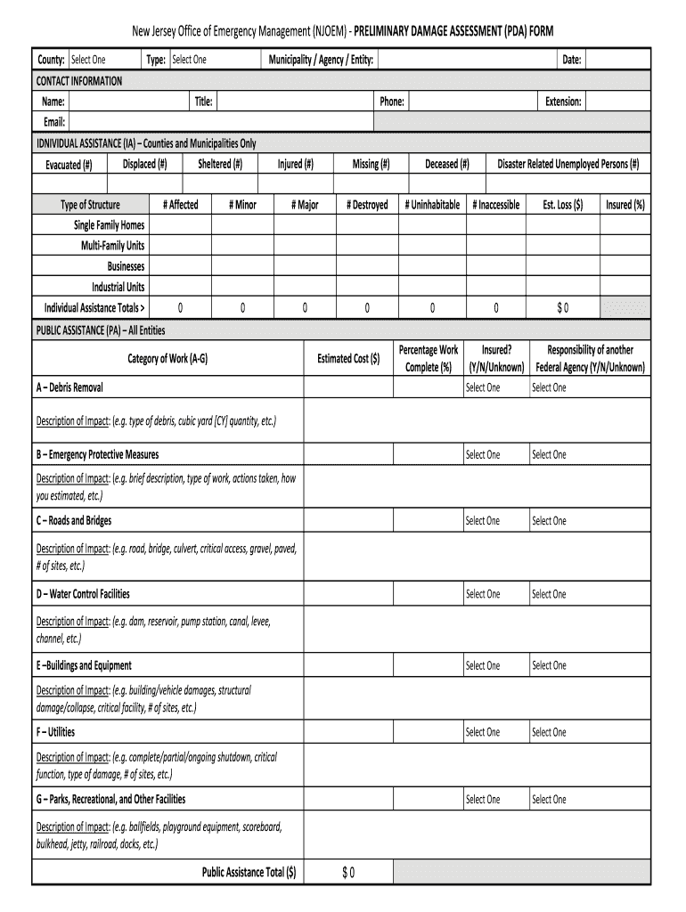
The New Jersey Office of Emergency Management Preliminary Damage Assessment (NJOEM PDA Form) is a critical document used to assess the extent of damage following a disaster. This form is designed to collect information on the impact of disasters on individuals, businesses, and the community. The data gathered through this form helps state and federal agencies determine the level of assistance required for recovery efforts. It is essential for ensuring that affected areas receive the necessary resources to rebuild and recover.
How to Use the New Jersey Office of Emergency Management Preliminary Damage Assessment (PDA) Form
Using the NJOEM PDA Form involves several steps to ensure accurate and comprehensive reporting of damages. First, gather all relevant information regarding the disaster's impact on property, infrastructure, and personal belongings. Next, fill out the form by providing detailed descriptions of the damages, including estimated costs for repairs and any immediate needs. It is important to be as specific as possible to facilitate the assessment process. Once completed, the form should be submitted to the appropriate local or state authorities for review.
Steps to Complete the New Jersey Office of Emergency Management Preliminary Damage Assessment (PDA) Form
Completing the NJOEM PDA Form requires careful attention to detail. Follow these steps:
- Collect information on all affected properties and infrastructure.
- Document the type and extent of damages, including photographs if possible.
- Estimate the costs associated with repairs and recovery.
- Fill out the form accurately, ensuring all sections are completed.
- Review the form for any errors or omissions before submission.
- Submit the completed form to your local emergency management office.
Key Elements of the New Jersey Office of Emergency Management Preliminary Damage Assessment (PDA) Form
The NJOEM PDA Form includes several key elements that are vital for a thorough assessment. These elements typically consist of:
- Contact information for the individual or organization completing the form.
- Details about the disaster event, including dates and types of incidents.
- Descriptions of damaged properties and infrastructure.
- Estimated costs for repairs and recovery efforts.
- Information on any immediate needs for assistance.
Legal Use of the New Jersey Office of Emergency Management Preliminary Damage Assessment (PDA) Form
The NJOEM PDA Form is legally recognized for the purpose of disaster assessment and recovery. It is essential for individuals and businesses to complete this form accurately to ensure compliance with state and federal regulations. The information provided can impact the allocation of disaster relief funds and resources. Therefore, it is crucial to understand that submitting false or misleading information can result in legal consequences.
Form Submission Methods for the New Jersey Office of Emergency Management Preliminary Damage Assessment (PDA) Form
The NJOEM PDA Form can typically be submitted through various methods to accommodate different preferences. Common submission methods include:
- Online submission through designated state emergency management portals.
- Mailing a physical copy of the form to the local emergency management office.
- In-person submission at local or state government offices.
Each method may have specific requirements or deadlines, so it is advisable to check with local authorities for the most current information.
Quick guide on how to complete newjerseyofficeofemergencymanagementnjoempreliminarydamageassessmentpdaform
Effortlessly Prepare [SKS] on Any Device
Managing documents online has gained traction among businesses and individuals alike. It offers a fantastic eco-friendly substitute for traditional printed and signed documents, as you can obtain the correct form and safely organize it online. airSlate SignNow equips you with all the essential tools to create, modify, and electronically sign your documents quickly and without delays. Handle [SKS] on any device using airSlate SignNow's Android or iOS applications and streamline any document-related process today.
How to Edit and Electronically Sign [SKS] with Ease
- Obtain [SKS] and click Get Form to begin.
- Utilize the tools we offer to complete your form.
- Emphasize important sections of your documents or obscure confidential information with the tools that airSlate SignNow specifically provides for that purpose.
- Create your electronic signature using the Sign feature, which takes mere seconds and carries the same legal validity as a conventional ink signature.
- Review the details and click the Done button to save your adjustments.
- Choose your preferred method for delivering your form: via email, SMS, invitation link, or download it to your computer.
Say goodbye to lost or mislaid documents, tedious form searching, or mistakes that necessitate reprinting new copies. airSlate SignNow meets all your document management requirements in just a few clicks from any device you prefer. Edit and electronically sign [SKS] to ensure excellent communication at every step of the form preparation process with airSlate SignNow.
Create this form in 5 minutes or less
Related searches to NewJerseyOfficeofEmergencyManagementNJOEMPRELIMINARYDAMAGEASSESSMENTPDAFORM
Create this form in 5 minutes!
How to create an eSignature for the newjerseyofficeofemergencymanagementnjoempreliminarydamageassessmentpdaform
How to create an electronic signature for a PDF online
How to create an electronic signature for a PDF in Google Chrome
How to create an e-signature for signing PDFs in Gmail
How to create an e-signature right from your smartphone
How to create an e-signature for a PDF on iOS
How to create an e-signature for a PDF on Android
People also ask
-
What is the New Jersey Office of Emergency Management NJOEM Preliminary Damage Assessment PDA Form?
The New Jersey Office of Emergency Management NJOEM Preliminary Damage Assessment PDA Form is a critical document used to assess damage after an emergency incident. By utilizing the New Jersey Office of Emergency Management NJOEM Preliminary Damage Assessment PDA Form, organizations can efficiently report damages and request assistance, facilitating a quicker recovery process.
-
How can airSlate SignNow help with the New Jersey Office of Emergency Management NJOEM Preliminary Damage Assessment PDA Form?
airSlate SignNow simplifies the process of completing the New Jersey Office of Emergency Management NJOEM Preliminary Damage Assessment PDA Form by allowing users to eSign and share documents digitally. This speeds up the submission process and ensures that all necessary signatures are collected promptly, helping organizations respond effectively to emergencies.
-
What are the benefits of using airSlate SignNow for the NJOEM Preliminary Damage Assessment PDA Form?
Using airSlate SignNow to fill out the NJOEM Preliminary Damage Assessment PDA Form provides numerous benefits, including enhanced speed and convenience in document management. The platform allows for real-time collaboration and tracking, ensuring that teams can stay updated on the status of their submissions and recover more efficiently.
-
Is there a cost associated with using airSlate SignNow for the NJOEM Preliminary Damage Assessment PDA Form?
Yes, airSlate SignNow offers various pricing plans to suit different organizational needs, including options for small businesses and large enterprises. The cost-effective solution enables organizations to utilize the New Jersey Office of Emergency Management NJOEM Preliminary Damage Assessment PDA Form without breaking their budget, ensuring affordability in critical times.
-
Can I integrate airSlate SignNow with other tools to manage the NJOEM Preliminary Damage Assessment PDA Form?
Absolutely! airSlate SignNow offers seamless integrations with a variety of tools and platforms, making it easier to manage the New Jersey Office of Emergency Management NJOEM Preliminary Damage Assessment PDA Form. These integrations can enhance workflow efficiency and promote collaboration across departments.
-
What features does airSlate SignNow offer to support the NJOEM PDA Form process?
airSlate SignNow provides features such as eSigning, document templates, and secure cloud storage specifically designed to support the NJOEM PDA Form process. These features ensure that users can complete the New Jersey Office of Emergency Management NJOEM Preliminary Damage Assessment PDA Form with ease and confidence.
-
How secure is the information when using airSlate SignNow for the NJOEM Preliminary Damage Assessment PDA Form?
Security is a top priority for airSlate SignNow. When using the platform for the New Jersey Office of Emergency Management NJOEM Preliminary Damage Assessment PDA Form, users can trust that their data is protected through encryption and secure access controls, ensuring that sensitive information remains confidential.
Get more for NewJerseyOfficeofEmergencyManagementNJOEMPRELIMINARYDAMAGEASSESSMENTPDAFORM
- Ohio it 3 transmittal of w 2 statements instructions fillio form
- Tax forms the city of maumee oh
- H20222022instagram photos and videos form
- Schedule b interest dividends and certain capital gains and 627571471 form
- 2021 form 3581 tax deposit refund and transfer request
- Ia 1065 instructions 41 017 iowa department of revenue form
- Injured spouse claims vermont department of taxes form
- Do not file this draft form cloudfrontnet
Find out other NewJerseyOfficeofEmergencyManagementNJOEMPRELIMINARYDAMAGEASSESSMENTPDAFORM
- Can I eSignature New York Sports Memorandum Of Understanding
- eSignature New York Sports Memorandum Of Understanding Easy
- eSignature New York Sports Memorandum Of Understanding Safe
- eSignature Washington Real Estate Emergency Contact Form Online
- eSignature Washington Real Estate Emergency Contact Form Computer
- eSignature Washington Real Estate Emergency Contact Form Mobile
- eSignature Washington Real Estate Emergency Contact Form Now
- How To eSignature Washington Real Estate Emergency Contact Form
- eSignature Washington Real Estate Emergency Contact Form Later
- eSignature Washington Real Estate Emergency Contact Form Myself
- eSignature Washington Real Estate Emergency Contact Form Free
- How Do I eSignature Washington Real Estate Emergency Contact Form
- eSignature Washington Real Estate Emergency Contact Form Secure
- eSignature Washington Real Estate Emergency Contact Form Fast
- eSignature Virginia Real Estate Affidavit Of Heirship Online
- eSignature Washington Real Estate Emergency Contact Form Simple
- eSignature Washington Real Estate Emergency Contact Form Easy
- Help Me With eSignature Washington Real Estate Emergency Contact Form
- eSignature Virginia Real Estate Affidavit Of Heirship Computer
- eSignature Washington Real Estate Emergency Contact Form Safe