
Certificate Prime 2015-2025 Form


What is the AZ 5005 Form
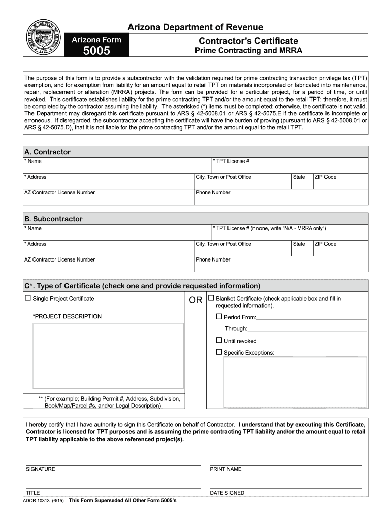
The AZ 5005 form, also known as the Arizona Tax Exemption Certificate, is a crucial document used by businesses and individuals to claim tax exemptions in the state of Arizona. This form serves as a formal declaration that the taxpayer qualifies for specific tax benefits under Arizona law. Understanding the purpose and function of the AZ 5005 form is essential for ensuring compliance with state tax regulations.
How to Use the AZ 5005 Form
Using the AZ 5005 form involves several steps to ensure that you accurately claim your tax exemption. First, obtain the form from the Arizona Department of Revenue or a trusted source. Next, fill out the required information, including your name, address, and the specific exemption you are claiming. It is important to provide accurate details to avoid delays or issues with your exemption request. After completing the form, submit it to the appropriate tax authority as instructed on the form.
Steps to Complete the AZ 5005 Form
Completing the AZ 5005 form requires careful attention to detail. Follow these steps:
- Download the AZ 5005 form from a reliable source.
- Fill in your personal information, including your full name and address.
- Specify the type of tax exemption you are applying for.
- Provide any additional information required by the form.
- Review the completed form for accuracy.
- Submit the form to the relevant tax authority, either online or via mail.
Legal Use of the AZ 5005 Form
The legal use of the AZ 5005 form is governed by Arizona tax laws. It is essential to understand that this form must be used in accordance with state regulations to ensure that the claimed exemptions are valid. Misuse of the form or providing false information can lead to penalties, including fines or disqualification from receiving tax benefits. Always consult with a tax professional if you have questions regarding the legal implications of using the AZ 5005 form.
Required Documents
When submitting the AZ 5005 form, certain supporting documents may be required to validate your claim for tax exemption. These documents can include:
- Proof of eligibility for the exemption (e.g., business licenses, nonprofit status).
- Identification documents, such as a driver's license or tax identification number.
- Any additional documentation specified by the Arizona Department of Revenue.
Ensuring that you have all necessary documents ready can facilitate a smoother application process.
Form Submission Methods
The AZ 5005 form can be submitted through various methods, providing flexibility for taxpayers. Options include:
- Online submission via the Arizona Department of Revenue's official website.
- Mailing a physical copy of the completed form to the designated tax office.
- In-person submission at local tax offices, if applicable.
Choosing the right submission method can depend on personal preference and the urgency of your exemption request.
Quick guide on how to complete 5005 tax
Your assistance manual on how to prepare your 5005 tax
If you’re wondering how to finish and send your certificate prime, here are a few concise guidelines to simplify the tax filing process.
To begin, you need to set up your airSlate SignNow account to revolutionize the way you manage documents online. airSlate SignNow is an extremely user-friendly and robust document solution that enables you to edit, draft, and finalize your tax documents with ease. With its editor, you can toggle between text, checkboxes, and eSignatures and revisit to amend responses as necessary. Streamline your tax administration with advanced PDF editing, eSigning, and user-friendly sharing.
Follow the steps below to complete your form 5005 arizona in just a few minutes:
- Set up your account and start working on PDFs right away.
- Utilize our directory to find any IRS tax form; explore different versions and schedules.
- Click Obtain form to access your arizona tax form 5005 in our editor.
- Fill out the necessary fillable fields with your information (text, numbers, check marks).
- Employ the Signature Tool to append your legally-binding eSignature (if required).
- Examine your document and remedy any mistakes.
- Save changes, print your copy, submit it to your recipient, and download it to your device.
Use this manual to electronically file your taxes with airSlate SignNow. Keep in mind that submitting on paper can increase return errors and postpone refunds. Naturally, before e-filing your taxes, verify the IRS website for filing guidelines in your jurisdiction.
Create this form in 5 minutes or less
Find and fill out the correct arizona 5005 form fillable
FAQs arizona 5005 form
-
How do I fill out a CLAT 2019 application form?
Hi thereFirst of all, let me tell you some important points:CLAT 2019 has gone OFFLINE this yearBut the application forms for CLAT 2019 have to be filled ONLINEThe payment of the application fees also should be made onlineNow, kindly note the important dates:Note the details regarding the application fees:Here, if you want the Previous Year Question papers, Rs.500 would be added to the application fees.Apart from this, there would be bank transaction charges added to the application fees.The application fees is non-refundable.Note one important point here that before you fill the application form, check for your eligibility.To know the complete details of filling the application form along with other information like the eligibility - in terms of age, educational qualification, list of NLUs participating and the seats offered under each category, CLAT Reservation policies, CLAT exam pattern, marking scheme, syllabus, important documents required to be kept ready before filling the form, kindly go to the link below:How to fill CLAT 2019 Application form? Registration OPEN | All you need to knowTo know how to prepare for one of the very important section of CLAT exam, GK and Current Affairs, kindly go to the link below:How to prepare GK & Current Affairs for CLAT 2019To practice, daily MCQs on Current Affairs, kindly go to the link below:#CLAT2019 | #AILET2019 | #DULLB2019 | GK and Current Affairs Series: 5 in 10 Series: Day 12For any other queries, kindly write to us at mailateasyway@gmail.comThanks & Regards!
-
How do I fill out the NEET 2019 application form?
Expecting application form of NEET2019 will be same as that of NEET2018, follow the instructions-For Feb 2019 Exam:EventsDates (Announced)Release of application form-1st October 2018Application submission last date-31st October 2018Last date to pay the fee-Last week of October 2018Correction Window Open-1st week of November 2018Admit card available-1st week of January 2019Exam date-3rd February to 17th February 2019Answer key & OMR release-Within a week after examAnnouncement of result-1st week of March 2019Counselling begins-2nd week of June 2019For May 2019 Exam:EventsDates (Announced)Application form Release-2nd week of March 2019Application submission last date-2nd week of April 2019Last date to pay the fee-2nd week of April 2019Correction Window Open-3rd week of April 2019Admit card available-1st week of May 2019Exam date-12th May to 26th May 2019Answer key & OMR release-Within a week after examAnnouncement of result-1st week of June 2019Counselling begins-2nd week of June 2019NEET 2019 Application FormCandidates should fill the application form as per the instructions given in the information bulletin. Below we are providing NEET 2019 application form details:The application form will be issued through online mode only.No application will be entertained through offline mode.NEET UG registration 2019 will be commenced from the 1st October 2018 (Feb Exam) & second week of March 2018 (May Exam).Candidates should upload the scanned images of recent passport size photograph and signature.After filling the application form completely, a confirmation page will be generated. Download it.There will be no need to send the printed confirmation page to the board.Application Fee:General and OBC candidates will have to pay Rs. 1400/- as an application fee.The application fee for SC/ST and PH candidates will be Rs. 750/-.Fee payment can be done through credit/debit card, net banking, UPI and e-wallet.Service tax will also be applicable.CategoryApplication FeeGeneral/OBC-1400/-SC/ST/PH-750/-Step 1: Fill the Application FormGo the official portal of the conducting authority (Link will be given above).Click on “Apply Online” link.A candidate has to read all the instruction and then click on “Proceed to Apply Online NEET (UG) 2019”.Step 1.1: New RegistrationFill the registration form carefully.Candidates have to fill their name, Mother’s Name, Father’s Name, Category, Date of Birth, Gender, Nationality, State of Eligibility (for 15% All India Quota), Mobile Number, Email ID, Aadhaar card number, etc.After filling all the details, two links will be given “Preview &Next” and “Reset”.If candidate satisfied with the filled information, then they have to click on “Next”.After clicking on Next Button, the information submitted by the candidate will be displayed on the screen. If information correct, click on “Next” button, otherwise go for “Back” button.Candidates may note down the registration number for further procedure.Now choose the strong password and re enter the password.Choose security question and feed answer.Enter the OTP would be sent to your mobile number.Submit the button.Step 1.2: Login & Application Form FillingLogin with your Registration Number and password.Fill personal details.Enter place of birth.Choose the medium of question paper.Choose examination centres.Fill permanent address.Fill correspondence address.Fill Details (qualification, occupation, annual income) of parents and guardians.Choose the option for dress code.Enter security pin & click on save & draft.Now click on preview and submit.Now, review your entries.Then. click on Final Submit.Step 2: Upload Photo and SignatureStep 2 for images upload will be appeared on screen.Now, click on link for Upload photo & signature.Upload the scanned images.Candidate should have scanned images of his latest Photograph (size of 10 Kb to 100 Kb.Signature(size of 3 Kb to 20 Kb) in JPEG format only.Step 3: Fee PaymentAfter uploading the images, candidate will automatically go to the link for fee payment.A candidate has to follow the instruction & submit the application fee.Choose the Bank for making payment.Go for Payment.Candidate can pay the fee through Debit/Credit Card/Net Banking/e-wallet (CSC).Step 4: Take the Printout of Confirmation PageAfter the fee payment, a candidate may take the printout of the confirmation page.Candidates may keep at least three copies of the confirmation page.Note:Must retain copy of the system generated Self Declaration in respect of candidates from J&K who have opted for seats under 15% All India Quota.IF any queries, feel free to comment..best of luck
-
How can I fill out the BITSAT Application Form 2019?
BITSAT 2019 Application Forms are available online. Students who are eligible for the admission test can apply online before 20 March 2018, 5 pm.Click here to apply for BITSAT 2019Step 1: Follow the link given aboveStep 2: Fill online application formPersonal Details12th Examination DetailsTest Centre PreferencesStep 3: Upload scanned photograph (4 kb to 50 kb) and signature ( 1 kb to 30 kb).Step 4: Pay application fee either through online payment mode or through e-challan (ICICI Bank)BITSAT-2019 Application FeeMale Candidates - Rs. 3150/-Female Candidates - Rs. 2650/-Thanks!
-
How can I fill out the COMEDK 2019 application form?
COMEDK 2019 application is fully online based and there is no need to send the application by post or by any other method. Check the below-mentioned guidelines to register for the COMEDK 2019 exam:Step 1 Visit the official website of the COMEDK UGET- comedk.orgStep 2 Click on “Engineering Application”.Step 3 After that click on “Login or Register” button.Step 4 You will be asked to enter the Application SEQ Number/User ID and Password. But since you have not registered. You need to click on the “Click here for Registration”.Step 5 Fill in the required details like “Full Name”, “DOB”, “Unique Photo ID Proof”, “Photo ID Proof Number”, “Email ID” and “Mobile Number”.Step 6 Then click on the “Generate OTP”Step 7 After that you need to enter the captcha code and then an OTP will be sent to the mobile number that you have provided.Step 8 A new window having your previously entered registration details will open where you need to enter the OTP.Step 9 Re-check all the details, enter the captcha code and click on the “Register” button.Step 10 After that a page will appear where you will be having the User ID and all the details that you entered. Also, you will be notified that you have successfully registered yourself and a User ID and Password will be sent to your mobile number and email ID.COMEDK 2019 Notification | Steps To Apply For COMEDK UGET ExamCheck the below-mentioned guidelines to fill COMEDK Application Form after COMEDK Login.Step 1 Using your User ID and Password. Log in using the User ID and passwordStep 2 You will be shown that your application form is incomplete. So you need to go to the topmost right corner and click on the “Go to application” tab.Step 3 Go to the COMEDK official website and login with these credentials.Step 4 After that click on “Go to application form”.Step 5 Select your preferred stream and course.Step 6 Click on “Save and Continue”.Step 7 Carefully enter your Personal, Category and Academic details.Step 8 Upload your Photograph and Signature, Parents Signature, your ID Proof, and Declaration.Step 9 Enter your “Payment Mode” and “Amount”.Step 10 Enter “Security code”.Step 11 Tick the “I Agree” checkbox.Step 12 Click on the “Submit” button.
-
How can I fill out the application form for the JMI (Jamia Millia Islamia) 2019?
Form for jamia school have been releaseYou can fill it from jamia siteJamia Millia Islamia And for collegeMost probably the form will out end of this month or next monthBut visit the jamia site regularly.Jamia Millia Islamiacheck whether the form is out or not for the course you want to apply.when notification is out then you have to create the account for entrance and for 2 entrance same account will be used you have to check in the account that the course you want to apply is there in listed or not ….if not then you have to create the different account for that course .If you have any doubts you can freely ask me .
-
How many forms are filled out in the JEE Main 2019 to date?
You should wait till last date to get these type of statistics .NTA will release how much application is received by them.
Related searches to 5005 form bansberg
Create this form in 5 minutes!
How to create an eSignature for the form az contractor
How to create an electronic signature for the Az 5005 2015 2019 Form in the online mode
How to make an electronic signature for your Az 5005 2015 2019 Form in Google Chrome
How to make an eSignature for putting it on the Az 5005 2015 2019 Form in Gmail
How to generate an eSignature for the Az 5005 2015 2019 Form right from your smartphone
How to generate an eSignature for the Az 5005 2015 2019 Form on iOS devices
How to make an electronic signature for the Az 5005 2015 2019 Form on Android devices
People also ask what is a 5005 form
-
What is a certificate prime in airSlate SignNow?
A certificate prime in airSlate SignNow refers to the secure digital certification attached to your signed documents. This ensures authenticity and integrity, making it easy to verify signatures and ensure that documents have not been altered after signing.
-
How does pricing work for the certificate prime feature?
airSlate SignNow offers competitive pricing models that include the certificate prime feature as part of various subscription tiers. You can choose the plan that best fits your business needs, with the certificate prime included to enhance your document security and compliance.
-
What are the benefits of using certificate prime in e-signatures?
Using certificate prime in e-signatures provides an added layer of security by verifying the identity of the signer. This is especially beneficial for businesses that require compliance with legal and regulatory standards, ensuring that all signed documents are trustworthy and valid.
-
Can I integrate certificate prime with other software?
Yes, airSlate SignNow allows for seamless integrations with various third-party applications. This means you can use the certificate prime feature across your existing workflows and systems, enhancing productivity and ensuring that all documents are securely signed.
-
Is the certificate prime feature easy to use?
Absolutely! The certificate prime feature in airSlate SignNow is designed to be user-friendly, allowing anyone to send and eSign documents effortlessly. With intuitive navigation and clear instructions, even those new to digital signatures can utilize this feature with ease.
-
How does certificate prime enhance document security?
The certificate prime enhances document security by providing a unique digital signature that verifies the authenticity of each document. This helps prevent fraud and ensures that the signed documents can be trusted in any professional setting, thus offering peace of mind to users.
-
What types of documents can utilize the certificate prime feature?
Certificate prime can be applied to a variety of document types including contracts, agreements, and forms that require signatures. This versatility makes it an essential tool for businesses across different industries that need secure and reliable document management.
Get more for form 5005 tax
- Att release easement form
- Pde 2071 page 1 pennsylvania department of education form
- Seattle dci form grading season extension application seattle
- Motion to vacate set aside or correct a sentence by a person in federal custody motion under 28 usc 2255 almd uscourts form
- Direct deposit request excelsior college documents documents excelsior form
- Antrag auf teilnahme am verfahren profi online schaufenster elektromobilitaet form
- 2016 camp recky recsportsosuedu form
- T1036 form 206718983
Find out other form 5005 exemption
- Can I eSignature Wyoming Orthodontists PDF
- How To eSignature Wyoming Orthodontists PDF
- How Do I eSignature Wyoming Orthodontists PDF
- Help Me With eSignature Wyoming Orthodontists PDF
- How Can I eSignature Wyoming Orthodontists PDF
- Can I eSignature Wyoming Orthodontists PDF
- How To eSignature Wyoming Orthodontists PDF
- How Do I eSignature Wyoming Orthodontists PDF
- How To eSignature Wyoming Orthodontists PDF
- How Do I eSignature Wyoming Orthodontists PDF
- Help Me With eSignature Wyoming Orthodontists PDF
- Help Me With eSignature Wyoming Orthodontists PDF
- How Can I eSignature Wyoming Orthodontists PDF
- Can I eSignature Wyoming Orthodontists PDF
- How Can I eSignature Wyoming Orthodontists PDF
- How To eSignature Wyoming Orthodontists Word
- Can I eSignature Wyoming Orthodontists PDF
- How To eSignature Wyoming Orthodontists PDF
- How Do I eSignature Wyoming Orthodontists PDF
- Help Me With eSignature Wyoming Orthodontists PDF