COMPLETION FORM WELLPUMPDISTRIBUTION 2018-2026
Understanding the Job Completion Form
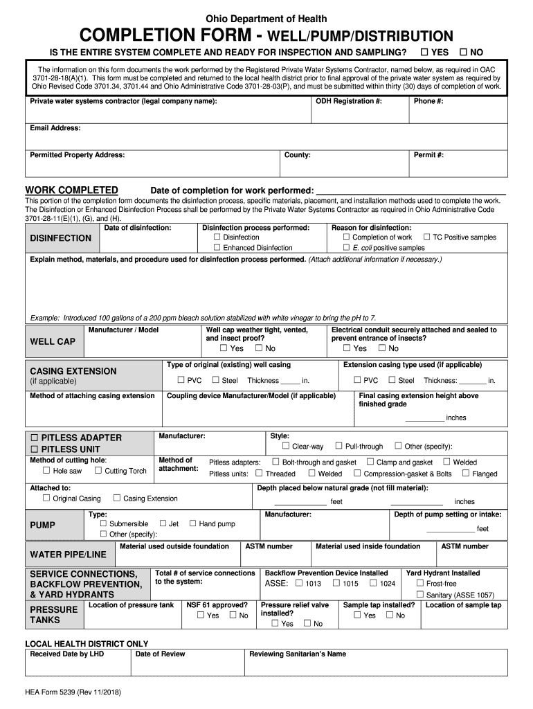
The job completion form, often referred to as a work completion form, is a crucial document used in various industries, particularly construction and service sectors. This form serves as a formal record that a specific job or project has been completed to the satisfaction of all parties involved. It typically includes details such as the project name, location, date of completion, and signatures from both the service provider and the client. Understanding the job completion meaning is essential for ensuring that all contractual obligations have been met and to facilitate timely payments.
Key Elements of the Job Completion Form
A well-structured job completion form contains several key elements that ensure clarity and legal compliance. These elements often include:
- Project Information: Name and description of the project.
- Completion Date: The date when the work was finished.
- Client and Contractor Details: Names and contact information of both parties.
- Scope of Work: A brief outline of the tasks completed.
- Signatures: Required signatures from both the contractor and client to validate the completion.
Including these elements helps protect both parties and provides a clear record of the work performed.
Steps to Complete the Job Completion Form
Filling out the job completion form involves several straightforward steps. Following these steps ensures that the form is completed accurately and comprehensively:
- Gather Information: Collect all relevant details about the project, including dates, descriptions, and contact information.
- Fill in the Form: Enter the gathered information into the form, ensuring accuracy.
- Review the Details: Double-check all entries for correctness and completeness.
- Obtain Signatures: Have both the contractor and client sign the form to confirm acceptance of the completed work.
- Distribute Copies: Provide copies of the signed form to all parties involved for their records.
By following these steps, you can ensure that the job completion form is filled out correctly, minimizing potential disputes.
Legal Use of the Job Completion Form
The job completion form holds significant legal weight in contractual agreements. It serves as proof that the work has been completed as per the terms of the contract. In the event of disputes regarding payment or project completion, this form can be used as evidence in legal proceedings. It is essential to ensure that the form is signed by both parties to validate its legal standing. Additionally, retaining a copy of the completed form is advisable for future reference.
Obtaining the Job Completion Form
Obtaining a job completion form is relatively simple. Many businesses create their own templates tailored to their specific needs, while others may choose to use standardized forms available online. To ensure compliance with industry standards, it is advisable to use a professionally designed job completion form template. These templates can often be customized to fit the unique requirements of various projects and can be found in PDF or digital formats for easy access and completion.
Examples of Using the Job Completion Form
Job completion forms can be utilized in various scenarios across different industries. For instance:
- Construction Projects: Used to confirm the completion of building or renovation work.
- Service Contracts: Employed by service providers, such as electricians or plumbers, to document the completion of their work.
- Freelance Work: Freelancers can use these forms to confirm that a project has been completed to the client's satisfaction.
These examples illustrate the versatility of the job completion form in documenting completed work across various sectors.
Quick guide on how to complete completion form wellpumpdistribution
Effortlessly Prepare COMPLETION FORM WELLPUMPDISTRIBUTION on Any Device
Digital document management has gained traction among organizations and individuals alike. It offers an ideal environmentally-friendly alternative to conventional printed and signed documentation, allowing you to obtain the necessary form and securely keep it online. airSlate SignNow provides you with all the tools required to create, modify, and eSign your documents swiftly without any holdups. Manage COMPLETION FORM WELLPUMPDISTRIBUTION on any device using airSlate SignNow's Android or iOS applications and enhance your document-related tasks today.
How to Modify and eSign COMPLETION FORM WELLPUMPDISTRIBUTION with Ease
- Find COMPLETION FORM WELLPUMPDISTRIBUTION and click on Get Form to begin.
- Utilize the resources we provide to complete your form.
- Emphasize pertinent portions of your documents or redact sensitive information with tools specifically designed for that purpose by airSlate SignNow.
- Create your eSignature using the Sign tool, which takes mere seconds and holds the same legal validity as a conventional hand-written signature.
- Review the details and click on the Done button to save your modifications.
- Choose your preferred method to send your form, whether by email, text message (SMS), invitation link, or download it to your computer.
Eliminate concerns about lost or misfiled documents, time-consuming form navigation, or errors that necessitate printing new copies. airSlate SignNow fulfills all your document management requirements in just a few clicks, regardless of the device you select. Modify and eSign COMPLETION FORM WELLPUMPDISTRIBUTION to ensure outstanding communication throughout your form preparation process with airSlate SignNow.
Create this form in 5 minutes or less
Find and fill out the correct completion form wellpumpdistribution
Create this form in 5 minutes!
How to create an eSignature for the completion form wellpumpdistribution
How to create an electronic signature for a PDF online
How to create an electronic signature for a PDF in Google Chrome
How to create an e-signature for signing PDFs in Gmail
How to create an e-signature right from your smartphone
How to create an e-signature for a PDF on iOS
How to create an e-signature for a PDF on Android
People also ask
-
What is a job completion form and how can it benefit my business?
A job completion form is a document that confirms the successful completion of a task or project. It helps businesses maintain clear records, enhances accountability, and ensures that all parties are aligned on the work done. By using airSlate SignNow, you can easily create and eSign job completion forms, streamlining your workflow.
-
How does airSlate SignNow simplify the process of creating a job completion form?
airSlate SignNow offers an intuitive interface that allows users to create job completion forms quickly and efficiently. With customizable templates and drag-and-drop features, you can tailor the form to meet your specific needs. This ease of use saves time and reduces errors in documentation.
-
Is there a cost associated with using airSlate SignNow for job completion forms?
Yes, airSlate SignNow offers various pricing plans to accommodate different business needs. Each plan includes features for creating and managing job completion forms, along with eSigning capabilities. You can choose a plan that fits your budget while still benefiting from our powerful document management tools.
-
Can I integrate airSlate SignNow with other software for managing job completion forms?
Absolutely! airSlate SignNow integrates seamlessly with various applications, including CRM systems and project management tools. This integration allows you to automate workflows and ensure that your job completion forms are easily accessible across platforms, enhancing productivity.
-
What features does airSlate SignNow offer for job completion forms?
airSlate SignNow provides features such as customizable templates, eSigning, and secure cloud storage for job completion forms. Additionally, you can track the status of your forms in real-time and receive notifications when they are signed. These features help streamline your documentation process.
-
How secure is the information on my job completion forms with airSlate SignNow?
Security is a top priority at airSlate SignNow. We use advanced encryption and secure cloud storage to protect your job completion forms and sensitive information. You can trust that your documents are safe and compliant with industry standards.
-
Can I access my job completion forms on mobile devices?
Yes, airSlate SignNow is designed to be mobile-friendly, allowing you to access and manage your job completion forms from any device. Whether you're in the office or on the go, you can easily create, send, and sign forms, ensuring that your workflow remains uninterrupted.
Get more for COMPLETION FORM WELLPUMPDISTRIBUTION
- With links to web based paternity statutes and resources for maine form
- City maine or a form
- This agreement is made between the wife and form
- No other use may be made of the leased property without the written consent of the form
- Original lease form
- Or other provisions as follows form
- Described on exhibit a attached hereto the quotpropertyquot this agreement the loan agreement the note the deed of form
- Notice of assignment of lease agreement and form
Find out other COMPLETION FORM WELLPUMPDISTRIBUTION
- Electronic signature Alabama High Tech Stock Certificate Fast
- Electronic signature Insurance Document California Computer
- Electronic signature Texas Education Separation Agreement Fast
- Electronic signature Idaho Insurance Letter Of Intent Free
- How To Electronic signature Idaho Insurance POA
- Can I Electronic signature Illinois Insurance Last Will And Testament
- Electronic signature High Tech PPT Connecticut Computer
- Electronic signature Indiana Insurance LLC Operating Agreement Computer
- Electronic signature Iowa Insurance LLC Operating Agreement Secure
- Help Me With Electronic signature Kansas Insurance Living Will
- Electronic signature Insurance Document Kentucky Myself
- Electronic signature Delaware High Tech Quitclaim Deed Online
- Electronic signature Maine Insurance Quitclaim Deed Later
- Electronic signature Louisiana Insurance LLC Operating Agreement Easy
- Electronic signature West Virginia Education Contract Safe
- Help Me With Electronic signature West Virginia Education Business Letter Template
- Electronic signature West Virginia Education Cease And Desist Letter Easy
- Electronic signature Missouri Insurance Stock Certificate Free
- Electronic signature Idaho High Tech Profit And Loss Statement Computer
- How Do I Electronic signature Nevada Insurance Executive Summary Template