
Loch Raven Boating Permit Form


What is the Loch Raven Boating Permit
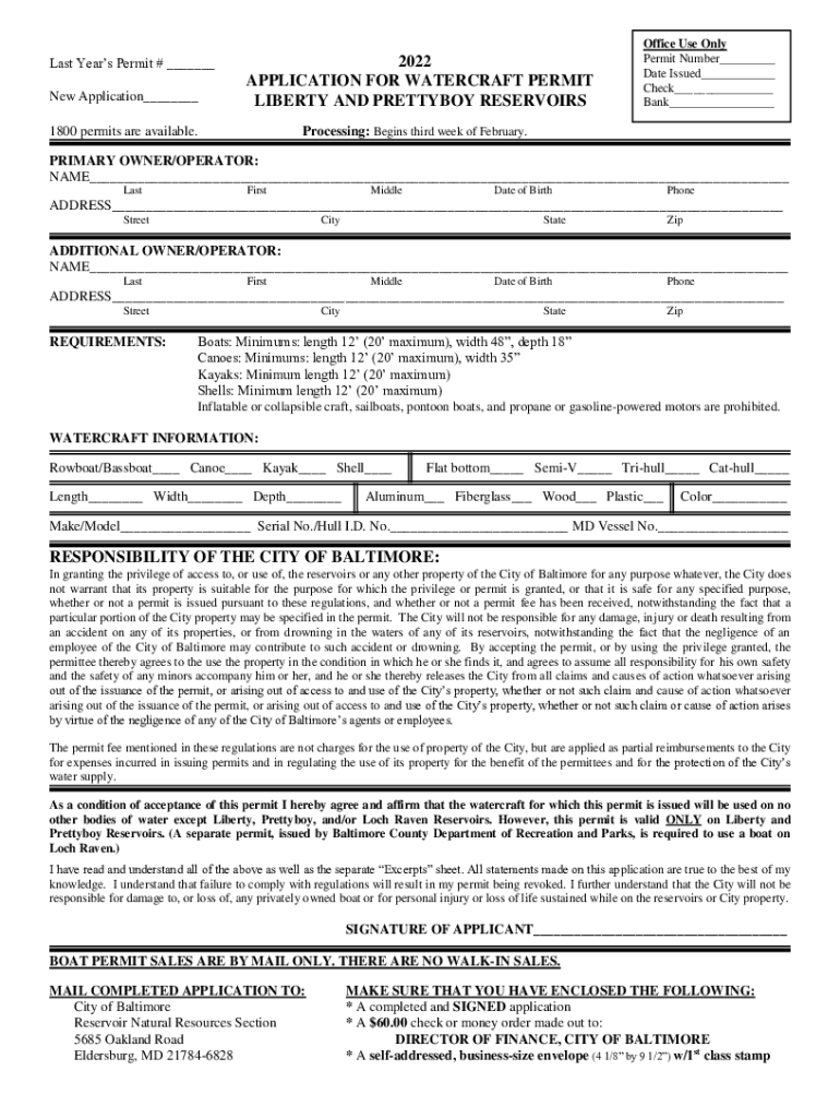
The Loch Raven Boating Permit is a legal document required for individuals wishing to operate a boat on Loch Raven Reservoir in Maryland. This permit ensures that boaters comply with local regulations aimed at preserving the reservoir's natural resources and maintaining safety on the water. The permit is essential for various types of watercraft, including motorboats and non-motorized vessels, providing a structured approach to boating in this popular recreational area.
How to obtain the Loch Raven Boating Permit
To obtain the Loch Raven Boating Permit, applicants must follow a straightforward process. First, individuals need to visit the official website of the Baltimore City Department of Recreation and Parks, where they can find detailed information about the permit application. The application typically requires personal identification, proof of residency, and any necessary fees. Applicants may also need to provide documentation regarding the boat, such as registration details. Once the application is submitted, it will be reviewed, and the permit will be issued if all criteria are met.
Steps to complete the Loch Raven Boating Permit
Completing the Loch Raven Boating Permit involves several key steps:
- Gather necessary documents, including identification and proof of residency.
- Fill out the permit application form accurately, ensuring all required information is included.
- Submit the application along with any applicable fees, which can often be done online or via mail.
- Await confirmation from the issuing authority regarding the status of the permit.
- Receive the permit, which must be kept on board the vessel while operating on the reservoir.
Legal use of the Loch Raven Boating Permit
The Loch Raven Boating Permit grants legal access to operate a boat on the reservoir, provided that all local boating regulations are adhered to. This includes observing speed limits, maintaining proper safety equipment on board, and respecting designated no-wake zones. Failure to comply with these regulations can result in penalties, including fines or revocation of the permit. It is essential for boaters to familiarize themselves with the rules governing the reservoir to ensure a safe and enjoyable experience.
Key elements of the Loch Raven Boating Permit
Key elements of the Loch Raven Boating Permit include:
- Permit Number: A unique identifier assigned to each permit.
- Boater Information: Details about the permit holder, including name and address.
- Vessel Information: Specifications about the boat, such as type and registration number.
- Expiration Date: The date until which the permit is valid, after which renewal is necessary.
- Regulatory Compliance: A statement indicating that the permit holder agrees to abide by all boating regulations.
Eligibility Criteria
Eligibility for the Loch Raven Boating Permit typically requires that applicants meet certain criteria. These may include being a resident of Maryland, possessing a valid driver's license or state identification, and being of a minimum age, often eighteen years. Additionally, applicants may need to demonstrate knowledge of boating safety practices, which can sometimes be verified through completion of a boating safety course. Meeting these criteria ensures that all boaters are equipped to navigate the waters safely.
Quick guide on how to complete loch raven boating permit
Complete loch raven boating permit effortlessly on any device
Online document management has become increasingly popular among businesses and individuals. It offers a perfect eco-friendly substitute for traditional printed and signed documents, as you can easily find the correct form and securely store it online. airSlate SignNow provides you with all the tools necessary to create, modify, and eSign your documents quickly without delays. Handle prettyboy reservoir boat permit 2022 on any platform with airSlate SignNow Android or iOS applications and simplify any document-related task today.
How to modify and eSign liberty reservoir boat permit 2022 effortlessly
- Locate liberty reservoir boat permit and click Get Form to begin.
- Use the tools we provide to fill out your document.
- Emphasize important sections of the documents or redact sensitive information with tools specifically designed for that purpose by airSlate SignNow.
- Create your eSignature using the Sign tool, which takes just a few seconds and has the same legal validity as a traditional wet ink signature.
- Review the information and then click the Done button to save your edits.
- Select your preferred method to send your form, via email, text message (SMS), or a shared link, or download it to your computer.
Say goodbye to lost or misplaced documents, tedious form searches, or mistakes that require printing new document copies. airSlate SignNow meets your document management needs in just a few clicks from any device you choose. Edit and eSign prettyboy boat permit 2022 to ensure excellent communication at every stage of your form preparation process with airSlate SignNow.
Create this form in 5 minutes or less
Related searches to prettyboy boat permit 2022
Create this form in 5 minutes!
How to create an eSignature for the loch raven boating permit
How to create an electronic signature for a PDF online
How to create an electronic signature for a PDF in Google Chrome
How to create an e-signature for signing PDFs in Gmail
How to create an e-signature right from your smartphone
How to create an e-signature for a PDF on iOS
How to create an e-signature for a PDF on Android
People also ask liberty reservoir boat permit 2022
-
What is the prettyboy reservoir boat permit 2022?
The prettyboy reservoir boat permit 2022 is a required authorization for individuals looking to operate boats on the Prettyboy Reservoir. This permit ensures that all boating activities comply with local regulations and helps maintain the safety and integrity of the reservoir's ecosystem.
-
How can I obtain a prettyboy reservoir boat permit 2022?
To obtain a prettyboy reservoir boat permit 2022, you can apply online through the official website or visit designated local offices. The application process typically involves providing personal information, boat details, and paying a nominal fee.
-
What are the costs associated with the prettyboy reservoir boat permit 2022?
The costs for the prettyboy reservoir boat permit 2022 vary depending on the type of boat and duration of the permit. Generally, fees are affordable, making it accessible for all boating enthusiasts looking to enjoy the reservoir.
-
What are the benefits of having a prettyboy reservoir boat permit 2022?
Having a prettyboy reservoir boat permit 2022 allows you to legally operate your boat on the reservoir, ensuring compliance with local laws. Additionally, it contributes to the preservation of the environment and enhances the overall boating experience.
-
Are there any restrictions with the prettyboy reservoir boat permit 2022?
Yes, the prettyboy reservoir boat permit 2022 comes with specific restrictions, such as speed limits and designated boating areas. It's essential to familiarize yourself with these regulations to ensure a safe and enjoyable experience on the water.
-
Can I renew my prettyboy reservoir boat permit 2022 online?
Yes, you can renew your prettyboy reservoir boat permit 2022 online through the official portal. The online renewal process is straightforward and allows you to maintain your boating privileges without any hassle.
-
What types of boats require a prettyboy reservoir boat permit 2022?
The prettyboy reservoir boat permit 2022 is required for various types of boats, including motorboats, sailboats, and personal watercraft. It's important to check the specific requirements for your boat type to ensure compliance.
Get more for liberty reservoir boat permit
Find out other prettyboy boat permit 2022
- Electronic signature Alabama Legal Rental Lease Agreement Fast
- Electronic signature Alabama Legal Rental Lease Agreement Simple
- Electronic signature Alabama Legal Rental Lease Agreement Easy
- Electronic signature North Dakota Lawers Job Offer Fast
- Electronic signature Alabama Legal Rental Lease Agreement Safe
- Electronic signature Lawers Presentation North Dakota Online
- Electronic signature North Dakota Lawers Job Offer Simple
- Electronic signature Lawers Presentation North Dakota Computer
- How To Electronic signature North Dakota Lawers Job Offer
- How Do I Electronic signature North Dakota Lawers Job Offer
- Electronic signature Lawers Presentation North Dakota Mobile
- Electronic signature North Dakota Lawers Job Offer Easy
- Help Me With Electronic signature North Dakota Lawers Job Offer
- How Can I Electronic signature North Dakota Lawers Job Offer
- Can I Electronic signature North Dakota Lawers Job Offer
- Electronic signature Lawers Presentation North Dakota Now
- Electronic signature Lawers Presentation North Dakota Later
- Electronic signature North Dakota Lawers Job Offer Safe
- How To Electronic signature North Dakota Lawers Letter Of Intent
- How Do I Electronic signature North Dakota Lawers Letter Of Intent