
2024-2025 Form


What is the Outdoor Advertising Display Permit Application
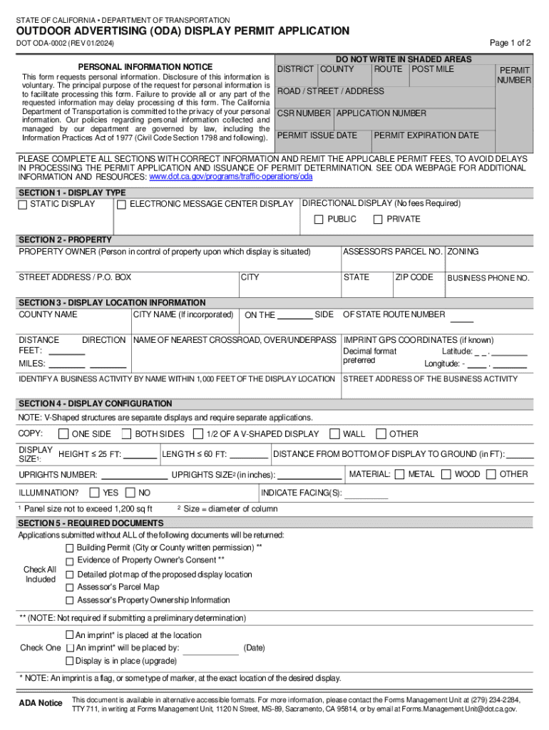
The Outdoor Advertising Display Permit Application is a formal request required by local or state authorities for businesses wishing to install outdoor advertising displays. These displays can include billboards, digital signs, and other types of advertising structures visible to the public. The application process ensures compliance with zoning laws, safety regulations, and aesthetic standards set by governing bodies.
How to obtain the Outdoor Advertising Display Permit Application
To obtain the Outdoor Advertising Display Permit Application, businesses typically need to contact their local zoning or planning department. Many municipalities provide the application online, allowing for easy access. It is important to check specific local regulations, as some areas may have additional requirements or variations in the application process.
Steps to complete the Outdoor Advertising Display Permit Application
Completing the Outdoor Advertising Display Permit Application involves several key steps:
- Gather necessary information about the proposed display, including dimensions, location, and design.
- Review local zoning laws and regulations to ensure compliance.
- Fill out the application form accurately, providing all requested details.
- Submit any required supporting documents, such as site plans or photographs of the proposed location.
- Pay any associated fees as outlined by the local authority.
Legal use of the Outdoor Advertising Display Permit Application
Using the Outdoor Advertising Display Permit Application legally means adhering to all local, state, and federal regulations regarding outdoor advertising. This includes obtaining the necessary permits before installation and ensuring that the display complies with safety standards and zoning restrictions. Failure to comply can result in fines or removal of the display.
Required Documents
When submitting the Outdoor Advertising Display Permit Application, businesses may need to provide various documents, including:
- Site plans showing the proposed location of the display.
- Design specifications, including dimensions and materials.
- Proof of ownership or permission from the property owner.
- Any previous permits or approvals related to the location.
Application Process & Approval Time
The application process for the Outdoor Advertising Display Permit can vary by jurisdiction but generally includes the following stages:
- Submission of the completed application and required documents.
- Review by local authorities, which may involve public hearings or consultations.
- Notification of approval or denial, typically within a specified timeframe, which can range from a few weeks to several months depending on the complexity of the application and local regulations.
Create this form in 5 minutes or less
Find and fill out the correct outdoor advertising display permit application
Related searches to Outdoor Advertising Display Permit Application
Create this form in 5 minutes!
How to create an eSignature for the outdoor advertising display permit application
How to create an electronic signature for a PDF online
How to create an electronic signature for a PDF in Google Chrome
How to create an e-signature for signing PDFs in Gmail
How to create an e-signature right from your smartphone
How to create an e-signature for a PDF on iOS
How to create an e-signature for a PDF on Android
People also ask
-
What is an Outdoor Advertising Display Permit Application?
An Outdoor Advertising Display Permit Application is a formal request submitted to local authorities to obtain permission for placing outdoor advertising displays. This application ensures that your advertising complies with local regulations and zoning laws, helping you avoid potential fines or legal issues.
-
How can airSlate SignNow assist with the Outdoor Advertising Display Permit Application process?
airSlate SignNow streamlines the Outdoor Advertising Display Permit Application process by allowing you to create, send, and eSign documents quickly and efficiently. Our platform simplifies the paperwork involved, ensuring that you can focus on your advertising strategy rather than getting bogged down in administrative tasks.
-
What are the costs associated with the Outdoor Advertising Display Permit Application?
The costs for an Outdoor Advertising Display Permit Application can vary based on location and the size of the display. Typically, you may encounter application fees, permit fees, and potential costs for modifications to meet local regulations. Using airSlate SignNow can help you manage these costs effectively by providing a clear overview of your documentation needs.
-
What features does airSlate SignNow offer for managing Outdoor Advertising Display Permit Applications?
airSlate SignNow offers features such as customizable templates, electronic signatures, and document tracking to enhance your Outdoor Advertising Display Permit Application process. These tools ensure that you can manage your applications efficiently, reducing the time spent on paperwork and increasing your chances of approval.
-
What are the benefits of using airSlate SignNow for Outdoor Advertising Display Permit Applications?
Using airSlate SignNow for your Outdoor Advertising Display Permit Application provides numerous benefits, including faster processing times and improved accuracy. Our platform minimizes errors and allows for real-time collaboration, ensuring that all stakeholders are on the same page throughout the application process.
-
Can I integrate airSlate SignNow with other tools for my Outdoor Advertising Display Permit Application?
Yes, airSlate SignNow offers integrations with various tools and platforms, making it easier to manage your Outdoor Advertising Display Permit Application alongside your existing workflows. This flexibility allows you to connect with project management software, CRM systems, and more, enhancing your overall efficiency.
-
How long does it take to process an Outdoor Advertising Display Permit Application?
The processing time for an Outdoor Advertising Display Permit Application can vary signNowly based on local regulations and the complexity of your request. Typically, it can take anywhere from a few days to several weeks. Using airSlate SignNow can help expedite this process by ensuring that all necessary documentation is submitted correctly and promptly.
Get more for Outdoor Advertising Display Permit Application
- City of frisco backflow prevention information sheet friscotx
- Virginia advance medical directive form virginia department of vdh virginia
- Release medical records form passaic pediatrics
- Nikah nama marriage certificate embassy of pakistan form
- Ifta form 85a
- Faa piv application form
- Tupperware mobi form
- Notice of inquiry form
Find out other Outdoor Advertising Display Permit Application
- Electronic signature Rhode Island Government Affidavit Of Heirship Online
- Electronic signature Missouri Education Business Plan Template Myself
- Electronic signature Mississippi Finance & Tax Accounting Last Will And Testament Later
- Electronic signature Mississippi Finance & Tax Accounting Last Will And Testament Myself
- Electronic signature Mississippi Finance & Tax Accounting Last Will And Testament Free
- Electronic signature Rhode Island Government Affidavit Of Heirship Computer
- Electronic signature Missouri Education Business Plan Template Free
- Electronic signature Mississippi Finance & Tax Accounting Last Will And Testament Secure
- Electronic signature Mississippi Finance & Tax Accounting Last Will And Testament Fast
- Electronic signature Rhode Island Government Affidavit Of Heirship Mobile
- Electronic signature Missouri Education Business Plan Template Secure
- Electronic signature Mississippi Finance & Tax Accounting Last Will And Testament Simple
- Electronic signature Mississippi Finance & Tax Accounting Last Will And Testament Easy
- Electronic signature Rhode Island Government Affidavit Of Heirship Now
- Electronic signature Mississippi Finance & Tax Accounting Last Will And Testament Safe
- Electronic signature Rhode Island Government Affidavit Of Heirship Later
- Electronic signature Missouri Education Business Plan Template Fast
- How To Electronic signature Missouri Education Business Plan Template
- Electronic signature Rhode Island Government Affidavit Of Heirship Myself
- How Do I Electronic signature Missouri Education Business Plan Template