
Cslb Certification of Work Experience Sample 2006-2025 Form


What is the Certification of Work Experience
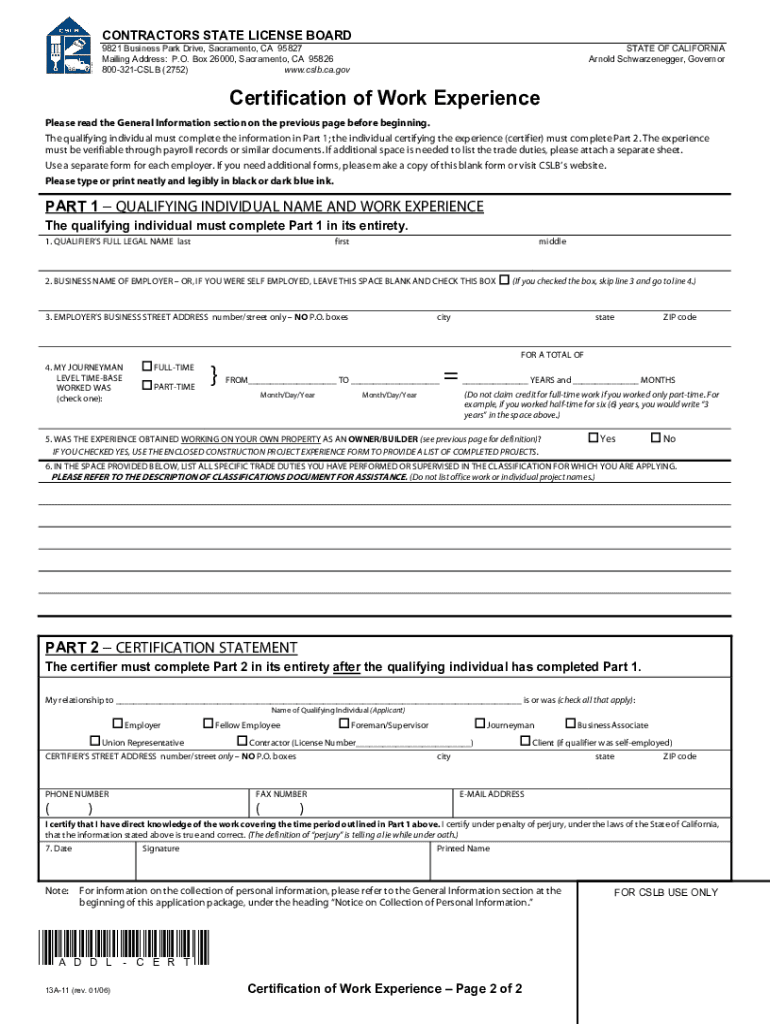
The Certification of Work Experience is a formal document required by the Contractors State License Board (CSLB) in California. It serves to verify an applicant's experience in the construction industry, which is essential for obtaining a contractor's license. This certification outlines the specific work experience gained, including the types of projects completed, the duration of employment, and the roles and responsibilities held. It is a critical component for individuals seeking to demonstrate their qualifications and expertise in their respective trades.
How to Obtain the Certification of Work Experience
To obtain the Certification of Work Experience, applicants must complete a specific form provided by the Contractors State License Board. This form can typically be downloaded from the CSLB website or requested directly from their office. After filling out the form, applicants must have it signed by a qualified individual who can attest to their work experience, such as a supervisor or employer. It is important to ensure that all information is accurate and complete to avoid delays in the licensing process.
Steps to Complete the Certification of Work Experience
Completing the Certification of Work Experience involves several key steps:
- Download the Certification of Work Experience form from the CSLB website.
- Fill out the form with detailed information about your work experience, including job titles, dates of employment, and descriptions of duties.
- Have the form signed by a qualified individual who can verify your experience.
- Review the form for accuracy and completeness before submission.
- Submit the completed form to the CSLB as part of your contractor license application.
Key Elements of the Certification of Work Experience
Several key elements must be included in the Certification of Work Experience to ensure its validity:
- Applicant Information: Full name, contact details, and license number (if applicable).
- Employer Information: Name, address, and contact information of the employer or supervisor verifying the experience.
- Work Experience Details: A comprehensive description of the work performed, including specific tasks, projects, and duration of employment.
- Signature: The signature of the verifying individual, along with their title and date of signing.
Legal Use of the Certification of Work Experience
The Certification of Work Experience is legally binding when it is completed accurately and signed by a qualified individual. It is essential for applicants to understand that any false information or misrepresentation can lead to penalties, including denial of the contractor's license application. The document must comply with all relevant regulations set forth by the CSLB to be considered valid in the licensing process.
Examples of Using the Certification of Work Experience
Individuals seeking a general contractor license in California often use the Certification of Work Experience to demonstrate their qualifications. For example, a construction worker who has spent several years in different roles, such as laborer, foreman, and project manager, can use this certification to showcase their diverse experience. This document can also be beneficial for those transitioning into specialized trades, as it highlights relevant skills and knowledge gained through hands-on work.
Quick guide on how to complete contractors state license board sacramento ca
Accomplish contractors state license board sacramento ca seamlessly on any device
Digital document management has become increasingly favored by businesses and individuals. It offers a superb environmentally friendly option to conventional printed and signed documents, allowing you to obtain the accurate form and safely store it online. airSlate SignNow equips you with all the tools necessary to generate, modify, and electronically sign your documents swiftly without delays. Manage cslb certification of work experience sample on any device utilizing airSlate SignNow's Android or iOS applications and streamline any document-related task today.
The easiest method to modify and electronically sign certification of work experience effortlessly
- Locate certification of work experience cslb and click Get Form to commence.
- Utilize the tools we offer to finalize your document.
- Emphasize important sections of your documents or redact sensitive details with tools that airSlate SignNow provides specifically for that reason.
- Create your electronic signature with the Sign tool, which takes mere seconds and holds the same legal validity as a conventional wet ink signature.
- Review all the details and click on the Done button to save your modifications.
- Choose how you wish to send your form, via email, SMS, or invitation link, or download it to your computer.
Eliminate the worry of lost or misplaced documents, tedious form searching, or errors that necessitate printing new copies. airSlate SignNow meets your document management needs in just a few clicks from any device you prefer. Edit and electronically sign contractors license board and ensure outstanding communication at any stage of the form preparation process with airSlate SignNow.
Create this form in 5 minutes or less
Find and fill out the correct certification of work experience sample
Related searches to certificate of work experiance for general build cntractor in the state of california
Create this form in 5 minutes!
How to create an eSignature for the cslb work experience form
How to generate an electronic signature for a PDF online
How to generate an electronic signature for a PDF in Google Chrome
The way to create an eSignature for signing PDFs in Gmail
The best way to generate an eSignature straight from your smartphone
How to make an eSignature for a PDF on iOS
The best way to generate an eSignature for a PDF document on Android
People also ask certification of work experience example
-
What is a CSLB certification of work experience sample?
A CSLB certification of work experience sample serves as a template that outlines the necessary work experience required for obtaining a contractor's license in California. It helps applicants to document their relevant work history and skills effectively. Utilizing a sample can streamline the application process for prospective contractors.
-
How can airSlate SignNow help with CSLB certification documentation?
AirSlate SignNow offers a digital solution to easily create, sign, and send necessary documents for CSLB certification, including the certification of work experience sample. Its user-friendly interface simplifies the process of managing your documentation. By utilizing SignNow, you can ensure that your certification application is complete and timely.
-
What are the pricing options for using airSlate SignNow?
AirSlate SignNow offers various pricing plans tailored to suit different needs, making it an affordable solution for managing documents related to CSLB certification of work experience samples. Vendors can choose from monthly or yearly subscriptions based on their budget and usage requirements. Each plan is designed to provide robust features for all users.
-
Are there integrations available with airSlate SignNow for CSLB documentation?
Yes, airSlate SignNow integrates seamlessly with various popular applications, facilitating the sharing and management of documents related to the CSLB certification of work experience sample. Integrations with platforms like Google Drive and Dropbox enhance accessibility and organization. These features allow users to work efficiently and coordinate with team members.
-
What are the benefits of using airSlate SignNow for CSLB certification?
Using airSlate SignNow for CSLB certification of work experience sample provides benefits like increased efficiency, reduced paperwork, and enhanced security for your documents. Its eSignature capability allows for quick and legally binding approvals. This streamlining of processes can signNowly reduce the time it takes to complete your applications.
-
Is airSlate SignNow user-friendly for first-time users?
Absolutely, airSlate SignNow is designed with an intuitive interface that facilitates easy navigation for first-time users managing their CSLB certification documentation. The platform provides helpful resources and customer support to guide users through the eSigning process. Most users can quickly learn how to create and send necessary forms with minimal experience.
-
What types of documents can I create in airSlate SignNow for CSLB purposes?
In airSlate SignNow, you can create a wide range of documents required for CSLB certification, including the certification of work experience sample, contracts, and more. The platform allows customization of templates to suit specific needs, ensuring all necessary information is captured accurately. This versatility makes it an essential tool for contractors.
Get more for ca general contractor work experience example
Find out other cslb certification of work experience sample
- How To Sign Colorado Banking PDF
- Help Me With Sign Colorado Banking PDF
- How Can I Sign Colorado Banking PDF
- How Can I Sign Colorado Banking PDF
- Can I Sign Colorado Banking PDF
- How Do I Sign Colorado Banking PDF
- Can I Sign Colorado Banking PDF
- How To Sign Colorado Banking Word
- How Do I Sign Colorado Banking Word
- Help Me With Sign Colorado Banking PDF
- Help Me With Sign Colorado Banking Word
- How Can I Sign Colorado Banking Word
- How Can I Sign Colorado Banking PDF
- Can I Sign Colorado Banking Word
- How To Sign Colorado Banking Word
- Can I Sign Colorado Banking PDF
- How To Sign Colorado Banking Word
- How Do I Sign Colorado Banking Word
- How Do I Sign Colorado Banking Word
- Help Me With Sign Colorado Banking Word