 
                Smoke Detector Report Form
 
                             
                            What is the Smoke Detector Report
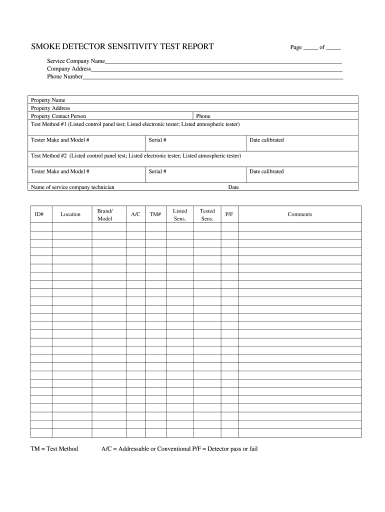
The smoke detector report is a formal document used to assess and document the sensitivity of smoke detectors in various environments. This report is crucial for ensuring that smoke detectors are functioning properly and can effectively detect smoke and fire hazards. It typically includes details such as the type of smoke detector, its location, the date of the test, and the results of the sensitivity test. Accurate documentation is essential for compliance with safety regulations and for maintaining a safe environment in residential and commercial properties.
Steps to Complete the Smoke Detector Report
Completing the smoke detector report involves several key steps to ensure accuracy and compliance. First, gather all necessary information, including the type of smoke detector and its installation location. Next, perform the sensitivity test according to the manufacturer’s guidelines, documenting the results meticulously. After obtaining the results, fill out the smoke detector sensitivity test report form, ensuring all fields are completed accurately. Finally, review the report for any errors before submission to the relevant authority or organization.
Legal Use of the Smoke Detector Report
The smoke detector report serves a legal purpose by providing documented evidence of compliance with safety standards. It may be required by local fire codes or insurance policies to demonstrate that smoke detectors are functioning correctly. In legal situations, such as liability claims or inspections, having a properly completed smoke detector report can help establish that safety protocols were followed. It is important to retain copies of these reports for future reference and compliance verification.
Key Elements of the Smoke Detector Report
Several key elements must be included in the smoke detector report to ensure it is comprehensive and useful. These elements include:
- Detector Type: Specify the model and type of smoke detector.
- Location: Indicate where the detector is installed.
- Test Date: Record the date the sensitivity test was conducted.
- Test Results: Document the findings of the sensitivity test, including any issues detected.
- Signature: Include the signature of the person conducting the test, affirming the report's accuracy.
How to Obtain the Smoke Detector Report
Obtaining the smoke detector report typically involves contacting the relevant local authority or fire department responsible for fire safety inspections. In some cases, property owners may be required to conduct the sensitivity test themselves and complete the report. It is advisable to check local regulations to understand the specific requirements for obtaining and submitting the smoke detector report. Additionally, templates for the report may be available online or through safety organizations to facilitate the process.
State-Specific Rules for the Smoke Detector Report
Each state may have unique regulations regarding smoke detector testing and reporting. It is essential to be aware of these state-specific rules to ensure compliance. For example, some states may require annual testing and documentation, while others may have different intervals or additional requirements for the report. Checking with local fire safety authorities can provide clarity on the specific regulations that apply to your area, ensuring that all necessary guidelines are followed.
Quick guide on how to complete smoke detector sensitivity test report
Complete smoke detector sensitivity test report effortlessly on any device
Digital document management has gained signNow traction among businesses and individuals. It offers an ideal eco-friendly alternative to traditional printed and signed documents, allowing you to find the appropriate form and securely store it online. airSlate SignNow provides all the necessary tools to create, modify, and electronically sign your documents swiftly without any delays. Handle detector sensitivity on any device using airSlate SignNow's Android or iOS applications and enhance any document-related procedure today.
The easiest way to modify and electronically sign smoke sensitivity with ease
- Obtain smoke detector sensitivity test report form and click Get Form to begin.
- Utilize the tools we provide to fill out your document.
- Emphasize important sections of your documents or conceal sensitive information using tools that airSlate SignNow specifically supplies for that purpose.
- Create your signature with the Sign tool, which takes mere seconds and carries the same legal validity as a conventional wet ink signature.
- Review all the information and click the Done button to secure your modifications.
- Choose how you wish to send your form, via email, SMS, or invitation link, or download it directly to your computer.
Eliminate concerns about lost or mislaid documents, tedious form searches, or mistakes that necessitate printing new document copies. airSlate SignNow fulfills all your document management needs in just a few clicks from any device you prefer. Modify and electronically sign smoke detector report form and ensure excellent communication at every stage of the form preparation process with airSlate SignNow.
Create this form in 5 minutes or less
Related searches to detector sensitivity report
Create this form in 5 minutes!
How to create an eSignature for the smoke detector sensitivity form
The best way to make an electronic signature for a PDF in the online mode
The best way to make an electronic signature for a PDF in Chrome
The best way to create an eSignature for putting it on PDFs in Gmail
How to create an electronic signature from your smart phone
How to generate an eSignature for a PDF on iOS devices
How to create an electronic signature for a PDF file on Android OS
People also ask smoke report form
- 
                                
                                    
                                    
                                    What factors influence detector sensitivity in airSlate SignNow?
                                
                                Detector sensitivity in airSlate SignNow is influenced by several key factors including the quality of the electronic signature technology, the robustness of document verification processes, and the integration with other software. These components work together to ensure that sensitive information is handled securely and accurately, enhancing user trust and compliance.
- 
                                
                                    
                                    
                                    How does the detector sensitivity feature benefit my business?
                                
                                The detector sensitivity feature in airSlate SignNow offers a secure and reliable means of sending and eSigning documents. By ensuring that the signs and signatures are accurately captured, it minimizes errors and fraudulent activities, thus saving time and increasing efficiency in business operations.
- 
                                
                                    
                                    
                                    Can I adjust the detector sensitivity for different document types?
                                
                                Yes, airSlate SignNow allows you to adjust detector sensitivity based on different document types. This customization enables you to fine-tune the security measures and signature accuracy required for various document complexities, thereby enhancing your overall document management strategy.
- 
                                
                                    
                                    
                                    Is there a cost associated with increasing detector sensitivity in my plan?
                                
                                Increasing detector sensitivity in airSlate SignNow is included in the standard pricing plans. Customers can take advantage of advanced features that enhance security without incurring additional costs, making it a cost-effective solution for businesses of all sizes.
- 
                                
                                    
                                    
                                    What integrations support enhanced detector sensitivity?
                                
                                AirSlate SignNow integrates with several tools and platforms that enhance detector sensitivity, including cloud storage solutions, CRM systems, and project management applications. These integrations provide a streamlined process that strengthens document security and reduces the risk of errors.
- 
                                
                                    
                                    
                                    How does airSlate SignNow ensure the highest level of detector sensitivity?
                                
                                AirSlate SignNow ensures the highest level of detector sensitivity through advanced encryption protocols and stringent verification processes. By combining these technologies, the platform reinforces document integrity and ensures all signed documents are compliant with legal standards.
- 
                                
                                    
                                    
                                    Are there any best practices for utilizing detector sensitivity effectively?
                                
                                To utilize detector sensitivity effectively with airSlate SignNow, ensure that your team is well-trained on the platform's features and security protocols. Regularly reviewing and updating your document templates and signature workflows can also optimize your use of detector sensitivity, enhancing overall operational efficiency.
Get more for detector sensitivity form
- Personal network matrix division of family and children services dfcs dhs georgia form
- Certificate of adoption printable certificate form
- Editable parent handbook daycare form
- Guam board of allied health examiners form
- Iowa medicaid mileage reimbursement form
- Certificate of immunization iowa department of public health idph state ia form
- Iowa 470 human services form
- N 5408 form
Find out other smoke sensitivity form
- eSignature Louisiana Photo Licensing Agreement Computer
- eSignature Kentucky Photo Licensing Agreement Easy
- How To eSignature Louisiana Photo Licensing Agreement
- eSignature Louisiana Photo Licensing Agreement Mobile
- How Do I eSignature Louisiana Photo Licensing Agreement
- Help Me With eSignature Louisiana Photo Licensing Agreement
- eSignature Kentucky Photo Licensing Agreement Safe
- How Can I eSignature Louisiana Photo Licensing Agreement
- eSignature Louisiana Photo Licensing Agreement Now
- Can I eSignature Louisiana Photo Licensing Agreement
- eSignature Louisiana Photo Licensing Agreement Later
- eSign Hawaii 12 Month Income Statement Online
- eSignature Louisiana Photo Licensing Agreement Myself
- eSign Hawaii 12 Month Income Statement Computer
- eSign Hawaii 12 Month Income Statement Mobile
- eSign Hawaii 12 Month Income Statement Now
- eSignature Louisiana Photo Licensing Agreement Free
- eSign Hawaii 12 Month Income Statement Later
- eSign Hawaii 12 Month Income Statement Myself
- eSignature Louisiana Photo Licensing Agreement Secure