
Unit Inspection Report 2002-2025 Form


What is the Unit Inspection Report
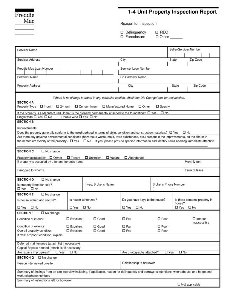
The unit inspection report is a vital document used primarily in real estate transactions and property management. It serves as a comprehensive assessment of the condition of a property, detailing any issues or necessary repairs. This report is often required by lenders, landlords, and property managers to ensure that properties meet specific standards before transactions or leases are finalized. The report typically includes information about the property's structure, systems, and overall safety, providing a clear picture of its current state.
How to use the Unit Inspection Report
The unit inspection report can be utilized in various ways, depending on the context. For buyers, it offers insights into potential investment risks and helps in negotiating terms based on the property's condition. For landlords, it aids in maintaining the property and ensuring compliance with safety regulations. Additionally, property managers can use the report to document the state of a unit before and after a tenant's lease, helping to resolve disputes regarding security deposits or damages.
Steps to complete the Unit Inspection Report
Completing a unit inspection report involves several key steps:
- Gather necessary information about the property, including previous inspection reports and maintenance records.
- Conduct a thorough inspection of the unit, noting any visible issues such as leaks, cracks, or wear and tear.
- Document findings in a structured format, ensuring clarity and detail for each section of the report.
- Include photographs to visually support the findings, making it easier for stakeholders to understand the condition of the property.
- Review the report for accuracy and completeness before finalizing it.
Key elements of the Unit Inspection Report
A well-structured unit inspection report typically includes several key elements:
- Property Information: Address, type of property, and inspection date.
- Inspection Findings: Detailed descriptions of the condition of various components, including plumbing, electrical systems, and structural integrity.
- Recommendations: Suggested repairs or maintenance actions based on the inspection findings.
- Photographic Evidence: Images supporting the documented findings.
- Inspector's Credentials: Information about the individual or company conducting the inspection, including qualifications and certifications.
Legal use of the Unit Inspection Report
The unit inspection report holds legal significance in various real estate transactions. It can serve as evidence in disputes between landlords and tenants, particularly regarding security deposits or property conditions. Additionally, lenders may require this report to assess the property's value and condition before approving financing. It is essential to ensure that the report complies with local regulations and standards to maintain its legal validity.
How to obtain the Unit Inspection Report
Obtaining a unit inspection report typically involves hiring a qualified inspector or inspection company. Prospective buyers, landlords, or property managers can seek referrals or conduct online research to find reputable professionals. Once an inspector is chosen, they will schedule a visit to the property, conduct a thorough inspection, and provide a detailed report based on their findings. It is important to communicate specific concerns or areas of focus to the inspector to ensure a comprehensive evaluation.
Quick guide on how to complete 1013 report
The optimal method to locate and endorse 1013 report
Across your entire organization, inefficient workflows surrounding document endorsement can consume a signNow amount of productive time. Executing paperwork like unit inspection report is a standard aspect of operations in every sector, which is why the efficiency of each agreement’s lifecycle heavily impacts the organization’s overall productivity. With airSlate SignNow, endorsing your freddie property inspection form can be as simple and swift as it can be. This platform provides you with the latest version of nearly any document. Even better, you can endorse it instantly without needing to download external software on your device or printing any physical copies.
Steps to acquire and endorse your freddie mac form inspection
- Browse our collection by category or use the search bar to find the document you require.
- Check the form preview by clicking Learn more to confirm it's the correct one.
- Click Get form to start editing right away.
- Fill out your form and include any necessary information using the toolbar.
- Once completed, click the Sign option to endorse your mac form 1013.
- Choose the signature method that is most suitable for you: Draw, Generate initials, or upload an image of your handwritten signature.
- Hit Done to finish editing and move on to document-sharing options as required.
With airSlate SignNow, you have everything necessary to handle your documents efficiently. You can find, complete, edit, and even share your [SKS] in one place without any complications. Enhance your workflows by utilizing a single, intelligent eSignature solution.
Create this form in 5 minutes or less
FAQs freddie mac inspection
-
How much did we pay to bail out Freddie Mac and Fannie Mae?
Fannie Mae and Freddie Mac were put into conservatorship by the Federal Housing Finance Agency (FHFA) on September 17, 2008. This meant that the two government-sponsored enterprises (GSEs) have been managed by the government since then. The U.S. Treasury Department was authorized to purchase up to $100 billion in the GSEs' preferred stock and mortgage-backed securities (MBS). It was supposed to be temporary, but economic conditions have not improved enough to allow the government to sell the shares it owned and return Fannie and Freddie to private ownership.This was the direct cost. There were also a lot other indirect costs like -$3.9 billion in CDBG grants to help homeowners in poor neighborhoods.Approval for the Treasury Department to buy shares of Fannie's and Freddie's stock to support stock price levels and allow the two to continue to raise capital on the private market.Approval for the Federal Housing Administration (FHA) to guarantee $300 billion in new loans to keep 400,000 homeowners out of foreclosure.About $15 billion in housing tax breaks, including a credit of up to $7,500 for first-time buyers.An increase in the statutory limit on the national debt by $800 billion, to $10.6 trillion.A new regulatory agency to oversee Fannie and Freddie, including executive pay levels.Found this at - What Was the Fannie Mae and Freddie Mac Bailout?
-
Why does my property management ask me to fill out a W-9 form?
To collect data on you in case they want to sue you and enforce a judgment.If the management co is required to pay inerest on security deposits then they need to account to ou for that interest income.If you are in a coop or condo they may apportion tax benefits or capital costs to you for tax purposes.
-
Do military members have to pay any fee for leave or fiancee forms?
NOOOOOOO. You are talking to a military romance scammer. I received an email from the US Army that directly answers your question that is pasted below please keep reading.I believe you are the victim of a military Romance Scam whereas the person you are talking to is a foreign national posing as an American Soldier claiming to be stationed overseas on a peacekeeping mission. That's the key to the scam they always claim to be on a peacekeeping mission.Part of their scam is saying that they have no access to their money that their mission is highly dangerous.If your boyfriend girlfriend/future husband/wife is asking you to do the following or has exhibited this behavior, it is a most likely a scam:Moves to private messaging site immediately after meeting you on Facebook or SnapChat or Instagram or some dating or social media site. Often times they delete the site you met them on right after they asked you to move to a more private messaging siteProfesses love to you very quickly & seems to quote poems and song lyrics along with using their own sort of broken language, as they profess their love and devotion quickly. They also showed concern for your health and love for your family.Promises marriage as soon as he/she gets to state for leave that they asked you to pay for.They Requests money (wire transfers) and Amazon, iTune ,Verizon, etc gift cards, for medicine, religious practices, and leaves to come home, internet access, complete job assignments, help sick friend, get him out of trouble, or anything that sounds fishy.The military does provide all the soldier needs including food medical Care and transportation for leave. Trust me, I lived it, you are probably being scammed. I am just trying to show you examples that you are most likely being connned.Below is an email response I received after I sent an inquiry to the US government when I discovered I was scammed. I received this wonderful response back with lots of useful links on how to find and report your scammer. And how to learn more about Romance Scams.Right now you can also copy the picture he gave you and do a google image search and you will hopefully see the pictures of the real person he is impersonating. this doesn't always work and take some digging. if you find the real person you can direct message them and alert them that their image is being used for scamming.Good Luck to you and I'm sorry this may be happening to you. please continue reading the government response I received below it's very informative. You have contacted an email that is monitored by the U.S. Army Criminal Investigation Command. Unfortunately, this is a common concern. We assure you there is never any reason to send money to anyone claiming to be a Soldier online. If you have only spoken with this person online, it is likely they are not a U.S. Soldier at all. If this is a suspected imposter social media profile, we urge you to report it to that platform as soon as possible. Please continue reading for more resources and answers to other frequently asked questions: How to report an imposter Facebook profile: Caution-https://www.facebook.com/help/16... < Caution-https://www.facebook.com/help/16... > Answers to frequently asked questions: - Soldiers and their loved ones are not charged money so that the Soldier can go on leave. - Soldiers are not charged money for secure communications or leave. - Soldiers do not need permission to get married. - Soldiers emails are in this format: john.doe.mil@mail.mil < Caution-mailto: john.doe.mil@mail.mil > anything ending in .us or .com is not an official email account. - Soldiers have medical insurance, which pays for their medical costs when treated at civilian health care facilities worldwide – family and friends do not need to pay their medical expenses. - Military aircraft are not used to transport Privately Owned Vehicles. - Army financial offices are not used to help Soldiers buy or sell items of any kind. - Soldiers deployed to Combat Zones do not need to solicit money from the public to feed or house themselves or their troops. - Deployed Soldiers do not find large unclaimed sums of money and need your help to get that money out of the country. Anyone who tells you one of the above-listed conditions/circumstances is true is likely posing as a Soldier and trying to steal money from you. We would urge you to immediately cease all contact with this individual. For more information on avoiding online scams and to report this crime, please see the following sites and articles: This article may help clarify some of the tricks social media scammers try to use to take advantage of people: Caution-https://www.army.mil/article/61432/< Caution-https://www.army.mil/article/61432/> CID advises vigilance against 'romance scams,' scammers impersonating Soldiers Caution-https://www.army.mil/article/180749 < Caution-https://www.army.mil/article/180749 > FBI Internet Crime Complaint Center: Caution-http://www.ic3.gov/default.aspx< Caution-http://www.ic3.gov/default.aspx> U.S. Army investigators warn public against romance scams: Caution-https://www.army.mil/article/130...< Caution-https://www.army.mil/article/130...> DOD warns troops, families to be cybercrime smart -Caution-http://www.army.mil/article/1450...< Caution-http://www.army.mil/article/1450...> Use caution with social networking Caution-https://www.army.mil/article/146...< Caution-https://www.army.mil/article/146...> Please see our frequently asked questions section under scams and legal issues. Caution-http://www.army.mil/faq/ < Caution-http://www.army.mil/faq/ > or visit Caution-http://www.cid.army.mil/ < Caution-http://www.cid.army.mil/ >. The challenge with most scams is determining if an individual is a legitimate member of the US Army. Based on the Privacy Act of 1974, we cannot provide this information. If concerned about a scam you may contact the Better Business Bureau (if it involves a solicitation for money), or local law enforcement. If you're involved in a Facebook or dating site scam, you are free to contact us direct; (571) 305-4056. If you have a social security number, you can find information about Soldiers online at Caution-https://www.dmdc.osd.mil/appj/sc... < Caution-https://www.dmdc.osd.mil/appj/sc... > . While this is a free search, it does not help you locate a retiree, but it can tell you if the Soldier is active duty or not. If more information is needed such as current duty station or location, you can contact the Commander Soldier's Records Data Center (SRDC) by phone or mail and they will help you locate individuals on active duty only, not retirees. There is a fee of $3.50 for businesses to use this service. The check or money order must be made out to the U.S. Treasury. It is not refundable. The address is: Commander Soldier's Records Data Center (SRDC) 8899 East 56th Street Indianapolis, IN 46249-5301 Phone: 1-866-771-6357 In addition, it is not possible to remove social networking site profiles without legitimate proof of identity theft or a scam. If you suspect fraud on this site, take a screenshot of any advances for money or impersonations and report the account on the social networking platform immediately. Please submit all information you have on this incident to Caution-www.ic3.gov < Caution-http://www.ic3.gov > (FBI website, Internet Criminal Complaint Center), immediately stop contact with the scammer (you are potentially providing them more information which can be used to scam you), and learn how to protect yourself against these scams at Caution-http://www.ftc.gov < Caution-http://www.ftc.gov > (Federal Trade Commission's website)
-
How can I fill out Google's intern host matching form to optimize my chances of receiving a match?
I was selected for a summer internship 2016.I tried to be very open while filling the preference form: I choose many products as my favorite products and I said I'm open about the team I want to join.I even was very open in the location and start date to get host matching interviews (I negotiated the start date in the interview until both me and my host were happy.) You could ask your recruiter to review your form (there are very cool and could help you a lot since they have a bigger experience).Do a search on the potential team.Before the interviews, try to find smart question that you are going to ask for the potential host (do a search on the team to find nice and deep questions to impress your host). Prepare well your resume.You are very likely not going to get algorithm/data structure questions like in the first round. It's going to be just some friendly chat if you are lucky. If your potential team is working on something like machine learning, expect that they are going to ask you questions about machine learning, courses related to machine learning you have and relevant experience (projects, internship). Of course you have to study that before the interview. Take as long time as you need if you feel rusty. It takes some time to get ready for the host matching (it's less than the technical interview) but it's worth it of course.
-
How do I fill out the form of DU CIC? I couldn't find the link to fill out the form.
Just register on the admission portal and during registration you will get an option for the entrance based course. Just register there. There is no separate form for DU CIC.
Related searches to freddie property inspection
Create this form in 5 minutes!
How to create an eSignature for the freddie mac form property
How to create an eSignature for your Freddie Mac Property Inspection Form online
How to generate an eSignature for your Freddie Mac Property Inspection Form in Chrome
How to make an eSignature for signing the Freddie Mac Property Inspection Form in Gmail
How to make an electronic signature for the Freddie Mac Property Inspection Form right from your smartphone
How to generate an electronic signature for the Freddie Mac Property Inspection Form on iOS devices
How to make an electronic signature for the Freddie Mac Property Inspection Form on Android
People also ask bpo direct
-
What is a Freddie Mac unit and how does it function?
A Freddie Mac unit refers to a specific type of mortgage product available through the Freddie Mac program. These units are designed to help first-time homebuyers secure financing with lower down payment options. By leveraging airSlate SignNow, you can effectively manage all documentation related to Freddie Mac units, ensuring a seamless signing process.
-
How can airSlate SignNow assist with Freddie Mac unit documentation?
airSlate SignNow simplifies the process of sending and signing documents related to Freddie Mac units. Our platform allows you to create templates, manage documents electronically, and ensure compliance with Freddie Mac guidelines. This streamlined process helps you save time and reduce errors in managing your Freddie Mac unit applications.
-
What are the pricing options for using airSlate SignNow for Freddie Mac units?
airSlate SignNow provides flexible pricing plans to accommodate different business needs when managing Freddie Mac units. Our pricing structure is transparent and designed to offer cost-effective solutions for all users. You can choose a plan that fits your budget while still accessing all the necessary features to handle Freddie Mac unit documentation.
-
What features does airSlate SignNow offer for Freddie Mac unit transactions?
With airSlate SignNow, you get several features tailored for managing Freddie Mac unit transactions. This includes document templates, real-time tracking of document status, secure e-signature capabilities, and integration with popular CRM systems. These features work together to enhance your workflow when dealing with Freddie Mac units.
-
What benefits does airSlate SignNow provide for Freddie Mac unit users?
The primary benefits of using airSlate SignNow for Freddie Mac unit users include enhanced efficiency, reduced paperwork, and improved compliance. By digitizing the document signing process, you can accelerate transaction times and minimize the chances of document mishaps. This ensures that your Freddie Mac unit deals are processed smoothly and effectively.
-
Is airSlate SignNow compatible with other software for managing Freddie Mac units?
Yes, airSlate SignNow offers integrations with various tools and software that you may already use for managing Freddie Mac units. This includes popular platforms like Salesforce, Google Drive, and Microsoft applications. These integrations make it easy to streamline your workflow by connecting your Freddie Mac unit management tools with our e-signature solution.
-
How secure is airSlate SignNow when handling Freddie Mac unit documents?
Security is a top priority for airSlate SignNow, especially when it comes to sensitive Freddie Mac unit documents. We employ advanced encryption methods and comply with industry-standard security protocols to protect your data. This ensures that all documents related to your Freddie Mac units are handled securely and confidentially.
Get more for broker price opinion form
Find out other broker price opinion format
- How Do I Sign North Carolina Doctors PDF
- How Can I Sign North Carolina Doctors Word
- How To Sign North Carolina Doctors Word
- Can I Sign North Carolina Doctors Word
- How Do I Sign North Carolina Doctors Word
- Help Me With Sign North Carolina Doctors PDF
- Help Me With Sign North Carolina Doctors Word
- How To Sign North Carolina Doctors Word
- How Do I Sign North Carolina Doctors Word
- How Can I Sign North Carolina Doctors PDF
- How Can I Sign North Carolina Doctors Word
- Help Me With Sign North Carolina Doctors Word
- How Can I Sign North Carolina Doctors Word
- Can I Sign North Carolina Doctors Word
- Can I Sign North Carolina Doctors PDF
- Can I Sign North Carolina Doctors Word
- How Do I Sign North Carolina Doctors PDF
- How To Sign North Carolina Doctors PDF
- Help Me With Sign North Carolina Doctors PDF
- How Can I Sign North Carolina Doctors PDF