
State Form 53958


What is the State Form 53958
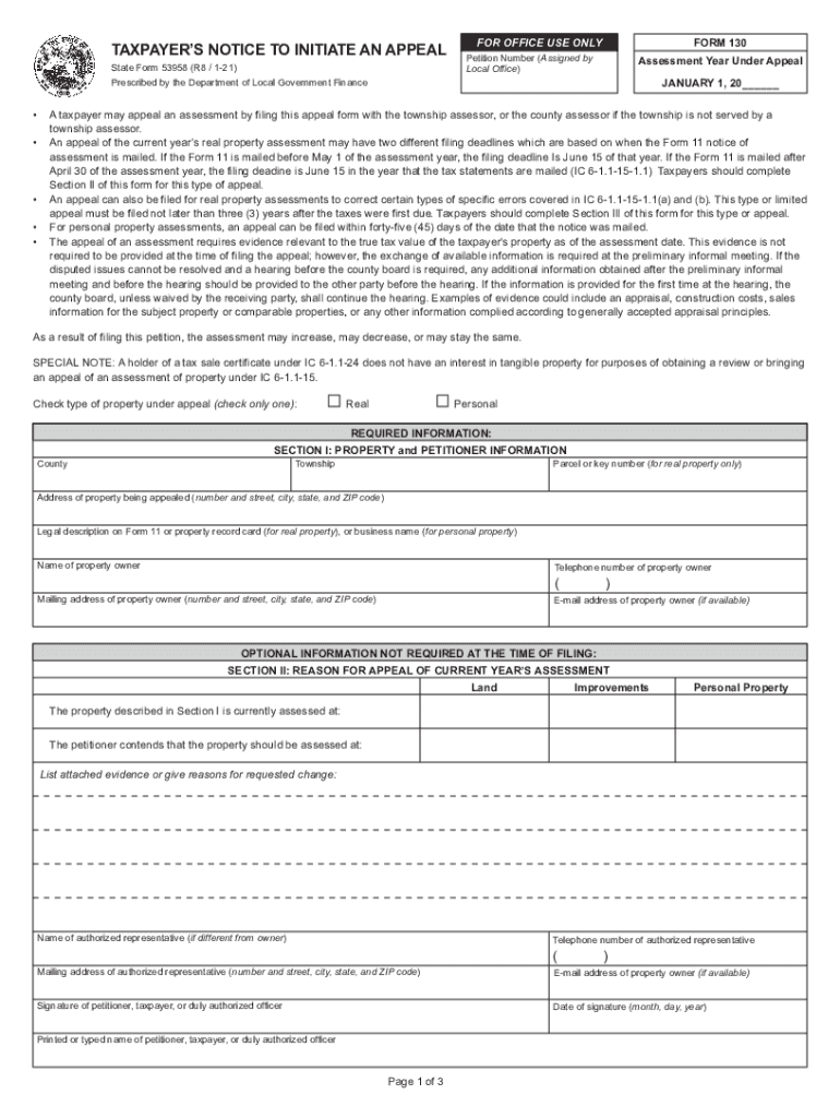
The State Form 53958 is a document utilized by taxpayers in Indiana for local government finance purposes. This form is essential for initiating various financial processes, including the appeal of assessed property values. It serves as a formal request to the appropriate authorities, ensuring that taxpayers can communicate their concerns or intentions regarding their financial obligations effectively. Understanding the purpose of this form is crucial for compliance and proper financial management.
How to use the State Form 53958
Using the State Form 53958 involves several steps to ensure that the information provided is accurate and complete. Taxpayers should begin by obtaining the form from an official source. Once acquired, it is important to fill in the required fields meticulously, providing all necessary details about the property and the reason for the appeal or request. After completing the form, taxpayers should review it for any errors before submission to avoid delays or rejections.
Steps to complete the State Form 53958
Completing the State Form 53958 requires a structured approach. Follow these steps for a smooth process:
- Obtain the form from a reliable source.
- Fill in your personal information, including name, address, and contact details.
- Provide specific details about the property in question, including its address and parcel number.
- Clearly state the reason for your appeal or request, ensuring that all relevant information is included.
- Review the completed form for accuracy and completeness.
- Submit the form according to the instructions provided, whether online, by mail, or in person.
Legal use of the State Form 53958
The legal use of the State Form 53958 is governed by Indiana state laws regarding property assessments and local government finance. When properly filled out and submitted, this form can serve as a legally binding document that initiates formal proceedings related to property tax appeals. It is essential for taxpayers to understand their rights and obligations under the law to ensure compliance and protect their interests.
Required Documents
When submitting the State Form 53958, certain documents may be required to support your request. These can include:
- Proof of ownership of the property.
- Previous assessment notices or tax bills.
- Any relevant documentation that supports your appeal, such as comparable property assessments.
Gathering these documents in advance can streamline the submission process and enhance the chances of a favorable outcome.
Form Submission Methods
Taxpayers can submit the State Form 53958 through various methods, depending on their preference and the guidelines provided by local authorities. Common submission methods include:
- Online submission through designated state portals.
- Mailing the completed form to the appropriate local government office.
- Delivering the form in person to the local assessment office.
Each method has its own set of instructions, so it is important to follow the guidelines carefully to ensure successful submission.
Quick guide on how to complete form 53958 printable
Effortlessly Complete form 53958 printable on Any Device
The management of online documents has become increasingly favored by businesses and individuals. It serves as an ideal eco-conscious alternative to conventional printed and signed documents, allowing you to access the proper form and securely save it online. airSlate SignNow equips you with all the tools necessary to create, modify, and electronically sign your documents efficiently without delays. Handle state form 53958 on any device using the airSlate SignNow applications for Android or iOS and enhance any document-related workflow today.
How to Adjust and Electronically Sign indiana local government finance with Ease
- Find indiana state form 53958 and click on Get Form to begin.
- Use the tools we offer to complete your document.
- Mark pertinent sections of the documents or obscure sensitive information with tools specifically provided by airSlate SignNow for that purpose.
- Create your signature with the Sign tool, which takes only seconds and has the same legal validity as a conventional wet ink signature.
- Review the details and click on the Done button to save your changes.
- Choose your delivery method for your form, via email, SMS, or invitation link, or download it to your computer.
Say goodbye to lost or misplaced documents, cumbersome form searches, or mistakes that require printing new document copies. airSlate SignNow addresses all your document management needs in just a few clicks from any device you prefer. Modify and electronically sign taxpayers initiate fill and ensure excellent communication at every stage of the document preparation process with airSlate SignNow.
Create this form in 5 minutes or less
Related searches to indiana 53958 make
Create this form in 5 minutes!
People also ask taxpayers initiate fillable
-
What is state form 53958?
State form 53958 is a document used to provide specific information to state authorities. It often includes details regarding compliance and is essential for various regulatory processes. Understanding how to complete the state form 53958 correctly can save you time and ensure proper submission.
-
How can airSlate SignNow help with state form 53958?
airSlate SignNow offers an easy-to-use platform to manage and eSign state form 53958 efficiently. With our intuitive interface, you can fill out the form and send it directly for electronic signatures. This streamlines the process and ensures that your submissions are completed quickly and securely.
-
Is there a cost associated with using airSlate SignNow for state form 53958?
Yes, airSlate SignNow provides various pricing plans tailored to fit your business needs. Our plans are cost-effective and designed to ensure you get the best value while processing state form 53958 and other documents efficiently. We also offer a free trial so you can evaluate our services before committing.
-
What features does airSlate SignNow offer for managing state form 53958?
airSlate SignNow includes features such as templates, automated workflows, and real-time tracking for state form 53958. Our platform allows you to create reusable templates for quick access and ensures all signers are notified. Additionally, you can track the signing process in real-time to maintain control over your documents.
-
Can I integrate airSlate SignNow with other applications for state form 53958?
Absolutely! airSlate SignNow supports integrations with various applications, making it easier to manage state form 53958. Whether you need to link with CRM systems, cloud storage, or project management tools, our platform is designed to work seamlessly with your existing workflows.
-
What are the benefits of using airSlate SignNow for state form 53958?
Using airSlate SignNow for state form 53958 enhances efficiency and reduces errors that can occur with traditional paper forms. Our digital solution allows you to eSign documents quickly, maintain compliance, and access records from anywhere. This flexibility not only saves time but also supports remote work environments.
-
Is airSlate SignNow secure for processing state form 53958?
Yes, airSlate SignNow prioritizes security and uses advanced encryption to protect your data while processing state form 53958. We comply with industry standards to ensure that your documents remain safe and confidential throughout the signing process. Your peace of mind is our priority.
Get more for taxpayers initiate download
Find out other indiana dlgf initiate
- How Do I Electronic signature Iowa Legal Form
- Help Me With Electronic signature Iowa Legal Form
- How Can I Electronic signature Iowa Legal Form
- Can I Electronic signature Iowa Legal Form
- How To Electronic signature Iowa Legal Form
- How Do I Electronic signature Iowa Legal Form
- Help Me With Electronic signature Iowa Legal Form
- Can I Electronic signature Iowa Legal Form
- How Can I Electronic signature Iowa Legal Form
- How To Electronic signature Iowa Legal Form
- How Do I Electronic signature Iowa Legal Form
- Help Me With Electronic signature Iowa Legal Form
- How Can I Electronic signature Iowa Legal Form
- Can I Electronic signature Iowa Legal Form
- How To Electronic signature Iowa Legal Form
- Help Me With Electronic signature Iowa Legal Form
- How Do I Electronic signature Iowa Legal Form
- How Can I Electronic signature Iowa Legal Form
- Can I Electronic signature Iowa Legal Form
- How To Electronic signature Iowa Legal Form