
Flashing of Vents Form


What is the Flashing Of Vents
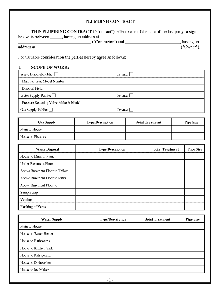
The flashing of vents refers to a specific form used in construction and roofing to ensure proper sealing around vent pipes and other protrusions on a roof. This form is crucial for preventing water leaks and ensuring the longevity of roofing systems. It typically outlines the materials used, installation techniques, and compliance with local building codes. Understanding the flashing of vents is essential for contractors and builders to maintain safety and structural integrity in construction projects.
How to use the Flashing Of Vents
Using the flashing of vents form involves several steps to ensure proper documentation and compliance with building regulations. First, gather all necessary information regarding the vent installation, including measurements and materials. Next, fill out the form accurately, ensuring all details are correct to avoid delays. Once completed, the form should be submitted to the relevant local authority or building department for approval. This process helps ensure that the installation meets safety standards and local building codes.
Steps to complete the Flashing Of Vents
Completing the flashing of vents form involves a systematic approach:
- Collect necessary information, including vent specifications and installation details.
- Fill out the form with accurate data, ensuring compliance with local regulations.
- Review the completed form for any errors or omissions.
- Submit the form to the appropriate local authority for approval.
Following these steps ensures that the flashing of vents is documented correctly, facilitating a smooth approval process.
Legal use of the Flashing Of Vents
The flashing of vents form is legally binding when filled out and submitted according to local building codes and regulations. It serves as a record of compliance with safety standards and is essential for inspections. Failure to complete this form correctly can lead to legal repercussions, including fines or the requirement to redo work that does not meet code. Therefore, understanding the legal implications of the flashing of vents form is critical for contractors and builders.
Key elements of the Flashing Of Vents
Key elements of the flashing of vents form include:
- Identification of the vent type and location.
- Specifications of materials used for flashing.
- Installation methods and techniques.
- Compliance statements with local building codes.
These components ensure that the installation is documented properly and meets all necessary safety and regulatory standards.
State-specific rules for the Flashing Of Vents
Each state in the U.S. may have unique regulations regarding the flashing of vents. These can include specific materials that must be used, installation techniques, and required inspections. It is essential for contractors to familiarize themselves with the state-specific rules to ensure compliance and avoid potential penalties. Checking with local building departments or regulatory agencies can provide the necessary guidelines for each state.
Examples of using the Flashing Of Vents
Examples of using the flashing of vents form can be seen in various construction scenarios, such as:
- Residential roofing projects where vent pipes penetrate the roof surface.
- Commercial buildings requiring compliance with strict building codes.
- Renovation projects that involve updating existing vent installations.
These examples illustrate the importance of the form in ensuring that all installations are documented and compliant with safety standards.
Quick guide on how to complete flashing of vents
Effortlessly Prepare [SKS] on Any Device
Digital document management has become increasingly favored by businesses and individuals alike. It offers a superb eco-friendly substitute for traditional printed and signed documents, as you can access the necessary form and securely keep it online. airSlate SignNow equips you with all the resources needed to create, edit, and electronically sign your documents swiftly and without delays. Manage [SKS] on any device through airSlate SignNow's Android or iOS applications, and simplify any document-related process today.
How to Edit and Electronically Sign [SKS] with Ease
- Obtain [SKS] and then click Get Form to begin.
- Use the tools we offer to fill out your form.
- Mark pertinent sections of the documents or obscure sensitive details with tools that airSlate SignNow specially provides for that purpose.
- Generate your electronic signature using the Sign tool, which takes seconds and carries the same legal validity as a conventional wet ink signature.
- Review all information and then click on the Done button to save your modifications.
- Select your preferred method of delivering your form, whether by email, text message (SMS), invitation link, or download it to your computer.
Move past concerns of lost or misplaced documents, tedious form searches, or errors that necessitate printing additional document copies. airSlate SignNow addresses your document management needs in just a few clicks from any device you choose. Edit and electronically sign [SKS] to ensure excellent communication throughout every stage of the form preparation process with airSlate SignNow.
Create this form in 5 minutes or less
Related searches to Flashing Of Vents
Create this form in 5 minutes!
People also ask
-
What is the Flashing Of Vents feature in airSlate SignNow?
The Flashing Of Vents feature in airSlate SignNow allows users to securely send, sign, and manage documents online. This feature ensures that all parties can efficiently handle their signatures without the hassle of physical paperwork, streamlining the process for everyone involved.
-
How does the Flashing Of Vents integrate with other tools I use?
airSlate SignNow’s Flashing Of Vents integrates smoothly with various productivity tools and platforms such as Google Drive, Dropbox, and others. This seamless integration helps you manage documents more effectively, allowing you to send and receive signed documents directly from the applications you use daily.
-
Is there a cost associated with using the Flashing Of Vents feature?
Yes, there is a pricing structure for using the Flashing Of Vents feature based on the subscription plan you choose. airSlate SignNow offers flexible plans to cater to businesses of all sizes, ensuring that you receive the best value while accessing powerful document management features.
-
What benefits does the Flashing Of Vents provide for businesses?
The Flashing Of Vents feature signNowly enhances operational efficiency by reducing the time spent on document management. By enabling quick and secure electronic signatures, businesses can streamline their workflows, improve document turnaround time, and ultimately drive productivity.
-
Can I customize the Flashing Of Vents feature for my specific needs?
Absolutely! airSlate SignNow allows users to customize the Flashing Of Vents feature to meet specific requirements. Whether it’s setting expiration dates or creating templates, you have the flexibility to tailor the feature according to your business needs.
-
What types of documents can I use the Flashing Of Vents feature with?
You can use the Flashing Of Vents feature with a wide variety of documents, including contracts, agreements, and forms. This versatility makes it an ideal solution for different industries, from real estate to healthcare, ensuring that all your document signing needs are covered.
-
Is training available for using the Flashing Of Vents feature?
Yes, airSlate SignNow offers comprehensive training and support for the Flashing Of Vents feature. Users can access various tutorials, resources, and customer support to ensure they maximize the benefits of this powerful tool effectively.
Get more for Flashing Of Vents
- Raisch creek off road park membership application form
- Form 14 rto 43575700
- Dhs background check form
- The time of your life pdf form
- Expression of wish form royal mail group
- Home improvement salesperson license application suffolk county suffolkcountyny form
- F 44243 dhs wisconsin form
- Cities permit form
Find out other Flashing Of Vents
- Sign Virginia Doctors Lease Template Simple
- Sign West Virginia Doctors Lease Agreement Form Easy
- Sign West Virginia Doctors Permission Slip Now
- Sign West Virginia Doctors Lease Agreement Form Safe
- Sign West Virginia Doctors Permission Slip Later
- Sign Virginia Doctors Lease Template Easy
- Sign West Virginia Doctors Stock Certificate Online
- Sign West Virginia Doctors Permission Slip Myself
- Sign West Virginia Doctors Stock Certificate Computer
- Sign West Virginia Doctors Stock Certificate Mobile
- Sign West Virginia Doctors Permission Slip Free
- Sign West Virginia Doctors Stock Certificate Now
- Sign Virginia Doctors Lease Template Safe
- Sign West Virginia Doctors Stock Certificate Later
- Sign West Virginia Doctors Stock Certificate Myself
- Sign West Virginia Doctors Permission Slip Secure
- Sign West Virginia Doctors Stock Certificate Free
- Sign West Virginia Doctors Stock Certificate Secure
- Sign West Virginia Doctors Permission Slip Fast
- Sign West Virginia Doctors Stock Certificate Fast