
Contractor is Responsible for All Scheduling Delivery of All Painting Materials Form


What is the Contractor Is Responsible For All Scheduling Delivery Of All Painting Materials
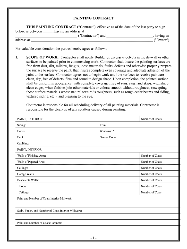
The form titled "Contractor Is Responsible For All Scheduling Delivery Of All Painting Materials" outlines the obligations of a contractor regarding the procurement and delivery of painting materials for a project. This document serves as a formal acknowledgment that the contractor takes full responsibility for coordinating the timing and logistics of material delivery. By signing this form, the contractor agrees to manage all aspects of scheduling, ensuring that the necessary supplies arrive on time to meet project deadlines.
How to use the Contractor Is Responsible For All Scheduling Delivery Of All Painting Materials
To effectively utilize the "Contractor Is Responsible For All Scheduling Delivery Of All Painting Materials" form, begin by filling in the required details, such as the contractor's name, project specifics, and delivery timelines. Ensure that all parties involved understand their roles and responsibilities. Once completed, all relevant stakeholders should review the document for accuracy before signing. This form can be executed electronically, allowing for a streamlined process that ensures all parties have access to the signed agreement.
Steps to complete the Contractor Is Responsible For All Scheduling Delivery Of All Painting Materials
Completing the "Contractor Is Responsible For All Scheduling Delivery Of All Painting Materials" form involves several key steps:
- Gather necessary project information, including timelines and material specifications.
- Fill out the contractor's details and project specifics in the form.
- Review the document with all parties to ensure clarity and agreement on responsibilities.
- Sign the form electronically to maintain a record of the agreement.
- Distribute copies of the signed form to all involved parties for their records.
Legal use of the Contractor Is Responsible For All Scheduling Delivery Of All Painting Materials
The legal validity of the "Contractor Is Responsible For All Scheduling Delivery Of All Painting Materials" form hinges on compliance with relevant eSignature laws, such as the ESIGN Act and UETA. When executed properly, this form can be considered a legally binding document, provided it includes the necessary signatures and fulfills any specific state requirements. It is advisable to consult legal counsel to ensure that the form meets all legal standards applicable to the project.
Key elements of the Contractor Is Responsible For All Scheduling Delivery Of All Painting Materials
Several key elements are essential for the "Contractor Is Responsible For All Scheduling Delivery Of All Painting Materials" form to be effective:
- Contractor Information: Name, contact details, and company information.
- Project Details: Description of the project and specific materials required.
- Delivery Schedule: Timelines for when materials are expected to arrive.
- Signatures: Signatures from the contractor and any other relevant parties.
Examples of using the Contractor Is Responsible For All Scheduling Delivery Of All Painting Materials
Examples of situations where the "Contractor Is Responsible For All Scheduling Delivery Of All Painting Materials" form is utilized include:
- A residential painting project where the contractor is tasked with sourcing and delivering paint and supplies.
- A commercial renovation where multiple contractors coordinate to ensure timely delivery of materials for various trades.
- Any project requiring precise scheduling to avoid delays, such as seasonal work or events.
Quick guide on how to complete contractor is responsible for all scheduling delivery of all painting materials
Effortlessly Complete [SKS] on Any Device
Digital document management has gained traction among companies and individuals. It serves as an excellent environmentally friendly alternative to traditional printed and signed documents, as you can easily locate the appropriate form and securely store it online. airSlate SignNow equips you with all the tools needed to create, edit, and electronically sign your documents quickly without delays. Manage [SKS] on any device using airSlate SignNow's Android or iOS applications and simplify any document-related process today.
The Easiest Way to Edit and eSign [SKS] Stress-Free
- Find [SKS] and click Get Form to begin.
- Use the tools we offer to fill out your form.
- Mark important sections of the documents or redact sensitive information with tools that airSlate SignNow provides specifically for that purpose.
- Create your signature using the Sign feature, which takes just seconds and holds the same legal validity as a conventional ink signature.
- Review the details and then click the Done button to save your changes.
- Select how you wish to send your form, via email, SMS, or invitation link, or download it to your computer.
Eliminate concerns over lost or misplaced documents, arduous form searching, or errors that require printing new document copies. airSlate SignNow takes care of all your document management requirements in just a few clicks from any device you prefer. Edit and eSign [SKS] to ensure excellent communication at every stage of your form preparation with airSlate SignNow.
Create this form in 5 minutes or less
Related searches to Contractor Is Responsible For All Scheduling Delivery Of All Painting Materials
Create this form in 5 minutes!
People also ask
-
What does it mean when we say 'Contractor Is Responsible For All Scheduling Delivery Of All Painting Materials'?
This phrase indicates that the contractor must manage all aspects of scheduling and delivering painting materials. It's essential for maintaining project timelines and ensuring that materials arrive when needed. By clearly defining this responsibility, you can streamline communication and avoid delays.
-
How does airSlate SignNow help manage contractor responsibilities?
airSlate SignNow allows you to effectively manage contractual agreements by providing an easy-to-use platform for eSigning and sending documents. This feature ensures that all parties acknowledge and accept their responsibilities, including that 'Contractor Is Responsible For All Scheduling Delivery Of All Painting Materials.' Transparent documentation reduces misunderstandings.
-
What pricing plans does airSlate SignNow offer?
airSlate SignNow offers several pricing plans tailored to fit different business sizes and needs. Each plan includes features for document management and eSigning. Investing in a reliable solution simplifies processes and ensures that contractors are accountable for scheduling and delivering painting materials.
-
Can airSlate SignNow be integrated with other tools?
Yes, airSlate SignNow integrates seamlessly with a variety of software applications such as CRM and project management tools. This integration allows you to maintain a smooth workflow where you can automatically keep track of responsibilities like ensuring the 'Contractor Is Responsible For All Scheduling Delivery Of All Painting Materials.'
-
What are the benefits of using airSlate SignNow for contractors?
Using airSlate SignNow streamlines document signing and management processes, making it easier for contractors to fulfill their responsibilities. Contractors can quickly eSign documents that specify they are 'Responsible For All Scheduling Delivery Of All Painting Materials,' enhancing accountability and improving project efficiency.
-
Is airSlate SignNow user-friendly for contractors who are not tech-savvy?
Absolutely! airSlate SignNow is designed with a user-friendly interface that makes it easy for anyone to navigate, regardless of their tech skills. Contractors can easily manage and eSign documents related to their duties, including the crucial aspect that 'Contractor Is Responsible For All Scheduling Delivery Of All Painting Materials.'
-
How can airSlate SignNow improve communication between contractors and clients?
By providing a platform for clear documentation and eSigning, airSlate SignNow enhances communication between contractors and clients. It ensures both parties understand their roles, including the important note that 'Contractor Is Responsible For All Scheduling Delivery Of All Painting Materials,' thus fostering a collaborative working environment.
Get more for Contractor Is Responsible For All Scheduling Delivery Of All Painting Materials
- Electrical permit application king city oregon form
- Check into cash pdf application form
- Indexing in nursing form
- Coccfr cuyahogacounty us form
- Senior citizen certification of eligibility for tuition nvcc form
- Application for index number fee 210 00 nycourts form
- The atvutv permit application washington county clerk washcoclerk form
- Flight report example form
Find out other Contractor Is Responsible For All Scheduling Delivery Of All Painting Materials
- eSignature Nevada Construction Limited Power Of Attorney Free
- eSignature Nevada Construction Limited Power Of Attorney Secure
- eSignature Nevada Construction Limited Power Of Attorney Fast
- How Can I eSignature Nevada Construction Business Associate Agreement
- eSignature New Hampshire Construction Letter Of Intent Computer
- eSignature Nevada Construction Limited Power Of Attorney Simple
- eSignature Nevada Construction Limited Power Of Attorney Easy
- eSignature New Hampshire Construction Letter Of Intent Mobile
- eSignature Nevada Construction Limited Power Of Attorney Safe
- Can I eSignature Nevada Construction Business Associate Agreement
- eSignature New Hampshire Construction Letter Of Intent Now
- How To eSignature Nevada Construction Limited Power Of Attorney
- How Do I eSignature Nevada Construction Limited Power Of Attorney
- eSignature New Hampshire Construction Letter Of Intent Later
- Help Me With eSignature Nevada Construction Limited Power Of Attorney
- How Can I eSignature Nevada Construction Limited Power Of Attorney
- Can I eSignature Nevada Construction Limited Power Of Attorney
- eSignature New Hampshire Construction Letter Of Intent Myself
- eSignature New Hampshire Construction Letter Of Intent Free
- eSignature Montana Construction Forbearance Agreement Online