
Pennsylvania Disclosure Form


What is the Pennsylvania Disclosure
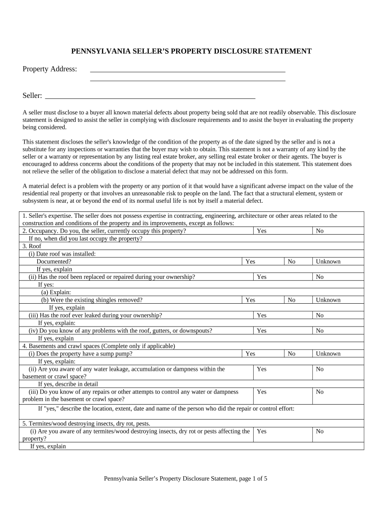
The Pennsylvania Disclosure refers to a legal document that outlines specific information that must be disclosed in various transactions, particularly in real estate. This form is essential for ensuring transparency between parties involved in a property transaction. It typically includes details about the property's condition, any known defects, and other pertinent information that could affect the buyer's decision. Understanding the Pennsylvania Disclosure is crucial for both sellers and buyers to comply with state regulations and to facilitate a fair transaction.
How to use the Pennsylvania Disclosure
Using the Pennsylvania Disclosure involves several steps to ensure that all required information is accurately provided. Initially, the seller must complete the form by disclosing any known issues with the property. This includes structural problems, pest infestations, and other factors that could influence the property's value. Once completed, the disclosure must be shared with potential buyers during the negotiation process. It is advisable for buyers to review the disclosure carefully and ask questions about any concerns before finalizing the purchase.
Steps to complete the Pennsylvania Disclosure
Completing the Pennsylvania Disclosure requires attention to detail and honesty. Here are the steps involved:
- Gather all relevant information about the property, including maintenance records and any past inspections.
- Fill out the disclosure form, ensuring that all sections are completed accurately.
- Disclose any known defects or issues, as failing to do so can lead to legal consequences.
- Review the completed form for accuracy and clarity.
- Provide the form to potential buyers in a timely manner, ideally before any offers are made.
Legal use of the Pennsylvania Disclosure
The legal use of the Pennsylvania Disclosure is governed by state laws that mandate full disclosure of property conditions. This requirement protects buyers from unforeseen issues and holds sellers accountable for the information they provide. The form serves as a legal document that can be referenced in case of disputes. Therefore, it is essential for sellers to ensure that all disclosed information is truthful and complete to avoid potential legal repercussions.
Key elements of the Pennsylvania Disclosure
Several key elements must be included in the Pennsylvania Disclosure to ensure compliance with state regulations. These elements typically encompass:
- Property address and identification details.
- Disclosure of any known defects or issues with the property.
- Information about past repairs or renovations.
- Details regarding environmental hazards, if applicable.
- Any other relevant information that could impact the buyer's decision.
Disclosure Requirements
The disclosure requirements in Pennsylvania are designed to protect both buyers and sellers. Sellers are required to provide a completed disclosure form to potential buyers before the sale is finalized. This requirement ensures that buyers are informed about the property's condition and any potential issues. Failure to comply with these requirements can result in legal action against the seller, including potential claims for damages if undisclosed issues arise after the sale.
Quick guide on how to complete pennsylvania disclosure
Prepare pennsylvania disclosure seamlessly on any device
Digital document management has gained popularity among companies and individuals alike. It serves as an ideal eco-friendly alternative to traditional printed and signed paperwork, allowing you to obtain the necessary forms and securely store them online. airSlate SignNow equips you with all the tools required to create, edit, and electronically sign your documents swiftly without any hold-ups. Handle pennsylvania disclosure on any device with the airSlate SignNow apps for Android or iOS and enhance any document-related process today.
How to edit and eSign pennsylvania estate with ease
- Locate pennsylvania disclosure and select Get Form to begin.
- Use the tools we provide to complete your form.
- Mark important sections of your documents or hide confidential details with the tools that airSlate SignNow specifically offers for that purpose.
- Create your electronic signature using the Sign feature, which takes mere seconds and has the same legal validity as a conventional ink signature.
- Review the details and click the Done button to save your modifications.
- Choose how you wish to send your form, whether by email, text message (SMS), or invite link, or download it to your computer.
Say goodbye to lost or misplaced documents, tedious form searching, or errors that necessitate printing new copies. airSlate SignNow fulfills all your document management requirements in just a few clicks from your preferred device. Edit and eSign pennsylvania estate and maintain excellent communication at every step of the form preparation process with airSlate SignNow.
Create this form in 5 minutes or less
Related searches to pennsylvania disclosure
Create this form in 5 minutes!
People also ask pennsylvania estate
-
What is Pennsylvania disclosure and why is it important?
Pennsylvania disclosure refers to the legal requirements for parties to disclose certain information during the transaction process. This is crucial for ensuring transparency and protecting both buyers and sellers in real estate and other transactions. Understanding these requirements can help you avoid legal pitfalls.
-
How can airSlate SignNow assist with Pennsylvania disclosure documents?
airSlate SignNow provides a seamless platform to create, send, and eSign Pennsylvania disclosure documents quickly and efficiently. With customizable templates, you can ensure that all necessary information is included and compliant with state laws. This streamlines the process, saving you time and reducing the risk of errors.
-
What features does airSlate SignNow offer for managing Pennsylvania disclosure?
airSlate SignNow offers features such as customizable document templates, secure eSigning, and collaborative editing to assist with Pennsylvania disclosure. These tools ensure that you're able to complete and manage your disclosures in compliance with legal standards, enhancing efficiency and organization.
-
Is airSlate SignNow affordable for small businesses needing to handle Pennsylvania disclosures?
Yes, airSlate SignNow offers competitive pricing plans designed to fit the needs of small businesses handling Pennsylvania disclosures. By providing cost-effective solutions without compromising on quality, you can ensure compliance without overextending your budget.
-
Can I integrate airSlate SignNow with other tools for managing Pennsylvania disclosure processes?
Absolutely! airSlate SignNow integrates with various applications such as CRM systems, cloud storage, and productivity tools to enhance your workflow for managing Pennsylvania disclosures. This seamless integration allows for improved efficiency and better document management.
-
What are the benefits of using airSlate SignNow for Pennsylvania disclosure documents?
Using airSlate SignNow for Pennsylvania disclosure documents ensures your process is streamlined, secure, and legally compliant. The platform's user-friendly interface and robust security measures protect your sensitive information while providing a clear audit trail for each document. This not only enhances professionalism but also builds trust with your clients.
-
How does airSlate SignNow ensure the security of Pennsylvania disclosure documents?
airSlate SignNow prioritizes the security of your Pennsylvania disclosure documents through advanced encryption standards and compliance with industry regulations. All documents are stored securely, and eSignature authentication processes ensure that only authorized individuals can access sensitive information, safeguarding your data.
Get more for pennsylvania disclosure
- Rtp easement from citizen to lpa department for local form
- Form of subordination non disturbance and attornment
- Mortgagees form subordination non disturbance and
- Right of way and utilities federal lands highway form
- Option and structure lease agreement this form
- Ncdot right of way manual connect ncdot form
- Of telecommunications facility form
- Option agreement long form sec
Find out other pennsylvania estate
- eSignature North Dakota Government Agreement Computer
- eSignature Iowa Finance & Tax Accounting Operating Agreement Online
- eSignature North Dakota Government Agreement Mobile
- eSignature Iowa Finance & Tax Accounting Operating Agreement Computer
- eSignature Iowa Finance & Tax Accounting Operating Agreement Mobile
- eSignature North Dakota Government Agreement Now
- eSignature Iowa Finance & Tax Accounting Operating Agreement Now
- eSignature Iowa Finance & Tax Accounting Operating Agreement Later
- How To eSignature North Dakota Government Rental Application
- eSignature North Dakota Government Agreement Later
- eSignature Iowa Finance & Tax Accounting Operating Agreement Myself
- eSignature Iowa Finance & Tax Accounting Operating Agreement Free
- eSignature North Dakota Government Agreement Myself
- How Do I eSignature North Dakota Government Rental Application
- eSignature Iowa Finance & Tax Accounting Operating Agreement Secure
- eSignature Iowa Finance & Tax Accounting Operating Agreement Fast
- eSignature North Dakota Government Agreement Free
- eSignature Iowa Finance & Tax Accounting Operating Agreement Simple
- eSignature Iowa Finance & Tax Accounting Operating Agreement Easy
- Help Me With eSignature North Dakota Government Rental Application