
Painting Contract for Contractor Virginia Form


What is the printable painting contract template?
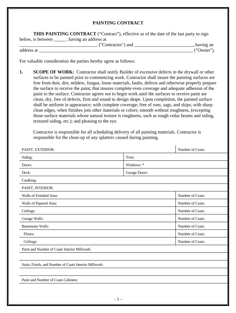
The printable painting contract template is a formal document that outlines the terms and conditions between a painter and a client. This contract serves as a legal agreement that details the scope of work, payment terms, and responsibilities of both parties. It is essential for ensuring clarity and protecting the interests of both the contractor and the client. The template typically includes sections for project specifications, timelines, materials to be used, and any warranties or guarantees associated with the work.
Key elements of the printable painting contract template
When creating a printable painting contract template, several key elements should be included to ensure it is comprehensive and legally binding. These elements often consist of:
- Contact information: Names and addresses of both the contractor and the client.
- Project description: Detailed information about the painting project, including specific areas to be painted and any preparatory work required.
- Payment terms: Clear terms regarding the total cost, payment schedule, and acceptable payment methods.
- Timeline: Start and completion dates for the project, along with any milestones.
- Materials: Specification of the types of paint and other materials to be used.
- Warranties: Any guarantees provided by the contractor regarding the quality of work and materials.
- Signatures: Spaces for both parties to sign and date the contract, confirming their agreement.
How to use the printable painting contract template
Using a printable painting contract template is straightforward. First, download the template from a reliable source. Next, fill in the necessary details, including the project specifics and the contact information for both the contractor and the client. Ensure that all terms are clearly stated and agreed upon by both parties. Once completed, print the contract and have both parties sign it. This signed document serves as a binding agreement that can be referenced throughout the project.
Steps to complete the printable painting contract template
Completing the printable painting contract template involves several important steps:
- Download the template: Obtain a reliable version of the printable painting contract template.
- Fill in details: Enter the names, addresses, and contact information of both parties.
- Specify the project: Clearly outline the scope of work, including areas to be painted and any specific requirements.
- Set payment terms: Define the total cost, payment schedule, and methods of payment.
- Include timelines: Indicate the start date, completion date, and any milestones.
- Review and finalize: Ensure all details are accurate and agreed upon before printing.
- Sign the contract: Both parties should sign and date the contract to make it legally binding.
Legal use of the printable painting contract template
For the printable painting contract template to be legally binding, it must meet certain criteria. Both parties must have the legal capacity to enter into a contract, which generally means they are of legal age and sound mind. The contract must be signed voluntarily, without coercion. Additionally, the terms outlined in the contract should be clear and specific to avoid ambiguity. Compliance with local laws and regulations regarding contracts is also essential to ensure the document's enforceability.
Examples of using the printable painting contract template
There are various scenarios where a printable painting contract template can be beneficial. For instance, a homeowner hiring a contractor for an interior painting job can use the template to outline the project details and payment terms. Similarly, a contractor may use the template when bidding on a commercial painting project to ensure that all parties understand the scope of work and expectations. These examples illustrate how the template can facilitate clear communication and protect the interests of both parties involved in a painting project.
Quick guide on how to complete printable painting contract template
Complete printable painting contract template effortlessly on any device
Digital document management has become increasingly popular among companies and individuals. It offers an ideal eco-friendly alternative to conventional printed and signed documents, as you can locate the necessary form and securely store it online. airSlate SignNow provides you with all the tools required to create, modify, and electronically sign your documents quickly and without interruptions. Handle printable painting contract template on any device with airSlate SignNow's Android or iOS applications and streamline any document-related workflow today.
How to modify and electronically sign painting contract with ease
- Obtain printable painting contract template and click on Get Form to begin.
- Utilize the tools we offer to complete your document.
- Identify essential sections of the documents or redact sensitive information with tools that airSlate SignNow specifically provides for that purpose.
- Generate your eSignature using the Sign tool, which takes seconds and holds the same legal validity as a traditional handwritten signature.
- Review all the details and then click on the Done button to save your changes.
- Choose how you wish to send your form, via email, text message (SMS), invitation link, or download it to your computer.
Eliminate concerns about lost or misplaced documents, tedious form searches, or errors that necessitate printing new copies. airSlate SignNow meets your document management needs in just a few clicks from a device of your choosing. Modify and electronically sign painting contract and ensure effective communication at every stage of your form preparation process with airSlate SignNow.
Create this form in 5 minutes or less
Related searches to printable painting contract template
Create this form in 5 minutes!
People also ask painting contract
-
What is a printable painting contract template?
A printable painting contract template is a pre-designed document that outlines the terms and conditions of a painting project. It ensures that both the painter and the client have a clear understanding of their responsibilities, payment terms, and project timelines. By using a printable painting contract template, you can protect your interests and establish professionalism.
-
How can I customize my printable painting contract template?
You can easily customize your printable painting contract template using airSlate SignNow's user-friendly platform. Modify the text fields to include specific details about your project, such as scope of work, payment schedules, and any additional clauses. This flexibility allows you to create a contract that perfectly fits your needs.
-
Is the printable painting contract template legally binding?
Yes, a properly signed printable painting contract template is legally binding. When both parties eSign the document using airSlate SignNow, it creates a secure and enforceable agreement. Always ensure that the contract complies with local laws to maintain its validity.
-
What are the benefits of using a printable painting contract template?
Using a printable painting contract template offers several benefits, including clarity on project terms, reduced risk of misunderstandings, and enhanced professionalism. It streamlines the hiring process for both painters and clients, ensuring that all parties are on the same page from the start. Additionally, it saves time as you won’t need to draft a contract from scratch.
-
Can I integrate the printable painting contract template with other tools?
Yes, airSlate SignNow allows you to integrate your printable painting contract template with various third-party applications. This integration can enhance your workflow by automating document management and storage. It ensures that all your contractual documents are organized, accessible, and easy to manage.
-
What is the pricing structure for using the printable painting contract template?
airSlate SignNow offers flexible pricing plans for using printable painting contract templates, catering to different business needs. You can choose from various subscription plans that provide access to features, including unlimited document signing and customizable templates. This enables you to find a solution that fits your budget while still benefiting from a professional contract.
-
How do I download and print the painting contract template?
After customizing your printable painting contract template on airSlate SignNow, you can easily download it in various formats such as PDF. The downloaded file can be printed and provided to your clients or stored for your records. This process ensures that you have a hard copy of the signed agreement when needed.
Get more for printable painting contract template
Find out other painting contract
- Electronic signature Tennessee Charity Separation Agreement Later
- Electronic signature South Dakota Business Operations Job Description Template Free
- Electronic signature Tennessee Charity Separation Agreement Myself
- Electronic signature Kansas Construction Lease Termination Letter Now
- Electronic signature Tennessee Charity Separation Agreement Free
- Electronic signature Tennessee Charity Separation Agreement Secure
- Electronic signature South Dakota Business Operations Job Description Template Secure
- Electronic signature Kansas Construction Lease Termination Letter Later
- Electronic signature Tennessee Charity Separation Agreement Fast
- Electronic signature Tennessee Charity Separation Agreement Easy
- Electronic signature Tennessee Charity Separation Agreement Simple
- Electronic signature Kansas Construction Lease Termination Letter Myself
- Electronic signature South Dakota Business Operations Job Description Template Fast
- Electronic signature Tennessee Charity Separation Agreement Safe
- Electronic signature Kansas Construction Lease Termination Letter Free
- Electronic signature Tennessee Charity Emergency Contact Form Online
- Electronic signature South Dakota Business Operations Job Description Template Simple
- Electronic signature Kansas Construction Lease Termination Letter Secure
- Electronic signature Tennessee Charity Emergency Contact Form Computer
- Electronic signature Tennessee Charity Emergency Contact Form Mobile