
Application for a Flating Objrct Prmit New York Form


What is the Application For A Flating Objrct Prmit New York Form
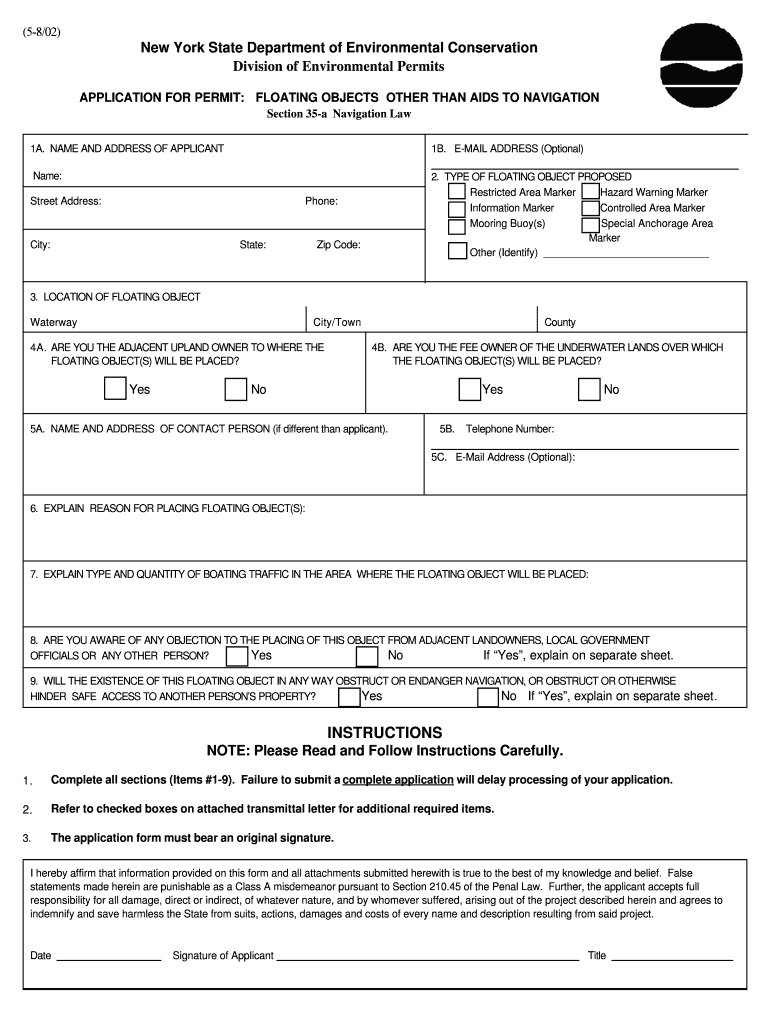
The Application For A Flating Objrct Prmit New York Form is designed for individuals or businesses seeking permission to operate specific types of flating activities within New York. This form is essential for ensuring compliance with local regulations governing flating practices, which may include safety standards, environmental considerations, and zoning laws. By completing this application, applicants formally request the necessary approvals to engage in their intended flating operations legally.
How to use the Application For A Flating Objrct Prmit New York Form
Using the Application For A Flating Objrct Prmit New York Form involves several key steps. First, ensure you have the correct version of the form, which can typically be obtained from the relevant state or local authority. Next, fill out the form accurately, providing all required information such as personal details, the nature of the flating activities, and any supporting documentation. Once completed, submit the form through the designated channels, which may include online submission, mailing, or in-person delivery to the appropriate office.
Steps to complete the Application For A Flating Objrct Prmit New York Form
Completing the Application For A Flating Objrct Prmit New York Form requires careful attention to detail. Follow these steps for a successful submission:
- Obtain the latest version of the form from the appropriate authority.
- Read the instructions thoroughly to understand the requirements.
- Fill in your personal and business information accurately.
- Detail the specific flating activities you plan to undertake.
- Attach any necessary supporting documents, such as proof of insurance or compliance with safety regulations.
- Review the completed form for accuracy before submission.
- Submit the form according to the specified method: online, by mail, or in person.
Legal use of the Application For A Flating Objrct Prmit New York Form
The legal use of the Application For A Flating Objrct Prmit New York Form is crucial for ensuring that all flating activities comply with state and local laws. This form serves as a formal request for permission to operate, and failure to submit it properly can result in penalties or legal issues. It is important to understand the legal implications of the information provided in the application, as inaccuracies or omissions can lead to delays or denials of the permit.
Key elements of the Application For A Flating Objrct Prmit New York Form
Several key elements must be included in the Application For A Flating Objrct Prmit New York Form to ensure its validity:
- Applicant Information: Full name, address, and contact details.
- Business Details: If applicable, include the business name, structure, and registration information.
- Description of Activities: A clear outline of the flating activities intended to be conducted.
- Supporting Documentation: Any required documents that demonstrate compliance with relevant regulations.
- Signature: The applicant's signature certifying the truthfulness of the information provided.
Eligibility Criteria
To be eligible for the Application For A Flating Objrct Prmit New York Form, applicants must meet specific criteria set by local authorities. Generally, these criteria may include:
- Being a legal resident or registered business entity in New York.
- Compliance with all local zoning and safety regulations.
- Provision of accurate and complete information on the application.
- Meeting any additional requirements specific to the type of flating activities proposed.
Quick guide on how to complete objrct
Complete objrct effortlessly on any device
Online document management has gained traction among businesses and individuals alike. It offers an ideal environmentally friendly alternative to conventional printed and signed documents, allowing you to locate the correct form and securely maintain it online. airSlate SignNow equips you with all the necessary tools to create, modify, and eSign your documents swiftly without delays. Manage aflating on any device using airSlate SignNow Android or iOS applications and simplify any document-related procedure today.
The simplest method to alter and eSign aflating marketing with ease
- Obtain flating and click Get Form to begin.
- Utilize the resources we provide to finalize your document.
- Emphasize key sections of the documents or obscure sensitive data with tools that airSlate SignNow specifically provides for this purpose.
- Create your eSignature using the Sign tool, which takes mere seconds and holds the same legal validity as a traditional handwritten signature.
- Review all details and click on the Done button to save your amendments.
- Select your preferred method to deliver your form, whether by email, SMS, or invitation link, or download it to your computer.
Eliminate concerns about lost or misplaced documents, tedious form searches, or errors that necessitate printing new copies. airSlate SignNow fulfills all your document management needs in just a few clicks from any device you choose. Edit and eSign form 2215 and guarantee excellent communication at every stage of your form preparation process with airSlate SignNow.
Create this form in 5 minutes or less
FAQs aflating marketing
-
How should I apply for a restaurant job in New York City: walk in and fill out an application or online?
Walking in might work, but you also run the risk of inconveniencing someone while their working. However, let's say you go for it, have you thought about what questions will I be asked at an interview for a restaurant job? Visit this link to get yourself prepared for what is surely to come your way whether at your impromptu or official interview. Having some prepared answers can make the process run more smoothly which will give you confidence and probably result in a job.
-
Is there a great deal flying to Newark when New York was filled in the US application form?
Newark Liberty International airport is one of the 3 Largest airports to service New York City. Newark is in New Jersey and JFK and Laguardia are in the borough of Queens in New York. Each airport has ground transportation to Manhattan: taxi, bus, van and commuter rails. From any airport you can get to Manhattan in about 45–60 minutes.I cannot say you will get a better deal because you fly into one airport or another. What you will get are different options. For example, you might find that one airport has direct flights with Dallas where the routes between Dallas and the other airports require layovers.
-
I am applying for a job as Interaction Designer in New York, the company has an online form to fill out and they ask about my current salary, I am freelancing.. What should I fill in?
As Sarah said, leave it blank or, if it's a free-form text field, put in "Freelancer".If you put in $50k and they were thinking of paying $75k, you just lost $25k/year. If you put in $75k, but their budget only allows $50k, you may have lost the job on that alone.If you don't put in anything, leave it to the interview, and tell thm that you're a freelancer and adjust your fee according to the difficulty of the job, so there's no set income. If they ask for how much you made last year, explain that that would include periods between jobs, where you made zero, so it's not a fair number.In any financial negotiation, an old saying will always hold true - he who comes up with a number first, loses. Jobs, buying houses - they're both the same. Asking "How much?" is the better side to be on. then if they say they were thinking of $50k-$75k, you can tell them that it's just a little less than you were charging, but the job looks to be VERY interesting, the company seems to be a good one to work for and you're sure that when they see what you're capable of, they'll adjust your increases. (IOW, "I'll take the $75k, but I expect to be making about $90k in a year.")They know how to play the game - show them that you do too.
-
How do I fill out the SS-4 form for a new Delaware C-Corp to get an EIN?
You indicate this is a Delaware C Corp so check corporation and you will file Form 1120.Check that you are starting a new corporation.Date business started is the date you actually started the business. Typically you would look on the paperwork from Delaware and put the date of incorporation.December is the standard closing month for most corporations. Unless you have a signNow business reason to pick a different month use Dec.If you plan to pay yourself wages put one. If you don't know put zero.Unless you are fairly sure you will owe payroll taxes the first year check that you will not have payroll or check that your liability will be less than $1,000. Anything else and the IRS will expect you to file quarterly payroll tax returns.Indicate the type of SaaS services you will offer.
-
How do I fill out an application form to open a bank account?
I want to believe that most banks nowadays have made the process of opening bank account, which used to be cumbersome, less cumbersome. All you need to do is to approach the bank, collect the form, and fill. However if you have any difficulty in filling it, you can always call on one of the banks rep to help you out.
-
How do I fill out an application form for a job at Aersopostale?
Here's a website for you that has information about working at Aeropostale: AéropostaleOne of the answers in the FAQ says that you should visit the store that you'd like to work at so that you can meet the manager and fill out an application. They don't have online applications or printable ones, so going to the store seems like the only option.Good luck! :)
-
How many application forms does a person need to fill out in his/her lifetime?
As many as you want to !
Related searches to flating
Create this form in 5 minutes!
How to create an eSignature for the form 2215
How to make an eSignature for your Application For A Flating Objrct Prmit New York Form in the online mode
How to generate an eSignature for your Application For A Flating Objrct Prmit New York Form in Chrome
How to create an eSignature for signing the Application For A Flating Objrct Prmit New York Form in Gmail
How to create an eSignature for the Application For A Flating Objrct Prmit New York Form right from your smart phone
How to create an electronic signature for the Application For A Flating Objrct Prmit New York Form on iOS
How to create an electronic signature for the Application For A Flating Objrct Prmit New York Form on Android devices
People also ask prmit
-
What is aflating and how does it relate to airSlate SignNow?
Aflating refers to the process of improving business workflows through electronic signatures and document management. airSlate SignNow leverages aflating to streamline document processes, making it easier for users to send, sign, and manage documents in a digital format.
-
How much does airSlate SignNow cost?
airSlate SignNow offers several pricing tiers to cater to different business needs. Our plans start at a competitive rate, allowing you to take advantage of aflating features without breaking the bank. For specific pricing details, visit our pricing page.
-
What features does airSlate SignNow offer to enhance aflating?
airSlate SignNow includes features such as customizable templates, real-time tracking, and automated reminders to enhance aflating. These tools help you manage document workflows efficiently and improve turnaround times for signatures.
-
Can airSlate SignNow integrate with other tools I use?
Yes, airSlate SignNow integrates seamlessly with various tools to support aflating. You can connect it with popular applications like CRM systems, cloud storage solutions, and collaboration tools to enhance your document workflow.
-
Is airSlate SignNow secure for aflating sensitive documents?
Absolutely! airSlate SignNow prioritizes security with advanced encryption and authentication methods to protect your documents during aflating. You can send and sign sensitive documents confidently, knowing that they are secure.
-
How does aflating with airSlate SignNow benefit my business?
Aflating with airSlate SignNow can signNowly streamline your document processes, saving time and reducing costs. The efficiency gained through electronic signatures and document management allows your team to focus on core business operations.
-
Is there a mobile app for airSlate SignNow?
Yes, airSlate SignNow has a mobile app that facilitates aflating on the go. You can send, sign, and manage documents from your smartphone or tablet, ensuring that you can access important documents wherever you are.
Get more for aflating
Find out other aflating marketing
- How To eSign Arizona Real Estate Presentation
- Can I eSign Arizona Real Estate PPT
- How Do I eSign Arizona Real Estate Presentation
- Help Me With eSign Arizona Real Estate Presentation
- How Do I eSign Arizona Real Estate Presentation
- How Can I eSign Arizona Real Estate Presentation
- Can I eSign Arizona Real Estate Presentation
- Help Me With eSign Arizona Real Estate Presentation
- How Can I eSign Arizona Real Estate Presentation
- How To eSign Arizona Real Estate PPT
- How Do I eSign Arizona Real Estate PPT
- Help Me With eSign Arizona Real Estate PPT
- Can I eSign Arizona Real Estate Presentation
- How Can I eSign Arizona Real Estate PPT
- Can I eSign Arizona Real Estate PPT
- How To eSign Arizona Real Estate PPT
- How To eSign Arizona Real Estate PPT
- How Do I eSign Arizona Real Estate PPT
- How Do I eSign Arizona Real Estate PPT
- Help Me With eSign Arizona Real Estate PPT