 
                Farbar as is Form
 
                             
                            What is the Farbar As Is
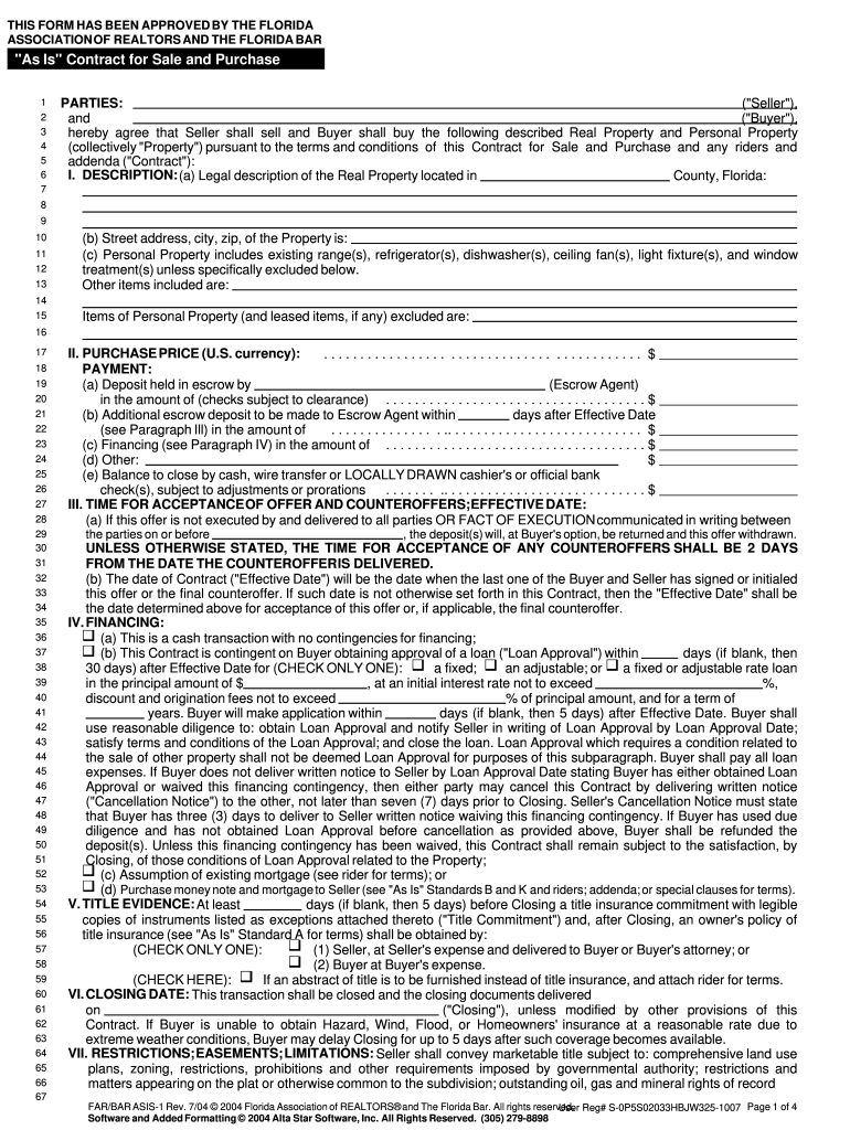
The Farbar As Is contract is a standard real estate agreement used in Florida, specifically designed for the sale of residential properties. This contract allows sellers to sell their property in its current condition, without any obligation to make repairs or improvements. Buyers accept the property "as is," meaning they understand they are purchasing the home in its present state, including any potential issues or defects. This contract is particularly beneficial in competitive markets where buyers are willing to take on properties that may require work.
How to use the Farbar As Is
Using the Farbar As Is contract involves several key steps. First, both parties must agree to the terms outlined in the contract, ensuring that they understand the implications of purchasing a property without repairs. Next, the seller must provide all necessary disclosures regarding the property's condition, including any known issues. Buyers should conduct thorough inspections to assess the property's state before finalizing the agreement. Once both parties are satisfied with the terms, they can sign the contract, making it legally binding.
Steps to complete the Farbar As Is
Completing the Farbar As Is contract involves a few straightforward steps:
- Review the contract carefully to understand all terms and conditions.
- Fill in the required information, including buyer and seller details, property description, and sale price.
- Include any necessary disclosures about the property's condition.
- Both parties should sign and date the contract to finalize the agreement.
- Ensure that copies of the signed contract are distributed to all parties involved.
Legal use of the Farbar As Is
The legal validity of the Farbar As Is contract hinges on compliance with Florida real estate laws. The contract must be signed by both parties and should include all necessary disclosures to be enforceable. It is essential that both the buyer and seller understand their rights and obligations under the contract. Additionally, the contract must adhere to the regulations set forth by the Florida Association of Realtors to ensure it meets legal standards.
Key elements of the Farbar As Is
Several key elements define the Farbar As Is contract:
- Property Condition: The seller sells the property in its current state, with no obligation for repairs.
- Disclosures: Sellers must disclose any known defects or issues with the property.
- Inspection Period: Buyers typically have a specified period to conduct inspections and assess the property.
- Contingencies: The contract may include contingencies that allow buyers to back out under certain conditions.
Examples of using the Farbar As Is
Examples of using the Farbar As Is contract can vary widely. For instance, a seller may list an older home that requires significant renovations. A buyer interested in a fixer-upper might find this contract appealing, as it allows them to purchase the property without the seller making any repairs. Another example could involve a property that has been well-maintained but has minor cosmetic issues. In this case, the buyer accepts the property knowing they will handle any aesthetic updates after the sale.
Quick guide on how to complete florida far bar as is contract 2021
Easily Prepare florida far bar as is contract 2021 on Any Device
The management of documents online has gained popularity among businesses and individuals alike. It serves as an ideal eco-friendly alternative to conventional printed and signed documents, allowing you to access the correct forms and securely store them online. airSlate SignNow provides all the tools necessary to create, modify, and electronically sign your documents quickly and without delays. Handle 2004 far bar on any device using the airSlate SignNow apps for Android or iOS and simplify your document-related activities today.
How to Alter and Electronically Sign farbar contract with Ease
- Locate farbar contract 2021 and click on Get Form to begin.
- Utilize the tools we provide to complete your document.
- Highlight important sections of your documents or redact sensitive information using tools specifically designed for that purpose by airSlate SignNow.
- Create your signature using the Sign tool, which takes only seconds and carries the same legal efficacy as a traditional handwritten signature.
- Review all the information carefully and click the Done button to save your changes.
- Choose your preferred method for sharing your form: via email, text message (SMS), invitation link, or download it to your computer.
Eliminate concerns about lost or misplaced files, the hassle of searching for forms, or errors that necessitate printing new copies. airSlate SignNow caters to your document management needs in just a few clicks from any device you choose. Modify and electronically sign farbar forms and ensure effective communication at every stage of your form preparation process with airSlate SignNow.
Create this form in 5 minutes or less
Related searches to far bar contract 2019 pdf
Create this form in 5 minutes!
How to create an eSignature for the farbar as is contract 2021
How to create an eSignature for your Far Bar 2004 Contract As Is Farbar Cape Coral Title online
How to create an eSignature for your Far Bar 2004 Contract As Is Farbar Cape Coral Title in Chrome
How to make an electronic signature for signing the Far Bar 2004 Contract As Is Farbar Cape Coral Title in Gmail
How to make an eSignature for the Far Bar 2004 Contract As Is Farbar Cape Coral Title straight from your smart phone
How to generate an eSignature for the Far Bar 2004 Contract As Is Farbar Cape Coral Title on iOS
How to generate an eSignature for the Far Bar 2004 Contract As Is Farbar Cape Coral Title on Android devices
People also ask frbar contract
- 
                                
                                    
                                    
                                    What is the 2004 far bar?
                                
                                The 2004 far bar is a standard form used in real estate transactions, particularly in Florida. It provides a comprehensive framework for buyers and sellers to outline terms, conditions, and agreements. Utilizing the 2004 far bar can streamline the closing process and ensure clarity in real estate dealings.
- 
                                
                                    
                                    
                                    How can airSlate SignNow help with the 2004 far bar?
                                
                                airSlate SignNow simplifies the process of signing and managing the 2004 far bar electronically. With its user-friendly interface, you can easily send, sign, and store documents securely. This not only saves time but also reduces paperwork and enhances collaboration among parties involved in the transaction.
- 
                                
                                    
                                    
                                    Is airSlate SignNow compatible with the 2004 far bar form?
                                
                                Yes, airSlate SignNow is fully compatible with the 2004 far bar form and other essential real estate documents. You can upload, share, and eSign the form directly within our platform, making your real estate transactions efficient and hassle-free. Our template library also includes various versions of the 2004 far bar for easy access.
- 
                                
                                    
                                    
                                    What are the pricing options for using airSlate SignNow with the 2004 far bar?
                                
                                airSlate SignNow offers competitive pricing plans that cater to various business needs, including those specifically for handling the 2004 far bar. You can choose from individual, small business, or enterprise plans, each designed to deliver value based on your volume of transactions. Check our pricing page for detailed options and features included.
- 
                                
                                    
                                    
                                    What are the key features of airSlate SignNow for the 2004 far bar?
                                
                                Key features of airSlate SignNow for managing the 2004 far bar include electronic signatures, customizable templates, advanced security options, and real-time collaboration tools. These features will help ensure that your document workflows are smooth and secure while adhering to the requirements of the 2004 far bar. Additionally, you can track document status and send reminders to signatories.
- 
                                
                                    
                                    
                                    Can I integrate airSlate SignNow with other tools to manage the 2004 far bar?
                                
                                Absolutely! airSlate SignNow offers integrations with popular CRM and project management tools which enhance the efficiency of managing the 2004 far bar and related documents. This capability allows you to synchronize your workflows and improve productivity by connecting different business functions seamlessly.
- 
                                
                                    
                                    
                                    What benefits does airSlate SignNow provide when using the 2004 far bar?
                                
                                By using airSlate SignNow for the 2004 far bar, you benefit from increased efficiency, reduced turnaround times, and enhanced security. Electronic signing reduces the time taken for documents to be signed, while our secure storage keeps your real estate transactions safe. Moreover, our user-friendly interface makes it easy for everyone involved to engage with the 2004 far bar.
Get more for far bar forms
- New jersey compensation 497319702 form
- Informal hearing workers
- Legal last will and testament form for single person with no children new jersey
- Legal last will and testament form for a single person with minor children new jersey
- Legal last will and testament form for single person with adult and minor children new jersey
- Nj last will 497319707 form
- Legal last will and testament for married person with minor children from prior marriage new jersey form
- New jersey partner form
Find out other far bar contract 2004
- Electronic signature Arkansas Christening Invitation Form Secure
- Electronic signature California Christening Invitation Form Online
- How To Electronic signature California Christening Invitation Form
- How Do I Electronic signature California Christening Invitation Form
- Electronic signature Arkansas Christening Invitation Form Fast
- Help Me With Electronic signature California Christening Invitation Form
- Electronic signature California Christening Invitation Form Computer
- How Can I Electronic signature California Christening Invitation Form
- Electronic signature Arkansas Christening Invitation Form Simple
- Electronic signature Arkansas Christening Invitation Form Easy
- Can I Electronic signature California Christening Invitation Form
- Electronic signature California Christening Invitation Form Mobile
- Electronic signature California Apply for Lead Pastor Computer
- Electronic signature California Apply for Lead Pastor Online
- Electronic signature Arkansas Christening Invitation Form Safe
- Electronic signature California Apply for Lead Pastor Mobile
- Electronic signature California Christening Invitation Form Now
- Electronic signature California Apply for Lead Pastor Now
- Electronic signature California Apply for Lead Pastor Later
- Electronic signature California Apply for Lead Pastor Myself