Job Hazard Analysis Form 1 Page 1 Date October 9, JOB HAZARD ANALYSIS JHA North Country National Scenic Trail Park Unit JOB TITL
Understanding the Job Hazard Analysis Form
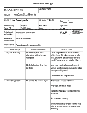
The Job Hazard Analysis Form is a critical document used to identify and mitigate potential hazards associated with specific job tasks. In this case, the form pertains to motor vehicle operation within the North Country National Scenic Trail Park Unit. This form, designated as JHA Number NOCO08, is essential for ensuring the safety of various volunteers in parks and recreational areas.
This form typically includes sections for detailing the job title, the specific tasks performed, and the supervisors overseeing the activities. By documenting these elements, organizations can create a comprehensive overview of potential risks and the necessary precautions to take.
Steps to Complete the Job Hazard Analysis Form
Completing the Job Hazard Analysis Form involves several key steps to ensure thoroughness and accuracy. First, identify the job title and the specific tasks associated with motor vehicle operation. Next, assess the potential hazards linked to each task. This may include evaluating environmental conditions, equipment used, and the experience level of the operators.
After identifying hazards, outline the control measures that will be implemented to mitigate each risk. This could involve training requirements, safety equipment, or procedural changes. Finally, ensure that the form is reviewed and signed by the appropriate supervisors to validate the analysis and the planned safety measures.
Legal Use of the Job Hazard Analysis Form
The Job Hazard Analysis Form serves a legal purpose in documenting safety protocols and risk assessments. For it to be considered legally valid, it must comply with relevant occupational safety regulations and standards. In the United States, adherence to guidelines set forth by the Occupational Safety and Health Administration (OSHA) is crucial.
Additionally, the form should be completed accurately and retained for record-keeping purposes. This documentation can be essential in the event of an incident, demonstrating that the organization took proactive steps to ensure safety and compliance with legal requirements.
Key Elements of the Job Hazard Analysis Form
Several key elements are essential for the effectiveness of the Job Hazard Analysis Form. These include:
- Job Title: Clearly stated to identify the specific role being analyzed.
- Tasks Performed: A detailed list of activities associated with the job.
- Hazard Identification: A thorough assessment of potential risks linked to each task.
- Control Measures: Specific actions to mitigate identified hazards.
- Supervisor Signatures: Required approvals to validate the analysis.
Incorporating these elements ensures that the form is comprehensive and serves its intended purpose of enhancing workplace safety.
Obtaining the Job Hazard Analysis Form
The Job Hazard Analysis Form can typically be obtained through the organization’s safety department or designated personnel responsible for safety compliance. Many organizations also provide access to these forms online, allowing for quick retrieval and completion.
For those involved in volunteer programs or park services, it is advisable to check with the local park unit or administrative office for specific procedures on accessing the form. Ensuring you have the correct version is important for maintaining compliance with safety regulations.
Quick guide on how to complete job hazard analysis form 1 page 1 date october 9 job hazard analysis jha north country national scenic trail park unit job
Prepare Job Hazard Analysis Form 1 Page 1 Date October 9, JOB HAZARD ANALYSIS JHA North Country National Scenic Trail Park Unit JOB TITL effortlessly on any device
Online document management has gained traction with organizations and individuals. It serves as an ideal eco-friendly substitute for traditional printed and signed papers, allowing you to obtain the correct form and securely archive it online. airSlate SignNow equips you with all the tools required to create, modify, and eSign your documents swiftly without delays. Manage Job Hazard Analysis Form 1 Page 1 Date October 9, JOB HAZARD ANALYSIS JHA North Country National Scenic Trail Park Unit JOB TITL on any device using airSlate SignNow's Android or iOS applications and streamline any document-related process today.
The easiest way to modify and eSign Job Hazard Analysis Form 1 Page 1 Date October 9, JOB HAZARD ANALYSIS JHA North Country National Scenic Trail Park Unit JOB TITL with ease
- Locate Job Hazard Analysis Form 1 Page 1 Date October 9, JOB HAZARD ANALYSIS JHA North Country National Scenic Trail Park Unit JOB TITL and click on Get Form to begin.
- Use the tools we provide to fill out your document.
- Emphasize important sections of your documents or obscure sensitive data with tools that airSlate SignNow provides specifically for that purpose.
- Make your eSignature using the Sign tool, which only takes seconds and carries the same legal validity as a conventional wet ink signature.
- Review the details and click on the Done button to save your changes.
- Choose your preferred method to send your form via email, text message (SMS), invitation link, or download it to your computer.
Say goodbye to lost or misplaced documents, tedious form searches, or errors that require printing new document copies. airSlate SignNow addresses all your document management needs with just a few clicks from any device you prefer. Modify and eSign Job Hazard Analysis Form 1 Page 1 Date October 9, JOB HAZARD ANALYSIS JHA North Country National Scenic Trail Park Unit JOB TITL to ensure exceptional communication throughout your form preparation process with airSlate SignNow.
Create this form in 5 minutes or less
Create this form in 5 minutes!
How to create an eSignature for the job hazard analysis form 1 page 1 date october 9 job hazard analysis jha north country national scenic trail park unit job
How to create an electronic signature for a PDF online
How to create an electronic signature for a PDF in Google Chrome
How to create an e-signature for signing PDFs in Gmail
How to create an e-signature right from your smartphone
How to create an e-signature for a PDF on iOS
How to create an e-signature for a PDF on Android
People also ask
-
What is the Job Hazard Analysis Form 1 Page 1 Date October 9?
The Job Hazard Analysis Form 1 Page 1 Date October 9 is a comprehensive document designed for assessing potential hazards during motor vehicle operations in the North Country National Scenic Trail Park Unit. This form, known as JHA Number NOCO08, is instrumental in ensuring the safety of various VIPs and workers. Utilizing this form helps in identifying risks and implementing effective safety measures.
-
How can the Job Hazard Analysis Form enhance workplace safety?
By completing the Job Hazard Analysis Form 1 Page 1 Date October 9, organizations can systematically identify and evaluate hazards associated with motor vehicle operations. This proactive approach not only helps in reducing accidents but also fosters a culture of safety among workers, ensuring compliance with OSHA regulations. Proper use of the form ensures that all potential risks are documented and addressed.
-
Is there a cost associated with the Job Hazard Analysis Form 1 Page 1 Date October 9?
The Job Hazard Analysis Form 1 Page 1 Date October 9 is available as part of airSlate SignNow's comprehensive eSigning solution, which is designed to be cost-effective. Pricing may vary based on subscription plans, offering flexibility to meet various organizational needs. For detailed pricing information, please visit our pricing page or contact our sales team.
-
What features does airSlate SignNow provide for managing Job Hazard Analysis forms?
airSlate SignNow offers numerous features to streamline the management of Job Hazard Analysis forms, including easy document creation, secure eSigning, and real-time collaboration. This platform allows users to customize forms like Job Hazard Analysis Form 1 Page 1 Date October 9, ensuring all necessary information is captured efficiently. Integrating these forms into daily operations simplifies compliance and enhances productivity.
-
Can I integrate the Job Hazard Analysis Form with other tools?
Yes, airSlate SignNow supports integrations with various tools and software, allowing for seamless connectivity with your existing systems. This means you can easily embed the Job Hazard Analysis Form 1 Page 1 Date October 9 into workflows used in project management, HR, and more. Integration ensures that safety analysis is part of the overall operational process.
-
How does airSlate SignNow ensure the security of the Job Hazard Analysis Form?
airSlate SignNow prioritizes document security, providing encryption and secure access controls to safeguard your Job Hazard Analysis Form 1 Page 1 Date October 9. Our platform features audit trails and authentication measures to ensure that only authorized personnel can access and modify the forms. This commitment to security helps maintain compliance with industry standards and protects sensitive information.
-
Is training provided for using the Job Hazard Analysis Form 1 Page 1 Date October 9?
Absolutely! airSlate SignNow provides comprehensive training resources and support for users to effectively utilize the Job Hazard Analysis Form 1 Page 1 Date October 9. Our training includes tutorials, webinars, and customer support to ensure that your team is confident in using the eSigning and form management features. This helps facilitate a smoother adoption process.
Get more for Job Hazard Analysis Form 1 Page 1 Date October 9, JOB HAZARD ANALYSIS JHA North Country National Scenic Trail Park Unit JOB TITL
- Wisconsin postnuptial form
- Quitclaim deed from husband and wife to an individual wisconsin form
- Warranty deed from husband and wife to an individual wisconsin form
- Wi form
- Warranty deed two grantors to three grantees as joint tenants wisconsin form
- Wisconsin subpoena form
- Wi lien form
- Wisconsin intestate succession form
Find out other Job Hazard Analysis Form 1 Page 1 Date October 9, JOB HAZARD ANALYSIS JHA North Country National Scenic Trail Park Unit JOB TITL
- How Can I Sign Kansas Real Estate Residential Lease Agreement
- Sign Hawaii Sports LLC Operating Agreement Free
- Sign Georgia Sports Lease Termination Letter Safe
- Sign Kentucky Real Estate Warranty Deed Myself
- Sign Louisiana Real Estate LLC Operating Agreement Myself
- Help Me With Sign Louisiana Real Estate Quitclaim Deed
- Sign Indiana Sports Rental Application Free
- Sign Kentucky Sports Stock Certificate Later
- How Can I Sign Maine Real Estate Separation Agreement
- How Do I Sign Massachusetts Real Estate LLC Operating Agreement
- Can I Sign Massachusetts Real Estate LLC Operating Agreement
- Sign Massachusetts Real Estate Quitclaim Deed Simple
- Sign Massachusetts Sports NDA Mobile
- Sign Minnesota Real Estate Rental Lease Agreement Now
- How To Sign Minnesota Real Estate Residential Lease Agreement
- Sign Mississippi Sports Confidentiality Agreement Computer
- Help Me With Sign Montana Sports Month To Month Lease
- Sign Mississippi Real Estate Warranty Deed Later
- How Can I Sign Mississippi Real Estate Affidavit Of Heirship
- How To Sign Missouri Real Estate Warranty Deed