
PERMIT MODIFICATION APPLICATION GRADING, EROSION, and Form


What is the Permit Modification Application for Grading and Erosion?
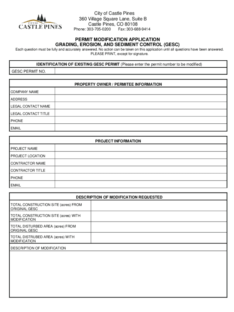
The Permit Modification Application for Grading and Erosion is a formal request submitted to local or state authorities when changes to an existing grading or erosion control permit are necessary. This application is essential for ensuring compliance with environmental regulations and local land use policies. It typically addresses modifications in land grading, drainage systems, and erosion control measures that may impact the surrounding environment.
This application is vital for maintaining ecological balance and preventing soil erosion, which can lead to significant environmental damage. By submitting this application, individuals or businesses can seek approval for adjustments that align with regulatory standards while enhancing land usability.
Steps to Complete the Permit Modification Application for Grading and Erosion
Completing the Permit Modification Application involves several key steps to ensure accuracy and compliance with local regulations. The process generally includes:
- Gathering necessary documentation, including the original permit and site plans.
- Consulting with local planning or environmental departments to understand specific requirements.
- Filling out the application form, ensuring all sections are completed thoroughly.
- Submitting the application along with any required fees and supporting documents.
- Awaiting feedback from the authorities, which may include requests for additional information or modifications.
Following these steps carefully can streamline the approval process and help avoid delays.
Required Documents for the Permit Modification Application
When submitting the Permit Modification Application for Grading and Erosion, several documents are typically required to support the request. These may include:
- A copy of the original grading or erosion control permit.
- Updated site plans reflecting the proposed modifications.
- Environmental assessments, if applicable, to evaluate potential impacts.
- Proof of ownership or authorization from the property owner.
- Any relevant correspondence with local authorities regarding the initial permit.
Ensuring that all required documents are included can facilitate a smoother review process.
Legal Use of the Permit Modification Application for Grading and Erosion
The legal use of the Permit Modification Application is governed by local and state regulations that dictate how land modifications can be made. It is crucial to understand that any changes to grading or erosion control measures must comply with environmental laws designed to protect natural resources.
Failure to submit this application when required can lead to penalties, including fines or the revocation of existing permits. Therefore, it is essential to consult with legal experts or local authorities to ensure that all modifications are legally permissible.
Key Elements of the Permit Modification Application
The Permit Modification Application for Grading and Erosion typically includes several key elements that must be addressed for approval. These elements often consist of:
- Applicant information, including contact details and property ownership.
- Description of the proposed modifications and their purpose.
- Details on how the modifications will affect drainage and erosion control.
- Compliance statements regarding local zoning and environmental regulations.
- Signatures from all relevant parties, confirming their agreement to the proposed changes.
Providing comprehensive information in these areas can enhance the likelihood of a successful application.
Quick guide on how to complete permit modification application grading erosion and
Accomplish [SKS] effortlessly on any device
Digital document management has gained traction among businesses and individuals alike. It serves as an ideal eco-friendly substitute for traditional printed and signed papers, allowing you to locate the correct form and securely store it online. airSlate SignNow equips you with all the resources necessary to create, modify, and eSign your documents swiftly and without delays. Handle [SKS] on any device with the airSlate SignNow Android or iOS applications and enhance any document-driven process today.
Steps to alter and eSign [SKS] with ease
- Obtain [SKS] and then click Access Form to begin.
- Utilize the features we provide to finalize your document.
- Emphasize important sections of your documents or obscure sensitive data with specialized tools that airSlate SignNow offers for this purpose.
- Generate your electronic signature using the Sign tool, which takes just seconds and carries the same legal validity as a conventional wet ink signature.
- Review all information and click the Finish button to save your modifications.
- Select your preferred method of delivering your form, whether by email, SMS, invite link, or download to your computer.
Eliminate concerns about lost or mislaid documents, tedious form searching, or errors that necessitate printing new copies. airSlate SignNow meets your document management needs in just a few clicks from any device you choose. Revise and eSign [SKS] to ensure superior communication throughout your form preparation process with airSlate SignNow.
Create this form in 5 minutes or less
Related searches to PERMIT MODIFICATION APPLICATION GRADING, EROSION, AND
Create this form in 5 minutes!
How to create an eSignature for the permit modification application grading erosion and
How to create an electronic signature for a PDF online
How to create an electronic signature for a PDF in Google Chrome
How to create an e-signature for signing PDFs in Gmail
How to create an e-signature right from your smartphone
How to create an e-signature for a PDF on iOS
How to create an e-signature for a PDF on Android
Get more for PERMIT MODIFICATION APPLICATION GRADING, EROSION, AND
- Application of service representative for placement va form
- Insight security form university of northern colorado
- Information access and confidentiality form california state
- Infoyour college application must make you shine form
- What nonprofits should look for in a saas provider form
- University of georgia study abroad program application form
- Intensional associations in dataspaces cornell university cs cornell form
- To download release form link carpe nocturne
Find out other PERMIT MODIFICATION APPLICATION GRADING, EROSION, AND
- How To Sign South Dakota Sports Presentation
- How Can I Sign South Dakota Sports Presentation
- How To Sign South Dakota Sports Presentation
- How Do I Sign South Dakota Sports Presentation
- How Do I Sign South Dakota Sports Presentation
- Help Me With Sign South Dakota Sports Presentation
- Can I Sign South Dakota Sports Presentation
- How Can I Sign South Dakota Sports Presentation
- Can I Sign South Dakota Sports Presentation
- Help Me With Sign South Dakota Sports Presentation
- How To Sign South Dakota Sports Presentation
- How Do I Sign South Dakota Sports Presentation
- How Can I Sign South Dakota Sports Presentation
- Help Me With Sign South Dakota Sports Presentation
- How Can I Sign South Dakota Sports Presentation
- Can I Sign South Dakota Sports Presentation
- Can I Sign South Dakota Sports Presentation
- How To Sign New Mexico Real Estate PDF
- How Do I Sign New Mexico Real Estate PDF
- How To Sign New Mexico Real Estate Word