
Land InformationZoningForms & Documents


Understanding Land Information Zoning Forms & Documents
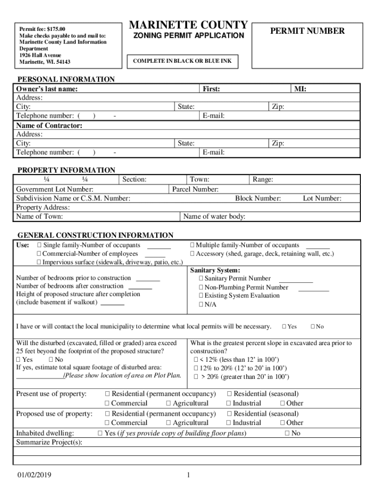
The Land Information Zoning Forms & Documents are essential tools for individuals and businesses involved in real estate and land use planning. These forms are designed to collect and present information regarding land zoning, which dictates how land can be used within specific jurisdictions. Understanding these forms is crucial for compliance with local regulations and for making informed decisions about property development, investment, or modification.
Typically, these documents include details such as property boundaries, zoning classifications, and any restrictions or allowances related to land use. They serve as a foundational resource for anyone looking to navigate the complexities of zoning laws and land use regulations in the United States.
Steps to Complete Land Information Zoning Forms & Documents
Completing Land Information Zoning Forms & Documents involves several key steps to ensure accuracy and compliance. First, gather all necessary property information, including the legal description, current zoning classification, and any relevant maps or surveys. Next, carefully read the instructions provided with the form to understand specific requirements and sections that need to be filled out.
Once you have all the information, fill out the form methodically, ensuring that each section is completed accurately. It's important to double-check your entries for any errors or omissions. After completing the form, sign and date it as required. Finally, submit the form according to the guidelines, which may include online submission, mailing it to the appropriate office, or delivering it in person.
Legal Use of Land Information Zoning Forms & Documents
The legal use of Land Information Zoning Forms & Documents is governed by local and state regulations. These forms are legally binding and must be completed truthfully and accurately to avoid potential legal issues. Misrepresentation or failure to comply with zoning laws can result in penalties, including fines or restrictions on property use.
It is advisable to consult with a legal expert or a zoning administrator if you have questions about the legal implications of the information you provide. Understanding the legal context of these forms helps ensure that you remain compliant with zoning regulations and can effectively advocate for your land use needs.
Required Documents for Land Information Zoning Forms & Documents
When preparing to complete Land Information Zoning Forms & Documents, certain supporting documents are typically required. These may include:
- A current property deed or title
- Site plans or surveys that outline property boundaries
- Existing zoning maps or classifications
- Any previous zoning approvals or variances
- Environmental assessments, if applicable
Having these documents ready will facilitate a smoother completion process and ensure that all necessary information is provided for review by local authorities.
State-Specific Rules for Land Information Zoning Forms & Documents
Each state in the U.S. may have unique rules and regulations regarding Land Information Zoning Forms & Documents. These differences can include specific requirements for form completion, submission deadlines, and the types of supporting documentation needed. It is crucial to familiarize yourself with the zoning laws specific to your state and locality.
Consulting state or local zoning offices can provide valuable insights into these regulations. Additionally, many states offer online resources that outline the specific requirements and processes for completing zoning forms, making it easier to comply with local laws.
Examples of Using Land Information Zoning Forms & Documents
Land Information Zoning Forms & Documents are used in various scenarios, including:
- Applying for a zoning variance to allow for a different land use than currently permitted
- Requesting a change in zoning classification for property development
- Submitting plans for new construction or modifications to existing structures
- Engaging in land use planning for community development projects
These examples illustrate the practical applications of zoning forms and highlight their importance in facilitating compliant land use and development activities.
Quick guide on how to complete land informationzoningforms ampamp documents
Complete [SKS] effortlessly on any device
Online document management has become increasingly popular among businesses and individuals alike. It offers an ideal eco-friendly substitute for conventional printed and signed documents, as you can obtain the appropriate form and securely archive it online. airSlate SignNow equips you with all the necessary tools to create, modify, and eSign your documents swiftly without delays. Manage [SKS] on any platform using airSlate SignNow Android or iOS applications and streamline any document-related procedure today.
The easiest way to modify and eSign [SKS] without hassle
- Locate [SKS] and click Get Form to begin.
- Utilize the tools we provide to fill out your form.
- Emphasize pertinent sections of your documents or conceal sensitive information with features that airSlate SignNow specifically offers for that purpose.
- Create your signature using the Sign tool, which takes mere seconds and holds the same legal validity as a conventional wet ink signature.
- Verify the details and click the Done button to save your edits.
- Select your preferred method to submit your form, whether by email, text message (SMS), invitation link, or download it to your computer.
Eliminate concerns about lost or misplaced files, time-consuming form searches, or mistakes that require printing new document copies. airSlate SignNow meets your document management needs in just a few clicks from any device. Modify and eSign [SKS] and ensure effective communication at any step of the form preparation process with airSlate SignNow.
Create this form in 5 minutes or less
Create this form in 5 minutes!
How to create an eSignature for the land informationzoningforms ampamp documents
How to create an electronic signature for a PDF online
How to create an electronic signature for a PDF in Google Chrome
How to create an e-signature for signing PDFs in Gmail
How to create an e-signature right from your smartphone
How to create an e-signature for a PDF on iOS
How to create an e-signature for a PDF on Android
People also ask
-
What are Land Information Zoning Forms & Documents?
Land Information Zoning Forms & Documents are essential legal documents used in real estate and land management. They help in defining zoning regulations and land use, ensuring compliance with local laws. Utilizing airSlate SignNow, you can easily create, send, and eSign these documents, streamlining your workflow.
-
How does airSlate SignNow simplify the management of Land Information Zoning Forms & Documents?
airSlate SignNow simplifies the management of Land Information Zoning Forms & Documents by providing an intuitive platform for document creation and eSigning. With features like templates and automated workflows, you can save time and reduce errors. This ensures that your zoning documents are processed efficiently and accurately.
-
What pricing plans are available for airSlate SignNow?
airSlate SignNow offers various pricing plans to cater to different business needs, including options for small businesses and enterprises. Each plan provides access to essential features for managing Land Information Zoning Forms & Documents. You can choose a plan that best fits your budget and requirements.
-
Can I integrate airSlate SignNow with other software for managing Land Information Zoning Forms & Documents?
Yes, airSlate SignNow offers seamless integrations with various software applications, enhancing your ability to manage Land Information Zoning Forms & Documents. Whether you use CRM systems, cloud storage, or project management tools, you can connect them easily to streamline your document workflows.
-
What are the benefits of using airSlate SignNow for Land Information Zoning Forms & Documents?
Using airSlate SignNow for Land Information Zoning Forms & Documents provides numerous benefits, including increased efficiency, reduced paperwork, and enhanced security. The platform allows for quick eSigning and tracking of documents, ensuring that you stay compliant with zoning regulations while saving time.
-
Is airSlate SignNow secure for handling sensitive Land Information Zoning Forms & Documents?
Absolutely! airSlate SignNow employs advanced security measures to protect your sensitive Land Information Zoning Forms & Documents. With features like encryption, secure cloud storage, and user authentication, you can trust that your documents are safe and compliant with industry standards.
-
How can I get started with airSlate SignNow for my Land Information Zoning Forms & Documents?
Getting started with airSlate SignNow is easy! Simply sign up for an account, choose a pricing plan, and begin creating your Land Information Zoning Forms & Documents using our user-friendly interface. Our support team is also available to assist you with any questions during the setup process.
Get more for Land InformationZoningForms & Documents
- Evaluation of the national school lunch program application form
- Scholarship awards program application form
- Edcom awards for excellence american association of museums form
- Demand response transportation rfp regional transportation form
- Questionnaire for will and trust form
- The application packet for this position wort 89 9 fm form
- Guidelines required documents amp faqs form
- Mail in registration two bear marathon twobearmarathon form
Find out other Land InformationZoningForms & Documents
- Can I Sign Maryland Healthcare / Medical Word
- Can I Sign Maryland Healthcare / Medical Word
- Help Me With Sign Maryland Healthcare / Medical Word
- How To Sign Maryland Healthcare / Medical Word
- How Can I Sign Maryland Healthcare / Medical Word
- How Do I Sign Maryland Healthcare / Medical Word
- Help Me With Sign Maryland Healthcare / Medical Word
- How Can I Sign Maryland Healthcare / Medical Word
- Can I Sign Maryland Healthcare / Medical Word
- Can I Sign Maryland Healthcare / Medical Word
- How To Sign Maryland Healthcare / Medical Word
- How Do I Sign Maryland Healthcare / Medical Word
- How To Sign Maryland Healthcare / Medical Word
- Help Me With Sign Maryland Healthcare / Medical Word
- How Do I Sign Maryland Healthcare / Medical Word
- Help Me With Sign Maryland Healthcare / Medical Word
- How Can I Sign Maryland Healthcare / Medical Word
- How Can I Sign Maryland Healthcare / Medical Word
- Can I Sign Maryland Healthcare / Medical Word
- Can I Sign Maryland Healthcare / Medical Word