
Quick FormsBaltimore City Department of Transportation


What is the Quick FormsBaltimore City Department Of Transportation
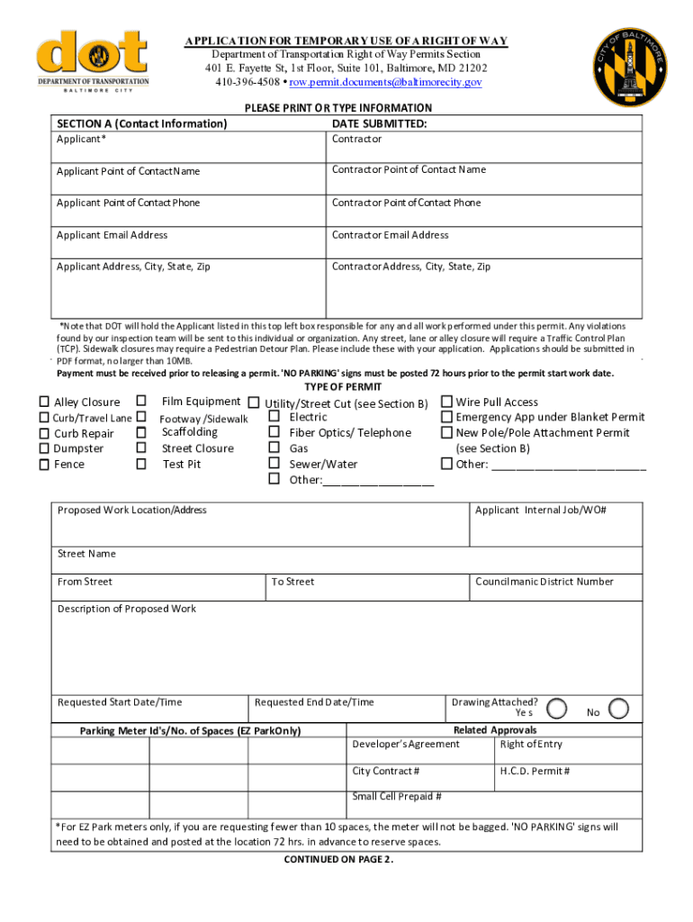
The Quick FormsBaltimore City Department Of Transportation is a streamlined document designed to facilitate specific transportation-related requests and applications within Baltimore City. This form serves various purposes, including permitting, reporting issues, and submitting requests for transportation services. By utilizing this form, residents and businesses can efficiently communicate their needs to the Department of Transportation, ensuring a smoother process for all parties involved.
How to use the Quick FormsBaltimore City Department Of Transportation
Using the Quick FormsBaltimore City Department Of Transportation is straightforward. Users can access the form online, fill it out with the required information, and submit it electronically. It is essential to provide accurate details to avoid delays in processing. The form typically includes sections for personal information, the nature of the request, and any relevant documentation that may need to be attached. Once completed, users can submit the form directly through the designated online portal or print it for mailing.
Steps to complete the Quick FormsBaltimore City Department Of Transportation
Completing the Quick FormsBaltimore City Department Of Transportation involves several key steps:
- Access the form via the official Baltimore City Department Of Transportation website.
- Fill in your personal information, including name, address, and contact details.
- Specify the type of request or issue you are addressing.
- Attach any necessary documents that support your request.
- Review the completed form for accuracy and completeness.
- Submit the form electronically or print it for physical submission.
Legal use of the Quick FormsBaltimore City Department Of Transportation
The Quick FormsBaltimore City Department Of Transportation is legally recognized for submitting requests and applications related to transportation services in Baltimore City. It is essential to ensure that the information provided is truthful and accurate, as any discrepancies could lead to legal repercussions or denial of the request. Understanding the legal implications of using this form can help users navigate the process more effectively.
Required Documents
When completing the Quick FormsBaltimore City Department Of Transportation, certain documents may be required to support your application. These documents can include:
- Proof of identity, such as a driver's license or state ID.
- Supporting documentation relevant to the request, like photographs or maps.
- Any previous correspondence with the Department of Transportation regarding the issue.
Having these documents ready can expedite the processing of your form.
Form Submission Methods
The Quick FormsBaltimore City Department Of Transportation can be submitted through various methods to accommodate user preferences. These methods include:
- Online submission via the official Baltimore City Department Of Transportation website.
- Mailing the completed form to the appropriate department address.
- In-person submission at designated offices within Baltimore City.
Choosing the right submission method can enhance the efficiency of your request.
Quick guide on how to complete quick formsbaltimore city department of transportation
Prepare [SKS] effortlessly on any gadget
Web-based document management has become increasingly favored by businesses and individuals alike. It offers a perfect environmentally friendly substitute for conventional printed and signed documents, allowing you to obtain the needed form and securely store it online. airSlate SignNow equips you with all the resources required to create, modify, and eSign your documents swiftly without delays. Manage [SKS] on any device using airSlate SignNow's Android or iOS applications and streamline any document-related process today.
The easiest way to alter and eSign [SKS] with ease
- Locate [SKS] and click Get Form to begin.
- Use the tools we provide to fill out your form.
- Emphasize important sections of your documents or redact sensitive information with tools that airSlate SignNow offers specifically for that aim.
- Create your signature using the Sign feature, which takes mere seconds and carries the same legal validity as a conventional wet ink signature.
- Review all the details and click on the Done button to save your changes.
- Choose how you wish to send your form, via email, SMS, or invitation link, or download it to your computer.
Say goodbye to lost or misplaced documents, tedious form hunting, or mistakes that necessitate reprinting new document copies. airSlate SignNow meets your needs in document management in just a few clicks from any device of your choice. Modify and eSign [SKS] and ensure outstanding communication at any stage of your form preparation journey with airSlate SignNow.
Create this form in 5 minutes or less
Related searches to Quick FormsBaltimore City Department Of Transportation
Create this form in 5 minutes!
How to create an eSignature for the quick formsbaltimore city department of transportation
How to create an electronic signature for a PDF online
How to create an electronic signature for a PDF in Google Chrome
How to create an e-signature for signing PDFs in Gmail
How to create an e-signature right from your smartphone
How to create an e-signature for a PDF on iOS
How to create an e-signature for a PDF on Android
People also ask
-
What are Quick FormsBaltimore City Department Of Transportation?
Quick FormsBaltimore City Department Of Transportation are digital forms designed to streamline the submission and processing of transportation-related documents. These forms simplify the workflow for both residents and city officials, ensuring efficient communication and documentation.
-
How can Quick FormsBaltimore City Department Of Transportation benefit my business?
Using Quick FormsBaltimore City Department Of Transportation can signNowly enhance your business operations by reducing paperwork and speeding up the approval process. This solution allows for quick eSigning and document management, saving time and resources while improving overall efficiency.
-
What features are included with Quick FormsBaltimore City Department Of Transportation?
Quick FormsBaltimore City Department Of Transportation includes features such as customizable templates, eSignature capabilities, and real-time tracking of document status. These features ensure that you can manage your forms effectively and keep all stakeholders informed throughout the process.
-
Is there a cost associated with using Quick FormsBaltimore City Department Of Transportation?
Yes, there is a cost associated with using Quick FormsBaltimore City Department Of Transportation, but it is designed to be cost-effective for businesses of all sizes. Pricing plans vary based on the features and volume of usage, ensuring that you can find a solution that fits your budget.
-
Can Quick FormsBaltimore City Department Of Transportation integrate with other software?
Absolutely! Quick FormsBaltimore City Department Of Transportation can seamlessly integrate with various software applications, enhancing your existing workflows. This integration capability allows you to connect with CRM systems, project management tools, and more, creating a unified digital experience.
-
How secure is the data processed through Quick FormsBaltimore City Department Of Transportation?
Data security is a top priority for Quick FormsBaltimore City Department Of Transportation. The platform employs advanced encryption and security protocols to protect sensitive information, ensuring that your documents are safe and compliant with industry standards.
-
What types of documents can I manage with Quick FormsBaltimore City Department Of Transportation?
You can manage a wide variety of documents with Quick FormsBaltimore City Department Of Transportation, including permits, applications, and compliance forms. The flexibility of the platform allows you to customize forms to meet your specific needs, making it suitable for various transportation-related processes.
Get more for Quick FormsBaltimore City Department Of Transportation
- Sutter care at home timberlake respiratory care ampamp home medical equipment order form sutter care at home timberlake
- Ncaa bracket fillable form
- Year 9form 3 examinations solomon islands iresource
- Verpleegkundige overdracht zorginstellingen goereeoverflakkee betreft zorgvrager naam meisjesnaam voorletters geboortedatum form
- Scotts turf builder rebate form collagenwerkstatt
- Novartis patient assistance foundation application form
- My hidden paycheck tutorial safeguard financial form
- Hoagie sale order form cms band boosters cmsbb
Find out other Quick FormsBaltimore City Department Of Transportation
- Help Me With Sign Tennessee Education Word
- How Can I Sign Tennessee Education Word
- Can I Sign Tennessee Education Word
- How Do I Sign Tennessee Education Word
- Can I Sign Tennessee Education Word
- Help Me With Sign Tennessee Education Word
- How To Sign Tennessee Education Word
- How Do I Sign Tennessee Education Word
- Help Me With Sign Tennessee Education Word
- How Can I Sign Tennessee Education Word
- How Can I Sign Tennessee Education Word
- How To Sign Tennessee Education Word
- Can I Sign Tennessee Education Word
- How Do I Sign Tennessee Education Word
- Can I Sign Tennessee Education Word
- How To Sign Tennessee Education Document
- How Do I Sign Tennessee Education Document
- Help Me With Sign Tennessee Education Word
- Help Me With Sign Tennessee Education Document
- How Can I Sign Tennessee Education Document