
Cf1r Add Residential Compliance 2010-2025 Form


Understanding the Prescriptive Certificate of Compliance for Residential Construction
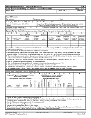
The Prescriptive Certificate of Compliance, specifically for newly constructed residential buildings and additions greater than one thousand square feet, serves as a crucial document in ensuring that construction meets local building codes and energy efficiency standards. This certificate is essential for projects in various climate zones across the United States, as it verifies compliance with state regulations and local ordinances. The form typically includes details such as the project name, climate zone, number of stories, site address, and building type, all of which are necessary for regulatory approval.
Steps to Complete the Prescriptive Certificate of Compliance
Completing the Prescriptive Certificate of Compliance involves several key steps. First, gather all necessary project information, including the project name, climate zone, and building specifics. Next, fill out the form accurately, ensuring that all data aligns with local building codes. It is important to review the completed form for any errors before submission. Once finalized, the form should be submitted to the appropriate local authority for review and approval. Proper documentation and adherence to guidelines will facilitate a smoother approval process.
Obtaining the Prescriptive Certificate of Compliance
To obtain the Prescriptive Certificate of Compliance, project owners or contractors must contact their local building department or regulatory agency. This process may vary by state and municipality, so it is crucial to understand specific local requirements. Generally, the application can be initiated online or in person, depending on the jurisdiction. After submitting the required documentation, including the completed form and any additional supporting materials, applicants will receive a response regarding their compliance status.
Key Elements of the Prescriptive Certificate of Compliance
The key elements of the Prescriptive Certificate of Compliance include essential project details such as the project name, site address, and climate zone. Additionally, the form requires information about the building type and the number of stories, which are vital for determining compliance with energy efficiency standards. Each element must be accurately filled out to ensure that the certificate reflects the specifics of the construction project, aiding in the verification process by local authorities.
Legal Use of the Prescriptive Certificate of Compliance
The legal use of the Prescriptive Certificate of Compliance is to confirm that a residential construction project adheres to established building codes and energy regulations. This certificate is often required before obtaining a final inspection or occupancy permit. Failure to secure this certificate can lead to penalties, including fines or delays in project completion. Therefore, understanding the legal implications and ensuring compliance is essential for all stakeholders involved in the construction process.
State-Specific Rules for the Prescriptive Certificate of Compliance
State-specific rules governing the Prescriptive Certificate of Compliance can vary significantly, reflecting local building codes and energy efficiency standards. It is important for contractors and homeowners to familiarize themselves with these regulations, as they dictate the requirements for form completion and submission. Each state may have unique guidelines regarding the documentation needed, submission methods, and compliance verification processes, making it crucial to consult local authorities for accurate information.
Create this form in 5 minutes or less
Find and fill out the correct cf1r add residential compliance
Related searches to cf1r add residential compliance
Create this form in 5 minutes!
How to create an eSignature for the cf1r add residential compliance
How to create an electronic signature for a PDF online
How to create an electronic signature for a PDF in Google Chrome
How to create an e-signature for signing PDFs in Gmail
How to create an e-signature right from your smartphone
How to create an e-signature for a PDF on iOS
How to create an e-signature for a PDF on Android
People also ask cf1r add residential compliance
-
What is cf1r add residential compliance?
cf1r add residential compliance is a feature that ensures your documents meet specific residential compliance standards. This functionality is crucial for businesses operating in the real estate sector, as it helps streamline the compliance process and reduces the risk of legal issues.
-
How does airSlate SignNow support cf1r add residential compliance?
airSlate SignNow provides tools that simplify the process of cf1r add residential compliance by allowing users to create, send, and eSign compliant documents easily. The platform's user-friendly interface ensures that all necessary compliance requirements are met without hassle.
-
What are the pricing options for using cf1r add residential compliance with airSlate SignNow?
airSlate SignNow offers flexible pricing plans that cater to different business needs, including those requiring cf1r add residential compliance. You can choose from monthly or annual subscriptions, ensuring you get the best value for your compliance requirements.
-
Can I integrate airSlate SignNow with other tools for cf1r add residential compliance?
Yes, airSlate SignNow allows seamless integration with various third-party applications, enhancing your ability to manage cf1r add residential compliance. This integration capability ensures that your compliance processes are efficient and connected with your existing workflows.
-
What are the benefits of using airSlate SignNow for cf1r add residential compliance?
Using airSlate SignNow for cf1r add residential compliance offers numerous benefits, including increased efficiency, reduced paperwork, and enhanced security. The platform helps businesses save time and resources while ensuring that all compliance standards are met.
-
Is airSlate SignNow suitable for small businesses needing cf1r add residential compliance?
Absolutely! airSlate SignNow is designed to be cost-effective and user-friendly, making it an ideal solution for small businesses needing cf1r add residential compliance. Its features are tailored to help smaller organizations manage compliance without overwhelming complexity.
-
How can I ensure my documents are compliant with cf1r add residential compliance using airSlate SignNow?
To ensure your documents are compliant with cf1r add residential compliance using airSlate SignNow, utilize the platform's templates and compliance check features. These tools guide you through the necessary steps to create compliant documents efficiently.
Get more for cf1r add residential compliance
Find out other cf1r add residential compliance
- eSign Washington Courts Letter Of Intent Simple
- eSign Tennessee Sports Permission Slip Easy
- eSign Tennessee Sports Permission Slip Safe
- Can I eSign Tennessee Sports Lease Agreement Form
- eSign Washington Courts Letter Of Intent Easy
- How To eSign Tennessee Sports Permission Slip
- eSign Washington Courts Letter Of Intent Safe
- How Do I eSign Tennessee Sports Permission Slip
- Help Me With eSign Tennessee Sports Permission Slip
- How Can I eSign Tennessee Sports Permission Slip
- Can I eSign Tennessee Sports Permission Slip
- eSign Virginia Courts Residential Lease Agreement Online
- How To eSign Virginia Courts Residential Lease Agreement
- How To eSign Washington Courts Letter Of Intent
- eSign Virginia Courts Residential Lease Agreement Computer
- eSign Virginia Courts Residential Lease Agreement Mobile
- How Do I eSign Virginia Courts Residential Lease Agreement
- eSign Virginia Courts Residential Lease Agreement Now
- How Do I eSign Washington Courts Letter Of Intent
- eSign Virginia Courts Residential Lease Agreement Later