
Gen215b 2019-2025 Form


Understanding the NYC DEP BWSO
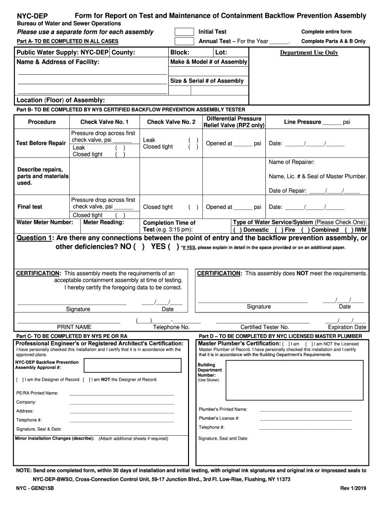
The NYC Department of Environmental Protection (DEP) Bureau of Water Supply Operations (BWSO) is responsible for managing the city's water supply and ensuring compliance with various regulations. The gen215b form is a crucial document within this framework, specifically related to water usage and management. It is essential for individuals and businesses that require water service connections or modifications. Understanding the purpose and requirements of the gen215b form can help streamline the process of obtaining necessary approvals and ensure compliance with local regulations.
Steps to Complete the NYC DEP BWSO Form
Filling out the gen215b form involves several key steps to ensure accuracy and compliance. Begin by gathering all necessary information, including property details and water usage requirements. Next, accurately complete each section of the form, paying close attention to specific instructions provided. After completing the form, review it thoroughly to ensure all information is correct and complete. Finally, submit the form through the appropriate channels, whether online or via mail, as specified by the NYC DEP BWSO guidelines.
Legal Use of the NYC DEP BWSO Form
The gen215b form serves a legal purpose in the context of water supply management in New York City. When properly filled out and submitted, it can facilitate the establishment or modification of water service connections. Compliance with legal requirements, including any necessary signatures and supporting documentation, is essential for the form to be considered valid. Understanding the legal implications of the form helps ensure that all parties involved adhere to local regulations and maintain the integrity of the water supply system.
Required Documents for the NYC DEP BWSO Form
When preparing to submit the gen215b form, it is important to gather all required documents. This may include proof of property ownership, identification, and any previous correspondence with the NYC DEP BWSO. Additional documentation may be necessary depending on the specific purpose of the form, such as plans for new construction or modifications to existing water service. Ensuring that all required documents are included with the form submission can help prevent delays and facilitate a smoother approval process.
Form Submission Methods for the NYC DEP BWSO
The gen215b form can be submitted through various methods, depending on the preferences of the individual or business involved. Online submission is often the most efficient option, allowing for quicker processing and confirmation. Alternatively, the form can be mailed to the appropriate DEP office or submitted in person at designated locations. It is important to follow the specific submission guidelines provided by the NYC DEP BWSO to ensure that the form is processed correctly and in a timely manner.
Key Elements of the NYC DEP BWSO Form
The gen215b form includes several key elements that must be completed accurately. These elements typically encompass property information, water usage details, and any relevant contact information. Additionally, the form may require specific signatures to validate the request. Understanding these key elements is crucial for ensuring that the form is completed correctly and meets all necessary requirements for approval.
Examples of Using the NYC DEP BWSO Form
The gen215b form is utilized in various scenarios related to water service management. For instance, property owners seeking to establish a new water connection for a residential building would need to complete this form. Similarly, businesses looking to modify their existing water service or increase their water supply capacity would also use the gen215b form. Familiarity with these examples can help individuals and businesses recognize when the form is necessary and how to complete it effectively.
Quick guide on how to complete nyc dep bwso
Effortlessly prepare nyc dep bwso on any device
The management of online documents has become increasingly favored by both businesses and individuals. It serves as an ideal eco-friendly alternative to traditional printed and signed documents, allowing you to access the necessary form and securely store it online. airSlate SignNow equips you with all the resources needed to create, edit, and eSign your documents quickly and efficiently. Handle gen215b form on any device using the airSlate SignNow applications available for Android and iOS, and simplify any document-related task today.
How to modify and eSign gen 215 effortlessly
- Obtain dep bwso and click Get Form to begin.
- Utilize the tools we provide to fill out your document.
- Emphasize important sections of the documents or obscure sensitive information with tools that airSlate SignNow offers specifically for that purpose.
- Generate your signature using the Sign tool, which takes mere seconds and carries the same legal validity as a conventional wet ink signature.
- Review all the information and click the Done button to save your updates.
- Choose how you would like to send your form—via email, SMS, or an invitation link, or download it to your computer.
Eliminate concerns over lost or misfiled documents, tedious form navigation, or mistakes that necessitate printing new copies. airSlate SignNow fulfills your document management needs in just a few clicks from your preferred device. Edit and eSign bis nyc dob and ensure outstanding communication throughout your form preparation workflow with airSlate SignNow.
Create this form in 5 minutes or less
Find and fill out the correct nc plumbing forms gen 215b
Related searches to nyc dep forms
Create this form in 5 minutes!
How to create an eSignature for the gen215b nyc
How to make an electronic signature for your PDF online
How to make an electronic signature for your PDF in Google Chrome
The best way to generate an electronic signature for signing PDFs in Gmail
The best way to create an eSignature right from your smartphone
The best way to generate an electronic signature for a PDF on iOS
The best way to create an eSignature for a PDF on Android
People also ask gen 215 form
-
What is the bwso academy?
The bwso academy is a comprehensive educational platform designed to help users understand and maximize the features of airSlate SignNow. It offers various resources, including tutorials, webinars, and best practices to ensure users can efficiently manage their document signing needs.
-
What features does airSlate SignNow offer for bwso academy users?
Users of the bwso academy can access advanced features such as customizable templates, team collaboration tools, and secure cloud storage. These features streamline the eSigning process, making it user-friendly and efficient for businesses of all sizes.
-
How can the bwso academy benefit my business?
The bwso academy provides valuable insights and training that can signNowly enhance your team's productivity by effectively utilizing airSlate SignNow. By implementing the strategies learned through the academy, businesses can speed up document workflows, reduce costs, and improve overall efficiency.
-
Is there a cost associated with the bwso academy?
Access to the bwso academy is included with your airSlate SignNow subscription at no additional cost. This full access ensures that you can take advantage of all educational resources without worrying about extra fees, making it a cost-effective addition to your package.
-
What types of integrations does airSlate SignNow support relevant to the bwso academy?
The bwso academy emphasizes the importance of integrations with popular platforms such as Google Drive, Salesforce, and Microsoft Office. These integrations enable seamless document management and eSignature processes, enhancing your overall productivity.
-
How do I get started with the bwso academy?
To get started with the bwso academy, simply log into your airSlate SignNow account and navigate to the learning resources section. From there, you can access all available courses and materials tailored to help you learn how to effectively use airSlate SignNow.
-
Can I attend live sessions through the bwso academy?
Yes, the bwso academy regularly hosts live training sessions and webinars that provide real-time interaction with instructors. This format is ideal for users looking to ask questions and gain immediate feedback while learning about the functionalities of airSlate SignNow.
Get more for gen 215 dep
- Use voiceover with buttons checkboxes and more on mac form
- 2021 form il 1040login pages finder login faqcom
- How to use iphone keyboard like a mouse by holding cnbc form
- Quarterly report adjustment uitr 3 561179107 form
- Taxcoloradogovsales use tax formssales ampamp use taxforms ampamp instructions department of revenue
- Part year and nonresidentdepartment of revenue taxation form
- Colorado form dr 0145 power of attorney taxformfinder
- Colorado form dr 0204 estimated tax taxformfinder
Find out other dep rpz
- How Do I Electronic signature West Virginia Life Sciences Moving Checklist
- Electronic signature Rhode Island Orthodontists Claim Fast
- Electronic signature Rhode Island Orthodontists Contract Computer
- Electronic signature Rhode Island Orthodontists Contract Mobile
- Help Me With Electronic signature West Virginia Life Sciences Moving Checklist
- Electronic signature Rhode Island Orthodontists Contract Now
- Electronic signature Rhode Island Orthodontists Contract Later
- Electronic signature Rhode Island Orthodontists Claim Simple
- Electronic signature Rhode Island Orthodontists Contract Myself
- How Can I Electronic signature West Virginia Life Sciences Moving Checklist
- Electronic signature Rhode Island Orthodontists Contract Free
- Electronic signature Rhode Island Orthodontists Contract Secure
- Electronic signature Rhode Island Orthodontists Claim Easy
- Can I Electronic signature West Virginia Life Sciences Moving Checklist
- Electronic signature Rhode Island Orthodontists Contract Fast
- Electronic signature Rhode Island Orthodontists Contract Simple
- Electronic signature Rhode Island Orthodontists Contract Easy
- Electronic signature Rhode Island Orthodontists Contract Safe
- Electronic signature Rhode Island Orthodontists Claim Safe
- Electronic signature Rhode Island Orthodontists RFP Computer