
Austin Water Service 2019-2025 Form


Understanding the Process of Obtaining Water Meters for Single Family Residences
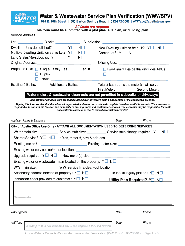
The process of obtaining water meters for single-family residences in Austin involves several key steps. Initially, homeowners must submit a request to the Austin Water Utility. This request typically includes the property address and details about the construction or renovation project. The utility will then assess the site to determine the appropriate meter size based on the expected water usage.
Once the assessment is complete, homeowners will receive a notification regarding the meter installation timeline and any associated fees. It's important to ensure that all local regulations and requirements are met during this process to avoid delays.
Steps to Complete the Water Meter Acquisition Process
To successfully obtain a water meter, follow these steps:
- Gather necessary information, including the property address and details of the construction.
- Submit a request to the Austin Water Utility, either online or in person.
- Await the site assessment by the utility, which will determine the meter size.
- Receive notification regarding the installation schedule and fees.
- Complete any required paperwork and pay associated fees.
- Schedule the installation date with the utility.
Required Documents for Water Meter Installation
When applying for a water meter, certain documents are typically required. These may include:
- Proof of ownership or authorization from the property owner.
- Construction plans or site diagrams, if applicable.
- Identification of the applicant, such as a driver’s license or government-issued ID.
Having these documents ready can streamline the application process and help avoid any potential delays.
Legal Considerations for Water Meter Installation
Legal compliance is crucial when obtaining a water meter. Homeowners must adhere to local regulations set by the Austin Water Utility. This includes ensuring that the installation meets safety and environmental standards. Failure to comply with these regulations can result in penalties or delays in service activation.
Additionally, understanding the terms of service and any obligations related to the water meter, such as maintenance responsibilities, is essential for homeowners.
Form Submission Methods for Water Meter Requests
Homeowners can submit their requests for water meters through various methods:
- Online submission via the Austin Water Utility website.
- In-person submission at designated utility offices.
- Mailing the completed request form to the utility's office.
Each method has its own processing time, so it is advisable to choose the one that best fits your timeline and convenience.
Common Scenarios for Water Meter Requests
Understanding different scenarios can help homeowners prepare for the water meter acquisition process. Common situations include:
- New construction projects, which often require a new meter installation.
- Renovations that increase water usage, necessitating a larger meter.
- Replacement of an existing meter due to malfunction or upgrades.
Each scenario may have unique requirements and timelines, so it is beneficial to consult with the Austin Water Utility for guidance tailored to your specific situation.
Quick guide on how to complete austin service plan
Easily Prepare austin service plan on Any Device
The management of online documents has become increasingly popular among organizations and individuals. It serves as an ideal eco-friendly alternative to traditional printed and signed documents, since you can find the required form and securely store it online. airSlate SignNow provides all the tools you need to create, modify, and eSign your documents quickly and efficiently. Handle austin water service on any platform using the airSlate SignNow Android or iOS applications, and simplify any document-related process today.
How to Edit and eSign wwwspv Effortlessly
- Find austin water plan and click Get Form to begin.
- Use the tools we provide to fill out your form.
- Emphasize pertinent sections of your documents or conceal sensitive information with tools that airSlate SignNow offers specifically for that purpose.
- Create your signature using the Sign tool, which takes seconds and carries the same legal significance as a traditional wet ink signature.
- Review the details and click on the Done button to save your modifications.
- Select how you wish to send your form, whether by email, text message (SMS), invitation link, or download it to your computer.
Eliminate concerns about lost or misplaced documents, tedious form searches, or errors that necessitate printing new copies. airSlate SignNow fulfills all your document management needs with just a few clicks from your preferred device. Edit and eSign texas service wwwspv to ensure excellent communication at every stage of the form preparation process with airSlate SignNow.
Create this form in 5 minutes or less
Find and fill out the correct texas wwwspv sample
Related searches to austin plan verification
Create this form in 5 minutes!
How to create an eSignature for the tx wastewater plan
How to generate an electronic signature for a PDF in the online mode
How to generate an electronic signature for a PDF in Chrome
The way to create an eSignature for putting it on PDFs in Gmail
The best way to generate an eSignature straight from your smart phone
How to make an eSignature for a PDF on iOS devices
The best way to generate an eSignature for a PDF document on Android OS
People also ask austin wwwspv get
-
What is Austin water service and how does it work?
Austin water service provides residents and businesses with a reliable supply of water for various needs, including drinking, irrigation, and sanitation. The service is managed by the City of Austin and operates through an extensive network of pipes and treatment facilities. Customers can access their water usage information online, making it easier to manage consumption.
-
How can I sign up for Austin water service?
To sign up for Austin water service, you can visit the official City of Austin website or contact their customer service department. It typically requires personal information, proof of residency, and a payment method. Once your application is processed, you will receive confirmation and details about your service.
-
What are the pricing options for Austin water service?
Pricing for Austin water service varies based on consumption levels and the size of the service connection. Customers can review the latest rates on the City of Austin's utilities website, which includes detailed breakdowns of fees for residential and commercial users. Understanding these rates can help you budget your water usage effectively.
-
What features are included with Austin water service?
Austin water service includes features like online account management, automatic bill payment, and a 24/7 customer helpline. Additionally, customers receive water quality reports and can access educational resources on sustainable water usage. These features enhance the experience and promote responsible water use.
-
What benefits does Austin water service provide?
The primary benefit of Austin water service is ensuring a reliable and safe supply of water to all customers. It supports the community's well-being by facilitating daily activities, from cooking to irrigation. Moreover, the service actively promotes conservation efforts, helping the city manage its water resources sustainably.
-
Can I set up a virtual account for my Austin water service?
Yes, setting up a virtual account for Austin water service is convenient and encouraged. Customers can sign up online for easy access to billing information, payment history, and water usage analytics. This helps you track and manage your consumption effectively while minimizing the need for in-person visits.
-
How does Austin water service integrate with other utilities?
Austin water service is designed to integrate seamlessly with other utilities provided by the City of Austin, such as electricity and gas. Customers can receive combined billing for convenience. The integration facilitates better resource management and allows customers to monitor all utilities from a single online portal.
Get more for water plan form
Find out other tx austin verification
- Help Me With Sign Colorado Car Dealer Form
- How Can I Sign Colorado Car Dealer Form
- Can I Sign Colorado Car Dealer Form
- How Do I Sign Colorado Car Dealer Form
- How Do I Sign Colorado Car Dealer PPT
- Help Me With Sign Colorado Car Dealer Form
- How To Sign Colorado Car Dealer Presentation
- Help Me With Sign Colorado Car Dealer PPT
- How Do I Sign Colorado Car Dealer Presentation
- How Can I Sign Colorado Car Dealer Form
- Help Me With Sign Colorado Car Dealer Presentation
- How Can I Sign Colorado Car Dealer Presentation
- How Can I Sign Colorado Car Dealer PPT
- Can I Sign Colorado Car Dealer Presentation
- Can I Sign Colorado Car Dealer Form
- Can I Sign Colorado Car Dealer PPT
- How To Sign Colorado Car Dealer Presentation
- How Do I Sign Colorado Car Dealer Presentation
- Help Me With Sign Colorado Car Dealer Presentation
- How Can I Sign Colorado Car Dealer Presentation