
Mfr Template 2021-2025 Form


Understanding the Declaration and Release FEMA Form 009-0-3
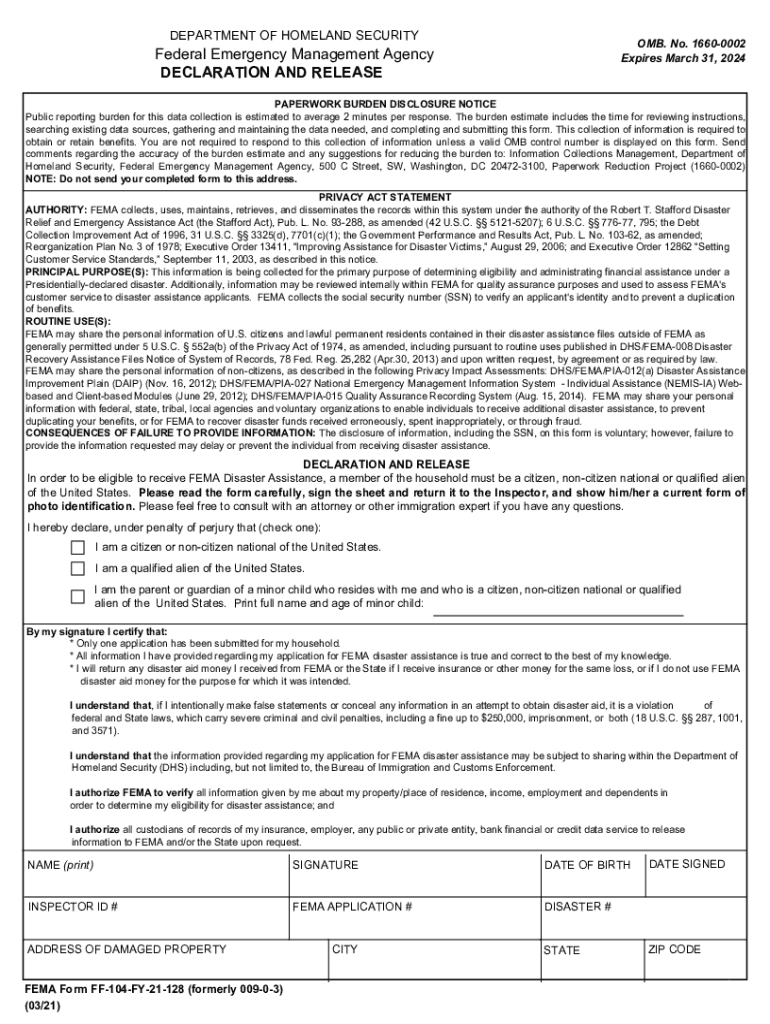
The Declaration and Release FEMA Form 009-0-3 is a critical document used primarily in disaster recovery scenarios. This form is designed to facilitate the release of claims against FEMA, ensuring that individuals or entities receiving assistance acknowledge their understanding of the terms. By signing this form, recipients confirm that they have received the necessary aid and agree to the conditions outlined by FEMA. This legal acknowledgment is essential for maintaining transparency and accountability in the distribution of federal disaster relief funds.
Steps to Complete the Declaration and Release FEMA Form 009-0-3
Completing the Declaration and Release FEMA Form 009-0-3 involves several key steps:
- Obtain the Form: Access the form through FEMA's official website or request a copy from a local disaster recovery center.
- Fill in Personal Information: Provide accurate details, including your name, address, and contact information.
- Review Terms: Carefully read the terms and conditions outlined in the form to understand your obligations.
- Sign and Date: After reviewing, sign and date the form to indicate your agreement with the terms.
- Submit the Form: Follow the submission instructions provided, whether online, by mail, or in person.
Legal Use of the Declaration and Release FEMA Form 009-0-3
The legal implications of the Declaration and Release FEMA Form 009-0-3 are significant. By signing this document, individuals waive their right to pursue further claims against FEMA related to the assistance received. This legal release is designed to protect FEMA from future litigation concerning the aid provided. It is crucial for recipients to fully understand the legal ramifications before signing, as it may affect their ability to claim additional assistance or pursue other legal remedies.
Key Elements of the Declaration and Release FEMA Form 009-0-3
The Declaration and Release FEMA Form 009-0-3 includes several essential elements:
- Recipient Information: Details of the individual or entity receiving assistance.
- Assistance Description: A clear outline of the type of assistance provided by FEMA.
- Terms of Release: Specific conditions under which the recipient agrees to release FEMA from further claims.
- Signature Section: A designated area for the recipient's signature, affirming their understanding and acceptance of the terms.
How to Obtain the Declaration and Release FEMA Form 009-0-3
To obtain the Declaration and Release FEMA Form 009-0-3, individuals can visit FEMA's official website, where the form is available for download. Additionally, local disaster recovery centers can provide physical copies of the form. It is advisable to ensure that you have the most current version of the form to avoid any issues during the submission process. If assistance is needed, FEMA representatives can guide you through the process of obtaining and completing the form.
Examples of Using the Declaration and Release FEMA Form 009-0-3
Examples of situations where the Declaration and Release FEMA Form 009-0-3 is utilized include:
- Homeowners receiving federal assistance for repairs following a natural disaster.
- Businesses obtaining grants for recovery efforts after a declared emergency.
- Individuals receiving temporary housing assistance from FEMA during recovery.
In each case, the form serves as a formal acknowledgment of the assistance received and the terms agreed upon, ensuring clarity and compliance with federal regulations.
Quick guide on how to complete army mfr
Complete army mfr effortlessly on any device
Digital document management has become increasingly popular among businesses and individuals. It offers an ideal eco-friendly alternative to traditional printed and signed paperwork, allowing you to access the correct form and securely store it online. airSlate SignNow provides you with all the resources you need to create, modify, and electronically sign your documents swiftly without delays. Handle mfr template on any device using airSlate SignNow's Android or iOS apps and simplify any document-related tasks today.
The easiest way to edit and eSign mfr format with ease
- Locate mfr example and click Get Form to begin.
- Utilize the tools we provide to fill in your form.
- Highlight pertinent sections of the documents or conceal sensitive information using tools specifically designed for that task by airSlate SignNow.
- Generate your eSignature with the Sign feature, which takes moments and carries the same legal validity as a conventional wet ink signature.
- Review all the details and then click the Done button to save your changes.
- Choose your preferred method to send your form, whether by email, text message (SMS), or invite link, or download it to your computer.
Forget about lost or misplaced documents, tedious form searching, or errors that require printing new document copies. airSlate SignNow meets your document management needs in just a few clicks from your chosen device. Edit and eSign mfr army and ensure effective communication at every stage of your form preparation process with airSlate SignNow.
Create this form in 5 minutes or less
Find and fill out the correct fema 009 0 release form
Related searches to declaration release get
Create this form in 5 minutes!
How to create an eSignature for the declaration release
How to create an electronic signature for a PDF online
How to create an electronic signature for a PDF in Google Chrome
How to create an e-signature for signing PDFs in Gmail
How to create an e-signature right from your smartphone
How to create an e-signature for a PDF on iOS
How to create an e-signature for a PDF on Android
People also ask declaration release form
-
What is an mfr template and how can it benefit my business?
An mfr template is a customizable document template designed to streamline the process of creating and managing forms. By using an mfr template, businesses can save time and reduce errors, ensuring that all necessary information is captured efficiently. This leads to improved productivity and a more organized workflow.
-
How much does it cost to use the mfr template with airSlate SignNow?
The pricing for using the mfr template with airSlate SignNow varies based on the subscription plan you choose. We offer flexible pricing options that cater to businesses of all sizes, ensuring that you get the best value for your investment. You can start with a free trial to explore the features before committing.
-
Can I customize the mfr template to fit my specific needs?
Yes, the mfr template is fully customizable, allowing you to tailor it to your specific business requirements. You can add fields, adjust layouts, and incorporate branding elements to ensure that the template aligns with your company's identity. This flexibility makes it easy to create documents that meet your exact needs.
-
What features does the mfr template offer?
The mfr template includes features such as drag-and-drop editing, electronic signatures, and automated workflows. These features enhance the document management process, making it easier to send, sign, and store important documents securely. Additionally, you can track the status of your documents in real-time.
-
Is the mfr template compatible with other software applications?
Yes, the mfr template can be easily integrated with various software applications, including CRM systems and cloud storage services. This compatibility allows for seamless data transfer and enhances your overall workflow efficiency. You can connect your existing tools to airSlate SignNow for a more streamlined experience.
-
How does using an mfr template improve document security?
Using an mfr template with airSlate SignNow enhances document security through features like encryption and secure access controls. This ensures that sensitive information is protected during the signing process. Additionally, you can set permissions to control who can view or edit the documents.
-
Can I track the status of documents created with the mfr template?
Absolutely! airSlate SignNow allows you to track the status of documents created with the mfr template in real-time. You will receive notifications when documents are viewed, signed, or completed, giving you complete visibility over your document workflow and ensuring timely follow-ups.
Get more for declaration release form get
- Illinois llc 5025 2010 form
- Restated organization form
- Llc correction form
- Application for additional sets of dealer plates in transit plates form
- Bca 10 30r form
- Taps combat military financial fraud illinois secretary of state form
- Illinois sec331 1 form
- Lp fax transmittal request form for certificates of
Find out other declaration release online
- How To Integrate Sign in Banking
- How Do I Integrate Sign in Banking
- Help Me With Integrate Sign in Banking
- How Can I Integrate Sign in Banking
- Can I Integrate Sign in Banking
- How To Use Sign in Banking
- How Do I Use Sign in Banking
- Help Me With Use Sign in Banking
- How Can I Use Sign in Banking
- Can I Use Sign in Banking
- How To Install Sign in Banking
- How Do I Install Sign in Banking
- Help Me With Install Sign in Banking
- How Can I Install Sign in Banking
- Can I Install Sign in Banking
- How To Add Sign in Banking
- How Do I Add Sign in Banking
- Help Me With Add Sign in Banking
- How Can I Add Sign in Banking
- Can I Add Sign in Banking