
Permit Cal Osha Form


What is the Permit Cal Osha
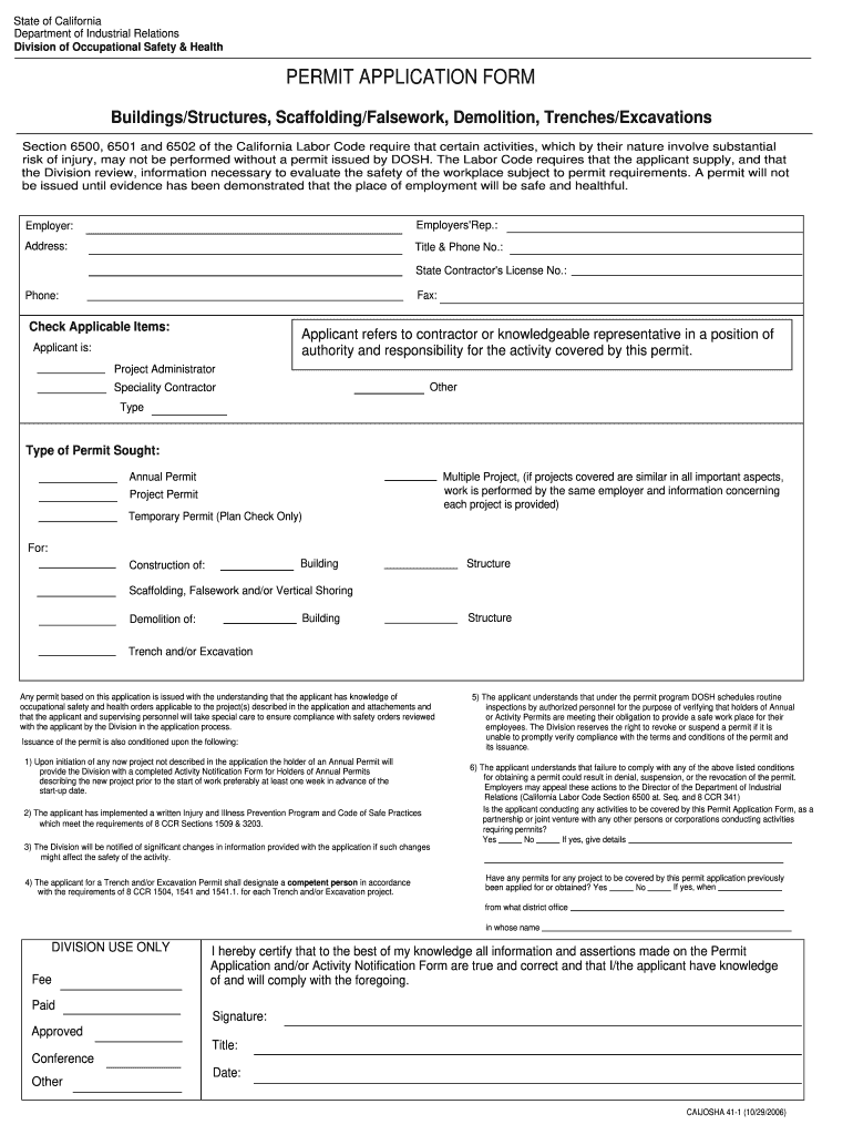
The Permit Cal OSHA form is a crucial document that ensures compliance with safety regulations in the workplace. This form is specifically designed for businesses operating in California, addressing the requirements set forth by the California Division of Occupational Safety and Health (Cal OSHA). It serves to outline safety measures and procedures that must be followed to protect workers from potential hazards. Understanding this form is essential for employers who want to maintain a safe working environment and avoid penalties associated with non-compliance.
How to Obtain the Permit Cal Osha
Obtaining the Permit Cal OSHA involves several steps. First, businesses must determine the specific type of permit required based on their industry and activities. This may include permits for construction, hazardous materials, or other specialized operations. Once the appropriate permit type is identified, employers can access the necessary forms through the Cal OSHA website or local regulatory offices. It is important to ensure that all required information is accurately completed to facilitate the approval process.
Steps to Complete the Permit Cal Osha
Completing the Permit Cal OSHA form requires careful attention to detail. Here are the key steps to follow:
- Gather all relevant information about your business, including the nature of operations and safety protocols.
- Fill out the form accurately, ensuring that all sections are completed as required.
- Review the form for any errors or omissions before submission.
- Submit the completed form to the appropriate Cal OSHA office, either online or via mail.
Following these steps will help ensure that the permit application is processed smoothly and efficiently.
Legal Use of the Permit Cal Osha
The legal use of the Permit Cal OSHA is governed by state regulations that mandate compliance with safety standards. Businesses must adhere to the guidelines outlined in the permit to avoid legal repercussions. This includes maintaining accurate records, conducting regular safety training, and ensuring that all employees are aware of the safety protocols in place. Failure to comply with these regulations can result in fines, legal action, and increased scrutiny from regulatory agencies.
Key Elements of the Permit Cal Osha
Several key elements are essential to the Permit Cal OSHA form. These include:
- Identification of the business and its operations.
- Description of potential hazards associated with the work being performed.
- Safety measures and protocols that will be implemented to mitigate risks.
- Signatures of responsible parties, indicating their commitment to compliance.
Including these elements ensures that the permit is comprehensive and meets regulatory standards.
Form Submission Methods
Businesses can submit the Permit Cal OSHA form through various methods. These include:
- Online submission via the Cal OSHA website, which is often the fastest option.
- Mailing the completed form to the designated Cal OSHA office.
- In-person submission at local regulatory offices, if preferred.
Choosing the appropriate submission method can help expedite the processing of the permit application.
Quick guide on how to complete permit application osha
Effortlessly Prepare permit application osha on Any Device
Digital document management has become increasingly popular among companies and individuals. It offers an excellent eco-friendly substitute for traditional printed and signed documents, allowing you to locate the right form and securely store it online. airSlate SignNow equips you with all the tools needed to create, edit, and electronically sign your documents swiftly without delays. Manage permit cal osha form on any platform using airSlate SignNow's Android or iOS applications and enhance any document-driven process today.
The Easiest Way to Edit and Electronically Sign ca permit application form with Ease
- Obtain california permit application form and click Get Form to begin.
- Utilize the tools we provide to complete your form.
- Highlight important sections of the documents or redact sensitive information with the tools that airSlate SignNow offers specifically for that purpose.
- Generate your electronic signature with the Sign tool, which takes mere seconds and holds the same legal significance as a conventional ink signature.
- Review all the details and click on the Done button to save your modifications.
- Choose how you would like to submit your form, via email, text message (SMS), or invitation link, or download it to your computer.
Say goodbye to lost or misplaced documents, tedious form searching, or mistakes that necessitate printing new document copies. airSlate SignNow addresses all your document management needs in just a few clicks from any device you prefer. Edit and electronically sign permit cal osha while ensuring outstanding communication at any point in the form preparation process with airSlate SignNow.
Create this form in 5 minutes or less
Related searches to form osha 41
Create this form in 5 minutes!
How to create an eSignature for the application form osha
The best way to make an eSignature for your PDF document online
The best way to make an eSignature for your PDF document in Google Chrome
The way to make an electronic signature for signing PDFs in Gmail
How to generate an electronic signature straight from your smart phone
How to make an electronic signature for a PDF document on iOS
How to generate an electronic signature for a PDF document on Android OS
People also ask permit annual activities
-
What is the California permit application form?
The California permit application form is a standardized document that individuals or businesses must complete to obtain necessary permits for various activities within the state. It facilitates the approval process by ensuring that all required information is provided and helps streamline compliance with California regulations. Using airSlate SignNow can simplify the completion and submission of this form.
-
How can airSlate SignNow help with the California permit application form?
airSlate SignNow provides a user-friendly platform that allows you to easily fill out and eSign your California permit application form. Our solution ensures that your documents are securely stored and can be accessed from anywhere. This increases efficiency and reduces the likelihood of errors that can delay your application process.
-
What are the pricing options for using airSlate SignNow for the California permit application form?
airSlate SignNow offers several pricing plans tailored to various business needs. Whether you’re a small business or a larger organization, you can choose a plan that fits your budget while accessing all necessary features to manage the California permit application form efficiently. Additionally, you can try the service with a free trial to see if it meets your requirements.
-
Is eSigning the California permit application form legally binding?
Yes, eSigning the California permit application form through airSlate SignNow is legally binding and compliant with eSignature laws. This means you can confidently submit your permits online, speeding up the approval process. Our platform follows strict security measures to ensure that your signatures and documents are protected.
-
What features does airSlate SignNow offer for handling the California permit application form?
airSlate SignNow offers features such as custom templates, secure cloud storage, and automated reminders to help streamline your California permit application form management. Additionally, you can collaborate with teammates easily by sharing documents and tracking changes in real-time. These features signNowly enhance productivity and organization.
-
Can I integrate airSlate SignNow with other applications for my California permit application form?
Absolutely! airSlate SignNow supports integrations with various applications, such as Google Drive, Dropbox, and CRM systems. These integrations allow you to manage your California permit application form efficiently by enabling data transfer and document sharing directly within your existing workflow.
-
What are the benefits of using airSlate SignNow for California permit application forms?
Using airSlate SignNow to manage your California permit application forms maximizes efficiency, reduces processing time, and minimizes paperwork. With features like eSigning, automated workflows, and secure storage, you can focus more on your business instead of getting bogged down by administrative tasks. This solution brings convenience and peace of mind when handling permits.
Get more for permit osha ca
- Pennsylvania repairs 497324510 form
- Letter landlord rent 497324511 form
- Letter from tenant to landlord about landlord using unlawful self help to gain possession pennsylvania form
- Letter from tenant to landlord about illegal entry by landlord pennsylvania form
- Letter from landlord to tenant about time of intent to enter premises pennsylvania form
- Letter tenant rent 497324515 form
- Letter from tenant to landlord about sexual harassment pennsylvania form
- Letter from tenant to landlord about fair housing reduction or denial of services to family with children pennsylvania form
Find out other osha 41 download
- How Can I eSign Connecticut Invoice for Goods (Standard Format)
- eSign Arizona Non-Compete Agreement Simple
- eSign Arizona Non-Compete Agreement Easy
- eSign Connecticut Invoice for Goods (Standard Format) Secure
- eSign Arizona Non-Compete Agreement Safe
- Can I eSign Connecticut Invoice for Goods (Standard Format)
- eSign Connecticut Invoice for Goods (Standard Format) Fast
- eSign Connecticut Invoice for Goods (Standard Format) Simple
- How To eSign Arizona Non-Compete Agreement
- How Do I eSign Arizona Non-Compete Agreement
- Help Me With eSign Arizona Non-Compete Agreement
- How Can I eSign Arizona Non-Compete Agreement
- eSign Connecticut Invoice for Goods (Standard Format) Easy
- eSign Connecticut Invoice for Goods (Standard Format) Safe
- Can I eSign Arizona Non-Compete Agreement
- eSign Arkansas Non-Compete Agreement Online
- eSign Arkansas Non-Compete Agreement Computer
- eSign Arkansas Non-Compete Agreement Mobile
- eSign Missouri Profit and Loss Statement Online
- eSign Arkansas Non-Compete Agreement Later