
Nyc Master Electrician License Renewal Form


What is the Nyc Master Electrician License Renewal Form
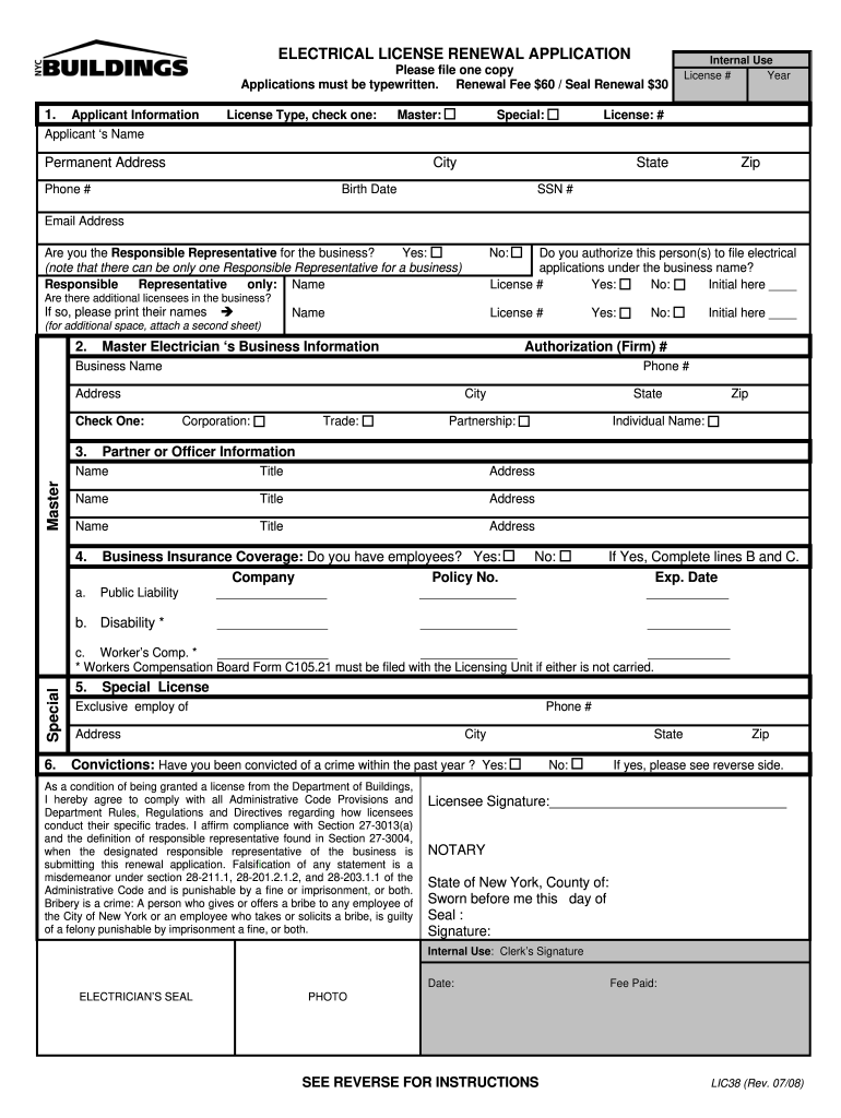
The Nyc Master Electrician License Renewal Form is a crucial document for licensed electricians in New York City seeking to maintain their professional credentials. This form must be completed and submitted to the appropriate city authorities to ensure compliance with local regulations. It serves as a formal request to renew the existing master electrician license, which is essential for performing electrical work legally within the city. The form typically requires the applicant to provide personal information, license details, and proof of continuing education or experience in the field.
Steps to complete the Nyc Master Electrician License Renewal Form
Completing the Nyc Master Electrician License Renewal Form involves several key steps to ensure accuracy and compliance. First, gather all necessary documents, including your current license number and any certificates related to continuing education. Next, fill out the form with your personal information, ensuring that all details are correct. After completing the form, review it for any errors or omissions. Finally, submit the form either online or by mail, depending on the submission guidelines provided by the city. Keeping a copy of the completed form for your records is also advisable.
Legal use of the Nyc Master Electrician License Renewal Form
The legal use of the Nyc Master Electrician License Renewal Form is governed by specific regulations set forth by the New York City Department of Buildings. To be considered valid, the form must be completed accurately and submitted within the designated renewal period. It is essential to adhere to all legal requirements, including any necessary signatures and supporting documentation. Failure to comply with these regulations can result in penalties or the inability to practice as a master electrician in the city.
Required Documents
When completing the Nyc Master Electrician License Renewal Form, several documents are typically required to support your application. These may include:
- Your current master electrician license number.
- Proof of completion of continuing education courses.
- Identification documents, such as a driver's license or state ID.
- Any additional certifications relevant to your electrical work.
Ensuring that all required documents are included with your application can help expedite the renewal process.
Form Submission Methods (Online / Mail / In-Person)
The Nyc Master Electrician License Renewal Form can be submitted through various methods, allowing for flexibility based on your preferences. The available submission methods typically include:
- Online: Many applicants choose to submit the form electronically through the official city website, which may offer a streamlined process.
- Mail: You can also print the completed form and send it via postal service to the designated office.
- In-Person: Some individuals prefer to submit their forms in person at the appropriate city office, allowing for immediate confirmation of receipt.
Each method has its advantages, so consider your needs when deciding how to submit your renewal form.
Eligibility Criteria
To be eligible for renewal of the Nyc Master Electrician License, applicants must meet specific criteria set by the New York City Department of Buildings. Generally, these criteria include:
- Possession of a valid master electrician license that is not expired.
- Completion of required continuing education courses within the specified timeframe.
- Demonstration of good moral character and compliance with local laws.
Meeting these eligibility requirements is essential to ensure a smooth renewal process.
Quick guide on how to complete nyc master electrician license renewal 2008 form
Effortlessly prepare [SKS] on any device
Managing documents online has become increasingly popular among both businesses and individuals. It offers an ideal eco-friendly solution to traditional printed and signed paperwork, allowing you to find the right form and securely store it online. airSlate SignNow equips you with all the tools necessary to create, edit, and eSign your documents promptly without delays. Manage [SKS] on any device using the airSlate SignNow Android or iOS applications and enhance any document-based workflow today.
How to modify and eSign [SKS] effortlessly
- Obtain [SKS] and select Get Form to begin.
- Utilize the tools we provide to complete your document.
- Mark important sections of your documents or obscure sensitive information with tools that airSlate SignNow offers specifically for that purpose.
- Generate your eSignature using the Sign tool, which takes mere seconds and holds the same legal validity as a conventional wet ink signature.
- Review the details and click the Done button to save your changes.
- Select your preferred method of sending your form, via email, SMS, or invitation link, or download it to your computer.
Say goodbye to lost or misplaced files, tedious form searching, or errors that necessitate printing new document copies. airSlate SignNow fulfills all your document management needs in just a few clicks from any device of your choosing. Edit and eSign [SKS] and ensure excellent communication at every phase of the form preparation process with airSlate SignNow.
Create this form in 5 minutes or less
Related searches to Nyc Master Electrician License Renewal Form
Create this form in 5 minutes!
People also ask
-
What is the NYC Master Electrician License Renewal Form?
The NYC Master Electrician License Renewal Form is a necessary document that licensed electricians in New York City must complete to renew their licenses. This form ensures that you remain compliant with local regulations and continue to operate legally. By completing this form, you demonstrate your commitment to maintaining the standards of the electrical profession.
-
How can airSlate SignNow assist with the NYC Master Electrician License Renewal Form?
AirSlate SignNow provides an efficient platform for filling out and submitting the NYC Master Electrician License Renewal Form. Our user-friendly interface allows you to easily eSign documents and track your submissions, ensuring that your renewal process is smooth and hassle-free. This digital solution simplifies your paperwork, allowing you to focus on your work.
-
What are the costs associated with the NYC Master Electrician License Renewal Form?
The costs for the NYC Master Electrician License Renewal Form may vary depending on your specific licensing requirements and any additional fees set by the city. It’s important to check the NYC Department of Buildings for the most current fee structure. Utilizing airSlate SignNow can potentially save you time and resources during the renewal process.
-
Is the NYC Master Electrician License Renewal Form available online?
Yes, the NYC Master Electrician License Renewal Form is available online. This convenience allows you to fill out and submit your renewal application from anywhere at any time. Using airSlate SignNow, you can streamline this process further by eSigning and managing documents digitally.
-
What are the benefits of using airSlate SignNow for the NYC Master Electrician License Renewal Form?
Using airSlate SignNow for the NYC Master Electrician License Renewal Form offers several benefits, including increased efficiency, secure document handling, and ease of access. Our platform allows for quick eSigning and ensures that your documents are sent securely. Plus, you can access your forms from any device, making it easy to manage your paperwork wherever you are.
-
Can I track the status of my NYC Master Electrician License Renewal Form submission?
Yes, with airSlate SignNow, you can easily track the status of your NYC Master Electrician License Renewal Form submission. Our platform provides notifications and updates as your documents move through the signing and submission process. This feature helps you stay organized and informed about your renewal status.
-
What integrations does airSlate SignNow offer for the NYC Master Electrician License Renewal Form?
AirSlate SignNow integrates seamlessly with various document management and cloud storage platforms, enhancing your experience when completing the NYC Master Electrician License Renewal Form. This compatibility allows you to sync your documents and data effortlessly, streamlining your workflow. Check out our integrations section for a list of compatible services.
Get more for Nyc Master Electrician License Renewal Form
- Omb control number 1651 0086 form
- Can you travel outside of the united states while on form
- Application for citizenship and issuanceof certif form
- Uscis expands premium processing for applicants form
- Form i 485 confirmation of bona fide job offer or
- Application to preserve residencefor naturalizati form
- Update to form i 905 application for authorization to issue
- Form i 539 instructions for application to extendchange nonimmigrant status
Find out other Nyc Master Electrician License Renewal Form
- Sign Nevada Banking Memorandum Of Understanding Safe
- Sign Missouri Banking Business Associate Agreement Online
- How To Sign Nevada Banking Memorandum Of Understanding
- How Do I Sign Nevada Banking Memorandum Of Understanding
- Sign Missouri Banking Business Associate Agreement Computer
- Help Me With Sign Nevada Banking Memorandum Of Understanding
- Sign Nevada Banking Operating Agreement Online
- How Can I Sign Nevada Banking Memorandum Of Understanding
- Sign Missouri Banking Business Associate Agreement Mobile
- Can I Sign Nevada Banking Memorandum Of Understanding
- Sign Missouri Banking Business Associate Agreement Now
- How To Sign Nevada Banking Operating Agreement
- Sign Nevada Banking Operating Agreement Computer
- Sign Missouri Banking Business Associate Agreement Later
- How Do I Sign Nevada Banking Operating Agreement
- Sign Nevada Banking Operating Agreement Mobile
- Help Me With Sign Nevada Banking Operating Agreement
- Sign Missouri Banking Business Associate Agreement Myself
- How Can I Sign Nevada Banking Operating Agreement
- Can I Sign Nevada Banking Operating Agreement