
Nc Standard Form 2 T Revised 7


Understanding the Nc Standard Form 2 T Revised 7
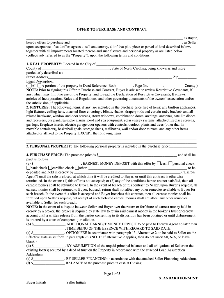
The Nc Standard Form 2 T Revised 7 is a crucial document in the North Carolina real estate market, specifically designed for use in residential property transactions. This form serves as an official offer to purchase real estate, outlining the terms and conditions agreed upon by the buyer and seller. It is essential for both parties to understand the implications of this form, as it establishes the legal framework for the transaction. The form includes sections for pricing, contingencies, and other critical details that must be accurately filled out to ensure a smooth transaction.
Steps to Complete the Nc Standard Form 2 T Revised 7
Completing the Nc Standard Form 2 T Revised 7 involves several key steps to ensure accuracy and compliance. First, both the buyer and seller should clearly identify themselves, including their full names and contact information. Next, the property details, such as the address and legal description, must be accurately provided. The purchase price should be stated, along with any earnest money deposit. Additionally, it is important to specify any contingencies, such as financing or inspection requirements. Finally, both parties must sign and date the form to validate the agreement.
Legal Use of the Nc Standard Form 2 T Revised 7
The Nc Standard Form 2 T Revised 7 is legally binding once it is signed by both parties. It is essential that all information is filled out correctly to avoid disputes later on. This form adheres to North Carolina real estate laws, ensuring that it meets all necessary legal requirements for property transactions. Failure to comply with these legal standards could result in the form being deemed invalid, which may lead to complications in the sale process.
Key Elements of the Nc Standard Form 2 T Revised 7
Several key elements are vital to the Nc Standard Form 2 T Revised 7. These include the identification of the parties involved, the property description, the purchase price, and any contingencies. Additionally, the form requires the inclusion of closing dates, terms of possession, and any special provisions that may apply to the sale. Each of these components plays a critical role in ensuring that the transaction proceeds smoothly and that both parties are aware of their rights and responsibilities.
How to Obtain the Nc Standard Form 2 T Revised 7
Obtaining the Nc Standard Form 2 T Revised 7 is straightforward. The form can be accessed through various real estate associations, including the North Carolina Association of Realtors. Additionally, many real estate professionals have access to the form through their brokerage. It is advisable to use the most current version of the form to ensure compliance with any recent updates or changes in the law.
Examples of Using the Nc Standard Form 2 T Revised 7
Examples of using the Nc Standard Form 2 T Revised 7 include scenarios where a buyer makes an offer on a home, specifying the terms of the sale. For instance, a buyer may submit the form with a purchase price of $300,000, including a contingency for a home inspection. Another example could involve a seller accepting an offer with specific conditions, such as a closing date within 30 days. These examples illustrate the form's versatility in various real estate transactions throughout North Carolina.
Quick guide on how to complete nc offer to purchase form 2 t
Ensure precision on Nc Standard Form 2 T Revised 7
Negotiating contracts, managing listings, organizing meetings, and conducting viewings—realtors and real estate agents switch between a variety of responsibilities each day. Many of these tasks involve numerous documents, such as nc offer to purchase form 2 t, that need to be processed swiftly and as accurately as possible.
airSlate SignNow is a comprehensive platform that aids professionals in the real estate sector in alleviating the document workload, allowing them to focus more on their clients' goals throughout the negotiation journey and assisting them in securing the best conditions for their agreements.
How to complete nc standard form 2 t with airSlate SignNow:
- Visit the north carolina real estate offer to purchase contract page or utilize our library's search functionalities to find the required document.
- Select Get form—you will be quickly taken to the editor.
- Begin filling out the form by choosing fillable fields and inputting your information.
- Add additional text and modify its properties if needed.
- Click on the Sign option in the upper toolbar to create your electronic signature.
- Explore other tools available for marking up and enhancing your form, such as drawing, highlighting, inserting shapes, and more.
- Access the comments section and leave notes regarding your form.
- Conclude the process by downloading, sharing, or emailing your completed form to the relevant individuals or entities.
Eliminate paper for good and streamline the homebuying process with our intuitive and robust platform. Experience greater convenience when filling out offer to buy property form and other real estate documents online. Try our solution today!
Create this form in 5 minutes or less
FAQs north carolina real estate form 2 t
-
Do un-contracted workers have to fill out IRS W4 form?
I have no idea what an “un-contracted worker” is. I am not familiar with that term.Employees working in the U.S. complete a Form W-4.Independent contractors in the U.S. do not. Instead, they usually complete a Form W-9.If unclear on the difference between an employee or an independent contractor, see Independent Contractor Self Employed or Employee
-
How do I fill out an NCC Scholarship form?
NCC (National Cadet Corps) is a voluntary organization which recruits cadets from high schools, colleges and universities all over India.To enroll yourself to it, Contact to your college/school office, they will give you forms and other necessary information about NCC. Every school/college have a person dedicated to NCC, He/She will guide you further.For NCC, your school/college should fulfill the requisite pre-conditions are as follows :(a) Availability of students for enrollment.(b) Availability of eligible teachers to be appointed as Associate NCC Officer(ANO). One ANO per school/college for Junior Division or Senior Division cadets.(c) Availability of parade ground, storeroom for NCC.(d) Short Range for firing in the vicinity.(e) Supplementing financial resources (in case of Govt aided institutions). Private institutions are required to bear entire expenditure of the State’s share. Details will be available with nearest NCC Bn HQ.
-
How should I fill this contract form "Signed this... day of..., 2016"?
I agree that you need to have the document translated to your native language or read to you by an interpreter.
-
How do you fill out a W2 tax form if I'm an independent contractor?
Thanks for asking.If you are asking how to report your income as an independent contractor, then you do not fill out a W-2. You will report your income on your federal tax return on Schedule C which will have on which you list all of your non-employee income and associated expenses. The resulting net income, transferred to Schedule A is what you will pay self-employment and federal income tax on. If this too confusing, either get some good tax reporting software or get a tax professional to help you with it.If you are asking how to fill out a W-2 for someone that worked for you, either get some good tax reporting software or get a tax professional to help you with it.This is not tax advice, it is only my opinion on how to answer this question.
-
Do military members have to pay any fee for leave or fiancee forms?
NOOOOOOO. You are talking to a military romance scammer. I received an email from the US Army that directly answers your question that is pasted below please keep reading.I believe you are the victim of a military Romance Scam whereas the person you are talking to is a foreign national posing as an American Soldier claiming to be stationed overseas on a peacekeeping mission. That's the key to the scam they always claim to be on a peacekeeping mission.Part of their scam is saying that they have no access to their money that their mission is highly dangerous.If your boyfriend girlfriend/future husband/wife is asking you to do the following or has exhibited this behavior, it is a most likely a scam:Moves to private messaging site immediately after meeting you on Facebook or SnapChat or Instagram or some dating or social media site. Often times they delete the site you met them on right after they asked you to move to a more private messaging siteProfesses love to you very quickly & seems to quote poems and song lyrics along with using their own sort of broken language, as they profess their love and devotion quickly. They also showed concern for your health and love for your family.Promises marriage as soon as he/she gets to state for leave that they asked you to pay for.They Requests money (wire transfers) and Amazon, iTune ,Verizon, etc gift cards, for medicine, religious practices, and leaves to come home, internet access, complete job assignments, help sick friend, get him out of trouble, or anything that sounds fishy.The military does provide all the soldier needs including food medical Care and transportation for leave. Trust me, I lived it, you are probably being scammed. I am just trying to show you examples that you are most likely being connned.Below is an email response I received after I sent an inquiry to the US government when I discovered I was scammed. I received this wonderful response back with lots of useful links on how to find and report your scammer. And how to learn more about Romance Scams.Right now you can also copy the picture he gave you and do a google image search and you will hopefully see the pictures of the real person he is impersonating. this doesn't always work and take some digging. if you find the real person you can direct message them and alert them that their image is being used for scamming.Good Luck to you and I'm sorry this may be happening to you. please continue reading the government response I received below it's very informative. You have contacted an email that is monitored by the U.S. Army Criminal Investigation Command. Unfortunately, this is a common concern. We assure you there is never any reason to send money to anyone claiming to be a Soldier online. If you have only spoken with this person online, it is likely they are not a U.S. Soldier at all. If this is a suspected imposter social media profile, we urge you to report it to that platform as soon as possible. Please continue reading for more resources and answers to other frequently asked questions: How to report an imposter Facebook profile: Caution-https://www.facebook.com/help/16... < Caution-https://www.facebook.com/help/16... > Answers to frequently asked questions: - Soldiers and their loved ones are not charged money so that the Soldier can go on leave. - Soldiers are not charged money for secure communications or leave. - Soldiers do not need permission to get married. - Soldiers emails are in this format: john.doe.mil@mail.mil < Caution-mailto: john.doe.mil@mail.mil > anything ending in .us or .com is not an official email account. - Soldiers have medical insurance, which pays for their medical costs when treated at civilian health care facilities worldwide – family and friends do not need to pay their medical expenses. - Military aircraft are not used to transport Privately Owned Vehicles. - Army financial offices are not used to help Soldiers buy or sell items of any kind. - Soldiers deployed to Combat Zones do not need to solicit money from the public to feed or house themselves or their troops. - Deployed Soldiers do not find large unclaimed sums of money and need your help to get that money out of the country. Anyone who tells you one of the above-listed conditions/circumstances is true is likely posing as a Soldier and trying to steal money from you. We would urge you to immediately cease all contact with this individual. For more information on avoiding online scams and to report this crime, please see the following sites and articles: This article may help clarify some of the tricks social media scammers try to use to take advantage of people: Caution-https://www.army.mil/article/61432/< Caution-https://www.army.mil/article/61432/> CID advises vigilance against 'romance scams,' scammers impersonating Soldiers Caution-https://www.army.mil/article/180749 < Caution-https://www.army.mil/article/180749 > FBI Internet Crime Complaint Center: Caution-http://www.ic3.gov/default.aspx< Caution-http://www.ic3.gov/default.aspx> U.S. Army investigators warn public against romance scams: Caution-https://www.army.mil/article/130...< Caution-https://www.army.mil/article/130...> DOD warns troops, families to be cybercrime smart -Caution-http://www.army.mil/article/1450...< Caution-http://www.army.mil/article/1450...> Use caution with social networking Caution-https://www.army.mil/article/146...< Caution-https://www.army.mil/article/146...> Please see our frequently asked questions section under scams and legal issues. Caution-http://www.army.mil/faq/ < Caution-http://www.army.mil/faq/ > or visit Caution-http://www.cid.army.mil/ < Caution-http://www.cid.army.mil/ >. The challenge with most scams is determining if an individual is a legitimate member of the US Army. Based on the Privacy Act of 1974, we cannot provide this information. If concerned about a scam you may contact the Better Business Bureau (if it involves a solicitation for money), or local law enforcement. If you're involved in a Facebook or dating site scam, you are free to contact us direct; (571) 305-4056. If you have a social security number, you can find information about Soldiers online at Caution-https://www.dmdc.osd.mil/appj/sc... < Caution-https://www.dmdc.osd.mil/appj/sc... > . While this is a free search, it does not help you locate a retiree, but it can tell you if the Soldier is active duty or not. If more information is needed such as current duty station or location, you can contact the Commander Soldier's Records Data Center (SRDC) by phone or mail and they will help you locate individuals on active duty only, not retirees. There is a fee of $3.50 for businesses to use this service. The check or money order must be made out to the U.S. Treasury. It is not refundable. The address is: Commander Soldier's Records Data Center (SRDC) 8899 East 56th Street Indianapolis, IN 46249-5301 Phone: 1-866-771-6357 In addition, it is not possible to remove social networking site profiles without legitimate proof of identity theft or a scam. If you suspect fraud on this site, take a screenshot of any advances for money or impersonations and report the account on the social networking platform immediately. Please submit all information you have on this incident to Caution-www.ic3.gov < Caution-http://www.ic3.gov > (FBI website, Internet Criminal Complaint Center), immediately stop contact with the scammer (you are potentially providing them more information which can be used to scam you), and learn how to protect yourself against these scams at Caution-http://www.ftc.gov < Caution-http://www.ftc.gov > (Federal Trade Commission's website)
-
How can I fill out Google's intern host matching form to optimize my chances of receiving a match?
I was selected for a summer internship 2016.I tried to be very open while filling the preference form: I choose many products as my favorite products and I said I'm open about the team I want to join.I even was very open in the location and start date to get host matching interviews (I negotiated the start date in the interview until both me and my host were happy.) You could ask your recruiter to review your form (there are very cool and could help you a lot since they have a bigger experience).Do a search on the potential team.Before the interviews, try to find smart question that you are going to ask for the potential host (do a search on the team to find nice and deep questions to impress your host). Prepare well your resume.You are very likely not going to get algorithm/data structure questions like in the first round. It's going to be just some friendly chat if you are lucky. If your potential team is working on something like machine learning, expect that they are going to ask you questions about machine learning, courses related to machine learning you have and relevant experience (projects, internship). Of course you have to study that before the interview. Take as long time as you need if you feel rusty. It takes some time to get ready for the host matching (it's less than the technical interview) but it's worth it of course.
Related searches to nc real estate form template
Create this form in 5 minutes!
How to create an eSignature for the nc form 2 t
How to generate an eSignature for the Nc Form Contract in the online mode
How to generate an eSignature for your Nc Form Contract in Google Chrome
How to make an eSignature for signing the Nc Form Contract in Gmail
How to create an electronic signature for the Nc Form Contract straight from your smart phone
How to generate an eSignature for the Nc Form Contract on iOS
How to generate an electronic signature for the Nc Form Contract on Android
People also ask form 2 t north carolina printable
-
What is the 'form 2 t north carolina printable'?
The 'form 2 t north carolina printable' is a specific document used for various purposes in North Carolina. It is essential for services that require detailed reporting. By using airSlate SignNow, you can easily fill out and submit this form online.
-
How can I obtain the 'form 2 t north carolina printable'?
You can download the 'form 2 t north carolina printable' directly from the airSlate SignNow platform. Our solution allows you to access and print this form in just a few clicks, simplifying the process for you.
-
Is there a fee to use airSlate SignNow for the 'form 2 t north carolina printable'?
airSlate SignNow offers competitive pricing plans that cater to different business needs. You can access the 'form 2 t north carolina printable' and other features with a subscription that fits your budget, making it a cost-effective solution.
-
What features are included with the 'form 2 t north carolina printable' in airSlate SignNow?
With airSlate SignNow, the 'form 2 t north carolina printable' comes with features such as eSignature capabilities, cloud storage, and easy document sharing. These tools enhance productivity and streamline the signing process.
-
How does airSlate SignNow protect my data when using the 'form 2 t north carolina printable'?
airSlate SignNow prioritizes data security and employs advanced encryption methods to protect your information. When you use the 'form 2 t north carolina printable', you can be confident that your documents are safe and secure.
-
Can I integrate airSlate SignNow with other software while using the 'form 2 t north carolina printable'?
Yes, airSlate SignNow offers integration with various applications, enhancing your workflow while using the 'form 2 t north carolina printable'. This allows for seamless connectivity with your existing tools for maximum efficiency.
-
What are the benefits of using airSlate SignNow for the 'form 2 t north carolina printable'?
Using airSlate SignNow for the 'form 2 t north carolina printable' provides numerous benefits, including reduced processing time and improved document organization. With easy access to fill and eSign, users can handle paperwork more efficiently.
Get more for nc contract realtors
Find out other purchase form nc
- How To eSignature Virginia Business Operations PDF
- Help Me With eSignature Virginia Business Operations PDF
- How Can I eSignature Virginia Business Operations PDF
- How Do I eSignature Virginia Business Operations PDF
- Help Me With eSignature Virginia Business Operations PDF
- Can I eSignature Virginia Business Operations PDF
- How Can I eSignature Virginia Business Operations PDF
- Can I eSignature Virginia Business Operations PDF
- How To eSignature Virginia Business Operations PDF
- How Do I eSignature Virginia Business Operations PDF
- Help Me With eSignature Virginia Business Operations PDF
- How To eSignature Virginia Business Operations PDF
- How Can I eSignature Virginia Business Operations PDF
- Can I eSignature Virginia Business Operations PDF
- How Do I eSignature Virginia Business Operations PDF
- How To eSignature Virginia Business Operations PDF
- How To eSignature Virginia Business Operations PDF
- Help Me With eSignature Virginia Business Operations PDF
- How Do I eSignature Virginia Business Operations PDF
- Help Me With eSignature Virginia Business Operations PDF