Framing Contract for Contractor District of Columbia Form
What is the Framing Contract For Contractor District Of Columbia
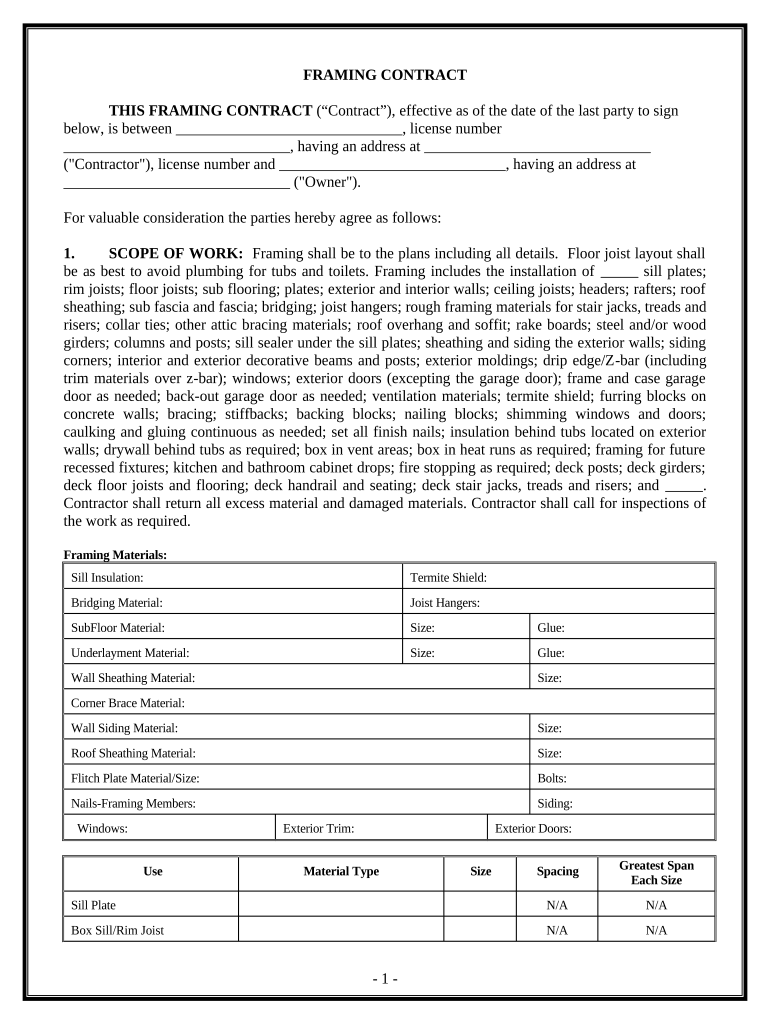
The Framing Contract for Contractor District of Columbia is a legal document that outlines the terms and conditions between a contractor and a client regarding framing work. This contract specifies the scope of work, payment terms, timelines, and responsibilities of both parties. It serves as a binding agreement that protects the interests of both the contractor and the client, ensuring clarity and accountability throughout the project.
How to use the Framing Contract For Contractor District Of Columbia
To effectively use the Framing Contract for Contractor District of Columbia, both parties should carefully review the document before signing. The contractor should detail the specific framing services to be provided, including materials and labor. The client must ensure that all expectations are clearly defined, including deadlines and payment schedules. Once both parties agree on the terms, they can sign the contract electronically or in print, making it legally binding.
Steps to complete the Framing Contract For Contractor District Of Columbia
Completing the Framing Contract for Contractor District of Columbia involves several key steps:
- Identify the parties: Clearly state the names and addresses of both the contractor and the client.
- Define the scope of work: Detail the specific framing tasks to be performed, including any relevant specifications.
- Establish payment terms: Outline the total cost, payment schedule, and any deposit requirements.
- Set timelines: Include start and completion dates, along with any milestones if applicable.
- Include legal provisions: Address dispute resolution, liability, and termination clauses.
- Sign the contract: Ensure both parties sign and date the document to finalize the agreement.
Key elements of the Framing Contract For Contractor District Of Columbia
The Framing Contract for Contractor District of Columbia should include several essential elements to ensure its effectiveness:
- Contact information: Names and addresses of both the contractor and client.
- Project description: A detailed outline of the framing work to be completed.
- Payment details: Total cost, payment methods, and schedule.
- Timeline: Start and end dates for the project.
- Warranties: Any guarantees related to the work performed.
- Signatures: Signatures of both parties to validate the contract.
Legal use of the Framing Contract For Contractor District Of Columbia
The legal use of the Framing Contract for Contractor District of Columbia is crucial for both parties involved. This contract must comply with local laws and regulations governing construction contracts in the District of Columbia. It is important to ensure that the contract is clear, detailed, and free from ambiguous language to avoid potential disputes. Utilizing a digital signing solution can enhance the legal validity of the contract, ensuring it meets electronic signature laws.
State-specific rules for the Framing Contract For Contractor District Of Columbia
In the District of Columbia, specific rules apply to construction contracts, including the Framing Contract for Contractor. These rules may include licensing requirements for contractors, adherence to local building codes, and compliance with safety regulations. It is essential for contractors to be aware of these regulations to avoid legal complications and ensure that all work is performed to the required standards. Additionally, contracts should address any state-specific provisions that may impact the execution of the work.
Quick guide on how to complete framing contract for contractor district of columbia
Effortlessly Prepare [SKS] on Any Device
Managing documents online has gained popularity among businesses and individuals alike. It offers an excellent eco-conscious alternative to conventional printed and signed documents, allowing you to access the correct template and securely store it online. airSlate SignNow equips you with all the necessary tools to create, alter, and eSign your documents swiftly and efficiently. Handle [SKS] from any device using airSlate SignNow apps on Android or iOS, and simplify any document-related task today.
How to Alter and eSign [SKS] with Ease
- Locate [SKS] and click Get Form to begin.
- Employ the tools we offer to finalize your document.
- Emphasize important sections of the documents or redact sensitive information using tools specifically designed for that purpose by airSlate SignNow.
- Create your signature with the Sign feature, which takes just a few moments and holds the same legal validity as a conventional ink signature.
- Review the details and click the Done button to save your modifications.
- Select your preferred method of delivering the document, whether by email, SMS, invite link, or download it to your computer.
Eliminate concerns over lost or misplaced documents, tedious form searching, or errors that necessitate printing new copies. airSlate SignNow meets all your document management needs in just a few clicks from your chosen device. Adjust and eSign [SKS] and ensure seamless communication throughout the document preparation process with airSlate SignNow.
Create this form in 5 minutes or less
Related searches to Framing Contract For Contractor District Of Columbia
Create this form in 5 minutes!
People also ask
-
What is a Framing Contract For Contractor District Of Columbia?
A Framing Contract For Contractor District Of Columbia is a legally binding agreement that outlines the scope, terms, and conditions between a contractor and a client for framing construction projects. This contract ensures clarity and protection for both parties involved. Using airSlate SignNow simplifies the process of creating and signing these contracts online.
-
How can airSlate SignNow help with a Framing Contract For Contractor District Of Columbia?
airSlate SignNow offers an easy-to-use platform where contractors can quickly create, send, and electronically sign their Framing Contract For Contractor District Of Columbia. This streamlines the process, reduces paperwork, and ensures that contracts are secure and easily accessible. The solution also facilitates quick modifications and re-signing as needed.
-
What are the pricing options for using airSlate SignNow for a Framing Contract For Contractor District Of Columbia?
airSlate SignNow provides various pricing plans that cater to businesses of all sizes. Each plan includes features tailored for managing documents, including a Framing Contract For Contractor District Of Columbia. You can choose a plan based on your needs and budget, ensuring cost-effectiveness without compromising on functionality.
-
Are there any templates for a Framing Contract For Contractor District Of Columbia in airSlate SignNow?
Yes, airSlate SignNow offers customizable templates for a Framing Contract For Contractor District Of Columbia, which can be tailored to meet specific project needs. These templates save time and ensure that essential terms are included. Users can easily modify clauses to suit their unique requirements, enhancing flexibility.
-
What features does airSlate SignNow offer for managing a Framing Contract For Contractor District Of Columbia?
airSlate SignNow includes features such as document tracking, secure storage, and automated reminders for a Framing Contract For Contractor District Of Columbia. These tools enhance project management by keeping all parties updated and accountable. The user-friendly interface also facilitates straightforward navigation through the contract management process.
-
Can I integrate airSlate SignNow with other tools for a Framing Contract For Contractor District Of Columbia?
Absolutely! airSlate SignNow seamlessly integrates with various third-party applications, allowing you to manage a Framing Contract For Contractor District Of Columbia alongside other business tools. This ensures that your contracts sync with project management, accounting, and communication tools, streamlining overall workflows.
-
What are the benefits of using airSlate SignNow for my Framing Contract For Contractor District Of Columbia?
Using airSlate SignNow for your Framing Contract For Contractor District Of Columbia offers numerous benefits, including increased efficiency, reduced turnaround times, and enhanced security. The platform enables quick access to signed contracts and documentation, helping you stay organized. Additionally, the electronic signature feature eliminates the hassle of physical paperwork.
Get more for Framing Contract For Contractor District Of Columbia
- Child admission form spanish schoolhouse
- Shady oak primary school medical first aid authorization form
- Request services form
- School safety audit checklist form
- School safety handbook form
- Dhs 1643 psychotropic medication informed consent for children in foster care andor juvenile justice psychotropic medication
- Dhs 1643 form
- New patient intake form here
Find out other Framing Contract For Contractor District Of Columbia
- Electronic signature Massachusetts Disclosure Notice Free
- Electronic signature Delaware Drug Testing Consent Agreement Easy
- Electronic signature North Dakota Disclosure Notice Simple
- Electronic signature California Car Lease Agreement Template Free
- How Can I Electronic signature Florida Car Lease Agreement Template
- Electronic signature Kentucky Car Lease Agreement Template Myself
- Electronic signature Texas Car Lease Agreement Template Easy
- Electronic signature New Mexico Articles of Incorporation Template Free
- Electronic signature New Mexico Articles of Incorporation Template Easy
- Electronic signature Oregon Articles of Incorporation Template Simple
- eSignature Montana Direct Deposit Enrollment Form Easy
- How To Electronic signature Nevada Acknowledgement Letter
- Electronic signature New Jersey Acknowledgement Letter Free
- Can I eSignature Oregon Direct Deposit Enrollment Form
- Electronic signature Colorado Attorney Approval Later
- How To Electronic signature Alabama Unlimited Power of Attorney
- Electronic signature Arizona Unlimited Power of Attorney Easy
- Can I Electronic signature California Retainer Agreement Template
- How Can I Electronic signature Missouri Unlimited Power of Attorney
- Electronic signature Montana Unlimited Power of Attorney Secure