
Missouri Backflow Test Forms


What is the Missouri Backflow Test Form?
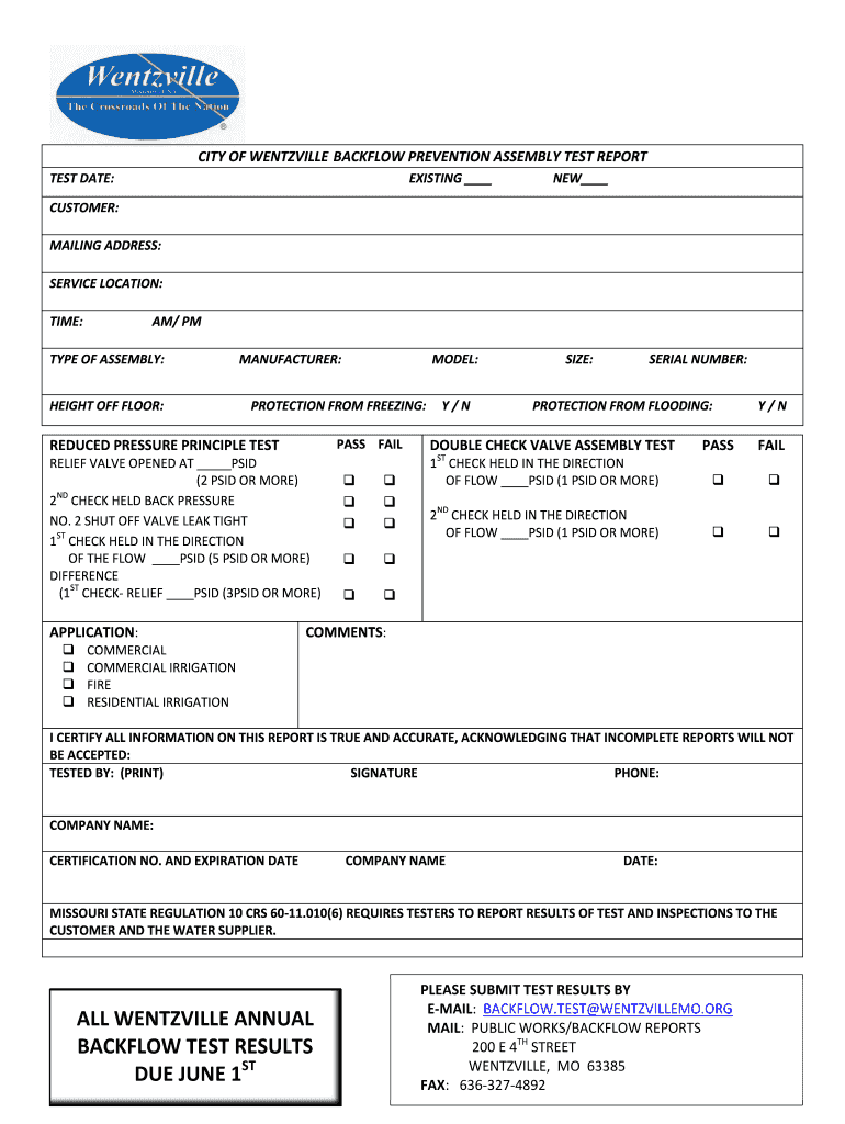
The Missouri Backflow Test Form is a crucial document used to ensure that backflow prevention devices are functioning correctly. This form is essential for maintaining public health and safety by preventing contaminated water from flowing back into the potable water supply. It is typically required by local authorities, including the city of Wentzville, to verify compliance with state regulations regarding water safety.
Steps to Complete the Missouri Backflow Test Form
Filling out the Missouri Backflow Test Form involves several key steps to ensure accuracy and compliance. First, gather all necessary information, including the location of the backflow prevention device and the details of the certified tester. Next, complete the form by providing the required data, such as the type of device, test results, and any repairs made. Finally, ensure that the form is signed by the tester and submitted to the appropriate local authority, such as the city of Wentzville city hall.
Legal Use of the Missouri Backflow Test Form
The legal use of the Missouri Backflow Test Form is governed by state regulations, which mandate that backflow prevention devices be tested annually. The form serves as a formal record of compliance, which can be critical in cases of water contamination disputes or inspections. It is essential that the form is filled out accurately and submitted on time to avoid penalties and ensure ongoing compliance with local health and safety standards.
How to Obtain the Missouri Backflow Test Form
Obtaining the Missouri Backflow Test Form is a straightforward process. Residents and businesses in the city of Wentzville can typically access the form through the city’s official website or by visiting the city hall. Additionally, certified testers may have copies of the form available for their clients. It is important to ensure that the correct version of the form is used to meet local requirements.
State-Specific Rules for the Missouri Backflow Test Form
Each state has specific rules regarding the use of backflow test forms, and Missouri is no exception. The state requires that all backflow prevention devices be tested by a certified professional. Additionally, the results must be documented on the form and submitted to the local water authority. Failure to comply with these regulations can result in fines and the potential for increased scrutiny during future inspections.
Examples of Using the Missouri Backflow Test Form
Examples of using the Missouri Backflow Test Form include residential properties with irrigation systems and commercial buildings with complex plumbing systems. In both cases, the form documents the results of the backflow tests conducted by certified professionals. These records are vital for maintaining compliance with local regulations and ensuring the safety of the water supply for all users.
Quick guide on how to complete backflow test report form wentzville
Effortlessly Prepare backflow test report form wentzville on Any Device
Managing documents online has gained popularity among both companies and individuals. It offers an excellent eco-friendly substitute for traditional printed and signed paperwork, allowing you to secure the right format and store it safely online. airSlate SignNow provides all the essential tools to swiftly create, edit, and electronically sign your documents without delays. Manage city of wentzville on any device using the airSlate SignNow apps for Android or iOS and enhance your document-related processes today.
How to Edit and Electronically Sign backflow registration form wentzville with Ease
- Locate backflow test form and click Get Form to begin.
- Utilize the tools available to fill out your document.
- Mark important sections of your documents or redact sensitive information with the tools that airSlate SignNow specially provides for that purpose.
- Generate your signature using the Sign feature, which takes mere seconds and carries the same legal validity as a conventional wet ink signature.
- Review the details and click on the Done button to save your modifications.
- Decide how you want to send your form—via email, SMS, or invitation link, or download it to your computer.
Forget about lost or misplaced documents, tedious form searching, or errors that require printing additional copies. airSlate SignNow meets your document management needs in just a few clicks from any device you prefer. Edit and electronically sign backflow test form word and ensure superior communication throughout the form preparation process with airSlate SignNow.
Create this form in 5 minutes or less
FAQs backflow testing paperwork kentucky
-
How to decide my bank name city and state if filling out a form, if the bank is a national bank?
Somewhere on that form should be a blank for routing number and account number. Those are available from your check and/or your bank statements. If you can't find them, call the bank and ask or go by their office for help with the form. As long as those numbers are entered correctly, any error you make in spelling, location or naming should not influence the eventual deposit into your proper account.
-
How do I fill out the form of DU CIC? I couldn't find the link to fill out the form.
Just register on the admission portal and during registration you will get an option for the entrance based course. Just register there. There is no separate form for DU CIC.
-
After how many days of filling out the JEE Main 2019 form will I be allotted a test centre?
The date and shift for Paper-1 and Paper-2 will be available by 5th October, 2018.However, the exact City of examination for Paper-1 and Paper-2 will be available by 21st October, 2018 on NTA’s website.
-
How should I fill out the preference form for the IBPS PO 2018 to get a posting in an urban city?
When you get selected as bank officer of psb you will have to serve across the country. Banks exist not just in urban areas but also in semi urban and rural areas also. Imagine every employee in a bank got posting in urban areas as their wish as a result bank have to shut down all rural and semi urban branches as there is no people to serve. People in other areas deprived of banking service. This makes no sense. Being an officer you will be posted across the country and transferred every three years. You have little say of your wish. Every three year urban posting followed by three years rural and vice versa. If you want your career to grow choose Canara bank followed by union bank . These banks have better growth potentials and better promotion scope
Related searches to backflow prevention test form pdf
Create this form in 5 minutes!
How to create an eSignature for the blank backflow test forms
How to make an electronic signature for your Backflow Prevention Test Form The City Of Wentzville Missouri Wentzvillemo in the online mode
How to make an eSignature for your Backflow Prevention Test Form The City Of Wentzville Missouri Wentzvillemo in Google Chrome
How to make an eSignature for signing the Backflow Prevention Test Form The City Of Wentzville Missouri Wentzvillemo in Gmail
How to make an electronic signature for the Backflow Prevention Test Form The City Of Wentzville Missouri Wentzvillemo straight from your mobile device
How to generate an eSignature for the Backflow Prevention Test Form The City Of Wentzville Missouri Wentzvillemo on iOS
How to generate an eSignature for the Backflow Prevention Test Form The City Of Wentzville Missouri Wentzvillemo on Android
People also ask city of wentzville city hall
-
What is airSlate SignNow and how does it benefit businesses in the city of Wentzville?
airSlate SignNow is a user-friendly eSignature solution that empowers businesses in the city of Wentzville to send and electronically sign documents quickly and efficiently. By streamlining the signing process, businesses can save time, reduce paperwork, and enhance productivity.
-
What features does airSlate SignNow offer for users in the city of Wentzville?
airSlate SignNow offers a range of features including document templates, bulk sending, and real-time tracking, all designed to meet the needs of businesses in the city of Wentzville. These features make it easier than ever to manage document workflows, ensuring that your business operates smoothly and efficiently.
-
Is airSlate SignNow cost-effective for small businesses in the city of Wentzville?
Yes, airSlate SignNow is a cost-effective solution tailored for small businesses in the city of Wentzville. With flexible pricing plans, you can choose the option that best fits your budget while still gaining access to powerful eSigning capabilities.
-
How does airSlate SignNow ensure security for documents signed in the city of Wentzville?
airSlate SignNow employs industry-standard encryption and compliance with regulations such as ESIGN and UETA to secure documents signed in the city of Wentzville. This means that your sensitive information is protected throughout the signing process, giving you peace of mind.
-
Can airSlate SignNow integrate with other tools for businesses in the city of Wentzville?
Absolutely! airSlate SignNow seamlessly integrates with various popular tools and platforms, enabling businesses in the city of Wentzville to enhance their document management processes. Integrations with CRMs, cloud storage, and project management tools allow for a more cohesive workflow.
-
How easy is it to use airSlate SignNow for residents of the city of Wentzville?
airSlate SignNow is designed to be incredibly user-friendly, making it easy for residents of the city of Wentzville to start using the platform quickly. With an intuitive interface and simple navigation, anyone can send and sign documents without needing extensive training.
-
What types of documents can be signed using airSlate SignNow in the city of Wentzville?
airSlate SignNow allows users in the city of Wentzville to sign various types of documents including contracts, agreements, and forms. Whether you run a small business or are an independent contractor, you can quickly manage all your essential paperwork with ease.
Get more for missouri backflow test forms
- Colorado unsafe form
- Letter from tenant to landlord with demand that landlord repair unsafe or broken lights or wiring colorado form
- Colorado letter demand 497299850 form
- Letter from tenant to landlord with demand that landlord remove garbage and vermin from premises colorado form
- Letter from tenant to landlord with demand that landlord provide proper outdoor garbage receptacles colorado form
- Letter from tenant to landlord about landlords failure to make repairs colorado form
- Letter landlord repairs form
- Letter from tenant to landlord about landlord using unlawful self help to gain possession colorado form
Find out other wentzville backflow registration form
- Can I Sign Ohio Doctors PPT
- How Do I Sign Ohio Doctors PPT
- How To Sign Ohio Doctors Form
- Help Me With Sign Ohio Doctors PPT
- How Do I Sign Ohio Doctors PPT
- How To Sign Ohio Doctors PPT
- Help Me With Sign Ohio Doctors PPT
- How Can I Sign Ohio Doctors PPT
- How Do I Sign Ohio Doctors Form
- How Can I Sign Ohio Doctors PPT
- Can I Sign Ohio Doctors PPT
- Can I Sign Ohio Doctors PPT
- Help Me With Sign Ohio Doctors Form
- How To Sign Ohio Doctors PPT
- How Do I Sign Ohio Doctors PPT
- Help Me With Sign Ohio Doctors PPT
- How Can I Sign Ohio Doctors Form
- How Can I Sign Ohio Doctors PPT
- Can I Sign Ohio Doctors PPT
- Can I Sign Ohio Doctors Form