 
                CITY of LAKEVILLE PERMIT to WORK within CITY PROPERTYRIGHT Form
 
                             
                            What is the city of Lakeville permit to work within city property?
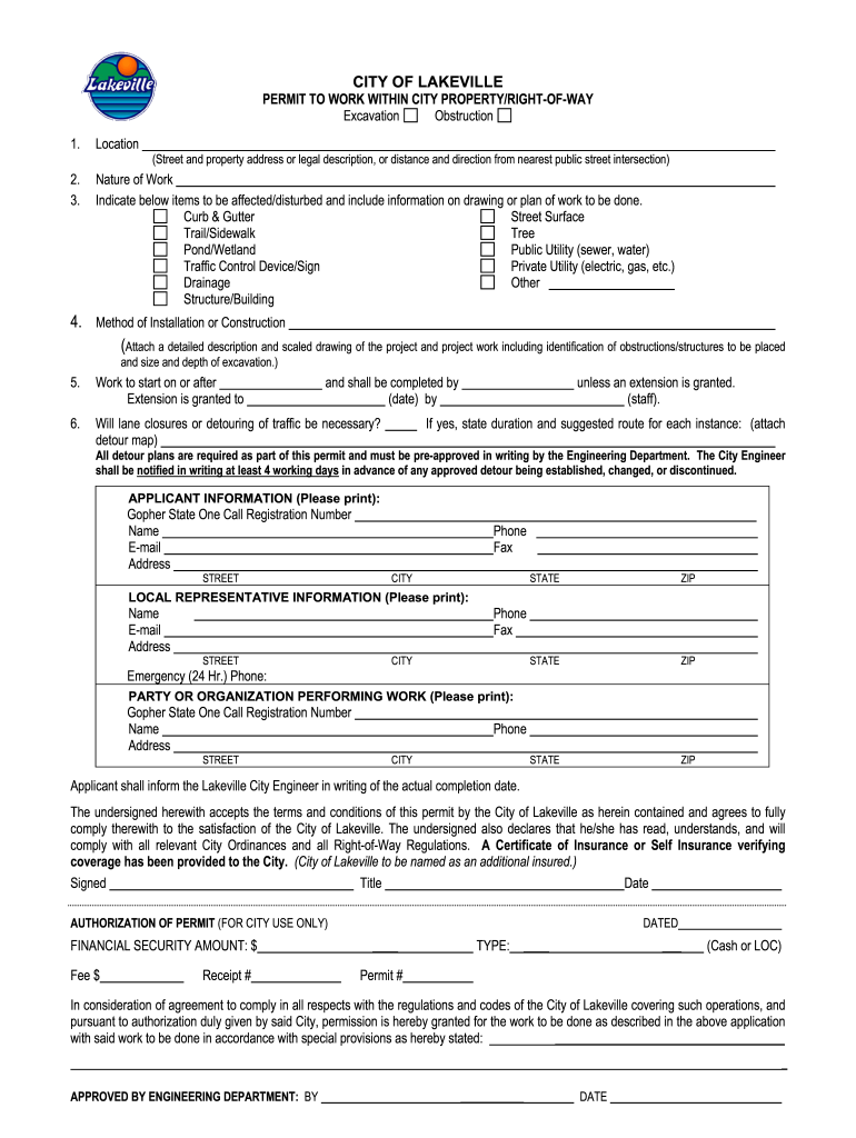
The city of Lakeville permit to work within city property is a legal document that authorizes individuals or businesses to perform specific activities on municipal land. This permit is essential for ensuring that work complies with local regulations and safety standards. It typically covers various types of work, including construction, landscaping, and maintenance. Obtaining this permit helps protect public interests and maintains the integrity of city property.
How to obtain the city of Lakeville permit to work within city property
To obtain the city of Lakeville permit, applicants must follow a structured process. First, they should gather all necessary documentation, which may include project plans, proof of insurance, and any relevant licenses. Next, applicants can submit their request to the appropriate municipal department, either online or in person. It is important to check the specific requirements and guidelines provided by the city to ensure a smooth application process. Once submitted, the application will be reviewed, and the permit will be issued if all criteria are met.
Steps to complete the city of Lakeville permit to work within city property
Completing the city of Lakeville permit involves several key steps:
- Gather necessary documentation, including project details and insurance information.
- Fill out the permit application form accurately, ensuring all required fields are completed.
- Submit the application to the designated city department, either online or in person.
- Pay any applicable fees associated with the permit application.
- Await approval from city officials, who may request additional information or modifications.
- Once approved, ensure compliance with all conditions outlined in the permit during the work.
Legal use of the city of Lakeville permit to work within city property
The legal use of the city of Lakeville permit is crucial for ensuring that all work conducted on city property adheres to local laws and regulations. This permit serves as a safeguard against unauthorized activities that could pose risks to public safety or violate zoning laws. It is important for permit holders to understand the specific terms and conditions of their permit, including any restrictions on the type of work allowed and the duration of the permit's validity.
Key elements of the city of Lakeville permit to work within city property
Several key elements are essential to the city of Lakeville permit to work within city property:
- Applicant Information: Details about the individual or business applying for the permit.
- Project Description: A clear outline of the work to be performed, including the location and scope.
- Compliance Requirements: Information on regulations that must be followed during the project.
- Approval Conditions: Specific terms that must be adhered to for the permit to remain valid.
- Expiration Date: The date by which the work must be completed or the permit renewed.
Examples of using the city of Lakeville permit to work within city property
Examples of situations where a city of Lakeville permit is required include:
- Construction of new buildings or structures on city-owned land.
- Installation of utility lines or infrastructure improvements.
- Landscaping projects that alter public parks or green spaces.
- Maintenance work on city-owned facilities or properties.
Quick guide on how to complete city of lakeville permits
Complete city of lakeville permits effortlessly on any device
Managing documents online has gained popularity among businesses and individuals. It offers an ideal eco-friendly alternative to traditional printed and signed paperwork, allowing you to locate the required form and securely store it online. airSlate SignNow equips you with all the tools necessary to create, modify, and eSign your documents swiftly without delays. Handle city of lakeville permits on any device using airSlate SignNow's Android or iOS applications and enhance any document-centric workflow today.
The optimal method to modify and eSign lakeville work within with ease
- Obtain city of lakeville permits and click on Get Form to begin.
- Utilize the tools we provide to complete your document.
- Emphasize key sections of the documents or redact sensitive information with tools specifically offered by airSlate SignNow for that purpose.
- Create your signature using the Sign tool, which takes only seconds and holds the same legal validity as a traditional wet ink signature.
- Review all the details and then click the Done button to save your modifications.
- Select your preferred method for delivering your form, whether by email, SMS, invitation link, or download it to your computer.
Eliminate concerns about lost or misplaced documents, tedious form searches, or mistakes that necessitate printing new copies. airSlate SignNow fulfills your document management needs in just a few clicks from any device you prefer. Modify and eSign lakeville work within and ensure exceptional communication throughout your form preparation process with airSlate SignNow.
Create this form in 5 minutes or less
FAQs lakeville work within
- 
                                
                                    
                                    
                                    How to decide my bank name city and state if filling out a form, if the bank is a national bank?
                                
                                Somewhere on that form should be a blank for routing number and account number. Those are available from your check and/or your bank statements. If you can't find them, call the bank and ask or go by their office for help with the form. As long as those numbers are entered correctly, any error you make in spelling, location or naming should not influence the eventual deposit into your proper account.
- 
                                
                                    
                                    
                                    How should I fill out the preference form for the IBPS PO 2018 to get a posting in an urban city?
                                
                                When you get selected as bank officer of psb you will have to serve across the country. Banks exist not just in urban areas but also in semi urban and rural areas also. Imagine every employee in a bank got posting in urban areas as their wish as a result bank have to shut down all rural and semi urban branches as there is no people to serve. People in other areas deprived of banking service. This makes no sense. Being an officer you will be posted across the country and transferred every three years. You have little say of your wish. Every three year urban posting followed by three years rural and vice versa. If you want your career to grow choose Canara bank followed by union bank . These banks have better growth potentials and better promotion scope
- 
                                
                                    
                                    
                                    How difficult is it for an Indian Student to get US work permit right out of college?
                                
                                Out of US College? Right away.Out of Indian College? If you get a firm to sponsor you right away, to get the skill for the firm to sponsor you over a US citizen, long time!
- 
                                
                                    
                                    
                                    I want to dig out a walkout basement located on a hill in a residential property in the city of Los Angeles. What permits will I need?
                                
                                You need to consult a licensed structural engineer, ideally one with seismic-soils experience, to verify that you can dig out a basement without collapse. Do this before even bothering with the permit process, as it doesn’t make sense to apply for excavation permits until it is certain what you want to build can even be built.
- 
                                
                                    
                                    
                                    How common are snakes in Bradenton Florida within the city? I am really terrified of snakes and I plan to move there for work.
                                
                                You had best move to Ireland, where they have no snakes, because snakes are everywhere in the United States. Florida, being one of the most southern US states (along with south Texas), probably has a higher snake population per unit of area than any other state in the Union. The city of Bradenton has the typical snakes that exist in the Southeast. These include the venomous pit vipers, such as copperheads, rattlesnakes, water moccasins, as well as the rear-fanged coral snake. Most snakes there are non-venomous, however, and include various rat snakes, water snakes, racers, hog-nosed, kingsnakes, and garter snakes. The most common snake inside the city will probably be the small garter snake, or possibly other very small harmless snakes.According to the University of Florida, less than one person in 37,500 are bitten by venomous snakes in the US each year, and only one in 50 million people die from snakebite. Your odds are very good of never coming close to being bitten. Here in south Texas, a climate much like northern Florida, I’ve seen live snakes about 12 to 15 times in 39 years (not counting my pet snakes), though I’m positive probably a half dozen or more snakes live in my yard. Bradenton, though further south, shouldn’t be much different.Without meaning to be insulting, it’s almost humorous that you are moving to Hurricane Alley, yet you are worried more about snakes. Well, maybe that makes sense, actually. When a hurricane does strike, the widespread flooding drives snakes to higher ground, which could be houses and other buildings. I once rescued a small earth snake from the fifth floor of the office building where I worked. It had sought refuge on a dolly from the automatic sprinklers in the flower beds, and rode it up the elevators.When you move to Bradenton, Florida, I would recommend leaving your fear of snakes in the dumpster where you moved from. Unless you own a home and do yard work, or venture often into the countryside, you will probably never even see a snake. The small 10″ to 15″ snakes you are most liable to see in town probably couldn’t even break the skin if they did strike you. Enjoy your new life in Bradenton. Snakes should be your least worry.
- 
                                
                                    
                                    
                                    How can San Francisco solve its homelessness problem without simply kicking all of them out of the city? New York tried to and found a solution that works for the city, but at the expense of the welfare of the homeless.
                                
                                Some people want to stay homeless. Give it any reason you like, they have no desire to be housed. I can't speak from the perspective of a person who lives in the park and panhandles to have income in this city (btw I'm in a neighborhood in SF). For them it provides them a lifestyle they are comfortable and I don't think that taking that away from them always facilitates their best interest or the community at large.They could figure out what they would rather do, but you'd have to ask them.Medical problems of all kinds lead to homelessness. So does insurmountable debt especially when it's the IRS' unavoidable payment of debt. I met a few in the homeless shelters that came from real middle class incomes and simply couldn't get out of the hole without a large income. Try earning $3K a month and having an IRS levy taking $2700 a month from you. You can't make a car payment, you lose your car, you can't get to work you lose your job. You sell every thing you own until you can't pay your rent, you're in a homeless shelter. There isn't a lot you can do on $300 a month. All of the sudden - You're receiving General Assistance and Food Stamps and if you find a new job you're going to have a window of about 2 months before the IRS finds your income and levy's it. Your boss isn't going to like you very much because he/she now has to do extra accounting and is basically getting punished for hiring you because you're a scab if he can fire you, he will. Never mind that it's nearly impossible to get that job when you're living out of a draw in your 90 day bed. So if you find a job it's going to be minimum wage and your debt is enormous. Maybe you were low income and you had no healthcare because you didn't know they even had Healthy San Francisco until after you were in so much pain that you couldn't work anymore. Now you have permanent nerve damage, you're in a wheel chair, you've become mentally ill because enough stress can make anyone crazy. You're panicked and you can't get a job because you're so desperate you freak out anyone who does respond to your mentally charged cover letter and resume in the interviews. You can't do a lot of basic jobs because you're handicapped and the processes involved in being trained for a new career are so bureaucratic it's crazier than you are. Quite a few of these people do drugs and have a tendency to abuse alcohol from the top to the bottom. I'd guesstimate that the number of people in the shelter system (the bottom two groups and the mentally challenged that live in shelters) who are redeemable is around 30%. Most would smoke mild enough drugs and drink within the limits of a normal person if they had peace of mind. All they need is a runway. A job isn't necessarily the end all fix it all solution for everyone. I want a "crate of discovery" of what is possible for homeless and unemployed people in San FranciscoWhen you want to know what inspires children, you put them in a room full of what is possible and you sit back and wait to see what they want to take out of the room and keep. We are all children, some of us just have older faces. When you want to find out what will grow in dead soil you throw in every kind of seed and see what grows.Like any initiative start with what can be accomplished and pare the problem down until it's more deeply understood. http://cozylap.wordpress.com for more about my domain expertise.
- 
                                
                                    
                                    
                                    Telecommuting and Working Remotely: How can I find out the average internet speed of a city I want to visit?
                                
                                Unfortunately, I don't know of a bulletproof way to figure this out, but there are 2 things I've found to be useful to at least identify whether a city as a whole has terrible typical internet speed, to rule it off your list:For many cities, nomadlist.io can give you a good working average to base your plans on. The data is crowdsourced though, so isn't 100% reliable.If you're renting privately (not from a hotel) it's often a good idea to ask your host to run a Speed Test and send you a screenshot of the results. I've found this to work pretty well for AirBnb rentals.
Related searches to city of lakeville permits
Create this form in 5 minutes!
How to create an eSignature for the lakeville work within
How to generate an eSignature for the City Of Lakeville Permit To Work Within City Propertyright in the online mode
How to generate an electronic signature for the City Of Lakeville Permit To Work Within City Propertyright in Chrome
How to make an eSignature for putting it on the City Of Lakeville Permit To Work Within City Propertyright in Gmail
How to generate an electronic signature for the City Of Lakeville Permit To Work Within City Propertyright straight from your mobile device
How to make an electronic signature for the City Of Lakeville Permit To Work Within City Propertyright on iOS
How to create an electronic signature for the City Of Lakeville Permit To Work Within City Propertyright on Android
People also ask lakeville work within
- 
                                
                                    
                                    
                                    What types of documents can I eSign related to city of Lakeville permits?
                                
                                With airSlate SignNow, you can easily eSign various documents needed for city of Lakeville permits, including applications, contracts, and compliance forms. Our platform supports multiple file formats, ensuring that all your permit-related documents are handled efficiently. Whether it's a residential or commercial permit, we enable seamless signatures to expedite your processes.
- 
                                
                                    
                                    
                                    How does airSlate SignNow simplify the process of obtaining city of Lakeville permits?
                                
                                airSlate SignNow streamlines the process of obtaining city of Lakeville permits by providing an intuitive eSigning solution that reduces paperwork and speeds up approvals. You can send documents to multiple signers simultaneously, track their status, and even set reminders. This ease of use enhances collaboration and helps you stay organized while navigating permit requirements.
- 
                                
                                    
                                    
                                    What are the pricing plans for using airSlate SignNow for city of Lakeville permits?
                                
                                airSlate SignNow offers flexible pricing plans that cater to different business needs related to city of Lakeville permits. Whether you're a small business or a large enterprise, you can choose a plan that best fits your budget and document management requirements. Contact our sales team for a customized quote that will help you manage permits economically.
- 
                                
                                    
                                    
                                    Can I integrate airSlate SignNow with other tools for managing city of Lakeville permits?
                                
                                Yes, airSlate SignNow seamlessly integrates with various business tools, making it easier to manage city of Lakeville permits alongside your other software. Whether you use CRM systems, project management tools, or cloud storage services, our integration options enhance your workflow and keep all your documents organized in one place.
- 
                                
                                    
                                    
                                    What benefits do businesses gain from using airSlate SignNow for city of Lakeville permits?
                                
                                Using airSlate SignNow for city of Lakeville permits offers several benefits, including increased efficiency, reduced turnaround time, and enhanced accuracy. Digital eSigning eliminates the delays associated with physical document handling, allowing your business to expedite the permit application process. Additionally, our robust security features ensure that your sensitive information remains protected.
- 
                                
                                    
                                    
                                    Is airSlate SignNow user-friendly for navigating city of Lakeville permits?
                                
                                Absolutely! airSlate SignNow is designed with user-friendliness in mind, making it easy for anyone to navigate the platform while managing city of Lakeville permits. You don't need any technical expertise to eSign documents or access features. Our intuitive interface guides you through each step of the eSigning process.
- 
                                
                                    
                                    
                                    What security measures does airSlate SignNow have for city of Lakeville permits?
                                
                                airSlate SignNow takes security seriously, employing industry-standard measures to protect your documents related to city of Lakeville permits. Our platform uses advanced encryption protocols to safeguard your data both at rest and in transit. Additionally, we provide features like access controls and audit trails to ensure full compliance and document integrity.
Get more for city of lakeville permits
Find out other lakeville work within
- eSignature Arizona Healthcare / Medical Contract Online
- eSignature Arizona Healthcare / Medical Contract Computer
- eSignature Alaska Healthcare / Medical Moving Checklist Computer
- eSignature Arizona Healthcare / Medical Contract Mobile
- eSignature Arizona Healthcare / Medical Contract Now
- eSignature Alaska Healthcare / Medical Moving Checklist Mobile
- eSignature Arizona Healthcare / Medical Contract Later
- eSignature Arizona Healthcare / Medical Contract Myself
- eSignature Minnesota Finance & Tax Accounting Letter Of Intent Secure
- eSignature Arizona Healthcare / Medical Contract Free
- eSignature Arizona Healthcare / Medical Contract Secure
- eSignature Alaska Healthcare / Medical Moving Checklist Now
- eSignature Minnesota Finance & Tax Accounting Letter Of Intent Fast
- eSignature Arizona Healthcare / Medical Contract Fast
- eSignature Alaska Healthcare / Medical Moving Checklist Later
- eSignature Arizona Healthcare / Medical Contract Simple
- eSignature Arizona Healthcare / Medical Contract Easy
- eSignature Alaska Healthcare / Medical Moving Checklist Myself
- eSignature Arizona Healthcare / Medical Contract Safe
- eSignature Alaska Healthcare / Medical Moving Checklist Free