
Construction Prequalification 2007-2025 Form


Key elements of the construction prequalification form
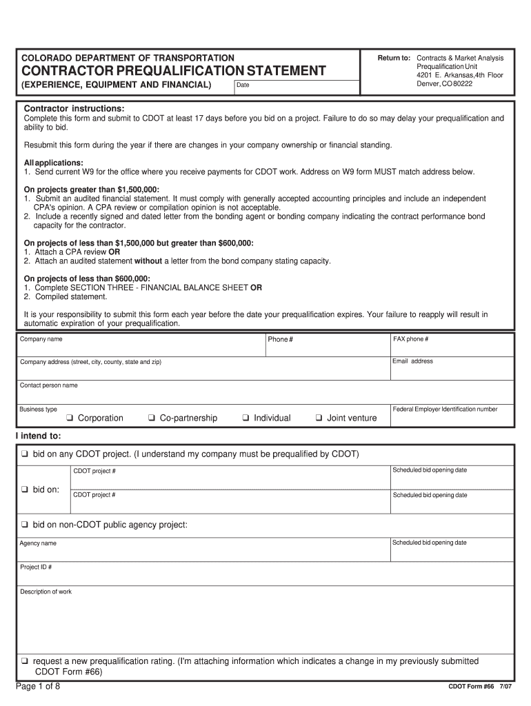
The construction prequalification form is essential for assessing a contractor's ability to meet project requirements. Key elements typically include:
- Company Information: Legal name, address, and contact details.
- Financial Stability: Recent financial statements and proof of bonding capacity.
- Experience: A detailed list of past projects, including scope, budget, and completion dates.
- Insurance Coverage: Documentation of liability and workers' compensation insurance.
- References: Contact information for previous clients and project managers.
Steps to complete the construction prequalification form
Completing the construction prequalification form involves several steps to ensure accuracy and compliance. Follow these guidelines:
- Gather Required Documents: Collect financial statements, insurance certificates, and project references.
- Fill Out the Form: Provide complete and accurate information in all sections of the form.
- Review for Accuracy: Double-check all entries to avoid errors that could delay the approval process.
- Sign and Date: Ensure the form is signed and dated to validate its authenticity.
- Submit the Form: Send the completed form through the designated submission method, whether online or by mail.
Legal use of the construction prequalification form
The construction prequalification form must comply with state and federal regulations to be legally valid. Key considerations include:
- Compliance with Regulations: Ensure adherence to the ESIGN Act and UETA for electronic signatures.
- Accurate Information: Providing truthful and complete information is crucial to avoid legal repercussions.
- Retention of Records: Keep copies of submitted forms and supporting documents for future reference and compliance audits.
Form submission methods
There are various methods for submitting the construction prequalification form, each with its own advantages:
- Online Submission: Many organizations allow for digital submission, which can streamline the process and reduce paperwork.
- Mail Submission: Traditional mailing is still an option, but ensure to use certified mail for tracking.
- In-Person Submission: Some projects may require in-person delivery, allowing for immediate confirmation of receipt.
Eligibility criteria for contractors
To qualify for consideration, contractors must meet specific eligibility criteria, which may include:
- Licensing: Valid contractor's license in the state where the project is located.
- Insurance Requirements: Proof of adequate insurance coverage as mandated by project specifications.
- Experience Level: Demonstrated experience in similar projects, showcasing capability and reliability.
Quick guide on how to complete prequalification statement
Simplify your existence by signNowing Return To CONTRACTOR PREQUALIFICATION STATEMENT Coloradodot form with airSlate SignNow
Whether you need to register a new vehicle, apply for a driver’s permit, transfer ownership, or perform any other activities related to automobiles, handling such RMV documents as prequalification statement is a requisite burden.
There are several methods through which you can obtain them: via postal service, at the RMV service center, or by accessing them online through your local RMV website and printing them. Each of these methods can be time-consuming. If you seek a faster way to complete them and authenticate them with a legally-recognized eSignature, airSlate SignNow is the top option.
How to complete construction prequalification form effortlessly
- Click Show details to read a brief overview of the form you are interested in.
- Select Get form to begin and open the form.
- Follow the green indicators highlighting mandatory fields if applicable to you.
- Utilize the top toolbar and take advantage of our advanced feature set to edit, annotate, and enhance your form's appearance.
- Add text, initials, shapes, images, and other elements.
- Press Sign in in the same toolbar to create a legally-binding eSignature.
- Review the form contents to ensure there are no mistakes or inconsistencies.
- Click Done to complete the form submission.
Utilizing our solution to fill out your contractor pre qualification form and other related documents will save you considerable time and effort. Optimize your RMV form submission process from the beginning!
Create this form in 5 minutes or less
FAQs contractor pre qualification form
-
When is it mandatory to fill out a personal financial statement for one's bank? The form states no deadline about when it must be returned.
The only time I know that financial statements are asked for is when one applies for a business or personal loan, or applying for a mortgage. Each bank or credit union can have their own document requirements, however for each transaction. It really is at their discretion.
-
What is the official website to fill out the GST return form?
https://www.gst.gov.in/
-
Can I use broker statements to fill out form 8949 instead of a 1099-B?
Yes you can. Should you? Perhaps, but remember that the 1099 is what the IRS is going to receive. There could be differences.You may receive a 1099 which is missing basis information. You will indicate that, and use your records to fill in the missing information.My suggestion is to use the 1099, cross-referencing to your statements.
-
Do I need to fill out a financial statement form if I get a full tuition waiver and RA/TA?
If that is necessary, the university or the faculty will inform you of that. These things can vary from university to university. Your best option would be to check your university website, financial services office or the Bursar office in your university.
-
Is it okay to submit a Form 67 after filling out my tax return?
As per the law, Form 67 is required for claiming Foreign Tax Credits by an assessee and it should be done along with the return of income.It is possible to file Form 67 before filing the return.The question is whether the Form can be filed after filing the return of income. While the requirement is procedural, a return may be termed as incomplete if the form is not filed along with the returns and an officer can deny foreign tax credits.However, for all intents and purposes if you file Form 67 before the completion of assessment or even with an application u/s 154 once the assessment is completed, it cannot be denied if the facts have been already disclosed in the return and teh form in itself is only completing a process.However, to avoid adventures with the department and unwanted litigation, it is always prudent to file the form with the return of income so that it is not missed out or forgotten.
-
Does a NAFTA TN Management consultant in the U.S. still need to fill out an i-9 form even though they are an independent contractor?
Yes.You must still prove work authorization even though you are a contractor. You will fill out the I9 and indicate that you are an alien authorized to work, and provide the relevant details of your TN visa in support of your application.Hope this helps.
-
Is it true that Neil Armstrong had to fill out an immigration form when he returned to the United States soil from the Moon?
No, but all three astronauts (not just Neil Armstrong) filled one out as a joke.Back from the Moon, Apollo Astronauts Had to Go Through CustomsToday’s astronauts have to go through Customs when they come back to the United States, not because they have been to space, but because they have come back from Kazakhstan! The partnership with Russia means they do a lot of international travel.Buzz Aldrin did seriously fill out a NASA travel expenses claim form that covered his trip to the moon. That’s because he had some travel expenses on Earth before they went up.
Related searches to contractor prequalification form
Create this form in 5 minutes!
How to create an eSignature for the contractor prequalification form template
How to generate an electronic signature for your Return To Contractor Prequalification Statement Coloradodot online
How to make an eSignature for the Return To Contractor Prequalification Statement Coloradodot in Google Chrome
How to make an eSignature for signing the Return To Contractor Prequalification Statement Coloradodot in Gmail
How to make an electronic signature for the Return To Contractor Prequalification Statement Coloradodot straight from your smart phone
How to make an eSignature for the Return To Contractor Prequalification Statement Coloradodot on iOS
How to create an eSignature for the Return To Contractor Prequalification Statement Coloradodot on Android devices
People also ask prequalified certificate enclosed
-
What is a construction prequalification form?
A construction prequalification form is a document used to assess the capabilities and qualifications of contractors before they bid on a project. It typically includes information about the contractor's experience, financial stability, and relevant certifications. Using airSlate SignNow, you can easily create and send customizable construction prequalification forms for your projects.
-
How does airSlate SignNow streamline the completion of construction prequalification forms?
airSlate SignNow provides an intuitive platform that allows businesses to create, send, and eSign construction prequalification forms seamlessly. With its user-friendly interface and automated workflows, teams can complete forms efficiently, reducing the time spent on paperwork. This streamlining leads to faster project bidding processes and enhanced collaboration.
-
Can I integrate airSlate SignNow with other software for managing construction prequalification forms?
Yes, airSlate SignNow offers integrations with various software solutions, allowing you to manage your construction prequalification forms alongside other business operations. These integrations enable data sync between applications, simplifying workflows and maintaining accurate records. Connecting SignNow to your CRM or project management tools enhances your overall efficiency.
-
What are the pricing options for using airSlate SignNow for construction prequalification forms?
airSlate SignNow offers flexible pricing plans designed to meet the needs of businesses of all sizes. Whether you're a small contractor or a large construction firm, you can choose a plan that includes features for managing construction prequalification forms effectively. Pricing transparency ensures you find a solution that fits your budget.
-
How secure are the construction prequalification forms sent via airSlate SignNow?
Security is a top priority for airSlate SignNow. All construction prequalification forms are encrypted during transmission and storage, ensuring that sensitive information remains protected. Features such as audit trails and authentication measures also provide peace of mind when sharing documents with contractors and stakeholders.
-
What benefits do I gain from using airSlate SignNow for my construction prequalification forms?
Using airSlate SignNow for your construction prequalification forms offers numerous benefits, including improved efficiency and reduced turnaround time. The platform's eSignature capabilities make it easy to get approvals quickly, while customizable templates help maintain consistency across documents. Overall, airSlate SignNow enhances project management and communication within your team.
-
Can I customize the construction prequalification forms in airSlate SignNow?
Yes, airSlate SignNow allows for extensive customization of your construction prequalification forms. You can modify fields, add branding, and tailor questions to suit your specific requirements, ensuring that the forms align with your company's standards. This flexibility helps gather the precise information you need from contractors.
Get more for construction prequalification form
Find out other contractor pre qualification form
- eSign Tennessee Government Arbitration Agreement Online
- eSign Tennessee Government Arbitration Agreement Computer
- Help Me With eSign Wyoming Healthcare / Medical Profit And Loss Statement
- eSign Tennessee Government Arbitration Agreement Mobile
- eSign Tennessee Government Arbitration Agreement Now
- eSign Wyoming Healthcare / Medical Last Will And Testament Safe
- How Can I eSign Wyoming Healthcare / Medical Profit And Loss Statement
- eSign Tennessee Government Arbitration Agreement Later
- eSign Tennessee Government Arbitration Agreement Myself
- Can I eSign Wyoming Healthcare / Medical Profit And Loss Statement
- eSign Tennessee Government Arbitration Agreement Free
- eSign Tennessee Government Arbitration Agreement Secure
- eSign Tennessee Government Arbitration Agreement Fast
- eSign Tennessee Government Arbitration Agreement Simple
- eSign Tennessee Government Arbitration Agreement Easy
- eSign Tennessee Government Arbitration Agreement Safe
- eSign Alaska Lawers Job Offer Online
- eSign Wyoming Healthcare / Medical Business Letter Template Online
- How To eSign Tennessee Government Arbitration Agreement
- eSign Wyoming Healthcare / Medical Business Letter Template Computer