 
                Air Quality Inspection Checklist for Automotive Coatings Facility Deq Idaho Form
 
                             
                            Understanding the Air Quality Inspection Checklist for Automotive Coatings Facility in Idaho
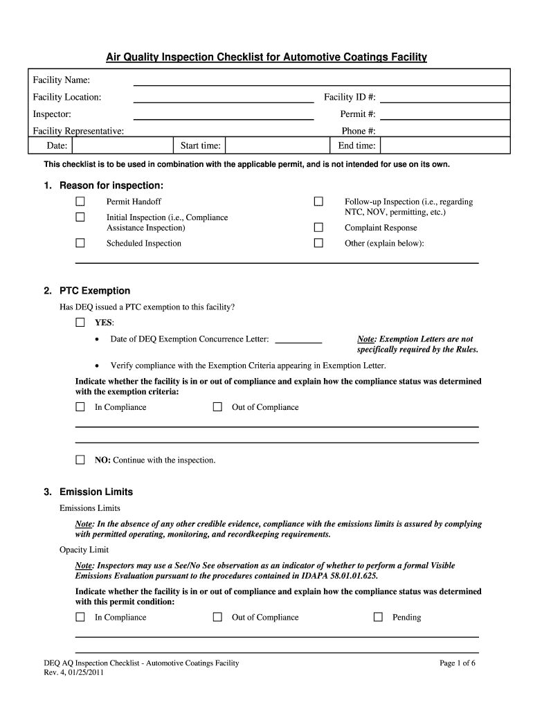
The Air Quality Inspection Checklist for Automotive Coatings Facility in Idaho is a vital document designed to ensure compliance with state and federal air quality regulations. This checklist helps facilities assess their adherence to environmental standards, particularly regarding emissions and pollutants. It includes specific criteria that automotive coatings facilities must meet to operate legally and sustainably. By utilizing this checklist, businesses can identify potential areas of non-compliance and take corrective action before inspections occur.
Steps to Complete the Air Quality Inspection Checklist for Automotive Coatings Facility in Idaho
Completing the Air Quality Inspection Checklist involves a systematic approach to ensure all necessary criteria are met. Here are the key steps:
- Gather Required Documentation: Collect all relevant permits, previous inspection reports, and operational records.
- Review Checklist Items: Familiarize yourself with each item on the checklist, noting any specific requirements related to emissions, equipment, and operational practices.
- Conduct a Self-Inspection: Walk through the facility, assessing compliance with each checklist item. Document findings and any areas of concern.
- Implement Corrective Actions: Address any identified issues by making necessary adjustments or repairs to equipment and processes.
- Finalize Documentation: Complete the checklist by ensuring all sections are filled out accurately, and prepare for submission to the appropriate regulatory body.
Key Elements of the Air Quality Inspection Checklist for Automotive Coatings Facility in Idaho
The checklist comprises several critical elements that facilities must evaluate:
- Emission Controls: Review the effectiveness of equipment designed to minimize emissions.
- Material Usage: Assess the types of coatings and solvents used, ensuring they comply with state regulations.
- Record Keeping: Ensure that all operational records, including maintenance logs and inspection reports, are up to date.
- Training and Procedures: Verify that staff are trained in environmental compliance and that proper procedures are in place.
- Monitoring Systems: Evaluate the functionality of any monitoring systems in place to track emissions and air quality.
Legal Use of the Air Quality Inspection Checklist for Automotive Coatings Facility in Idaho
The legal use of the Air Quality Inspection Checklist is essential for maintaining compliance with environmental regulations. Facilities must ensure that the checklist is completed accurately and submitted to the Idaho Department of Environmental Quality (DEQ) as required. Non-compliance can result in penalties, including fines or operational shutdowns. Therefore, understanding the legal implications of the checklist is crucial for automotive coatings facilities operating in Idaho.
State-Specific Rules for the Air Quality Inspection Checklist for Automotive Coatings Facility in Idaho
Idaho has specific regulations that govern air quality standards for automotive coatings facilities. These rules include limits on volatile organic compounds (VOCs) and other emissions. Facilities must adhere to these state-specific guidelines to avoid penalties and ensure environmental protection. Regular updates to these regulations mean that facilities should stay informed about any changes that may affect their operations.
How to Obtain the Air Quality Inspection Checklist for Automotive Coatings Facility in Idaho
Obtaining the Air Quality Inspection Checklist is a straightforward process. Facilities can typically access the checklist through the Idaho Department of Environmental Quality's official website or by contacting their local DEQ office. It is advisable for facilities to download the most recent version of the checklist to ensure compliance with current regulations. Additionally, staff should be familiar with the checklist to facilitate a smooth inspection process.
Quick guide on how to complete automotive quality control checklist
Complete automotive quality control checklist effortlessly on any device
Managing documents online has become increasingly popular among businesses and individuals. It offers an ideal eco-friendly alternative to traditional printed and signed paperwork, allowing you to access the necessary form and securely store it online. airSlate SignNow equips you with all the tools required to create, modify, and electronically sign your documents swiftly without delays. Handle facility inspection form on any device using airSlate SignNow's Android or iOS applications and enhance any document-centric workflow today.
How to modify and electronically sign automotive air quality with ease
- Find automotive check list and click Get Form to begin.
- Utilize the tools we offer to complete your form.
- Emphasize important sections of your documents or redact sensitive information with tools that airSlate SignNow provides specifically for that purpose.
- Create your electronic signature using the Sign tool, which takes seconds and holds the same legal validity as a conventional wet ink signature.
- Review the information and click on the Done button to save your modifications.
- Choose how you wish to distribute your form, via email, text message (SMS), invitation link, or download it to your computer.
Forget about lost or mislaid files, tedious form searching, or mistakes that necessitate printing new document copies. airSlate SignNow addresses all your document management needs in just a few clicks from any device you prefer. Edit and electronically sign automotive checklist while ensuring exceptional communication throughout your form preparation journey with airSlate SignNow.
Create this form in 5 minutes or less
Related searches to facility checklist template
Create this form in 5 minutes!
How to create an eSignature for the facility inspection checklist
How to create an eSignature for the Air Quality Inspection Checklist For Automotive Coatings Facility Deq Idaho in the online mode
How to create an electronic signature for the Air Quality Inspection Checklist For Automotive Coatings Facility Deq Idaho in Google Chrome
How to make an electronic signature for signing the Air Quality Inspection Checklist For Automotive Coatings Facility Deq Idaho in Gmail
How to generate an electronic signature for the Air Quality Inspection Checklist For Automotive Coatings Facility Deq Idaho straight from your smartphone
How to create an eSignature for the Air Quality Inspection Checklist For Automotive Coatings Facility Deq Idaho on iOS devices
How to generate an electronic signature for the Air Quality Inspection Checklist For Automotive Coatings Facility Deq Idaho on Android
People also ask idaho air quality board
- 
                                
                                    
                                    
                                    What is a facility inspection form?
                                
                                A facility inspection form is a document used to evaluate the condition and compliance of facilities. It helps businesses identify areas needing attention and ensures adherence to safety standards. With airSlate SignNow, you can create and manage these forms efficiently, streamlining your inspection processes.
- 
                                
                                    
                                    
                                    How does airSlate SignNow facilitate the use of facility inspection forms?
                                
                                airSlate SignNow provides a user-friendly platform where you can easily create, send, and eSign facility inspection forms. Our solution allows for quick customization, enabling you to tailor the forms to your specific needs. This not only saves time but also enhances productivity by simplifying the process.
- 
                                
                                    
                                    
                                    What are the key features of the facility inspection form on airSlate SignNow?
                                
                                Key features of the facility inspection form in airSlate SignNow include customizable templates, electronic signatures, and secure data storage. Additionally, our platform allows for real-time collaboration, so multiple team members can review and sign documents simultaneously. These features ensure a smooth and efficient inspection workflow.
- 
                                
                                    
                                    
                                    Can I integrate airSlate SignNow with other tools for facility inspection management?
                                
                                Yes, airSlate SignNow can seamlessly integrate with various tools and software used for facility inspection management. This includes popular project management and document storage applications. These integrations enhance functionality and improve the overall efficiency of managing your facility inspection forms.
- 
                                
                                    
                                    
                                    What are the benefits of using an electronic facility inspection form?
                                
                                Using an electronic facility inspection form offers numerous benefits, including increased efficiency, reduced paper usage, and improved accuracy. Digital forms allow for instant updates and easy sharing among team members, leading to faster response times. airSlate SignNow helps you leverage these advantages effectively.
- 
                                
                                    
                                    
                                    Is airSlate SignNow a cost-effective solution for managing facility inspection forms?
                                
                                Absolutely! airSlate SignNow is designed to be a cost-effective solution for businesses of all sizes. With competitive pricing plans and a range of features tailored to your needs, you can optimize your facility inspection form processes without breaking the bank.
- 
                                
                                    
                                    
                                    How secure are the facility inspection forms created with airSlate SignNow?
                                
                                Security is a top priority with airSlate SignNow. Our platform employs advanced encryption and complies with industry standards to ensure that your facility inspection forms and data are protected. You can trust that your sensitive inspection information is safe and secure.
Get more for idaho deq air quality
- Vehicle suitable for safe use declaration 2014 form
- Surrey police shotgun certificate form
- Ann arbor schools medication administration form
- Kra c32 form
- Rfp kinship support services county of kern co kern ca form
- Consumer complaint form
- Form 507 report as to affairs amp form 507a de vries tayeh
- 2008 r 1a form
Find out other idaho form 51
- eSign Alabama Sports Arbitration Agreement Free
- How Do I eSign Utah Orthodontists Business Letter Template
- Help Me With eSign Utah Orthodontists Business Letter Template
- eSign Utah Orthodontists Business Letter Template Computer
- How Can I eSign Utah Orthodontists Business Letter Template
- Can I eSign Utah Orthodontists Business Letter Template
- eSign Alabama Sports Arbitration Agreement Secure
- eSign Utah Orthodontists Business Letter Template Mobile
- eSign Utah Orthodontists Business Letter Template Now
- eSign Texas Orthodontists Executive Summary Template Online
- eSign Texas Orthodontists Executive Summary Template Computer
- eSign Alabama Sports Arbitration Agreement Fast
- eSign Utah Orthodontists Business Letter Template Later
- eSign Texas Orthodontists Executive Summary Template Mobile
- eSign Texas Orthodontists Executive Summary Template Now
- eSign Texas Orthodontists Executive Summary Template Later
- eSign Alabama Sports Arbitration Agreement Simple
- eSign Utah Orthodontists Business Letter Template Myself
- eSign Texas Orthodontists Executive Summary Template Free
- eSign Texas Orthodontists Executive Summary Template Myself