 
                2022-2025 Form
 
                             
                            What is the Residential Rental Property Disclosure Authorization Form
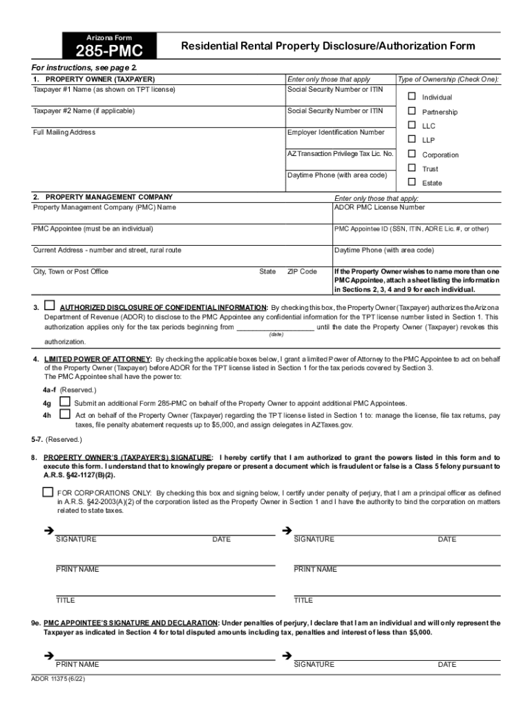
The Residential Rental Property Disclosure Authorization Form is a legal document used in real estate transactions. It serves to inform potential tenants about the condition of a rental property and any known issues that could affect their decision to lease. This form is essential for landlords to disclose pertinent information, ensuring transparency and compliance with state laws. It typically includes details about the property's history, maintenance records, and any existing hazards, such as lead paint or mold.
How to use the Residential Rental Property Disclosure Authorization Form
This form is utilized by landlords to provide necessary disclosures to prospective tenants before signing a lease agreement. To use the form effectively, landlords should complete it with accurate and comprehensive information regarding the property. Once filled out, it should be presented to potential tenants during the application process, allowing them to review the disclosures before committing to the rental. This practice not only fosters trust but also helps prevent future legal disputes related to undisclosed property issues.
Key elements of the Residential Rental Property Disclosure Authorization Form
The key elements of the Residential Rental Property Disclosure Authorization Form typically include:
- Property Address: The complete address of the rental property.
- Disclosure of Known Issues: Specific details about any known defects or hazards.
- Maintenance History: Information on past repairs and maintenance performed.
- Lead-Based Paint Disclosure: Required information if the property was built before 1978.
- Signature Lines: Spaces for both the landlord and tenant to sign, acknowledging receipt of the disclosures.
Steps to complete the Residential Rental Property Disclosure Authorization Form
Completing the Residential Rental Property Disclosure Authorization Form involves several steps:
- Gather Information: Collect all relevant details about the property's condition and history.
- Fill Out the Form: Accurately input the gathered information into the form.
- Review the Document: Ensure all information is complete and correct before presenting it to potential tenants.
- Sign the Form: Both the landlord and tenant should sign the form to acknowledge the disclosures.
Legal use of the Residential Rental Property Disclosure Authorization Form
The legal use of the Residential Rental Property Disclosure Authorization Form is crucial for compliance with federal and state regulations. Landlords are legally obligated to disclose certain information about the rental property. Failure to provide accurate disclosures can lead to legal consequences, including potential lawsuits or penalties. This form helps protect both the landlord's and tenant's rights by ensuring that all necessary information is communicated effectively.
State-specific rules for the Residential Rental Property Disclosure Authorization Form
Each state in the U.S. has its own regulations regarding the use of the Residential Rental Property Disclosure Authorization Form. Landlords must be aware of these state-specific rules, which may dictate what information must be disclosed and the format of the disclosures. For example, some states require additional disclosures related to environmental hazards or local rental laws. It is essential for landlords to familiarize themselves with their state’s requirements to ensure compliance and avoid legal issues.
Quick guide on how to complete residential rental property disclosureauthorization form
Effortlessly complete [SKS] on any device
Managing documents online has become increasingly popular among companies and individuals. It serves as an ideal eco-friendly alternative to traditional printed and signed paperwork, allowing you to access the necessary forms and securely store them online. airSlate SignNow provides all the resources you require to create, modify, and eSign your documents swiftly without delays. Manage [SKS] on any device using the airSlate SignNow Android or iOS applications and streamline any document-related process today.
The easiest way to modify and eSign [SKS] effortlessly
- Obtain [SKS] and click Get Form to begin.
- Utilize the tools available to complete your document.
- Emphasize pertinent sections of your documents or obscure sensitive information with tools specifically provided by airSlate SignNow for that purpose.
- Create your signature using the Sign tool, which takes just seconds and holds the same legal validity as a conventional wet ink signature.
- Review the details and click on the Done button to save your changes.
- Choose your preferred method of sharing your form, whether by email, SMS, invitation link, or downloading it to your PC.
Eliminate the hassle of lost or misfiled documents, tedious form searches, or mistakes that require printing new copies. airSlate SignNow meets your document management needs in a few clicks from any device you choose. Edit and eSign [SKS] to ensure effective communication at every stage of the form preparation process with airSlate SignNow.
Create this form in 5 minutes or less
Find and fill out the correct residential rental property disclosureauthorization form
Related searches to Residential Rental Property DisclosureAuthorization Form
Create this form in 5 minutes!
How to create an eSignature for the residential rental property disclosureauthorization form
How to create an electronic signature for a PDF online
How to create an electronic signature for a PDF in Google Chrome
How to create an e-signature for signing PDFs in Gmail
How to create an e-signature right from your smartphone
How to create an e-signature for a PDF on iOS
How to create an e-signature for a PDF on Android
People also ask
- 
                                
                                    
                                    
                                    What is a Residential Rental Property Disclosure Authorization Form?
                                
                                The Residential Rental Property Disclosure Authorization Form is a legal document that provides tenants with essential information about the rental property. It ensures transparency between landlords and tenants regarding property conditions and any potential issues. This form is crucial for protecting both parties' rights and maintaining a clear understanding of property details.
- 
                                
                                    
                                    
                                    Why do I need a Residential Rental Property Disclosure Authorization Form?
                                
                                You need a Residential Rental Property Disclosure Authorization Form to legally inform tenants about the condition of the rental property and any relevant disclosures. This form helps prevent misunderstandings and potential disputes between landlords and tenants. It ensures that tenants are fully aware of any issues before they enter into a rental agreement.
- 
                                
                                    
                                    
                                    How do I create a Residential Rental Property Disclosure Authorization Form using airSlate SignNow?
                                
                                Creating a Residential Rental Property Disclosure Authorization Form using airSlate SignNow is straightforward. Simply log into your account, select the document template, and customize it to fit your property's specific details. Our platform allows you to electronically sign, store, and share the form securely.
- 
                                
                                    
                                    
                                    Is the Residential Rental Property Disclosure Authorization Form legally binding?
                                
                                Yes, the Residential Rental Property Disclosure Authorization Form is legally binding when executed properly. It requires signatures from both the landlord and the tenant to be valid. Using airSlate SignNow's eSigning feature guarantees that all parties can sign securely and that the document is recognized legally.
- 
                                
                                    
                                    
                                    What are the benefits of using airSlate SignNow for the Residential Rental Property Disclosure Authorization Form?
                                
                                Using airSlate SignNow for the Residential Rental Property Disclosure Authorization Form streamlines the signing process, making it quick and hassle-free. Our platform offers templates, ensures compliance, and enhances security. Additionally, you can track the signing process in real-time, providing peace of mind.
- 
                                
                                    
                                    
                                    Can I integrate the Residential Rental Property Disclosure Authorization Form with other software?
                                
                                Absolutely! airSlate SignNow allows for seamless integration with various applications, enhancing your workflow. You can integrate your Residential Rental Property Disclosure Authorization Form with CRM software, property management systems, and more to streamline document management and tracking.
- 
                                
                                    
                                    
                                    What pricing options are available for using airSlate SignNow for the Residential Rental Property Disclosure Authorization Form?
                                
                                airSlate SignNow offers flexible pricing options to cater to different needs, whether you're an individual landlord or managing multiple properties. Our plans are designed to be cost-effective, providing great value for those needing to use the Residential Rental Property Disclosure Authorization Form. Visit our pricing page for more details on available plans.
Get more for Residential Rental Property DisclosureAuthorization Form
- Blood smoke and dom answer key form
- Pampered chef zer meals menu 4 form
- Virginia form r 7 authority tax services
- Cal state long beach application form
- Auto express vehicle appraisal form autoexpress co
- Primary caregiver tax credit level of care equivalency guideline form
- Tembisa tvet college form
- Peoples bank account opening application form
Find out other Residential Rental Property DisclosureAuthorization Form
- How To Integrate Sign in Banking
- How Do I Integrate Sign in Banking
- Help Me With Integrate Sign in Banking
- How Can I Integrate Sign in Banking
- Can I Integrate Sign in Banking
- How To Use Sign in Banking
- How Do I Use Sign in Banking
- Help Me With Use Sign in Banking
- How Can I Use Sign in Banking
- Can I Use Sign in Banking
- How To Install Sign in Banking
- How Do I Install Sign in Banking
- Help Me With Install Sign in Banking
- How Can I Install Sign in Banking
- Can I Install Sign in Banking
- How To Add Sign in Banking
- How Do I Add Sign in Banking
- Help Me With Add Sign in Banking
- How Can I Add Sign in Banking
- Can I Add Sign in Banking