
2008-2025 Form


What is the Purchase And Sales Agreement Nh Form
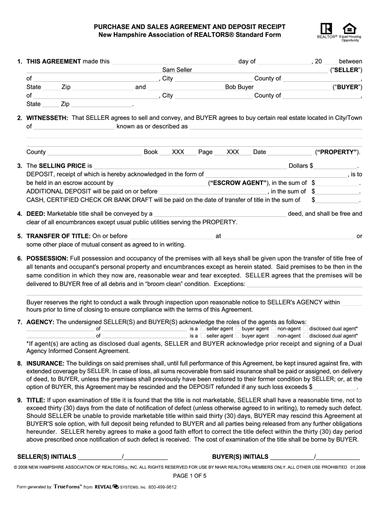
The Purchase and Sales Agreement NH Form is a legal document used in New Hampshire to outline the terms and conditions of a real estate transaction between a buyer and a seller. This form serves as a binding contract that details the specifics of the sale, including the purchase price, property description, and any contingencies that must be met before the sale can be finalized. It is essential for both parties to understand the implications of this agreement, as it protects their rights and outlines their responsibilities throughout the transaction process.
How to use the Purchase And Sales Agreement Nh Form
Using the Purchase and Sales Agreement NH Form involves several steps to ensure that the document is completed accurately and legally binding. First, both the buyer and seller should review the form thoroughly to understand its contents. Next, they must fill in the required information, such as the names of the parties involved, property details, and financial terms. It is advisable to consult with a real estate attorney or agent to clarify any legal jargon and ensure compliance with state laws. Once completed, both parties should sign the document, and it is recommended to have it notarized for added security.
Key elements of the Purchase And Sales Agreement Nh Form
The Purchase and Sales Agreement NH Form contains several key elements that are crucial for a successful transaction. These include:
- Property Description: A detailed description of the property being sold, including its address and any relevant features.
- Purchase Price: The agreed-upon price for the property, along with payment terms.
- Contingencies: Conditions that must be met for the sale to proceed, such as financing approval or home inspections.
- Closing Date: The date on which the transaction will be finalized, and ownership will be transferred.
- Signatures: Both parties must sign the agreement to make it legally binding.
Steps to complete the Purchase And Sales Agreement Nh Form
Completing the Purchase and Sales Agreement NH Form involves a systematic approach to ensure accuracy and legality. The steps include:
- Gather necessary information about the property and the parties involved.
- Fill out the form with accurate details, ensuring all sections are completed.
- Review the form with all parties to confirm understanding and agreement on the terms.
- Sign the document in the presence of a notary, if required.
- Distribute copies of the signed agreement to all parties for their records.
Legal use of the Purchase And Sales Agreement Nh Form
The legal use of the Purchase and Sales Agreement NH Form is significant in protecting the interests of both buyers and sellers. This document must comply with New Hampshire state laws to be enforceable. It serves as evidence of the agreement between the parties and can be presented in court if disputes arise. Proper execution, including signatures and notarization, enhances the document's validity and ensures that both parties are held accountable for their commitments as outlined in the agreement.
State-specific rules for the Purchase And Sales Agreement Nh Form
New Hampshire has specific rules and regulations governing the use of the Purchase and Sales Agreement. These rules dictate how the form should be filled out, the necessary disclosures that must be included, and the legal obligations of both parties. For instance, New Hampshire law requires that certain disclosures about the property's condition be made to the buyer. Familiarity with these state-specific rules is essential to ensure compliance and to avoid potential legal issues during the transaction.
Quick guide on how to complete purchase and sales agreement nh 2008 form
Complete [SKS] effortlessly on any device
Web-based document management has become increasingly favored by businesses and individuals alike. It offers an ideal eco-friendly substitute for conventional printed and signed documents, as you can access the needed form and securely keep it online. airSlate SignNow provides you with all the resources necessary to create, modify, and eSign your documents quickly without delays. Handle [SKS] on any device using airSlate SignNow Android or iOS applications and enhance any document-centered operation today.
How to modify and eSign [SKS] with ease
- Obtain [SKS] and click Get Form to begin.
- Utilize the tools we provide to complete your form.
- Emphasize pertinent sections of your documents or mask sensitive information with tools that airSlate SignNow specifically offers for this purpose.
- Create your signature using the Sign tool, which takes mere seconds and carries the same legal validity as a standard wet ink signature.
- Verify all the details and click on the Done button to save your changes.
- Select your preferred method to send your form, whether by email, SMS, invite link, or download it to your computer.
Forget about lost or mislaid documents, tedious form searching, or errors that require printing new document copies. airSlate SignNow meets your document management needs in just a few clicks from any device you prefer. Modify and eSign [SKS] and ensure excellent communication at any step of your form preparation process with airSlate SignNow.
Create this form in 5 minutes or less
Find and fill out the correct purchase and sales agreement nh 2008 form
Related searches to Purchase And Sales Agreement Nh Form
Create this form in 5 minutes!
How to create an eSignature for the purchase and sales agreement nh 2008 form
How to generate an eSignature for your PDF file online
How to generate an eSignature for your PDF file in Google Chrome
How to make an eSignature for signing PDFs in Gmail
How to make an eSignature straight from your mobile device
The best way to create an electronic signature for a PDF file on iOS
How to make an eSignature for a PDF document on Android devices
People also ask
-
What is a Purchase And Sales Agreement Nh Form?
The Purchase And Sales Agreement Nh Form is a legal document that outlines the terms of a real estate transaction in New Hampshire. It serves to protect both the buyer and the seller by specifying key details such as price, contingencies, and closing dates. Understanding this form is crucial for a smooth property transfer.
-
How do I create a Purchase And Sales Agreement Nh Form using airSlate SignNow?
Creating a Purchase And Sales Agreement Nh Form with airSlate SignNow is straightforward. Simply log in to your account, select the template for the agreement, fill in the necessary details, and then send it for eSigning. Our platform streamlines the process, making it efficient and hassle-free.
-
What features does airSlate SignNow offer for the Purchase And Sales Agreement Nh Form?
airSlate SignNow provides several features for the Purchase And Sales Agreement Nh Form, including customizable templates, eSigning capabilities, and real-time document tracking. Additionally, you can integrate the form with other applications to enhance its functionality, making transaction management easier.
-
Is the Purchase And Sales Agreement Nh Form legally binding?
Yes, the Purchase And Sales Agreement Nh Form is legally binding once it is signed by all parties involved. It creates an enforceable contract that outlines the responsibilities and obligations of both buyer and seller. Ensure that all details are accurate before signing to avoid any disputes.
-
How much does it cost to use airSlate SignNow for a Purchase And Sales Agreement Nh Form?
The pricing for using airSlate SignNow to create a Purchase And Sales Agreement Nh Form is competitive and varies based on the plan you choose. We offer a range of subscription options to meet different business needs, and all plans include features that help you manage documents effectively. Consider trying a free trial to explore our services.
-
Can I share the Purchase And Sales Agreement Nh Form easily with others?
Absolutely! airSlate SignNow allows you to share the Purchase And Sales Agreement Nh Form easily through email or a shareable link. Collaborators can access, review, and eSign the document from any device, streamlining the process and facilitating quick approvals.
-
What are the benefits of using airSlate SignNow for Purchase And Sales Agreement Nh Form?
Using airSlate SignNow for the Purchase And Sales Agreement Nh Form offers numerous benefits, such as enhanced security, faster turnaround times, and the ability to track document status in real-time. Additionally, the platform is designed to be user-friendly, ensuring a smooth experience for both you and your clients during the signing process.
Get more for Purchase And Sales Agreement Nh Form
Find out other Purchase And Sales Agreement Nh Form
- eSign Ohio Legal Lease Template Secure
- eSign Oklahoma Non-Profit Bill Of Lading Now
- eSign Oklahoma Non-Profit Bill Of Lading Later
- eSign Oklahoma Non-Profit Living Will Secure
- eSign Oklahoma Non-Profit Bill Of Lading Myself
- eSign Oklahoma Non-Profit Bill Of Lading Free
- eSign Ohio Legal Lease Template Fast
- eSign Oklahoma Non-Profit Living Will Fast
- eSign Oklahoma Non-Profit Bill Of Lading Secure
- eSign Oklahoma Non-Profit Bill Of Lading Fast
- eSign Oklahoma Non-Profit Bill Of Lading Simple
- eSign Ohio Legal Lease Template Simple
- eSign Oklahoma Non-Profit Bill Of Lading Easy
- eSign Oklahoma Non-Profit Living Will Simple
- eSign Oklahoma Non-Profit Bill Of Lading Safe
- eSign Ohio Legal Lease Template Easy
- eSign Oklahoma Non-Profit Living Will Easy
- How To eSign Oklahoma Non-Profit Bill Of Lading
- How Do I eSign Oklahoma Non-Profit Bill Of Lading
- eSign Ohio Legal Lease Template Safe