
Vacating a Homestead Meaning 2020-2025 Form


Understanding the Claim for Homestead Property Tax Standard Supplemental Deduction
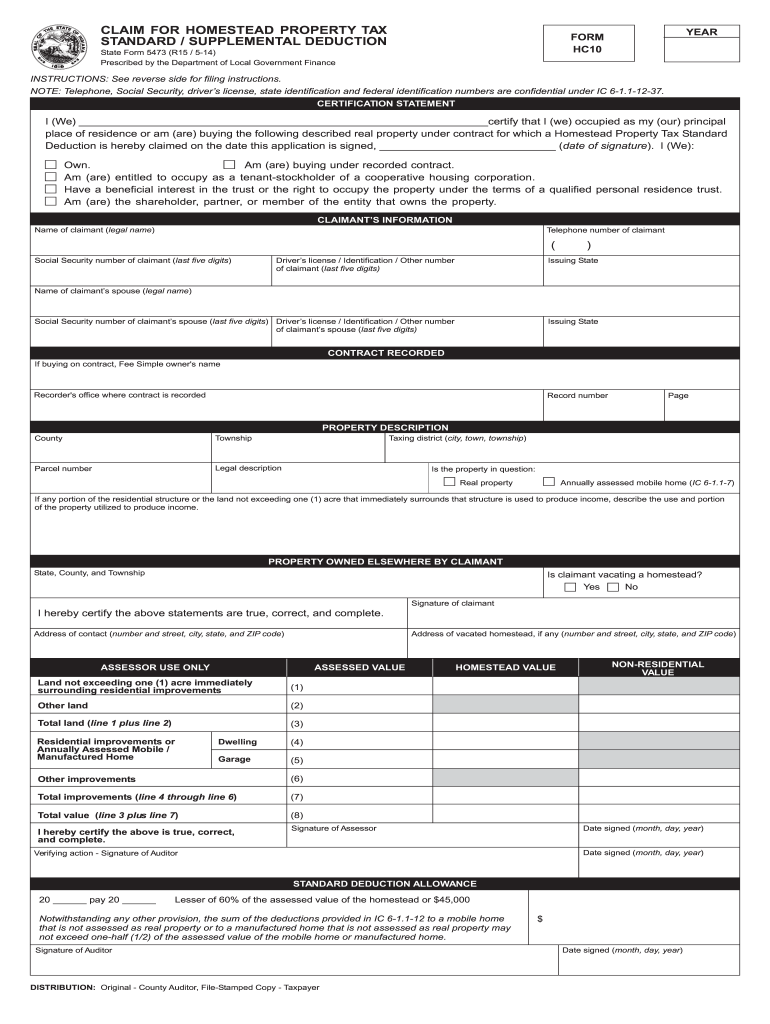
The Claim for Homestead Property Tax Standard Supplemental Deduction is a legal document that allows homeowners to reduce their property tax burden. This deduction is typically available to individuals who occupy their property as their primary residence. The purpose of this claim is to provide financial relief to homeowners, ensuring that property taxes are fair and manageable. Understanding the eligibility criteria and the specifics of the claim is essential for homeowners looking to benefit from this deduction.
Steps to Complete the Claim for Homestead Property Tax Standard Supplemental Deduction
Completing the Claim for Homestead Property Tax Standard Supplemental Deduction involves several key steps:
- Gather necessary documentation, including proof of residency and ownership.
- Fill out the claim form accurately, ensuring all information is complete.
- Submit the completed form by the specified deadline to your local tax authority.
- Keep a copy of the submitted form for your records.
Following these steps carefully will help ensure that your claim is processed smoothly and efficiently.
Eligibility Criteria for the Claim for Homestead Property Tax Standard Supplemental Deduction
To qualify for the Claim for Homestead Property Tax Standard Supplemental Deduction, homeowners must meet specific eligibility criteria. Generally, applicants must:
- Own and occupy the property as their primary residence.
- Meet any income limits set by the state or local jurisdiction.
- Submit the claim within the designated filing period.
It is important to check local regulations, as eligibility can vary by state.
Required Documents for the Claim for Homestead Property Tax Standard Supplemental Deduction
When filing the Claim for Homestead Property Tax Standard Supplemental Deduction, certain documents are typically required. These may include:
- Proof of identity, such as a driver's license or state ID.
- Documentation of property ownership, like a deed or mortgage statement.
- Evidence of residency, such as utility bills or rental agreements.
Having these documents ready can facilitate a smoother application process.
Form Submission Methods for the Claim for Homestead Property Tax Standard Supplemental Deduction
Homeowners can submit the Claim for Homestead Property Tax Standard Supplemental Deduction through various methods, including:
- Online submission via the local tax authority's website.
- Mailing a physical copy of the form to the appropriate office.
- In-person delivery at designated tax offices.
Choosing the most convenient method can help ensure timely processing of your claim.
State-Specific Rules for the Claim for Homestead Property Tax Standard Supplemental Deduction
Each state has its own rules and regulations regarding the Claim for Homestead Property Tax Standard Supplemental Deduction. These may include:
- Different eligibility requirements based on residency duration.
- Varied deduction amounts or percentage reductions in property taxes.
- Specific deadlines for filing claims that differ from other states.
Homeowners should familiarize themselves with their state’s guidelines to maximize their benefits.
Quick guide on how to complete vacating a homestead meaning
Effortlessly Prepare vacating a homestead meaning on Any Device
Digital document management has gained popularity among businesses and individuals alike. It offers an ideal environmentally friendly alternative to conventional printed and signed documents, allowing you to access the required forms and securely maintain them online. airSlate SignNow equips you with all necessary tools to create, modify, and electronically sign your documents swiftly without any delays. Manage vacating a homestead meaning on any device using airSlate SignNow's Android or iOS applications and simplify any document-related process today.
How to Modify and Electronically Sign what does vacating a homestead mean with Ease
- Obtain vacating a homestead meaning and click on Get Form to begin.
- Utilize the tools provided to complete your document.
- Emphasize important sections of the documents or conceal sensitive information using the tools specifically offered by airSlate SignNow for that purpose.
- Create your electronic signature with the Sign feature, which takes mere seconds and carries the same legal validity as a traditional handwritten signature.
- Review the information and click on the Done button to save your updates.
- Select your preferred method for sending your form, whether by email, text message (SMS), or shareable link, or download it to your computer.
Eliminate the worry of lost or misfiled documents, tedious form searches, or mistakes that necessitate printing new copies. airSlate SignNow fulfills all your document management requirements with just a few clicks from your selected device. Modify and electronically sign what does vacating a homestead mean to ensure excellent communication at every stage of the document preparation process with airSlate SignNow.
Create this form in 5 minutes or less
Find and fill out the correct vacating a homestead meaning
Related searches to vacating a homestead meaning
Create this form in 5 minutes!
How to create an eSignature for the what does vacating a homestead mean
How to make an eSignature for a PDF file online
How to make an eSignature for a PDF file in Google Chrome
The way to create an electronic signature for signing PDFs in Gmail
The way to create an eSignature straight from your mobile device
The best way to make an eSignature for a PDF file on iOS
The way to create an eSignature for a PDF document on Android devices
People also ask what does vacating a homestead mean
-
What does 'vacating a homestead meaning' refer to?
Vacating a homestead meaning involves the legal process of leaving a primary residence after a sale or foreclosure. It typically requires notifying the appropriate parties and completing any necessary legal documents. Understanding this term is crucial for homeowners looking to transition smoothly out of their property.
-
How can airSlate SignNow help with vacating a homestead meaning?
AirSlate SignNow offers a user-friendly platform for eSigning important documents related to vacating a homestead. By streamlining the document signing process, users can ensure all necessary paperwork is completed efficiently and securely. This ease of use is particularly beneficial during transitions that involve property changes.
-
What are the pricing options for airSlate SignNow?
AirSlate SignNow provides flexible pricing plans to cater to different business needs, starting from a basic tier to advanced options. Each plan includes features essential for managing documents related to vacating a homestead meaning and more. Additionally, you can explore a free trial to evaluate the service before committing.
-
What features does airSlate SignNow offer for document management?
AirSlate SignNow includes robust features, such as customizable templates, document sharing, and real-time collaboration. These tools make it easier for users to manage their processes related to vacating a homestead meaning efficiently. Furthermore, the platform is designed to be intuitive, allowing all users to navigate and complete tasks without any hassle.
-
Can airSlate SignNow integrate with other software solutions?
Yes, airSlate SignNow integrates with a variety of popular software applications, enhancing workflow efficiency. This capability allows users to connect their document signing with platforms they already use, which is particularly beneficial when dealing with vacating a homestead meaning. Integration minimizes wasted time and ensures all data is synchronized seamlessly.
-
What are the benefits of using airSlate SignNow for signing documents?
Using airSlate SignNow for signing documents comes with several advantages, including security, ease of use, and accessibility. This is especially relevant to topics like vacating a homestead meaning, where important documents must be signed quickly and securely. The platform also offers advanced tracking features, so users can monitor the status of their signed documents.
-
Is airSlate SignNow compliant with legal standards?
Absolutely, airSlate SignNow is compliant with various legal standards, ensuring that all eSignatures are legally binding. This compliance is crucial for processes involving vacating a homestead meaning, where legal documents play a signNow role. Users can confidently use the platform knowing they are adhering to industry regulations.
Get more for vacating a homestead meaning
- 20 to customer on the form
- Appeared known to me or proved to me on the oath of form
- Thereunto belonging or in anywise appertaining to the parties of the second part forever form
- Divorce information and worksheet instructions this
- Inherent dangerous nature of such activities form
- On this day of 20the undersigned lienor form
- To be the person who is described in and who executed the within and form
- Lands against all claims whatever form
Find out other what does vacating a homestead mean
- eSign Delaware VAT Invoice Online
- eSign Delaware VAT Invoice Computer
- eSign New Hampshire Codicil to Will Secure
- eSign Delaware VAT Invoice Mobile
- eSign New Hampshire Codicil to Will Fast
- eSign Delaware VAT Invoice Now
- eSign Delaware VAT Invoice Later
- eSign Delaware VAT Invoice Myself
- eSign New Hampshire Codicil to Will Simple
- eSign Delaware VAT Invoice Free
- eSign Delaware VAT Invoice Secure
- eSign New Hampshire Codicil to Will Easy
- eSign Delaware VAT Invoice Fast
- eSign Delaware VAT Invoice Simple
- eSign Delaware VAT Invoice Easy
- How To eSign New Hampshire Codicil to Will
- eSign New Hampshire Codicil to Will Safe
- eSign Delaware VAT Invoice Safe
- How Do I eSign New Hampshire Codicil to Will
- How To eSign Delaware VAT Invoice