
City of Chicago Mopd 2008-2025 Form


What is the City of Chicago Mopd Form
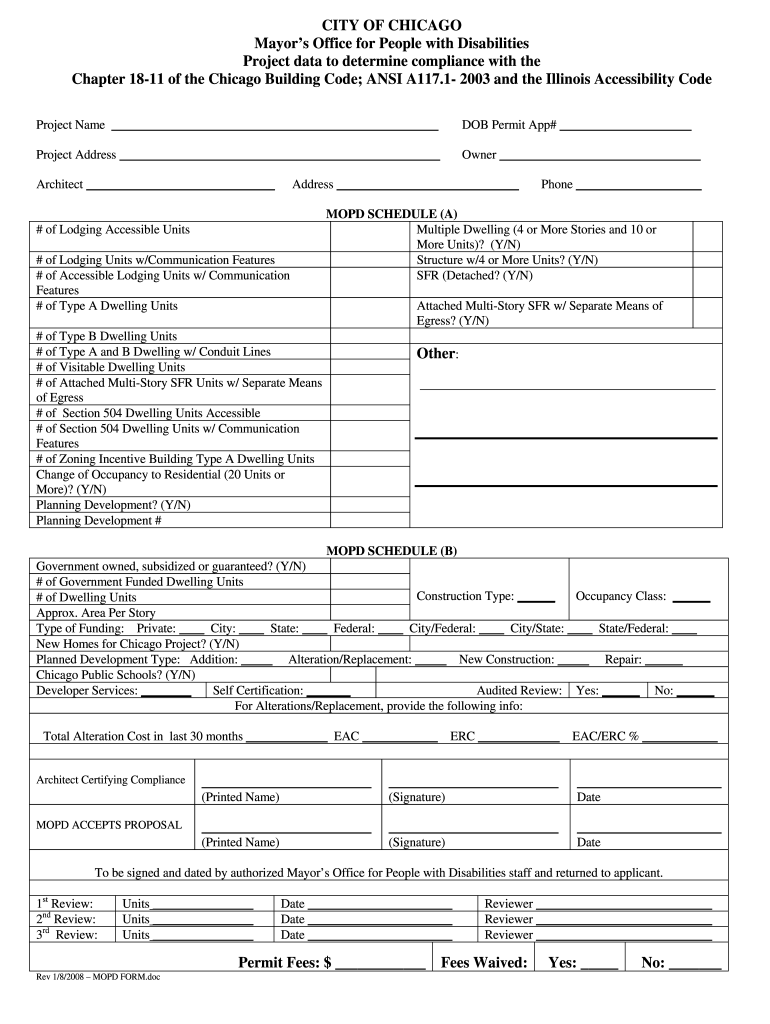
The City of Chicago Mopd form is a specific document used for the management of data pertaining to various projects within the city. This form is essential for ensuring compliance with local regulations and standards. It typically includes information about the project, such as its scope, location, and the parties involved. The Mopd form is crucial for maintaining transparency and accountability in municipal projects.
How to use the City of Chicago Mopd Form
Using the City of Chicago Mopd form involves several steps to ensure that all required information is accurately provided. First, gather all necessary project details, including descriptions, timelines, and stakeholder information. Next, fill out the form, ensuring that all sections are completed in accordance with city guidelines. Once completed, the form can be submitted electronically or printed for physical submission, depending on the requirements set forth by the city.
Steps to complete the City of Chicago Mopd Form
Completing the City of Chicago Mopd form requires careful attention to detail. Follow these steps:
- Review the form to understand all required sections.
- Collect relevant project documentation and data.
- Fill in the form, ensuring clarity and accuracy.
- Double-check all entries for completeness.
- Submit the form through the designated method, either online or by mail.
Legal use of the City of Chicago Mopd Form
The legal use of the City of Chicago Mopd form is governed by municipal laws and regulations. To be considered legally binding, the form must be completed accurately and submitted in accordance with the city’s requirements. It is essential to retain copies of the submitted form and any supporting documents for future reference, as they may be needed for compliance verification or audits.
Key elements of the City of Chicago Mopd Form
Key elements of the City of Chicago Mopd form include:
- Project title and description
- Location and address of the project
- Contact information for project stakeholders
- Timeline and milestones
- Compliance statements and signatures
Form Submission Methods
The City of Chicago Mopd form can be submitted through various methods. Users can choose to submit the form electronically via the city’s online portal, ensuring a quick and efficient process. Alternatively, the form can be printed and mailed to the appropriate city department. In-person submissions may also be available at designated city offices, providing flexibility for users.
Quick guide on how to complete mopd project chicago
Complete mopd project chicago seamlessly on any device
Online document management has become increasingly favored by businesses and individuals. It offers an ideal environmentally friendly substitute for conventional printed and signed documents, as you can easily locate the necessary form and securely keep it online. airSlate SignNow equips you with all the tools necessary to create, modify, and eSign your documents swiftly without any delays. Manage city of chicago mopd form on any device with airSlate SignNow Android or iOS applications and streamline any document-oriented process today.
How to modify and eSign mopd form chicago with ease
- Locate mopd form and click on Get Form to begin.
- Utilize the tools we provide to complete your form.
- Select important sections of your documents or conceal sensitive information with tools that airSlate SignNow offers specifically for that purpose.
- Create your eSignature using the Sign tool, which takes seconds and holds the same legal validity as a conventional wet ink signature.
- Review all the information and click on the Done button to save your changes.
- Choose how you wish to send your form: via email, text message (SMS), or invite link, or download it to your computer.
Eliminate concerns about lost or misplaced files, tedious form searching, or errors that necessitate printing new copies. airSlate SignNow meets all your document management needs in just a few clicks from any device of your preference. Modify and eSign chicago mopd form and ensure excellent communication at every stage of your document preparation process with airSlate SignNow.
Create this form in 5 minutes or less
FAQs mopd chicago code
-
Do military members have to pay any fee for leave or fiancee forms?
NOOOOOOO. You are talking to a military romance scammer. I received an email from the US Army that directly answers your question that is pasted below please keep reading.I believe you are the victim of a military Romance Scam whereas the person you are talking to is a foreign national posing as an American Soldier claiming to be stationed overseas on a peacekeeping mission. That's the key to the scam they always claim to be on a peacekeeping mission.Part of their scam is saying that they have no access to their money that their mission is highly dangerous.If your boyfriend girlfriend/future husband/wife is asking you to do the following or has exhibited this behavior, it is a most likely a scam:Moves to private messaging site immediately after meeting you on Facebook or SnapChat or Instagram or some dating or social media site. Often times they delete the site you met them on right after they asked you to move to a more private messaging siteProfesses love to you very quickly & seems to quote poems and song lyrics along with using their own sort of broken language, as they profess their love and devotion quickly. They also showed concern for your health and love for your family.Promises marriage as soon as he/she gets to state for leave that they asked you to pay for.They Requests money (wire transfers) and Amazon, iTune ,Verizon, etc gift cards, for medicine, religious practices, and leaves to come home, internet access, complete job assignments, help sick friend, get him out of trouble, or anything that sounds fishy.The military does provide all the soldier needs including food medical Care and transportation for leave. Trust me, I lived it, you are probably being scammed. I am just trying to show you examples that you are most likely being connned.Below is an email response I received after I sent an inquiry to the US government when I discovered I was scammed. I received this wonderful response back with lots of useful links on how to find and report your scammer. And how to learn more about Romance Scams.Right now you can also copy the picture he gave you and do a google image search and you will hopefully see the pictures of the real person he is impersonating. this doesn't always work and take some digging. if you find the real person you can direct message them and alert them that their image is being used for scamming.Good Luck to you and I'm sorry this may be happening to you. please continue reading the government response I received below it's very informative. You have contacted an email that is monitored by the U.S. Army Criminal Investigation Command. Unfortunately, this is a common concern. We assure you there is never any reason to send money to anyone claiming to be a Soldier online. If you have only spoken with this person online, it is likely they are not a U.S. Soldier at all. If this is a suspected imposter social media profile, we urge you to report it to that platform as soon as possible. Please continue reading for more resources and answers to other frequently asked questions: How to report an imposter Facebook profile: Caution-https://www.facebook.com/help/16... < Caution-https://www.facebook.com/help/16... > Answers to frequently asked questions: - Soldiers and their loved ones are not charged money so that the Soldier can go on leave. - Soldiers are not charged money for secure communications or leave. - Soldiers do not need permission to get married. - Soldiers emails are in this format: john.doe.mil@mail.mil < Caution-mailto: john.doe.mil@mail.mil > anything ending in .us or .com is not an official email account. - Soldiers have medical insurance, which pays for their medical costs when treated at civilian health care facilities worldwide – family and friends do not need to pay their medical expenses. - Military aircraft are not used to transport Privately Owned Vehicles. - Army financial offices are not used to help Soldiers buy or sell items of any kind. - Soldiers deployed to Combat Zones do not need to solicit money from the public to feed or house themselves or their troops. - Deployed Soldiers do not find large unclaimed sums of money and need your help to get that money out of the country. Anyone who tells you one of the above-listed conditions/circumstances is true is likely posing as a Soldier and trying to steal money from you. We would urge you to immediately cease all contact with this individual. For more information on avoiding online scams and to report this crime, please see the following sites and articles: This article may help clarify some of the tricks social media scammers try to use to take advantage of people: Caution-https://www.army.mil/article/61432/< Caution-https://www.army.mil/article/61432/> CID advises vigilance against 'romance scams,' scammers impersonating Soldiers Caution-https://www.army.mil/article/180749 < Caution-https://www.army.mil/article/180749 > FBI Internet Crime Complaint Center: Caution-http://www.ic3.gov/default.aspx< Caution-http://www.ic3.gov/default.aspx> U.S. Army investigators warn public against romance scams: Caution-https://www.army.mil/article/130...< Caution-https://www.army.mil/article/130...> DOD warns troops, families to be cybercrime smart -Caution-http://www.army.mil/article/1450...< Caution-http://www.army.mil/article/1450...> Use caution with social networking Caution-https://www.army.mil/article/146...< Caution-https://www.army.mil/article/146...> Please see our frequently asked questions section under scams and legal issues. Caution-http://www.army.mil/faq/ < Caution-http://www.army.mil/faq/ > or visit Caution-http://www.cid.army.mil/ < Caution-http://www.cid.army.mil/ >. The challenge with most scams is determining if an individual is a legitimate member of the US Army. Based on the Privacy Act of 1974, we cannot provide this information. If concerned about a scam you may contact the Better Business Bureau (if it involves a solicitation for money), or local law enforcement. If you're involved in a Facebook or dating site scam, you are free to contact us direct; (571) 305-4056. If you have a social security number, you can find information about Soldiers online at Caution-https://www.dmdc.osd.mil/appj/sc... < Caution-https://www.dmdc.osd.mil/appj/sc... > . While this is a free search, it does not help you locate a retiree, but it can tell you if the Soldier is active duty or not. If more information is needed such as current duty station or location, you can contact the Commander Soldier's Records Data Center (SRDC) by phone or mail and they will help you locate individuals on active duty only, not retirees. There is a fee of $3.50 for businesses to use this service. The check or money order must be made out to the U.S. Treasury. It is not refundable. The address is: Commander Soldier's Records Data Center (SRDC) 8899 East 56th Street Indianapolis, IN 46249-5301 Phone: 1-866-771-6357 In addition, it is not possible to remove social networking site profiles without legitimate proof of identity theft or a scam. If you suspect fraud on this site, take a screenshot of any advances for money or impersonations and report the account on the social networking platform immediately. Please submit all information you have on this incident to Caution-www.ic3.gov < Caution-http://www.ic3.gov > (FBI website, Internet Criminal Complaint Center), immediately stop contact with the scammer (you are potentially providing them more information which can be used to scam you), and learn how to protect yourself against these scams at Caution-http://www.ftc.gov < Caution-http://www.ftc.gov > (Federal Trade Commission's website)
-
How can I fill out Google's intern host matching form to optimize my chances of receiving a match?
I was selected for a summer internship 2016.I tried to be very open while filling the preference form: I choose many products as my favorite products and I said I'm open about the team I want to join.I even was very open in the location and start date to get host matching interviews (I negotiated the start date in the interview until both me and my host were happy.) You could ask your recruiter to review your form (there are very cool and could help you a lot since they have a bigger experience).Do a search on the potential team.Before the interviews, try to find smart question that you are going to ask for the potential host (do a search on the team to find nice and deep questions to impress your host). Prepare well your resume.You are very likely not going to get algorithm/data structure questions like in the first round. It's going to be just some friendly chat if you are lucky. If your potential team is working on something like machine learning, expect that they are going to ask you questions about machine learning, courses related to machine learning you have and relevant experience (projects, internship). Of course you have to study that before the interview. Take as long time as you need if you feel rusty. It takes some time to get ready for the host matching (it's less than the technical interview) but it's worth it of course.
-
How do I fill out the form of DU CIC? I couldn't find the link to fill out the form.
Just register on the admission portal and during registration you will get an option for the entrance based course. Just register there. There is no separate form for DU CIC.
-
How do you know if you need to fill out a 1099 form?
Assuming that you are talking about 1099-MISC. Note that there are other 1099s.check this post - Form 1099 MISC Rules & RegulationsQuick answer - A Form 1099 MISC must be filed for each person to whom payment is made of:$600 or more for services performed for a trade or business by people not treated as employees;Rent or prizes and awards that are not for service ($600 or more) and royalties ($10 or more);any fishing boat proceeds,gross proceeds of $600, or more paid to an attorney during the year, orWithheld any federal income tax under the backup withholding rules regardless of the amount of the payment, etc.
-
How can I make it easier for users to fill out a form on mobile apps?
I’ll tell you a secret - you can thank me later for this.If you want to make the form-filling experience easy for a user - make sure that you have a great UI to offer.Everything boils down to UI at the end.Axonator is one of the best mobile apps to collect data since it offers powerful features bundled with a simple UI.The problem with most of the mobile form apps is that they are overloaded with features that aren’t really necessary.The same doesn’t hold true for Axonator. It has useful features but it is very unlikely that the user will feel overwhelmed in using them.So, if you are inclined towards having greater form completion rates for your survey or any data collection projects, then Axonator is the way to go.Apart from that, there are other features that make the data collection process faster like offline data collection, rich data capture - audio, video, images, QR code & barcode data capture, live location & time capture, and more!Check all the features here!You will be able to complete more surveys - because productivity will certainly shoot up.Since you aren’t using paper forms, errors will drop signNowly.The cost of the paper & print will be saved - your office expenses will drop dramatically.No repeat work. No data entry. Time & money saved yet again.Analytics will empower you to make strategic decisions and explore new revenue opportunities.The app is dirt-cheap & you don’t any training to use the app. They come in with a smooth UI. Forget using, even creating forms for your apps is easy on the platform. Just drag & drop - and it’s ready for use. Anyone can build an app under hours.
Related searches to mopd form printable
Create this form in 5 minutes!
How to create an eSignature for the mopd form data
How to make an eSignature for the Chicago Mopd Form online
How to make an eSignature for your Chicago Mopd Form in Google Chrome
How to create an electronic signature for putting it on the Chicago Mopd Form in Gmail
How to make an electronic signature for the Chicago Mopd Form right from your smartphone
How to generate an electronic signature for the Chicago Mopd Form on iOS
How to make an eSignature for the Chicago Mopd Form on Android OS
People also ask illinois mopd
-
What is the city of Chicago mopd form?
The city of Chicago mopd form is a specialized document used for Metropolitan Ordinances and Permits Department submissions. It streamlines the process for obtaining necessary permits and approvals in Chicago. Understanding this form is essential for businesses looking to adhere to local regulations.
-
How does airSlate SignNow help with the city of Chicago mopd form?
airSlate SignNow simplifies the process of signing and sending the city of Chicago mopd form digitally. This platform allows users to eSign documents securely and efficiently, ensuring compliance with local requirements. Utilizing airSlate can save time and reduce errors in submissions.
-
Is there a cost associated with using airSlate SignNow for the city of Chicago mopd form?
Yes, airSlate SignNow offers various pricing tiers to cater to different business needs. The cost-effectiveness of using airSlate is evident in the ability to manage multiple documents, like the city of Chicago mopd form, without the need for printing or physical storage. You can choose a plan that best fits your usage frequency.
-
Are there any features specific to the city of Chicago mopd form in airSlate SignNow?
airSlate SignNow provides customizable templates for the city of Chicago mopd form, making it easy to fit your specific requirements. Additionally, users can add fields for signatures, dates, and other essential information directly on the form. This feature enhances the efficiency of completing the necessary documentation.
-
What are the benefits of using airSlate SignNow for the city of Chicago mopd form?
Using airSlate SignNow for the city of Chicago mopd form offers numerous benefits, including improved turnaround times and enhanced security for sensitive information. The platform’s user-friendly interface allows users to manage their documents easily. These factors help businesses stay compliant and organized.
-
Can I integrate airSlate SignNow with other software for the city of Chicago mopd form?
Absolutely! airSlate SignNow offers integrations with various software platforms to enhance the workflow surrounding the city of Chicago mopd form. Whether using popular CRM systems or document management tools, these integrations streamline the process of sending and receiving signed forms.
-
Is it easy to share the city of Chicago mopd form with clients using airSlate SignNow?
Yes, sharing the city of Chicago mopd form with clients is incredibly straightforward using airSlate SignNow. Users can send the form via email or share a link directly, allowing for quick collaboration. This ease of sharing accelerates the signing process and improves client relations.
Get more for mopd form project
Find out other illinois mopd compliance
- Electronic signature North Carolina Lawers Letter Of Intent Computer
- How Do I Electronic signature Alabama Legal Lease Agreement
- Help Me With Electronic signature Alabama Legal Lease Agreement
- Electronic signature North Carolina Lawers Agreement Free
- Electronic signature North Carolina Lawers Letter Of Intent Mobile
- How Can I Electronic signature Alabama Legal Lease Agreement
- Can I Electronic signature Alabama Legal Lease Agreement
- Electronic signature North Carolina Lawers Letter Of Intent Now
- Electronic signature North Carolina Lawers Agreement Secure
- Electronic signature North Carolina Lawers Letter Of Intent Later
- How To Electronic signature North Carolina Lawers Agreement
- How Do I Electronic signature North Carolina Lawers Agreement
- Electronic signature North Carolina Lawers Agreement Fast
- Help Me With Electronic signature North Carolina Lawers Agreement
- Electronic signature North Carolina Lawers Letter Of Intent Myself
- Can I Electronic signature North Carolina Lawers Agreement
- How Can I Electronic signature North Carolina Lawers Agreement
- Electronic signature North Carolina Lawers Letter Of Intent Free
- Electronic signature North Carolina Lawers Agreement Simple
- Electronic signature North Carolina Lawers Letter Of Intent Secure