
F2118 Form


What is the F2118?
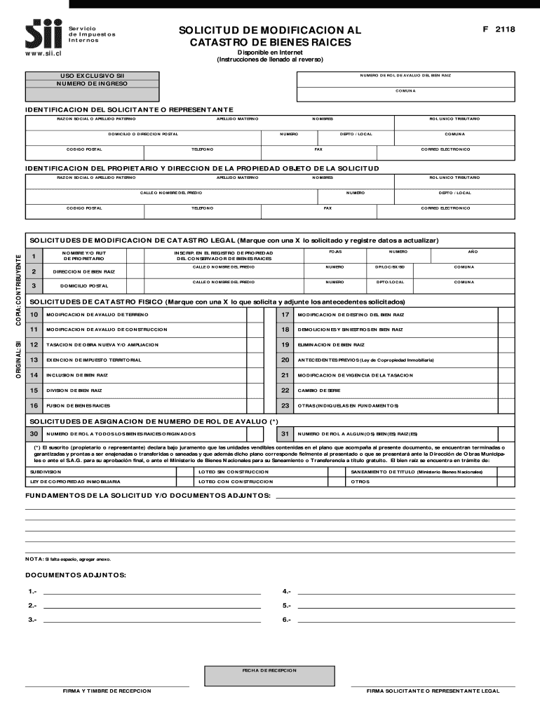
The F2118, also known as the formulario 2118, is a form used for modifying property tax assessments in the United States. This form is essential for property owners who wish to request changes to their property’s valuation or classification. By submitting the formulario 2118, individuals can appeal their current property tax assessments, ensuring that they are paying a fair amount based on the accurate valuation of their real estate assets.
How to use the F2118
Using the F2118 involves several steps to ensure that your request is processed smoothly. First, gather all relevant documentation related to your property, including previous assessments, tax bills, and any evidence supporting your claim for modification. Next, fill out the formulario 2118 completely, providing accurate information about your property and the reasons for your request. Once completed, submit the form to your local tax authority, following their specific submission guidelines.
Steps to complete the F2118
Completing the formulario 2118 requires careful attention to detail. Here are the steps to follow:
- Obtain the formulario 2118 from your local tax authority or download it from an official website.
- Fill in your personal information, including your name, address, and property details.
- Clearly state the reasons for your modification request, providing any supporting documentation.
- Review the form for accuracy and completeness before submission.
- Submit the completed formulario 2118 to the appropriate tax office, either online, by mail, or in person, as per local regulations.
Legal use of the F2118
The formulario 2118 is legally recognized as a formal request for property tax modification. To ensure its legal standing, it must be filled out correctly and submitted within the designated time frames set by local tax authorities. Compliance with these regulations is crucial, as failure to adhere to the guidelines may result in the rejection of your request or potential penalties.
Required Documents
When submitting the formulario 2118, it is important to include all necessary documentation to support your request. Common required documents may include:
- Previous property tax assessments.
- Current tax bills.
- Evidence of property condition or comparable property valuations.
- Any additional documentation that substantiates your claim for modification.
Form Submission Methods
The formulario 2118 can typically be submitted through various methods, depending on local regulations. Common submission methods include:
- Online submission through the local tax authority's website.
- Mailing the completed form to the designated tax office.
- In-person submission at local tax assessment offices.
Quick guide on how to complete formulario f2118
Complete formulario f2118 seamlessly on any device
Digital document management has become increasingly favored by businesses and individuals alike. It offers an ideal eco-friendly substitute for traditional printed and signed documents, as you can obtain the necessary form and securely keep it online. airSlate SignNow provides you with all the tools required to create, modify, and electronically sign your documents swiftly without delays. Handle formulario 2118 para imprimir on any device using airSlate SignNow Android or iOS applications and enhance any document-centric process today.
How to modify and eSign formulario 2118 servicio impuestos internos effortlessly
- Obtain descargar formulario 2118 sii and then click Get Form to begin.
- Utilize the tools we provide to fill out your document.
- Emphasize relevant sections of your documents or redact sensitive information with tools offered by airSlate SignNow specifically for those purposes.
- Create your signature using the Sign feature, which takes mere seconds and holds the same legal validity as a traditional handwritten signature.
- Verify all the details and then click on the Done button to store your changes.
- Select your preferred method to send your form, via email, SMS, or a link invitation, or download it to your computer.
Forget about lost or misplaced documents, tedious form searches, or errors that require printing new copies. airSlate SignNow meets your document management needs in just a few clicks from any device you choose. Modify and eSign formulario 2118 descargar and ensure excellent communication at every stage of your form preparation process with airSlate SignNow.
Create this form in 5 minutes or less
Create this form in 5 minutes!
How to create an eSignature for the formulario 2118 de solicitud de modificación al catastro de bienes raíces
How to create an electronic signature for a PDF online
How to create an electronic signature for a PDF in Google Chrome
How to create an e-signature for signing PDFs in Gmail
How to create an e-signature right from your smartphone
How to create an e-signature for a PDF on iOS
How to create an e-signature for a PDF on Android
People also ask formulario 2118 sii chile
-
What is the 'formulario 2118 para imprimir'?
The 'formulario 2118 para imprimir' is a specific document that can be utilized for various official purposes. With airSlate SignNow, you can easily prepare and print this form, ensuring it's ready for submission. Our platform simplifies this process, making it user-friendly and efficient.
-
How can I access the 'formulario 2118 para imprimir' on airSlate SignNow?
To access the 'formulario 2118 para imprimir' on airSlate SignNow, simply log into your account and use our document library. You can find the form by searching its name, and once located, you can fill it out, sign it, or print it directly from our platform.
-
Is there a cost associated with using the 'formulario 2118 para imprimir' feature?
Using airSlate SignNow to work with the 'formulario 2118 para imprimir' is part of our subscription plans. We offer various pricing tiers to accommodate different needs, including a cost-effective solution for individuals and businesses looking to efficiently manage their documents.
-
What are the main features of airSlate SignNow for handling the 'formulario 2118 para imprimir'?
AirSlate SignNow provides robust features for managing the 'formulario 2118 para imprimir,' including electronic signatures, customizable templates, and document sharing. Our platform ensures a seamless experience for filling, signing, and printing documents, enhancing overall workflow efficiency.
-
What are the benefits of using airSlate SignNow for the 'formulario 2118 para imprimir'?
Using airSlate SignNow for the 'formulario 2118 para imprimir' offers numerous benefits, including time savings, reduced paperwork, and enhanced security. The ability to eSign and save documents digitally means you can focus on your priorities without the hassle of physical paperwork.
-
Does airSlate SignNow integrate with other applications for the 'formulario 2118 para imprimir'?
Yes, airSlate SignNow integrates seamlessly with various applications, helping you manage the 'formulario 2118 para imprimir' efficiently. This connectivity allows for a streamlined workflow, as you can use your favorite apps while handling your documents in one central platform.
-
Is the 'formulario 2118 para imprimir' compliant with legal standards?
Absolutely. The 'formulario 2118 para imprimir' processed through airSlate SignNow meets all necessary legal requirements for digital signatures. Our platform ensures compliance with industry standards, giving you confidence that your documents are legally valid.
Get more for solicitud de modificación al catastro de bienes raíces
- Avoiding a registration hold is easy as 1 2 3 emil gatech form
- 11830 sw kerr parkway suite 330 lake oswego or 97035 phone 503 245 5288 fax 503 245 761 email infonwnanny form
- Surrogate application form
- Harbor helicopters northwest inc form
- Certificate program application photo center nw pcnw form
- List for the web oregon form
- Complete the editable 13 pdf application northwest nwmissouri form
- Standard import facility form
Find out other sii formulario 2118
- Help Me With eSign Nebraska Legal Word
- How Do I eSign Nebraska Legal Word
- How Can I eSign Nebraska Legal Word
- How To eSign Nebraska Legal Word
- Can I eSign Nebraska Legal Word
- How Do I eSign Nebraska Legal PDF
- How Do I eSign Nebraska Legal Word
- How To eSign Nebraska Legal Word
- Help Me With eSign Nebraska Legal PDF
- How Do I eSign Nebraska Legal Word
- Help Me With eSign Nebraska Legal Word
- Help Me With eSign Nebraska Legal Word
- How Can I eSign Nebraska Legal Word
- How Can I eSign Nebraska Legal Word
- How Can I eSign Nebraska Legal PDF
- Can I eSign Nebraska Legal Word
- Can I eSign Nebraska Legal Word
- Can I eSign Nebraska Legal PDF
- How Do I eSign Nebraska Legal Word
- How To eSign Nebraska Legal Word