
Waiver of Lien to Date Form


What is the Waiver of Lien to Date
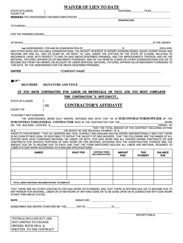
The Waiver of Lien to Date is a legal document used in the construction industry to confirm that a contractor, subcontractor, or supplier has received payment for work completed or materials supplied. This waiver serves as a formal acknowledgment that the party waives any future claims against the property for the specified work or materials up to the date indicated in the document. By signing this waiver, the party relinquishes their right to file a lien against the property, ensuring that the property owner is protected from any claims related to unpaid work or materials.
How to Use the Waiver of Lien to Date
Using the Waiver of Lien to Date involves several key steps. First, ensure that the document is filled out accurately, including the names of the parties involved, the property address, and the specific date of the waiver. Next, the party waiving their lien rights must sign the document, often in the presence of a notary public to enhance its legal validity. Once signed, the waiver should be delivered to the property owner or general contractor, who may need to keep it for their records. It is advisable to retain a copy for personal records as well.
Key Elements of the Waiver of Lien to Date
Several essential elements must be included in the Waiver of Lien to Date for it to be legally binding. These elements typically include:
- Identification of Parties: Clearly state the names and addresses of the contractor, subcontractor, or supplier waiving the lien rights and the property owner.
- Description of Work: Provide a detailed description of the work performed or materials supplied.
- Date of Waiver: Specify the date up to which the waiver applies, indicating the last date for which payment has been received.
- Signature: The document must be signed by the party waiving their lien rights, often requiring notarization.
Steps to Complete the Waiver of Lien to Date
Completing the Waiver of Lien to Date involves a systematic approach:
- Gather necessary information, including names, addresses, and details of the work performed.
- Fill out the waiver form with accurate details, ensuring clarity and precision.
- Sign the document in front of a notary public to validate the waiver.
- Distribute copies to relevant parties, such as the property owner and retain a copy for your records.
Legal Use of the Waiver of Lien to Date
The Waiver of Lien to Date is legally recognized in many jurisdictions, including Illinois. It is crucial for parties to understand that by signing this document, they are relinquishing their right to file a lien for any unpaid work or materials up to the specified date. This legal document helps maintain transparency in financial transactions within the construction industry and protects property owners from potential claims. It is advisable to consult with a legal professional to ensure compliance with state-specific laws and regulations.
Filing Deadlines / Important Dates
When dealing with the Waiver of Lien to Date, it is essential to be aware of any filing deadlines or important dates that may apply. Typically, waivers should be submitted promptly after payment has been received to avoid any disputes. In Illinois, there may be specific timeframes within which a lien must be filed or waived, depending on the type of project and the nature of the work performed. Keeping track of these deadlines can help prevent complications and ensure that all parties are protected.
Quick guide on how to complete mechanics lien release form illinois
Complete mechanics lien release form illinois effortlessly on any device
Digital document management has gained traction with businesses and individuals alike. It offers an excellent environmentally-friendly substitute for conventional printed and signed documents, enabling you to locate the right form and securely save it online. airSlate SignNow provides you with all the tools required to create, modify, and eSign your documents swiftly without any holdups. Manage illinois waiver of lien to date on any device using airSlate SignNow's Android or iOS applications and simplify any document-related task today.
How to alter and eSign lien waiver form illinois with ease
- Locate lien waiver illinois pdf and click on Get Form to begin.
- Make use of the tools we provide to fill out your form.
- Emphasize relevant sections of the documents or redact sensitive information with tools designed specifically for that purpose by airSlate SignNow.
- Generate your eSignature using the Sign tool, which takes moments and holds the same legal validity as a conventional ink signature.
- Review the details and click on the Done button to save your updates.
- Choose your preferred method of sending your form, whether it be via email, SMS, or an invite link, or download it to your computer.
Say goodbye to lost or misplaced files, tedious searches for forms, or errors that necessitate printing new document copies. airSlate SignNow meets your document management needs in just a few clicks from any device you prefer. Edit and eSign material waiver illinois and ensure excellent communication at all stages of the form preparation process with airSlate SignNow.
Create this form in 5 minutes or less
Related searches to partial waiver of lien form
Create this form in 5 minutes!
How to create an eSignature for the lien waiver form
How to create an eSignature for a PDF in the online mode
How to create an eSignature for a PDF in Chrome
The best way to create an eSignature for putting it on PDFs in Gmail
The best way to create an electronic signature from your smart phone
How to generate an eSignature for a PDF on iOS devices
The best way to create an electronic signature for a PDF file on Android OS
People also ask waiver of lien to date illinois
-
What is an Illinois waiver of lien to date?
An Illinois waiver of lien to date is a legal document that confirms a contractor or subcontractor has received payment and waives their right to file a lien against a property for work performed up to a specified date. This document helps protect property owners from future claims, ensuring they have a clear title and can avoid potential disputes.
-
How can airSlate SignNow help with Illinois waiver of lien to date?
airSlate SignNow streamlines the process of creating and signing an Illinois waiver of lien to date. With our user-friendly platform, businesses can quickly generate the necessary documents, ensure they are legally compliant, and eSign them from anywhere, enhancing workflow efficiency.
-
What features does airSlate SignNow offer for creating waivers?
airSlate SignNow includes features designed for creating Illinois waiver of lien to date documents, such as customizable templates, electronic signatures, and automated reminders for signers. These tools simplify the documentation process, ensuring you have all necessary paperwork completed accurately and promptly.
-
What are the pricing options for airSlate SignNow?
airSlate SignNow offers various pricing plans tailored to different business needs, accommodating everything from individual users to large enterprises. Pricing is competitive and designed to ensure that creating documents like the Illinois waiver of lien to date remains cost-effective for all users.
-
Is airSlate SignNow secure for handling legal documents?
Yes, airSlate SignNow prioritizes security, employing advanced encryption protocols to ensure that your Illinois waiver of lien to date and other documents are safe. Our platform complies with industry standards for data protection, making it a reliable choice for managing sensitive legal agreements.
-
Can I integrate airSlate SignNow with other software?
Absolutely! airSlate SignNow seamlessly integrates with various business applications, making it easy to incorporate your document signing processes into your existing workflows. This flexibility allows you to automate and enhance your operations while working with Illinois waiver of lien to date and other documents.
-
What are the benefits of using airSlate SignNow for legal documents?
Using airSlate SignNow for legal documents, including the Illinois waiver of lien to date, offers signNow benefits such as increased efficiency, reduced costs, and enhanced accuracy. Our electronic signing and document management tools help you save time and avoid the complications often associated with traditional paper processes.
Get more for waiver of lien form
- Form 03 230c university of north carolina wilmington uncw
- Clear form university of north carolina wilmington print form form a report of activities and relationships with enterprises
- Clear form university of north carolina wilmington print form form b report of potential conflict of interest related to
- Global certificate tracking form university of north carolina uncw
- Sponsored travel disclosure form university of north carolina uncw
- Print form university of north carolina wilmington uncw
- Receipting privileges combined 2 26 10 xlsx university of north form
- Download brochure and application form university of north
Find out other lien waiver
- eSignature California Legal Cease And Desist Letter Now
- eSignature Wisconsin High Tech Living Will Later
- eSignature California Legal Cease And Desist Letter Later
- eSignature California Legal Cease And Desist Letter Myself
- eSignature Colorado Legal Job Description Template Online
- eSignature Wisconsin High Tech Living Will Myself
- eSignature California Legal Cease And Desist Letter Free
- eSignature California Legal Cease And Desist Letter Secure
- eSignature California Legal Cease And Desist Letter Fast
- eSignature Wisconsin High Tech Living Will Free
- eSignature California Legal Cease And Desist Letter Simple
- eSignature Colorado Legal Job Description Template Computer
- eSignature California Legal Cease And Desist Letter Easy
- eSignature Wisconsin High Tech Living Will Secure
- eSignature California Legal Cease And Desist Letter Safe
- eSignature Colorado Legal Job Description Template Mobile
- eSignature Wisconsin High Tech Living Will Fast
- eSignature Wisconsin High Tech Living Will Simple
- eSignature Colorado Legal Cease And Desist Letter Online
- eSignature Colorado Legal Job Description Template Now