
2011-2025 Form


What is the Form 4530 100 Facility Identification Air Pollution Control Permit Application?
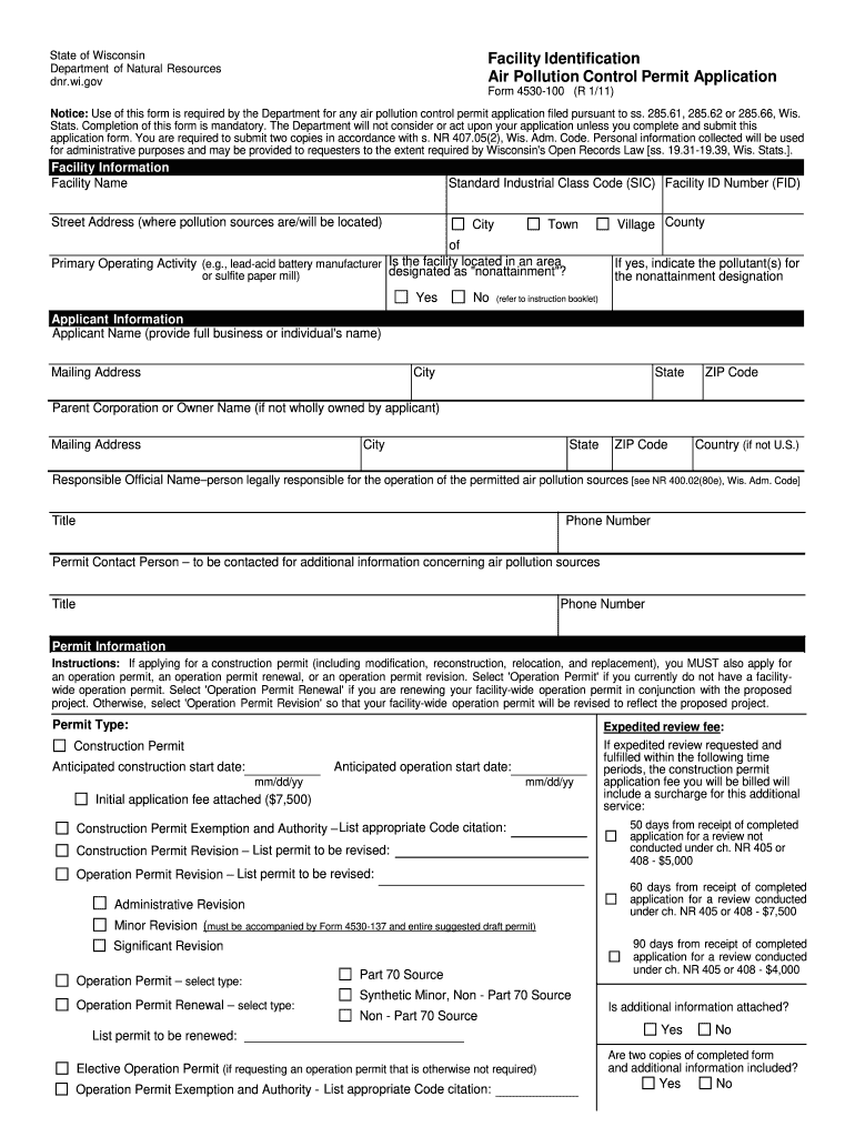
The Form 4530 100 Facility Identification Air Pollution Control Permit Application is a crucial document used by facilities in Wisconsin to apply for an air pollution control permit. This form is essential for ensuring compliance with environmental regulations and is part of the state's efforts to monitor and manage air quality. By completing this application, facilities provide necessary information about their operations, emissions, and compliance with applicable laws. This form is typically required for new facilities or those undergoing significant modifications.
Steps to Complete the Form 4530 100 Facility Identification Air Pollution Control Permit Application
Completing the Form 4530 100 involves several important steps to ensure accuracy and compliance. First, gather all relevant information about your facility, including its location, operational details, and any existing permits. Next, carefully fill out each section of the form, providing detailed descriptions of the processes that may emit air pollutants. It is crucial to review the instructions accompanying the form to ensure that all required fields are completed. After filling out the form, double-check for accuracy before submitting it to the appropriate regulatory authority.
Legal Use of the Form 4530 100 Facility Identification Air Pollution Control Permit Application
The legal use of the Form 4530 100 is governed by environmental regulations at both the state and federal levels. This form serves as a formal application for an air pollution control permit, which is legally required for facilities that emit pollutants into the air. By submitting this form, facilities affirm their commitment to comply with air quality standards and regulations. Failure to submit this form or to provide accurate information can result in penalties, including fines or revocation of operating permits.
Key Elements of the Form 4530 100 Facility Identification Air Pollution Control Permit Application
Key elements of the Form 4530 100 include sections that require detailed information about the facility's operations, types of emissions, and control technologies in place. The form typically asks for the facility's name, address, and contact information, as well as specifics about the processes that generate air pollutants. Additionally, applicants must disclose any previous violations or enforcement actions related to air quality, ensuring transparency in the application process.
How to Obtain the Form 4530 100 Facility Identification Air Pollution Control Permit Application
The Form 4530 100 can be obtained from the Wisconsin Department of Natural Resources (DNR) website or by contacting the DNR directly. It is available in both digital and paper formats, allowing applicants to choose their preferred method of submission. For those seeking to fill out the form electronically, utilizing a reliable eSignature platform can streamline the process, ensuring that the completed application is submitted securely and efficiently.
State-Specific Rules for the Form 4530 100 Facility Identification Air Pollution Control Permit Application
State-specific rules regarding the Form 4530 100 are outlined by the Wisconsin Department of Natural Resources. These rules dictate the requirements for completing the form, including deadlines for submission and specific documentation needed to support the application. It is essential for applicants to familiarize themselves with these regulations to ensure compliance and avoid potential delays in the permitting process.
Quick guide on how to complete form 4530 100 facility identification air pollution control permit application form 4530 100 facility identification air
Complete [SKS] effortlessly on any device
Managing documents online has become increasingly favored by companies and individuals alike. It offers an ideal environmentally friendly alternative to conventional printed and signed documents, allowing you to access the necessary form and securely save it on the internet. airSlate SignNow equips you with all the resources required to create, modify, and electronically sign your documents swiftly without delays. Manage [SKS] across any platform with airSlate SignNow's Android or iOS applications and simplify any document-related tasks today.
How to modify and eSign [SKS] without effort
- Find [SKS] and click on Get Form to initiate.
- Utilize the features we provide to complete your form.
- Emphasize important parts of the documents or redact private information using tools specifically designed by airSlate SignNow for that purpose.
- Create your signature using the Sign option, which takes mere seconds and holds the same legal validity as a traditional handwritten signature.
- Review the details and click on the Done button to save your modifications.
- Choose your preferred method to submit your form, whether by email, text message (SMS), invite link, or download it to your computer.
Say goodbye to lost or misplaced documents, tedious form searches, or mistakes that require reprinting new copies. airSlate SignNow addresses your document management requirements in just a few clicks from any device of your choosing. Modify and eSign [SKS] and ensure excellent communication at every step of your form preparation process with airSlate SignNow.
Create this form in 5 minutes or less
Find and fill out the correct form 4530 100 facility identification air pollution control permit application form 4530 100 facility identification air
Related searches to Form 4530 100 Facility Identification Air Pollution Control Permit Application Form 4530 100 Facility Identification Air Polluti
Create this form in 5 minutes!
How to create an eSignature for the form 4530 100 facility identification air pollution control permit application form 4530 100 facility identification air
The best way to generate an eSignature for your PDF document in the online mode
The best way to generate an eSignature for your PDF document in Chrome
How to make an electronic signature for putting it on PDFs in Gmail
The way to create an electronic signature right from your mobile device
How to create an electronic signature for a PDF document on iOS devices
The way to create an electronic signature for a PDF on Android devices
People also ask
-
What is the Form 4530 100 Facility Identification Air Pollution Control Permit Application?
The Form 4530 100 Facility Identification Air Pollution Control Permit Application is a crucial document for facilities needing to comply with air pollution control regulations in Wisconsin. This form helps businesses identify themselves and their operations to the Department of Natural Resources (DNR) in Wisconsin, ensuring regulatory compliance.
-
How can airSlate SignNow assist with the Form 4530 100 application process?
airSlate SignNow streamlines the process of completing and submitting the Form 4530 100 Facility Identification Air Pollution Control Permit Application. Our platform allows users to fill out the form electronically, eSign it, and send it directly to the DNR, providing an organized and efficient way to meet compliance deadlines.
-
Is there a cost associated with using airSlate SignNow for the Form 4530 100 application?
Yes, airSlate SignNow offers various pricing plans tailored to suit different business needs. Each plan provides access to features that help with the completion of the Form 4530 100 Facility Identification Air Pollution Control Permit Application efficiently and effectively, making it a cost-effective solution for businesses.
-
What features does airSlate SignNow offer for managing the Form 4530 100 application?
airSlate SignNow includes features such as easy document creation, templates for the Form 4530 100 Facility Identification Air Pollution Control Permit Application, and secure eSigning capabilities. These tools improve workflow efficiency and enhance the overall user experience when managing essential compliance documents.
-
Can I integrate airSlate SignNow with other applications for the Form 4530 100 application?
Absolutely! airSlate SignNow offers integrations with various applications and platforms to enhance your workflow. This means you can easily import and export the Form 4530 100 Facility Identification Air Pollution Control Permit Application data to and from other systems, simplifying the entire application process.
-
What benefits does using airSlate SignNow provide for the Form 4530 100 application?
Using airSlate SignNow for the Form 4530 100 Facility Identification Air Pollution Control Permit Application simplifies the documentation process and boosts productivity. By providing an intuitive interface for eSigning and submitting forms, businesses save time while ensuring compliance with air quality regulations.
-
How secure is the information I submit through airSlate SignNow for the Form 4530 100 application?
airSlate SignNow prioritizes the security of your data. The platform employs robust encryption and security protocols to safeguard all information submitted through the Form 4530 100 Facility Identification Air Pollution Control Permit Application process, ensuring that your sensitive data remains confidential.
Get more for Form 4530 100 Facility Identification Air Pollution Control Permit Application Form 4530 100 Facility Identification Air Polluti
- Robinson v thornton california court of appeal decisions form
- Equal employment opportunity statement for personnel or employee manual or form
- Multistate balloon ridersingle familyfannie mae uniform instrument form 3180 101 page 1 of 2
- Subdivision application form ravalli county
- Jennifer kay shipman vs jason william shipman dokumentips form
- Chapter 0244 oregon state legislature form
- Jafra worldwide holdings lux sarl et al s 4 on 63003 sec info form
- 08 mutual nondisclosure agreement form
Find out other Form 4530 100 Facility Identification Air Pollution Control Permit Application Form 4530 100 Facility Identification Air Polluti
- How To eSign Maryland Charity Memorandum Of Understanding
- eSign Vermont Business Operations Lease Agreement Template Simple
- eSign Maryland Charity Operating Agreement Online
- How Do I eSign Maryland Charity Memorandum Of Understanding
- eSign Vermont Business Operations Lease Agreement Template Easy
- Help Me With eSign Maryland Charity Memorandum Of Understanding
- eSign Maryland Charity Operating Agreement Computer
- How Can I eSign Maryland Charity Memorandum Of Understanding
- Can I eSign Maryland Charity Memorandum Of Understanding
- eSign Vermont Business Operations Lease Agreement Template Safe
- eSign Maryland Charity Operating Agreement Mobile
- How To eSign Maryland Charity Operating Agreement
- eSign Maryland Charity Operating Agreement Now
- How Do I eSign Maryland Charity Operating Agreement
- Help Me With eSign Maryland Charity Operating Agreement
- eSign Maryland Charity Operating Agreement Later
- How Can I eSign Maryland Charity Operating Agreement
- Can I eSign Maryland Charity Operating Agreement
- eSign Maryland Charity Operating Agreement Myself
- How To eSign Michigan Charity Resignation Letter