
13645 2009-2025 Form


What is the WDO Form?
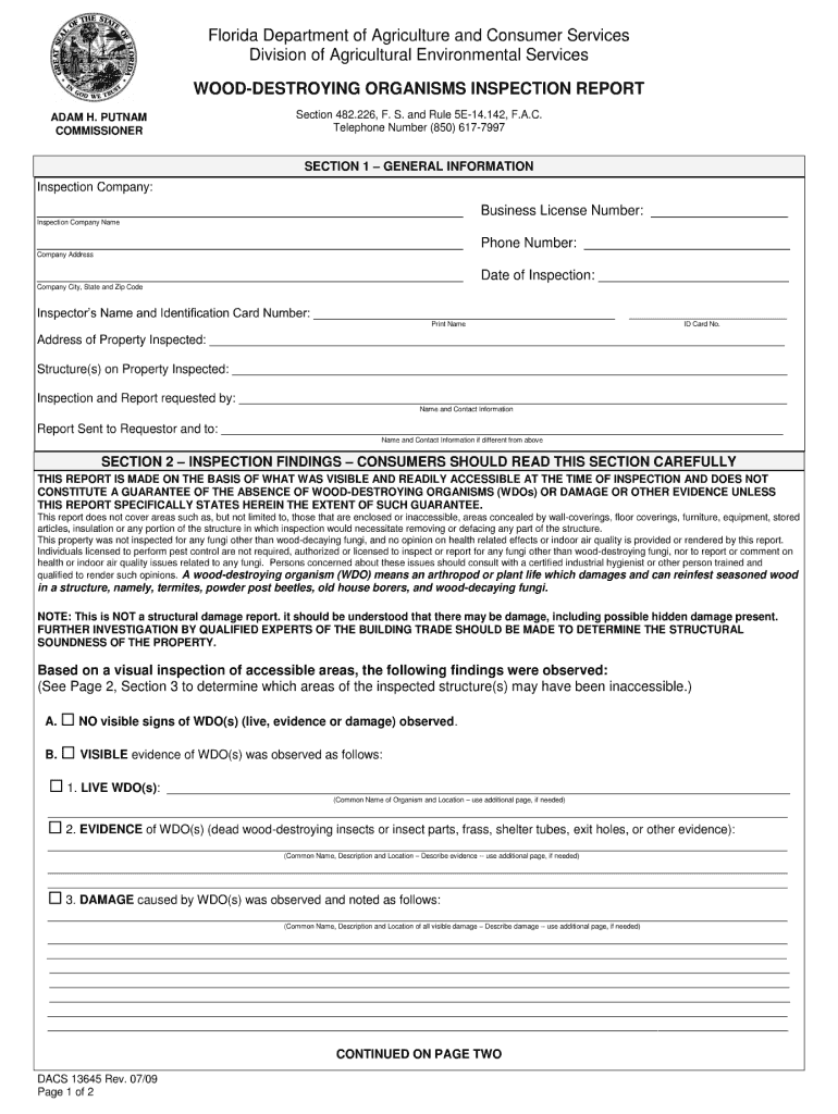
The WDO Form, officially known as Form 13645, is a document used in Florida to report inspections related to wood-destroying organisms (WDO). This form is essential for ensuring that properties are free from infestations that can compromise structural integrity. It is typically utilized by licensed pest control operators to document their findings during inspections. The information included in the form helps homeowners, real estate agents, and prospective buyers understand the condition of a property regarding pest issues.
Steps to Complete the WDO Form
Completing Form 13645 involves several key steps to ensure accuracy and compliance with state regulations. Begin by gathering all necessary information about the property, including the address and any previous pest control treatments. Next, the licensed inspector should conduct a thorough examination of the property, noting any signs of wood-destroying organisms, such as termites or fungi. Once the inspection is complete, fill out the form, detailing the findings, recommendations for treatment, and any necessary follow-up actions. Finally, ensure that both the inspector and the property owner sign the form to validate the inspection results.
Key Elements of the WDO Form
Form 13645 contains several critical components that must be accurately filled out. Key elements include:
- Property Information: This includes the address and type of structure being inspected.
- Inspector Details: The name and license number of the pest control operator conducting the inspection.
- Inspection Findings: A detailed account of any wood-destroying organisms found, including their location and severity.
- Recommendations: Suggested treatments or further actions needed to address any infestations.
- Signatures: Signatures of both the inspector and the property owner to confirm the inspection results.
Legal Use of the WDO Form
The legal use of Form 13645 is governed by state regulations in Florida. It is crucial for the form to be filled out accurately and completely to maintain its legal validity. This form serves as an official record of the inspection and can be used in real estate transactions to inform potential buyers about the condition of the property. Failure to use the form correctly may result in legal repercussions for the pest control operator, including penalties or loss of licensure.
How to Obtain the WDO Form
Form 13645 can be obtained through various channels. Licensed pest control companies typically have access to the form and can provide it during an inspection. Additionally, the Florida Department of Agriculture and Consumer Services (FDACS) offers the form online for download. It is important to ensure that the most current version of the form is used, as updates may occur to comply with changing regulations.
Form Submission Methods
Once completed, Form 13645 can be submitted in several ways. The preferred method is electronic submission through a licensed pest control operator's management system, which ensures quick processing. Alternatively, the form can be mailed directly to the appropriate regulatory agency or submitted in person at designated offices. It is essential to keep a copy of the submitted form for personal records and future reference.
Quick guide on how to complete wdo
Control wdo anytime, anywhere
Your daily business operations may require additional focus when managing state-specific business documents. Reclaim your working hours and lower the expenses related to paper processes with airSlate SignNow. airSlate SignNow offers a wide range of pre-formulated business documents, including form 13645, which you can employ and share with your business associates. Handle your fdacs forms effortlessly using robust editing and eSignature features, delivering them directly to your addressees.
Steps to obtain wood destroying report inspection in just a few clicks:
- Select a form that corresponds to your state.
- Click Learn More to view the document and confirm it is suitable.
- Choose Get Form to start using it.
- wood florida will open immediately in the editor. No further actions are necessary.
- Utilize airSlate SignNow’s sophisticated editing tools to complete or modify the form.
- Click the Sign option to create your personalized signature and eSign your document.
- When finished, just click Done, save changes, and access your document.
- Distribute the form via email or text, or use a link-to-fill option with partners or allow them to download the document.
airSlate SignNow signNowly streamlines your process for handling [SKS] and allows you to locate vital documents in one centralized location. A comprehensive collection of forms is organized and created to address essential business operations necessary for your organization. The advanced editor reduces the likelihood of mistakes, allowing you to easily correct errors and review your documents on any device prior to dissemination. Start your free trial today to explore the full benefits of airSlate SignNow for your daily business workflows.
Create this form in 5 minutes or less
Find and fill out the correct fdacs 13645 fillable
FAQs va wdo form
-
How do I fill out a CLAT 2019 application form?
Hi thereFirst of all, let me tell you some important points:CLAT 2019 has gone OFFLINE this yearBut the application forms for CLAT 2019 have to be filled ONLINEThe payment of the application fees also should be made onlineNow, kindly note the important dates:Note the details regarding the application fees:Here, if you want the Previous Year Question papers, Rs.500 would be added to the application fees.Apart from this, there would be bank transaction charges added to the application fees.The application fees is non-refundable.Note one important point here that before you fill the application form, check for your eligibility.To know the complete details of filling the application form along with other information like the eligibility - in terms of age, educational qualification, list of NLUs participating and the seats offered under each category, CLAT Reservation policies, CLAT exam pattern, marking scheme, syllabus, important documents required to be kept ready before filling the form, kindly go to the link below:How to fill CLAT 2019 Application form? Registration OPEN | All you need to knowTo know how to prepare for one of the very important section of CLAT exam, GK and Current Affairs, kindly go to the link below:How to prepare GK & Current Affairs for CLAT 2019To practice, daily MCQs on Current Affairs, kindly go to the link below:#CLAT2019 | #AILET2019 | #DULLB2019 | GK and Current Affairs Series: 5 in 10 Series: Day 12For any other queries, kindly write to us at mailateasyway@gmail.comThanks & Regards!
-
How do I fill out the NEET 2019 application form?
Expecting application form of NEET2019 will be same as that of NEET2018, follow the instructions-For Feb 2019 Exam:EventsDates (Announced)Release of application form-1st October 2018Application submission last date-31st October 2018Last date to pay the fee-Last week of October 2018Correction Window Open-1st week of November 2018Admit card available-1st week of January 2019Exam date-3rd February to 17th February 2019Answer key & OMR release-Within a week after examAnnouncement of result-1st week of March 2019Counselling begins-2nd week of June 2019For May 2019 Exam:EventsDates (Announced)Application form Release-2nd week of March 2019Application submission last date-2nd week of April 2019Last date to pay the fee-2nd week of April 2019Correction Window Open-3rd week of April 2019Admit card available-1st week of May 2019Exam date-12th May to 26th May 2019Answer key & OMR release-Within a week after examAnnouncement of result-1st week of June 2019Counselling begins-2nd week of June 2019NEET 2019 Application FormCandidates should fill the application form as per the instructions given in the information bulletin. Below we are providing NEET 2019 application form details:The application form will be issued through online mode only.No application will be entertained through offline mode.NEET UG registration 2019 will be commenced from the 1st October 2018 (Feb Exam) & second week of March 2018 (May Exam).Candidates should upload the scanned images of recent passport size photograph and signature.After filling the application form completely, a confirmation page will be generated. Download it.There will be no need to send the printed confirmation page to the board.Application Fee:General and OBC candidates will have to pay Rs. 1400/- as an application fee.The application fee for SC/ST and PH candidates will be Rs. 750/-.Fee payment can be done through credit/debit card, net banking, UPI and e-wallet.Service tax will also be applicable.CategoryApplication FeeGeneral/OBC-1400/-SC/ST/PH-750/-Step 1: Fill the Application FormGo the official portal of the conducting authority (Link will be given above).Click on “Apply Online” link.A candidate has to read all the instruction and then click on “Proceed to Apply Online NEET (UG) 2019”.Step 1.1: New RegistrationFill the registration form carefully.Candidates have to fill their name, Mother’s Name, Father’s Name, Category, Date of Birth, Gender, Nationality, State of Eligibility (for 15% All India Quota), Mobile Number, Email ID, Aadhaar card number, etc.After filling all the details, two links will be given “Preview &Next” and “Reset”.If candidate satisfied with the filled information, then they have to click on “Next”.After clicking on Next Button, the information submitted by the candidate will be displayed on the screen. If information correct, click on “Next” button, otherwise go for “Back” button.Candidates may note down the registration number for further procedure.Now choose the strong password and re enter the password.Choose security question and feed answer.Enter the OTP would be sent to your mobile number.Submit the button.Step 1.2: Login & Application Form FillingLogin with your Registration Number and password.Fill personal details.Enter place of birth.Choose the medium of question paper.Choose examination centres.Fill permanent address.Fill correspondence address.Fill Details (qualification, occupation, annual income) of parents and guardians.Choose the option for dress code.Enter security pin & click on save & draft.Now click on preview and submit.Now, review your entries.Then. click on Final Submit.Step 2: Upload Photo and SignatureStep 2 for images upload will be appeared on screen.Now, click on link for Upload photo & signature.Upload the scanned images.Candidate should have scanned images of his latest Photograph (size of 10 Kb to 100 Kb.Signature(size of 3 Kb to 20 Kb) in JPEG format only.Step 3: Fee PaymentAfter uploading the images, candidate will automatically go to the link for fee payment.A candidate has to follow the instruction & submit the application fee.Choose the Bank for making payment.Go for Payment.Candidate can pay the fee through Debit/Credit Card/Net Banking/e-wallet (CSC).Step 4: Take the Printout of Confirmation PageAfter the fee payment, a candidate may take the printout of the confirmation page.Candidates may keep at least three copies of the confirmation page.Note:Must retain copy of the system generated Self Declaration in respect of candidates from J&K who have opted for seats under 15% All India Quota.IF any queries, feel free to comment..best of luck
-
How can I fill out the BITSAT Application Form 2019?
BITSAT 2019 Application Forms are available online. Students who are eligible for the admission test can apply online before 20 March 2018, 5 pm.Click here to apply for BITSAT 2019Step 1: Follow the link given aboveStep 2: Fill online application formPersonal Details12th Examination DetailsTest Centre PreferencesStep 3: Upload scanned photograph (4 kb to 50 kb) and signature ( 1 kb to 30 kb).Step 4: Pay application fee either through online payment mode or through e-challan (ICICI Bank)BITSAT-2019 Application FeeMale Candidates - Rs. 3150/-Female Candidates - Rs. 2650/-Thanks!
-
How can I fill out the COMEDK 2019 application form?
COMEDK 2019 application is fully online based and there is no need to send the application by post or by any other method. Check the below-mentioned guidelines to register for the COMEDK 2019 exam:Step 1 Visit the official website of the COMEDK UGET- comedk.orgStep 2 Click on “Engineering Application”.Step 3 After that click on “Login or Register” button.Step 4 You will be asked to enter the Application SEQ Number/User ID and Password. But since you have not registered. You need to click on the “Click here for Registration”.Step 5 Fill in the required details like “Full Name”, “DOB”, “Unique Photo ID Proof”, “Photo ID Proof Number”, “Email ID” and “Mobile Number”.Step 6 Then click on the “Generate OTP”Step 7 After that you need to enter the captcha code and then an OTP will be sent to the mobile number that you have provided.Step 8 A new window having your previously entered registration details will open where you need to enter the OTP.Step 9 Re-check all the details, enter the captcha code and click on the “Register” button.Step 10 After that a page will appear where you will be having the User ID and all the details that you entered. Also, you will be notified that you have successfully registered yourself and a User ID and Password will be sent to your mobile number and email ID.COMEDK 2019 Notification | Steps To Apply For COMEDK UGET ExamCheck the below-mentioned guidelines to fill COMEDK Application Form after COMEDK Login.Step 1 Using your User ID and Password. Log in using the User ID and passwordStep 2 You will be shown that your application form is incomplete. So you need to go to the topmost right corner and click on the “Go to application” tab.Step 3 Go to the COMEDK official website and login with these credentials.Step 4 After that click on “Go to application form”.Step 5 Select your preferred stream and course.Step 6 Click on “Save and Continue”.Step 7 Carefully enter your Personal, Category and Academic details.Step 8 Upload your Photograph and Signature, Parents Signature, your ID Proof, and Declaration.Step 9 Enter your “Payment Mode” and “Amount”.Step 10 Enter “Security code”.Step 11 Tick the “I Agree” checkbox.Step 12 Click on the “Submit” button.
-
How can I fill out the application form for the JMI (Jamia Millia Islamia) 2019?
Form for jamia school have been releaseYou can fill it from jamia siteJamia Millia Islamia And for collegeMost probably the form will out end of this month or next monthBut visit the jamia site regularly.Jamia Millia Islamiacheck whether the form is out or not for the course you want to apply.when notification is out then you have to create the account for entrance and for 2 entrance same account will be used you have to check in the account that the course you want to apply is there in listed or not ….if not then you have to create the different account for that course .If you have any doubts you can freely ask me .
-
How do I fill out the Rai Publication Scholarship Form 2019?
Rai Publication Scholarship Exam 2019- Rai Publication Scholarship Form 5th, 8th, 10th & 12th.Rai Publication Scholarship Examination 2019 is going to held in 2019 for various standards 5th, 8th, 10th & 12th in which interested candidates can apply for the following scholarship examination going to held in 2019. This scholarship exam is organized by the Rai Publication which will held only in Rajasthan in the year 2019. Students can apply for the following scholarship examination 2019 before the last date of application that is 15 January 2019. The exam will be conducted district wise in Rajasthan State by the Rai Publication before June 2019.Students of class 5th, 8th, 10th and 12th can fill online registration for Rai Publication scholarship exam 2019. Exam is held in February in all districts of Rajasthan. Open registration form using link given below.In the scholarship examination, the scholarship will be given to the 20 topper students from each standard of 5th, 8th, 10th & 12th on the basis of lottery which will be equally distributed among all 20 students. The declaration of the prize will be announced by July 2019.राय पब्लिकेशन छात्रव्रत्ति परीक्षा का आयोजन सत्र 2019 में किया जाएगा कक्षा 5वी , 8वी , 10वी एवं 12वी के लिए, इच्छुक अभ्यार्थी आवेदन कर सकते है इस छात्रव्रत्ति परीक्षा 2019 के लिए | यह छात्रव्रत्ति परीक्षा राजस्थान में राइ पब्लिकेशन के दवारा की जयगी सत्र 2019 में | इच्छुक अभ्यार्थी एक परीक्षा कर सकते है आखरी तारीख 15 जनवरी 2019 से पहले | यह परिखा राजस्थान छेत्र में जिला स्तर पर कराई जाएगी राइ पब्लिकेशन के दवारा जून 2019 से पहले |इस छात्रव्रत्ति परीक्षा में, छात्रव्रत्ति 20 विजेता छात्र छात्राओं दो दी जयेगी जिसमे हर कक्षा के 20 छात्र होंगे जिन्हे बराबरी में बाटा जयेगा। पुरस्कार की घोसणा जुलाई 2019 में की जयेगी |Rai Publication Scholarship Exam 2019 information :This scholarship examination is conducted for 5th, 8th, 10th & 12th standard for which interested candidates can apply which a great opportunity for the students. The exam syllabus will be based according to the standards of their exam which might help them in scoring in the Rai Publication Scholarship Examination 2019. The question in the exam will be multiple choice questions (MCQ’s) and there will be 100 multiple choice questions. To apply for the above scholarship students must have to fill the application form but the 15 January 2019.यह छात्रव्रत्ति परीक्षा कक्षा कक्षा 5वी , 8वी , 10वी एवं 12वी के लिए आयोजित है जिसमे इच्छुक अभ्यार्थी पंजीकरण करा सकते है जोकि छात्र छात्राओं के लिए एक बड़ा अवसर होगा | राय पब्लिकेशन छात्रव्रत्ति परीक्षा 2019 परीक्षा का पाठ्यक्रम कक्षा अनुसार ही होगा जोकि उन्हें प्राथम आने में सहयोग प्रदान करेगा | परीक्षा के प्रश्न-पत्र में सारे प्रश्न बहुविकल्पीय प्रश्न होंगे एवं प्रश्न-पत्र में कुल 100 प्रश्न दिए जायेंगे | इस छात्रव्रत्ति परीक्षा को देने क लिए अभयार्थियो को पहले पंजीकरण करना अनिवार्य होगा जोकि ऑनलाइन होगा जिसकी आखरी तारीख 15 जनवरी 2019 है |Distribution of Rai Publication Deskwork Scholarship Exam 2019:5th Class Topper Prize Money:- 4 Lakh Rupees8th Class Topper Prize Money:- 11 Lakh Rupees10th Class Topper Prize Money:- 51 Lakh Rupees12thClass Topper Prize Money:- 39 Lakh RupeesHow to fill Rai Publication Scholarship Form 2019 :Follow the above steps to register for the for Rai Publication Scholarship Examination 2019:Candidates can follow these below given instructions to apply for the scholarship exam of Rai Publication.The Rai Publication Scholarship application form is available in the news paper (Rajasthan Patrika.) You can also download it from this page. It also can be downloaded from the last page of your desk work.Application form is also given on the official website of Rai Publication: Rai Publication - Online Book Store for REET RPSC RAS SSC Constable Patwar 1st 2nd Grade TeacherNow fill the details correctly in the application form.Now send the application form to the head office of Rai Publication.Rai Publication Website Link Click HereHead Office Address of Rai PublicationShop No: -24 & 25, Bhagwan Das Market, Chaura Rasta, Jaipur, RajasthanPIN Code:- 302003Contact No.- 0141 232 1136Source : Rai Publication Scholarship Exam 2019
-
How many forms are filled out in the JEE Main 2019 to date?
You should wait till last date to get these type of statistics .NTA will release how much application is received by them.
Related searches to fdacs form 13645
Create this form in 5 minutes!
How to create an eSignature for the wood destroying organisms
How to generate an electronic signature for your Wdo Form 2009 2019 in the online mode
How to generate an electronic signature for the Wdo Form 2009 2019 in Google Chrome
How to make an electronic signature for signing the Wdo Form 2009 2019 in Gmail
How to create an electronic signature for the Wdo Form 2009 2019 from your smart phone
How to generate an eSignature for the Wdo Form 2009 2019 on iOS devices
How to generate an electronic signature for the Wdo Form 2009 2019 on Android devices
People also ask dacs florida
-
What is form 13645 and how is it used?
Form 13645 is a document used in various business and legal contexts. With airSlate SignNow, you can easily create, send, and eSign form 13645, streamlining your workflow and reducing paperwork. This form is crucial for ensuring compliance and efficient transactions, making it a valuable tool for professionals.
-
How does airSlate SignNow improve the signing process for form 13645?
airSlate SignNow enhances the signing process for form 13645 by providing a user-friendly interface that facilitates quick eSignature collection. The platform allows users to send reminders, track document status in real-time, and maintain secure storage, which saves time and improves efficiency.
-
Is there a cost associated with using airSlate SignNow for form 13645?
Yes, airSlate SignNow offers various pricing plans suitable for different business needs when using form 13645. These plans are designed to be cost-effective while providing all the essential features to manage and eSign documents effectively. You can choose a plan that best fits your volume of document processing.
-
Can I integrate airSlate SignNow with other software to manage form 13645?
Absolutely, airSlate SignNow integrates seamlessly with a variety of third-party applications to help manage form 13645. This integration allows for enhanced automation, enabling users to streamline their processes and maintain an organized workflow. Popular integrations include CRM systems, cloud storage services, and project management tools.
-
What security measures does airSlate SignNow have for form 13645?
airSlate SignNow takes the security of form 13645 seriously by implementing advanced encryption and secure access protocols. All documents are stored in compliance with industry standards to ensure your data remains confidential and protected. Additionally, users can set permission levels to control who has access to sensitive documents.
-
How easy is it to customize form 13645 in airSlate SignNow?
Customizing form 13645 within airSlate SignNow is straightforward and intuitive. Users can modify fields, add logos, and incorporate tailored content with just a few clicks. This flexibility allows businesses to create forms that align perfectly with their branding and specific requirements.
-
What are the key benefits of using airSlate SignNow for form 13645?
The key benefits of using airSlate SignNow for form 13645 include enhanced efficiency, reduced turnaround times, and improved accuracy. By digitizing the signing process, businesses can eliminate paper-based bottlenecks, leading to faster transaction completions. Additionally, the platform promotes better collaboration, making it easier to engage multiple signers.
Get more for florida wdo form
- Full text of ampquotboston latin school argoampquot form
- Personal history statement instructions city of denton form
- Agricultural pesticide use record keeping form for texas private
- Tdlr form cos001 2020
- Fire exit drills fire prevention form
- Time clock correction form
- Employee benefits third party administrator tpa appointment form
- Any false inaccurate incomplete or misleading information provided
Find out other florida wdo inspection form
- Help Me With Sign North Dakota Construction Affidavit Of Heirship
- Sign North Dakota Construction Affidavit Of Heirship Free
- Sign North Dakota Construction Affidavit Of Heirship Secure
- How Can I Sign North Dakota Construction Affidavit Of Heirship
- How Can I Sign Oregon Construction Bill Of Lading
- Sign North Dakota Construction Affidavit Of Heirship Fast
- Sign North Dakota Construction Affidavit Of Heirship Simple
- Can I Sign North Dakota Construction Affidavit Of Heirship
- Sign North Dakota Construction Affidavit Of Heirship Easy
- Sign North Dakota Construction Affidavit Of Heirship Safe
- Sign Oregon Construction Letter Of Intent Online
- Can I Sign Oregon Construction Bill Of Lading
- Sign Oregon Construction Letter Of Intent Computer
- Sign Oregon Construction Letter Of Intent Mobile
- Sign Ohio Construction LLC Operating Agreement Online
- Sign Oregon Construction Letter Of Intent Now
- Sign Oregon Construction Letter Of Intent Later
- Sign Ohio Construction LLC Operating Agreement Computer
- Sign Oregon Construction Letter Of Intent Myself
- Sign Oregon Construction Letter Of Intent Free